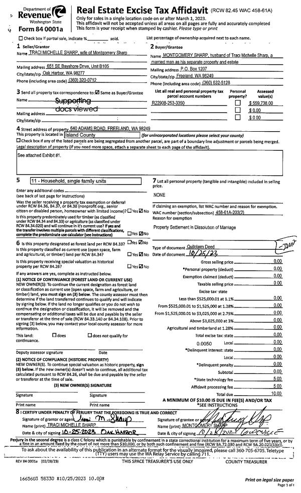
Property
Account |
| Property ID: | 812683 | Abbreviated Legal Description: | PT ALLEN DC - BG NWCR TRACT 1 GOLDIE RD ACS W150' TO NWCR BRAMLEY TR AF#80565 TPB S1*W ALG WLN SD BRAMLEY TR 126.85' N84*W185.63' TO ELN NE KOETJE ST SD LN 30'ELY OF & PARA/W WLY LN TAFTEZON DLC N1*E ALG SD ELN 115.85' TO INTER/W WLY EXT OF NLN SD TR 1 S8 |
| Geographic ID: | R13335-408-3030 | Agent Code: | |
| Type: | Real | | |
| Tax Area: | 100 - APPRAISER-OH Schl Dist, in OH | Land Use Code | 11 |
| Open Space: | N | DFL | N |
| Historic Property: | N | Remodel Property: | N |
| Multi-Family Redevelopment: | N | | |
| Township: | 33 | Section: | 35 |
| Range: | R1 |
Location |
| Address: | | Mapsco: | |
| Neighborhood: | Cycle 1 | Map ID: | 259 |
| Neighborhood CD: | 1 |
Owner |
| Name: | FLETCHER, BRIAN | Owner ID: | 279071 |
| Mailing Address: | 569 NE EASY ST OAK HARBOR, WA 98277 | % Ownership: | 100.0000000000% |
| | | Exemptions: | |
Taxes and Assessment Details
Values
| (+) Improvement Homesite Value: | + | $0 | |
| (+) Improvement Non-Homesite Value: | + | $277,988 | |
| (+) Land Homesite Value: | + | $0 | |
| (+) Land Non-Homesite Value: | + | $190,000 | |
| (+) Curr Use (HS): | + | $0 | $0 |
| (+) Curr Use (NHS): | + | $0 | $0 |
| | | -------------------------- | |
| (=) Market Value: | = | $467,988 | |
| (–) Productivity Loss: | – | $0 | |
| | | -------------------------- | |
| (=) Subtotal: | = | $467,988 | |
| (+) Senior Appraised Value: | + | $0 | |
| (+) Non-Senior Appraised Value: | + | $467,988 | |
| | | -------------------------- | |
| (=) Total Appraised Value: | = | $467,988 | |
| (–) Senior Exemption Loss: | – | $0 | |
| (–) Exemption Loss: | – | $0 | |
| | | -------------------------- | |
| (=) Taxable Value: | = | $467,988 | |
Taxing Jurisdiction
| Owner: | FLETCHER, BRIAN | | |
| % Ownership: | 100.0000000000% | | |
| Total Value: | $467,988 | | |
| Tax Area: | 100 - APPRAISER-OH Schl Dist, in OH |
| CF | Conservation Futures | 0.0316035091 | $467,988 | $467,988 | $14.79 | | |
| CEM1 | Cemetery #1 | 0.0040320932 | $467,988 | $467,988 | $1.89 | | |
| COH | City of Oak Harbor | 2.3001546061 | $467,988 | $467,988 | $1,076.44 | | |
| OAKBOND | City of Oak Harbor BOND | 0.1926904192 | $467,988 | $467,988 | $90.18 | | |
| HOBOND | Hospital BOND | 0.1910887512 | $467,988 | $467,988 | $89.43 | | |
| HOGEN | Hospital GEN | 0.3902502903 | $467,988 | $467,988 | $182.63 | | |
| CE | County Current Expense | 0.3708482477 | $467,988 | $467,988 | $173.55 | | |
| ISLANDEMS | Hospital GEN (EMS) | 0.5000000000 | $467,988 | $467,988 | $233.99 | | |
| LIB | Library Sno-Isle GEN | 0.3153421757 | $467,988 | $467,988 | $147.58 | | |
| NWHIDPRMT | P & R N Whidbey GEN | 0.2004466701 | $467,988 | $467,988 | $93.81 | | |
| SCH201MO | School 201 Enrichment | 1.8559231640 | $467,988 | $467,988 | $868.55 | | |
| ST | State School | 1.3035497053 | $467,988 | $467,988 | $610.05 | | |
| ST2 | State School Part 2 | 0.8169543533 | $467,988 | $467,988 | $382.32 | | |
| | Total Tax Rate: | 8.4728839852 | | | | | |
| | | | | Taxes w/Current Exemptions: | $3,965.21 | | |
| | | | | Taxes w/o Exemptions: | $3,965.21 | | |
Improvement / Building
| Improvement #1: | RESIDENTIAL | State Code: | Y | 1320.0 sqft | Value: | $277,988 |
| Bathrooms: | 1.5 | Bedrooms: | 3 | | Ceiling: | DRYWALL PAINTED | Cooling: | HEAT PUMP/CONV/V | | Exterior Wall/Cover: | COMMON BRICK VENEER | Floor Covering: | VINYL/HARDWOOD 20-80 | | Floor Structure: | WOOD W/SUBFLOOR | Foundation: | CONCRETE | | Interior Finish: | DRYWALL PAINT | Plumbing Fixture Cnt: | 8 | | Roof Slope: | 4" IN 12" | Roof Structure/Cover: | CJ ASPHALT |
|
| | Type | Description | Class CD | Sub Class CD | Year Built | Area |
| | BAS | BASE/MAIN FLOOR | 3 | 0 | 1957 | 1320.0 |
| | UB6 | BASEMENT UNFINISHED 6" | 3 | 0 | 1957 | 1320.0 |
| | OP1 | OPEN PORCH SLAB | 3 | 0 | 1957 | 228.0 |
| | OP4 | OPEN PORCH W/CEILING-ROOF | 3 | 0 | 1957 | 28.0 |
| | DGR | DETACHED GARAGE | 3 | 0 | 1957 | 560.0 |
Sketch
Property Image
Land
| 1 | 16 | AC (00.51-01.00) | 0.5100 | 22215.60 | 0.00 | 0.00 | 1.00 | $190,000 | $0 |
Roll Value History
| 2026 | N/A | N/A | N/A | N/A | N/A |
| 2025 | $277,988 | $190,000 | $0 | $467,988 | $467,988 |
| 2024 | $282,003 | $175,000 | $0 | $457,003 | $457,003 |
| 2023 | $268,240 | $180,000 | $0 | $448,240 | $448,240 |
| 2022 | $246,511 | $180,000 | $0 | $426,511 | $426,511 |
| 2021 | $217,501 | $135,000 | $0 | $352,501 | $352,501 |
| 2020 | $212,602 | $100,000 | $0 | $312,602 | $312,602 |
| 2019 | $154,651 | $160,000 | $0 | $314,651 | $314,651 |
| 2018 | $155,196 | $125,000 | $0 | $280,196 | $280,196 |
| 2017 | $90,631 | $110,000 | $0 | $200,631 | $200,631 |
| 2016 | $92,646 | $27,930 | $0 | $120,576 | $120,576 |
| 2015 | $94,660 | $21,724 | $0 | $116,384 | $116,384 |
Deed and Sales History
| 1 | 06/23/2016 | WD | Warranty Deed | OAK HARBOR CHURCH OF CHRIST | FLETCHER, BRIAN | | | $246,000.00 | 24942 | 4401873 |
Payout Agreement
| No payout information available.. |