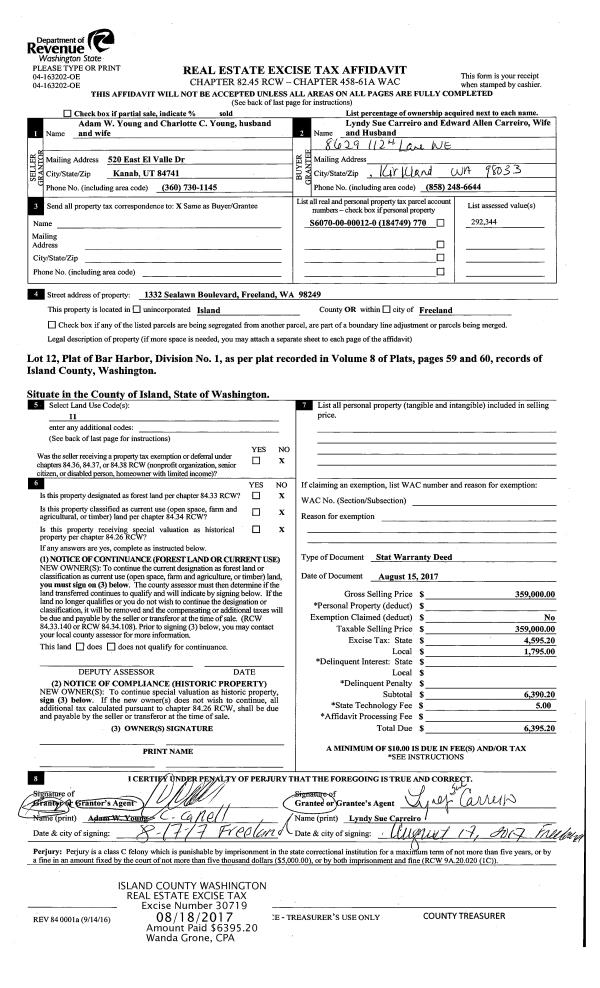
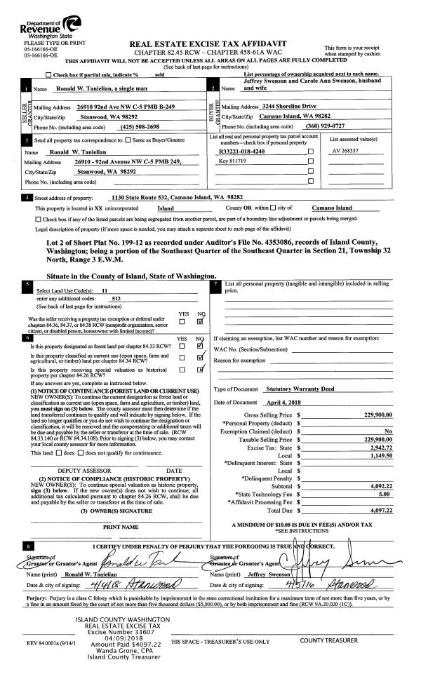
Property
Account |
| Property ID: | 812762 | Abbreviated Legal Description: | PT GWL ALLEN DC & GL11 DESC: BG PT ON WLN SD DC 450.33'N OF SWCR S89*E PARA/TO NLN SD DC 681.8' SLY PARA/TO WLN SD DC 330' WLY PARA/TO NLN SD DC TO ELN OF CO RD (OLD HWY 1-D) NELY ALG SD ELN TPB EX ANY PT LY IN OLD HWY 1-D ALSO EX PT TO CITY OF OH AF#9400 |
| Geographic ID: | R13335-337-0980 | Agent Code: | |
| Type: | Real | | |
| Tax Area: | 100 - APPRAISER-OH Schl Dist, in OH | Land Use Code | 67 |
| Open Space: | N | DFL | N |
| Historic Property: | N | Remodel Property: | N |
| Multi-Family Redevelopment: | N | | |
| Township: | 33 | Section: | 35 |
| Range: | R1 |
Location |
| Address: | | Mapsco: | |
| Neighborhood: | 4BcOH-oak harbor | Map ID: | 258 |
| Neighborhood CD: | 4BcOHoharb |
Owner |
| Name: | ISLAND COUNTY | Owner ID: | 307759 |
| Mailing Address: | FACILITIES MANAGEMENT 1 NE 7TH ST COUPEVILLE, WA 98239 | % Ownership: | 100.0000000000% |
| | | Exemptions: | EX |
Taxes and Assessment Details
Values
| (+) Improvement Homesite Value: | + | $0 | |
| (+) Improvement Non-Homesite Value: | + | $2,474,667 | |
| (+) Land Homesite Value: | + | $0 | |
| (+) Land Non-Homesite Value: | + | $1,764,504 | |
| (+) Curr Use (HS): | + | $0 | $0 |
| (+) Curr Use (NHS): | + | $0 | $0 |
| | | -------------------------- | |
| (=) Market Value: | = | $4,239,171 | |
| (–) Productivity Loss: | – | $0 | |
| | | -------------------------- | |
| (=) Subtotal: | = | $4,239,171 | |
| (+) Senior Appraised Value: | + | $0 | |
| (+) Non-Senior Appraised Value: | + | $4,239,171 | |
| | | -------------------------- | |
| (=) Total Appraised Value: | = | $4,239,171 | |
| (–) Senior Exemption Loss: | – | $0 | |
| (–) Exemption Loss: | – | $4,239,171 | |
| | | -------------------------- | |
| (=) Taxable Value: | = | $0 | |
Taxing Jurisdiction
| Owner: | ISLAND COUNTY | | |
| % Ownership: | 100.0000000000% | | |
| Total Value: | $4,239,171 | | |
| Tax Area: | 100 - APPRAISER-OH Schl Dist, in OH |
| CF | Conservation Futures | 0.0316035091 | $4,239,171 | $0 | $0.00 | | |
| CEM1 | Cemetery #1 | 0.0040320932 | $4,239,171 | $0 | $0.00 | | |
| COH | City of Oak Harbor | 2.3001546061 | $4,239,171 | $0 | $0.00 | | |
| OAKBOND | City of Oak Harbor BOND | 0.1926904192 | $4,239,171 | $0 | $0.00 | | |
| HOBOND | Hospital BOND | 0.1910887512 | $4,239,171 | $0 | $0.00 | | |
| HOGEN | Hospital GEN | 0.3902502903 | $4,239,171 | $0 | $0.00 | | |
| CE | County Current Expense | 0.3708482477 | $4,239,171 | $0 | $0.00 | | |
| ISLANDEMS | Hospital GEN (EMS) | 0.5000000000 | $4,239,171 | $0 | $0.00 | | |
| LIB | Library Sno-Isle GEN | 0.3153421757 | $4,239,171 | $0 | $0.00 | | |
| NWHIDPRMT | P & R N Whidbey GEN | 0.2004466701 | $4,239,171 | $0 | $0.00 | | |
| SCH201MO | School 201 Enrichment | 1.8559231640 | $4,239,171 | $0 | $0.00 | | |
| ST | State School | 1.3035497053 | $4,239,171 | $0 | $0.00 | | |
| ST2 | State School Part 2 | 0.8169543533 | $4,239,171 | $0 | $0.00 | | |
| | Total Tax Rate: | 8.4728839852 | | | | | |
| | | | | Taxes w/Current Exemptions: | $0.00 | | |
| | | | | Taxes w/o Exemptions: | $35,918.02 | | |
Improvement / Building
| Improvement #1: | COMMERCIAL | State Code: | Y | 10290.0 sqft | Value: | $2,474,667 |
| Bathrooms: | 6 | Bedrooms: | 8 | | Ceiling: | DRYWALL PAINTED | Cooling: | HEAT PUMP/CONV/V | | Exterior Wall/Cover: | CEMENT FIBER | Floor Covering: | HARDWOOD 100% | | Floor Structure: | SLAB ON GRADE | Foundation: | CONCRETE | | Interior Finish: | MEDICAL OFFICE | Plumbing Fixture Cnt: | 24 | | Roof Slope: | 6" IN 12" | Roof Structure/Cover: | CJ ASPHALT |
|
| | Type | Description | Class CD | Sub Class CD | Year Built | Area |
| | BAS | BASE/MAIN FLOOR | 3 | 0 | 2020 | 10290.0 |
| | OP1 | OPEN PORCH SLAB | 3 | 0 | 2020 | 864.0 |
| | OP3 | OPEN PORCH W/ROOF | 3 | 0 | 2020 | 240.0 |
| | OP1 | OPEN PORCH SLAB | 3 | 0 | 2020 | 2132.7 |
| | oLIT | LITE POLE | 3 | 0 | 2020 | 4.0 |
| | oPV1 | PV/ASPH 2" | 3 | 0 | 2020 | 11725.0 |
| | OP1 | OPEN PORCH SLAB | 3 | 0 | 2020 | 200.0 |
Sketch
Property Image
Land
| 1 | 61 | MULTIPLE RESIDENCES | 6.7512 | 294084.00 | 0.00 | 0.00 | 1.00 | $1,764,504 | $0 |
Roll Value History
| 2026 | N/A | N/A | N/A | N/A | N/A |
| 2025 | $2,474,667 | $1,764,504 | $0 | $4,239,171 | $0 |
| 2024 | $2,437,859 | $1,764,504 | $0 | $4,202,363 | $0 |
| 2023 | $2,463,246 | $441,126 | $0 | $2,904,372 | $0 |
| 2022 | $1,918,458 | $441,126 | $0 | $2,359,584 | $0 |
| 2021 | $1,916,686 | $441,126 | $0 | $2,357,812 | $0 |
| 2020 | $1,886,501 | $107,158 | $0 | $1,993,659 | $0 |
| 2019 | $0 | $441,126 | $0 | $441,126 | $0 |
| 2018 | $0 | $441,126 | $0 | $441,126 | $0 |
| 2017 | $0 | $503,071 | $0 | $503,071 | $0 |
| 2016 | $0 | $503,071 | $0 | $503,071 | $503,071 |
Deed and Sales History
| 1 | 02/12/2018 | WD | Warranty Deed | RANDHAWA FAMILY, LLC | ISLAND COUNTY | | | $1,100,000.00 | 32944 | 4439236 |
| 2 | 09/06/2017 | QCD | Quit Claim Deed | SHARANJEET MOTEL INC | RANDHAWA FAMILY, LLC | | | $0.00 | 30975 | 4429674 |
| 3 | 05/19/2016 | QCD | Quit Claim Deed | LEO RANDHAWA FAMILY LLC | SHARANJEET MOTEL INC | | | $700,000.00 | 24391 | 4399635 |
Payout Agreement
| No payout information available.. |