Property
Account |
| Property ID: | 812780 | Abbreviated Legal Description: | PT NW SW SEC 2-33N-1E LY WLY ST HWY 20: BG NW/CR NW SW SEC 2 S88*E ALG N LN 30 S1*W 346.31 TPB S88*E 695.55 S1*W 76.21 S88*E 597.34 TO ELN NWSW N1*E422.52 TO NE/CR N88*W ALG N LN 1293.08 S1*W 346.31 TPB |
| Geographic ID: | R13302-243-0720 | Agent Code: | |
| Type: | Real | | |
| Tax Area: | 112 - APPRAISER-OH Schl Dist, outside OH, improved, greater than 1 acre | Land Use Code | 11 |
| Open Space: | N | DFL | N |
| Historic Property: | N | Remodel Property: | N |
| Multi-Family Redevelopment: | N | | |
| Township: | 33 | Section: | 02 |
| Range: | R1 |
Location |
| Address: | 39755 SR20 OAK HARBOR, WA 98277 | Mapsco: | |
| Neighborhood: | Cycle 6 | Map ID: | 193 |
| Neighborhood CD: | 6 |
Owner |
| Name: | LARSEN, KARLYNE K | Owner ID: | 283537 |
| Mailing Address: | NORMAN M LARSEN 39755 SR 20 OAK HARBOR, WA 98277 | % Ownership: | 100.0000000000% |
| | | Exemptions: | |
Taxes and Assessment Details
Values
| (+) Improvement Homesite Value: | + | $0 | |
| (+) Improvement Non-Homesite Value: | + | $692,745 | |
| (+) Land Homesite Value: | + | $0 | |
| (+) Land Non-Homesite Value: | + | $410,000 | |
| (+) Curr Use (HS): | + | $0 | $0 |
| (+) Curr Use (NHS): | + | $0 | $0 |
| | | -------------------------- | |
| (=) Market Value: | = | $1,102,745 | |
| (–) Productivity Loss: | – | $0 | |
| | | -------------------------- | |
| (=) Subtotal: | = | $1,102,745 | |
| (+) Senior Appraised Value: | + | $0 | |
| (+) Non-Senior Appraised Value: | + | $1,102,745 | |
| | | -------------------------- | |
| (=) Total Appraised Value: | = | $1,102,745 | |
| (–) Senior Exemption Loss: | – | $0 | |
| (–) Exemption Loss: | – | $0 | |
| | | -------------------------- | |
| (=) Taxable Value: | = | $1,102,745 | |
Taxing Jurisdiction
| Owner: | LARSEN, KARLYNE K | | |
| % Ownership: | 100.0000000000% | | |
| Total Value: | $1,102,745 | | |
| Tax Area: | 112 - APPRAISER-OH Schl Dist, outside OH, improved, greater than 1 acre |
| CF | Conservation Futures | 0.0316035091 | $1,102,745 | $1,102,745 | $34.85 | | |
| CEM1 | Cemetery #1 | 0.0040320932 | $1,102,745 | $1,102,745 | $4.45 | | |
| FIRE2 | Fire & Rescue Dist #2 N Whidbey GEN | 0.5475949600 | $1,102,745 | $1,102,745 | $603.86 | | |
| HOBOND | Hospital BOND | 0.1910887512 | $1,102,745 | $1,102,745 | $210.72 | | |
| HOGEN | Hospital GEN | 0.3902502903 | $1,102,745 | $1,102,745 | $430.35 | | |
| CE | County Current Expense | 0.3708482477 | $1,102,745 | $1,102,745 | $408.95 | | |
| CR | County Roads | 0.4584763726 | $1,102,745 | $1,102,745 | $505.58 | | |
| ISLANDEMS | Hospital GEN (EMS) | 0.5000000000 | $1,102,745 | $1,102,745 | $551.37 | | |
| LIB | Library Sno-Isle GEN | 0.3153421757 | $1,102,745 | $1,102,745 | $347.74 | | |
| NWHIDPRMT | P & R N Whidbey GEN | 0.2004466701 | $1,102,745 | $1,102,745 | $221.04 | | |
| SCH201MO | School 201 Enrichment | 1.8559231640 | $1,102,745 | $1,102,745 | $2,046.61 | | |
| ST | State School | 1.3035497053 | $1,102,745 | $1,102,745 | $1,437.48 | | |
| ST2 | State School Part 2 | 0.8169543533 | $1,102,745 | $1,102,745 | $900.89 | | |
| | Total Tax Rate: | 6.9861102925 | | | | | |
| | | | | Taxes w/Current Exemptions: | $7,703.89 | | |
| | | | | Taxes w/o Exemptions: | $7,703.89 | | |
Improvement / Building
| Improvement #1: | RESIDENTIAL | State Code: | Y | 2092.0 sqft | Value: | $692,745 |
| Bathrooms: | 2.5 | Bedrooms: | 3 | | Ceiling: | DRYWALL PAINTED | Cooling: | HEAT PUMP/CONV/V | | Exterior Wall/Cover: | CEMENT FIBER | Floor Covering: | HARDWOOD/CARP 60-40 | | Floor Structure: | WOOD W/SUBFLOOR | Foundation: | CONCRETE | | Interior Finish: | DRYWALL PAINT | Plumbing Fixture Cnt: | 11 | | Roof Slope: | 6" IN 12" | Roof Structure/Cover: | CJ ASPHALT |
|
| | Type | Description | Class CD | Sub Class CD | Year Built | Area |
| | BAS | BASE/MAIN FLOOR | 4 | 0 | 2018 | 2092.0 |
| | AGR | ATTACHED GARAGE | 4 | 0 | 2018 | 1436.0 |
| | OWC | OPEN WOOD PORCH W/STEPS/ROOF/C | 4 | 0 | 2018 | 414.0 |
| | OP3 | OPEN PORCH W/ROOF | 4 | 0 | 2018 | 96.0 |
| | DGR | DETACHED GARAGE | 4 | | 2024 | 2560.0 |
Sketch
Property Image
Land
| 1 | 35 | AC (10.00-30.99) | 11.3200 | 493099.20 | 0.00 | 0.00 | 1.00 | $410,000 | $0 |
Roll Value History
| 2026 | N/A | N/A | N/A | N/A | N/A |
| 2025 | $692,745 | $410,000 | $0 | $1,102,745 | $1,102,745 |
| 2024 | $697,047 | $370,000 | $0 | $1,067,047 | $1,067,047 |
| 2023 | $547,677 | $360,000 | $0 | $907,677 | $907,677 |
| 2022 | $485,186 | $350,000 | $0 | $835,186 | $835,186 |
| 2021 | $425,234 | $270,000 | $0 | $695,234 | $695,234 |
| 2020 | $414,043 | $260,000 | $0 | $674,043 | $674,043 |
| 2019 | $314,321 | $310,000 | $0 | $624,321 | $624,321 |
| 2018 | $177,173 | $260,000 | $0 | $437,173 | $437,173 |
| 2017 | $0 | $130,000 | $0 | $130,000 | $130,000 |
| 2016 | $0 | $110,000 | $0 | $110,000 | $110,000 |
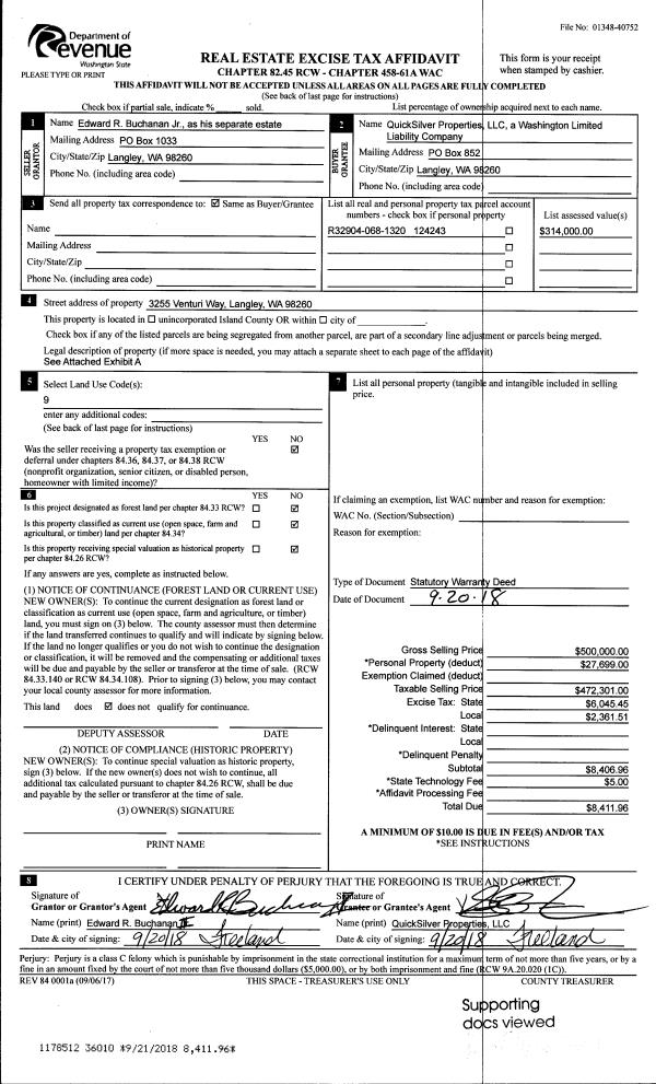
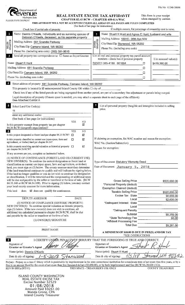
Deed and Sales History
| 1 | 01/04/2018 | QCD | Quit Claim Deed | KRIEG, KARL | LARSEN, KARLYNE K | | | $0.00 | 32561 | 4437233 |
| 2 | 11/22/2017 | QCD | Quit Claim Deed | KRIEG, KARL | KRIEG, KARL | | | $0.00 | 32164 | 4435229 |
Payout Agreement
| No payout information available.. |