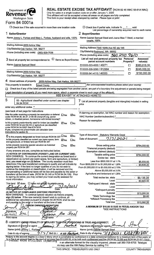
Property
Account |
| Property ID: | 812781 | Abbreviated Legal Description: | PT NW SW SEC 2-33N-1E LY WLY ST HWY 20: BG NW/CR NW SW SEC 2 S88*E ALG N LN 30 S1*W 346.31 TPB S88*E 695.55 S1*W 76.21 S88*E 597.34 S1*W ALG ELN 19.45SLY ALG CURV 230.83 N72*W 5.76 S17*W 698.97 N88*W 310.9 N1*E 634.16 N88*W 695.55 N1*E 346.3 |
| Geographic ID: | R13302-196-0970 | Agent Code: | |
| Type: | Real | | |
| Tax Area: | 112 - APPRAISER-OH Schl Dist, outside OH, improved, greater than 1 acre | Land Use Code | 11 |
| Open Space: | N | DFL | N |
| Historic Property: | N | Remodel Property: | N |
| Multi-Family Redevelopment: | N | | |
| Township: | 33 | Section: | 02 |
| Range: | R1 |
Location |
| Address: | | Mapsco: | |
| Neighborhood: | Cycle 6 | Map ID: | 193 |
| Neighborhood CD: | 6 |
Owner |
| Name: | LARSEN, KARLYNE | Owner ID: | 297855 |
| Mailing Address: | 39755 SR 20 OAK HARBOR, WA 98277 | % Ownership: | 100.0000000000% |
| | | Exemptions: | |
Taxes and Assessment Details
Values
| (+) Improvement Homesite Value: | + | $0 | |
| (+) Improvement Non-Homesite Value: | + | $438,774 | |
| (+) Land Homesite Value: | + | $0 | |
| (+) Land Non-Homesite Value: | + | $410,000 | |
| (+) Curr Use (HS): | + | $0 | $0 |
| (+) Curr Use (NHS): | + | $0 | $0 |
| | | -------------------------- | |
| (=) Market Value: | = | $848,774 | |
| (–) Productivity Loss: | – | $0 | |
| | | -------------------------- | |
| (=) Subtotal: | = | $848,774 | |
| (+) Senior Appraised Value: | + | $0 | |
| (+) Non-Senior Appraised Value: | + | $848,774 | |
| | | -------------------------- | |
| (=) Total Appraised Value: | = | $848,774 | |
| (–) Senior Exemption Loss: | – | $0 | |
| (–) Exemption Loss: | – | $0 | |
| | | -------------------------- | |
| (=) Taxable Value: | = | $848,774 | |
Taxing Jurisdiction
| Owner: | LARSEN, KARLYNE | | |
| % Ownership: | 100.0000000000% | | |
| Total Value: | $848,774 | | |
| Tax Area: | 112 - APPRAISER-OH Schl Dist, outside OH, improved, greater than 1 acre |
| CF | Conservation Futures | 0.0316035091 | $848,774 | $848,774 | $26.82 | | |
| CEM1 | Cemetery #1 | 0.0040320932 | $848,774 | $848,774 | $3.42 | | |
| FIRE2 | Fire & Rescue Dist #2 N Whidbey GEN | 0.5475949600 | $848,774 | $848,774 | $464.78 | | |
| HOBOND | Hospital BOND | 0.1910887512 | $848,774 | $848,774 | $162.19 | | |
| HOGEN | Hospital GEN | 0.3902502903 | $848,774 | $848,774 | $331.23 | | |
| CE | County Current Expense | 0.3708482477 | $848,774 | $848,774 | $314.77 | | |
| CR | County Roads | 0.4584763726 | $848,774 | $848,774 | $389.14 | | |
| ISLANDEMS | Hospital GEN (EMS) | 0.5000000000 | $848,774 | $848,774 | $424.39 | | |
| LIB | Library Sno-Isle GEN | 0.3153421757 | $848,774 | $848,774 | $267.65 | | |
| NWHIDPRMT | P & R N Whidbey GEN | 0.2004466701 | $848,774 | $848,774 | $170.13 | | |
| SCH201MO | School 201 Enrichment | 1.8559231640 | $848,774 | $848,774 | $1,575.26 | | |
| ST | State School | 1.3035497053 | $848,774 | $848,774 | $1,106.42 | | |
| ST2 | State School Part 2 | 0.8169543533 | $848,774 | $848,774 | $693.41 | | |
| | Total Tax Rate: | 6.9861102925 | | | | | |
| | | | | Taxes w/Current Exemptions: | $5,929.61 | | |
| | | | | Taxes w/o Exemptions: | $5,929.61 | | |
Improvement / Building
| Improvement #1: | RESIDENTIAL | State Code: | Y | 3515.0 sqft | Value: | $438,774 |
| Bathrooms: | 1.5 | Bedrooms: | 3 | | Ceiling: | DRYWALL PAINTED | Cooling: | HEAT PUMP/CONV/V | | Exterior Wall/Cover: | WOOD SIDING | Floor Covering: | VINYL 100% | | Floor Structure: | WOOD W/SUBFLOOR | Foundation: | CONCRETE | | Interior Finish: | DRYWALL PAINT | Plumbing Fixture Cnt: | 8 | | Roof Slope: | 12" IN 12" | Roof Structure/Cover: | CJ ASPHALT |
|
| | Type | Description | Class CD | Sub Class CD | Year Built | Area |
| | BAS | BASE/MAIN FLOOR | 3 | 0 | 1951 | 1396.0 |
| | OP2 | OPEN PORCH W/STEPS | 3 | 0 | 1951 | 56.0 |
| | OWR | OPEN WOOD PORCH W/STEPS/ROOF | 3 | 0 | 1951 | 494.0 |
| | UPH | HALF STORY | 3 | 0 | 1951 | 711.0 |
| | DWN | DOWNSTAIRS LIVING AREA | 3 | 0 | 1951 | 1408.0 |
| | DGR | DETACHED GARAGE | 3 | 0 | 1951 | 864.0 |
| | oPOL | POLE BARN | 3 | 0 | 1951 | 4200.0 |
| | oPOL | POLE BARN | 3 | 0 | 1951 | 2016.0 |
Sketch
Property Image
Land
| 1 | 35 | AC (10.00-30.99) | 14.7600 | 642945.60 | 0.00 | 0.00 | 1.00 | $410,000 | $0 |
Roll Value History
| 2026 | N/A | N/A | N/A | N/A | N/A |
| 2025 | $438,774 | $410,000 | $0 | $848,774 | $848,774 |
| 2024 | $443,909 | $370,000 | $0 | $813,909 | $813,909 |
| 2023 | $449,043 | $360,000 | $0 | $809,043 | $809,043 |
| 2022 | $276,803 | $350,000 | $0 | $626,803 | $626,803 |
| 2021 | $256,267 | $270,000 | $0 | $526,267 | $526,267 |
| 2020 | $252,439 | $260,000 | $0 | $512,439 | $512,439 |
| 2019 | $201,849 | $310,000 | $0 | $511,849 | $511,849 |
| 2018 | $202,584 | $260,000 | $0 | $462,584 | $462,584 |
| 2017 | $192,274 | $180,000 | $0 | $372,274 | $372,274 |
| 2016 | $151,000 | $180,000 | $0 | $331,000 | $331,000 |
Deed and Sales History
| 1 | 12/03/2020 | QCD | Quit Claim Deed | KRIEG, KARL | LARSEN, KARLYNE | | | $0.00 | 46689 | 4509105 |
Payout Agreement
| No payout information available.. |