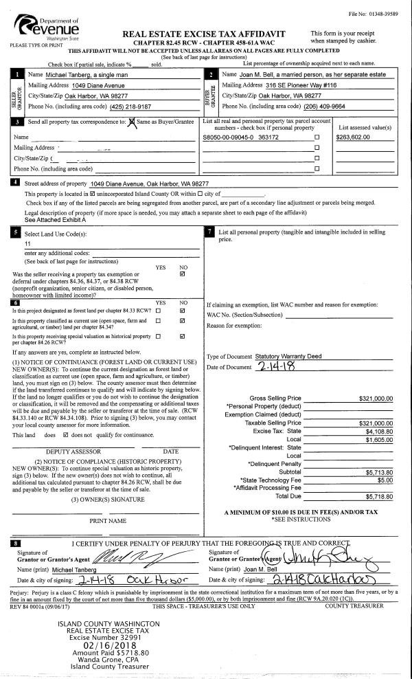
| 1 | 06/21/2024 | WD | Warranty Deed | PARKS, MARSHALL | NAGLE, CHEREE ALLISE | | | $670,000.00 | 60493 | 4574033 |
| 2 | 06/12/2018 | WD | Warranty Deed | SULLIVAN HOME BUILDERS, LLC | PARKS, MARSHALL | | | $417,120.00 | 34495 | 4446059 |
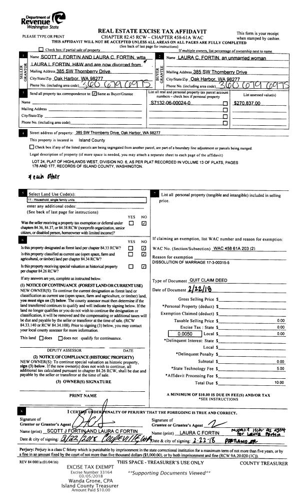
| 3 | 01/16/2018 | QCD | Quit Claim Deed | SULLIVAN HOME BUILDERS, LLC | SULLIVAN HOME BUILDERS, LLC | | | $0.00 | 32703 | 4437961 |
| 4 | 01/17/2018 | QCD | Quit Claim Deed | SULLIVAN, RAYMOND P | SULLIVAN HOME BUILDERS, LLC | | | $0.00 | 32632 | 4437601 |
| 5 | 07/24/2017 | WD | Warranty Deed | KOONTZ RANCH LLC | SULLIVAN, RAYMOND P | | | $605,500.00 | 30335 | 4426893 |
|   | |