Property
Account |
| Property ID: | 812808 | Abbreviated Legal Description: | EAGLE'S LANDING BUSINESS PARK CONDO UNIT J |
| Geographic ID: | S8558-00-0000J-0 | Agent Code: | |
| Type: | Real | | |
| Tax Area: | 590 - APPRAISER-Stan/Cam Schl Dist, Special Dist, improved & less than 1 acre | Land Use Code | 50 |
| Open Space: | N | DFL | N |
| Historic Property: | N | Remodel Property: | N |
| Multi-Family Redevelopment: | N | | |
| Township: | 32 | Section: | 16 |
| Range: | R3 |
Location |
| Address: | 1244 MOORE RD BLDG J CAMANO ISLAND, WA 98282 | Mapsco: | |
| Neighborhood: | 51cRR-utsalady rd | Map ID: | 951 |
| Neighborhood CD: | 51cRRutsal |
Owner |
| Name: | EAGLES LANDING AIRPORT INDUSTRIAL PARK, LLC | Owner ID: | 277420 |
| Mailing Address: | 101 N SUNSET DR CAMANO ISLAND, WA 98282 | % Ownership: | 100.0000000000% |
| | | Exemptions: | |
Taxes and Assessment Details
Values
| (+) Improvement Homesite Value: | + | $0 | |
| (+) Improvement Non-Homesite Value: | + | $308,465 | |
| (+) Land Homesite Value: | + | $0 | |
| (+) Land Non-Homesite Value: | + | $30,000 | |
| (+) Curr Use (HS): | + | $0 | $0 |
| (+) Curr Use (NHS): | + | $0 | $0 |
| | | -------------------------- | |
| (=) Market Value: | = | $338,465 | |
| (–) Productivity Loss: | – | $0 | |
| | | -------------------------- | |
| (=) Subtotal: | = | $338,465 | |
| (+) Senior Appraised Value: | + | $0 | |
| (+) Non-Senior Appraised Value: | + | $338,465 | |
| | | -------------------------- | |
| (=) Total Appraised Value: | = | $338,465 | |
| (–) Senior Exemption Loss: | – | $0 | |
| (–) Exemption Loss: | – | $0 | |
| | | -------------------------- | |
| (=) Taxable Value: | = | $338,465 | |
Taxing Jurisdiction
| Owner: | EAGLES LANDING AIRPORT INDUSTRIAL PARK, LLC | | |
| % Ownership: | 100.0000000000% | | |
| Total Value: | $338,465 | | |
| Tax Area: | 590 - APPRAISER-Stan/Cam Schl Dist, Special Dist, improved & less than 1 acre |
| CF | Conservation Futures | 0.0316035091 | $338,465 | $338,465 | $10.70 | | |
| EMS1 | Fire & Rescue Dist #1 Camano GEN (EMS) | 0.3677864386 | $338,465 | $338,465 | $124.48 | | |
| FIRE1 | Fire & Rescue Dist #1 Camano GEN | 1.2502910536 | $338,465 | $338,465 | $423.18 | | |
| FIRE1BOND | Fire & Rescue Dist #1 Camano BOND | 0.1570001679 | $338,465 | $338,465 | $53.14 | | |
| CE | County Current Expense | 0.3708482477 | $338,465 | $338,465 | $125.52 | | |
| CR | County Roads | 0.4584763726 | $338,465 | $338,465 | $155.18 | | |
| LCIB | Library Sno-Isle BOND (Camano Island) | 0.0396325772 | $338,465 | $338,465 | $13.41 | | |
| LIB | Library Sno-Isle GEN | 0.3153421757 | $338,465 | $338,465 | $106.73 | | |
| SCH205_401 | School 205-401 Enrichment | 1.2698420524 | $338,465 | $338,465 | $429.80 | | |
| SCH205BOND | School 205-401 BOND | 0.9396497583 | $338,465 | $338,465 | $318.04 | | |
| ST | State School | 1.3035497053 | $338,465 | $338,465 | $441.21 | | |
| ST2 | State School Part 2 | 0.8169543533 | $338,465 | $338,465 | $276.51 | | |
| | Total Tax Rate: | 7.3209764117 | | | | | |
| | | | | Taxes w/Current Exemptions: | $2,477.90 | | |
| | | | | Taxes w/o Exemptions: | $2,477.90 | | |
Improvement / Building
| Improvement #1: | COMMERCIAL | State Code: | F2 | 3960.0 sqft | Value: | $308,465 |
| Bathrooms: | 0 | Bedrooms: | 0 | | Ceiling: | ROOF STR/CO CJ MH MT | Exterior Wall/Cover: | STL/ALM/WD OR ST STD | | Floor Covering: | CONCRETE SEALER | Floor Structure: | CONCRETE ON GROUND | | Foundation: | SLAB | Heating: | SPACE HEATERS | | Interior Finish: | WAREHOUSE STORAGE | Plumbing Fixture Cnt: | 1 | | Roof Structure/Cover: | METAL/OPEN STEEL |   |   |
|
| | Type | Description | Class CD | Sub Class CD | Year Built | Area |
| | BAS | BASE/MAIN FLOOR | 3 | 0 | 2015 | 3960.0 |
| | oPV1 | PV/ASPH 2" | 3 | 0 | 2015 | 5882.0 |
Sketch
Property Image
Land
| 1 | 64 | PERSONAL BUSINESS | 0.0983 | 4284.00 | 0.00 | 0.00 | 1.00 | $30,000 | $0 |
Roll Value History
| 2026 | N/A | N/A | N/A | N/A | N/A |
| 2025 | $308,465 | $30,000 | $0 | $338,465 | $338,465 |
| 2024 | $315,189 | $30,000 | $0 | $345,189 | $345,189 |
| 2023 | $318,552 | $30,000 | $0 | $348,552 | $348,552 |
| 2022 | $231,980 | $30,000 | $0 | $261,980 | $261,980 |
| 2021 | $224,424 | $28,477 | $0 | $252,901 | $252,901 |
| 2020 | $224,379 | $28,477 | $0 | $252,856 | $252,856 |
| 2019 | $205,998 | $18,427 | $0 | $224,425 | $224,425 |
| 2018 | $206,002 | $28,477 | $0 | $234,479 | $234,479 |
| 2017 | $206,010 | $28,477 | $0 | $234,487 | $234,487 |
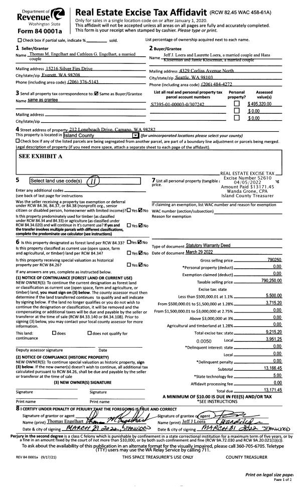
Deed and Sales History
Payout Agreement
| No payout information available.. |