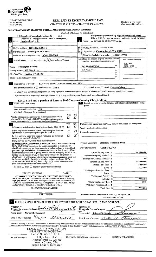
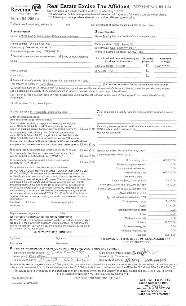
Property
Account |
| Property ID: | 812813 | Abbreviated Legal Description: | THE SW NW NE SW EX E 30FT RD & UT |
| Geographic ID: | R33004-211-1490 | Agent Code: | |
| Type: | Real | | |
| Tax Area: | 542 - APPRAISER-Stan/Cam Schl Dist, Special Dist, improved, greater than 1 acre | Land Use Code | 11 |
| Open Space: | N | DFL | N |
| Historic Property: | N | Remodel Property: | N |
| Multi-Family Redevelopment: | N | | |
| Township: | 30 | Section: | 04 |
| Range: | R3 |
Location |
| Address: | 2561 SANDY DR CAMANO ISLAND, WA 98282 | Mapsco: | |
| Neighborhood: | Cycle 5 | Map ID: | 851 |
| Neighborhood CD: | 5 |
Owner |
| Name: | WITT, DOUGLAS D | Owner ID: | 291229 |
| Mailing Address: | DONNA M KAPPEL 2561 SANDY DR CAMANO ISLAND, WA 98282 | % Ownership: | 100.0000000000% |
| | | Exemptions: | |
Taxes and Assessment Details
Values
| (+) Improvement Homesite Value: | + | $0 | |
| (+) Improvement Non-Homesite Value: | + | $556,176 | |
| (+) Land Homesite Value: | + | $0 | |
| (+) Land Non-Homesite Value: | + | $290,000 | |
| (+) Curr Use (HS): | + | $0 | $0 |
| (+) Curr Use (NHS): | + | $0 | $0 |
| | | -------------------------- | |
| (=) Market Value: | = | $846,176 | |
| (–) Productivity Loss: | – | $0 | |
| | | -------------------------- | |
| (=) Subtotal: | = | $846,176 | |
| (+) Senior Appraised Value: | + | $0 | |
| (+) Non-Senior Appraised Value: | + | $846,176 | |
| | | -------------------------- | |
| (=) Total Appraised Value: | = | $846,176 | |
| (–) Senior Exemption Loss: | – | $0 | |
| (–) Exemption Loss: | – | $0 | |
| | | -------------------------- | |
| (=) Taxable Value: | = | $846,176 | |
Taxing Jurisdiction
| Owner: | WITT, DOUGLAS D | | |
| % Ownership: | 100.0000000000% | | |
| Total Value: | $846,176 | | |
| Tax Area: | 542 - APPRAISER-Stan/Cam Schl Dist, Special Dist, improved, greater than 1 acre |
| CF | Conservation Futures | 0.0316035091 | $846,176 | $846,176 | $26.74 | | |
| EMS1 | Fire & Rescue Dist #1 Camano GEN (EMS) | 0.3677864386 | $846,176 | $846,176 | $311.21 | | |
| FIRE1 | Fire & Rescue Dist #1 Camano GEN | 1.2502910536 | $846,176 | $846,176 | $1,057.97 | | |
| FIRE1BOND | Fire & Rescue Dist #1 Camano BOND | 0.1570001679 | $846,176 | $846,176 | $132.85 | | |
| CE | County Current Expense | 0.3708482477 | $846,176 | $846,176 | $313.80 | | |
| CR | County Roads | 0.4584763726 | $846,176 | $846,176 | $387.95 | | |
| LCIB | Library Sno-Isle BOND (Camano Island) | 0.0396325772 | $846,176 | $846,176 | $33.54 | | |
| LIB | Library Sno-Isle GEN | 0.3153421757 | $846,176 | $846,176 | $266.83 | | |
| SCH205_401 | School 205-401 Enrichment | 1.2698420524 | $846,176 | $846,176 | $1,074.51 | | |
| SCH205BOND | School 205-401 BOND | 0.9396497583 | $846,176 | $846,176 | $795.11 | | |
| ST | State School | 1.3035497053 | $846,176 | $846,176 | $1,103.03 | | |
| ST2 | State School Part 2 | 0.8169543533 | $846,176 | $846,176 | $691.29 | | |
| | Total Tax Rate: | 7.3209764117 | | | | | |
| | | | | Taxes w/Current Exemptions: | $6,194.83 | | |
| | | | | Taxes w/o Exemptions: | $6,194.83 | | |
Improvement / Building
| Improvement #1: | RESIDENTIAL | State Code: | Y | 2112.0 sqft | Value: | $556,176 |
| Bathrooms: | 3 | Bedrooms: | 4 | | Ceiling: | TONGUE & GROOVE | Cooling: | HEAT PUMP/CONV/V | | Exterior Wall/Cover: | CEMENT FIBER | Floor Covering: | CERAMIC TILE/HWD 40/60 | | Floor Structure: | WOOD W/SUBFLOOR | Foundation: | CONCRETE | | Interior Finish: | DRYWALL PAINT | Plumbing Fixture Cnt: | 17 | | Roof Slope: | 6" IN 12" | Roof Structure/Cover: | CJ ASPHALT |
|
| | Type | Description | Class CD | Sub Class CD | Year Built | Area |
| | BAS | BASE/MAIN FLOOR | 4 | 0 | 2019 | 2112.0 |
| | CPD | OPEN CARPORT DIRT FLOOR | 4 | 0 | 2019 | 100.0 |
| | AGR | ATTACHED GARAGE | 4 | 0 | 2019 | 768.0 |
| | UTY | STORAGE/UTILITY | 4 | 0 | 2019 | 150.0 |
| | OWP | OPEN WOOD PORCH W/STEPS | 4 | 0 | 2019 | 128.0 |
| | OP4 | OPEN PORCH W/CEILING-ROOF | 4 | 0 | 2019 | 144.0 |
| | UTY | STORAGE/UTILITY | 4 | 0 | 2019 | 200.0 |
| | CPD | OPEN CARPORT DIRT FLOOR | 4 | 0 | 2019 | 160.0 |
Sketch
Property Image
Land
| 1 | 18 | AC (02.01-03.00) | 2.2800 | 99316.80 | 0.00 | 0.00 | 1.00 | $290,000 | $0 |
Roll Value History
| 2026 | N/A | N/A | N/A | N/A | N/A |
| 2025 | $556,176 | $290,000 | $0 | $846,176 | $846,176 |
| 2024 | $560,662 | $280,000 | $0 | $840,662 | $840,662 |
| 2023 | $565,148 | $220,000 | $0 | $785,148 | $785,148 |
| 2022 | $515,809 | $210,000 | $0 | $725,809 | $725,809 |
| 2021 | $392,668 | $180,000 | $0 | $572,668 | $572,668 |
| 2020 | $384,381 | $150,000 | $0 | $534,381 | $534,381 |
| 2019 | $252,800 | $200,000 | $0 | $452,800 | $452,800 |
| 2018 | $0 | $80,000 | $0 | $80,000 | $80,000 |
| 2017 | $0 | $65,000 | $0 | $65,000 | $65,000 |
Deed and Sales History
| 1 | 07/30/2019 | WD | Warranty Deed | KUTROVICS, CSABA | WITT, DOUGLAS D | | | $550,000.00 | 39725 | 4468748 |
| 2 | 11/20/2017 | WD | Warranty Deed | HARMONY PROPERTY MANAGEMENT, LLC | KUTROVICS, CSABA | | | $50,300.00 | 31988 | 4434501 |
Payout Agreement
| No payout information available.. |