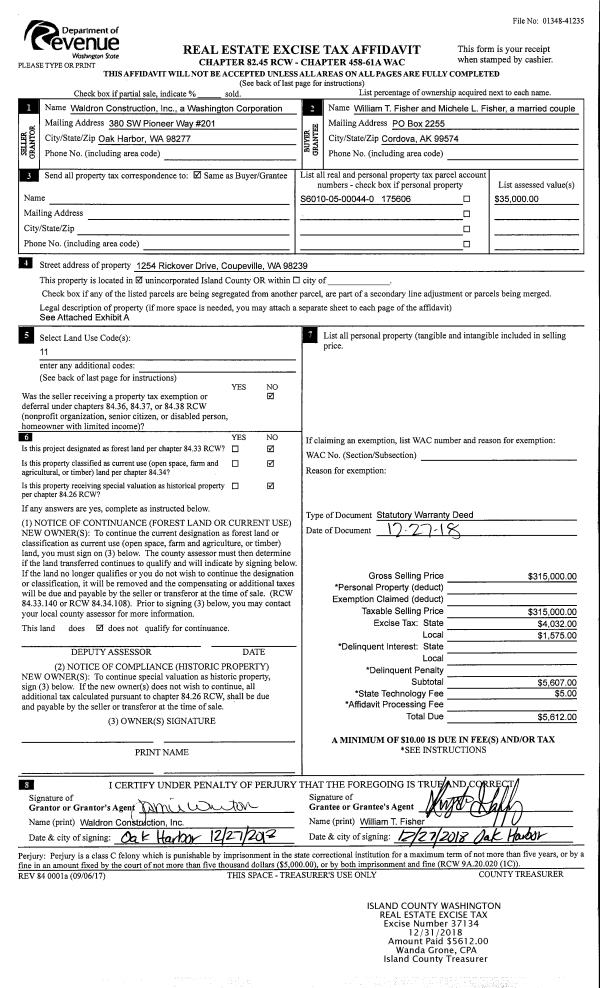
Property
Account |
| Property ID: | 812814 | Abbreviated Legal Description: | IN GL2: BG 30'W & 101'S OF NECR GL2 W250' S179' W120' TPB W121.8' N1*W179.1 E127' S179' M/L TPB TGW & SUB EZ AF#84005718 TGW IN GL 2: BG PT WLN RD 30'W & 101'S OF NECR GL 2 W250'TPB S179' W120' N179' E TPB TGW EZS |
| Geographic ID: | R23115-375-4900 | Agent Code: | |
| Type: | Real | | |
| Tax Area: | 510 - APPRAISER-Stan/Cam Schl Dist, improved & 1 acre or less | Land Use Code | 11 |
| Open Space: | N | DFL | N |
| Historic Property: | N | Remodel Property: | N |
| Multi-Family Redevelopment: | N | | |
| Township: | 31 | Section: | 15 |
| Range: | R2 |
Location |
| Address: | | Mapsco: | |
| Neighborhood: | Cycle 5 | Map ID: | 486 |
| Neighborhood CD: | 5 |
Owner |
| Name: | CHUBELASHVILI, RAPHAEL | Owner ID: | 292399 |
| Mailing Address: | ALEJANDRO ALCOCER 885 SANDS VIEW RD CAMANO ISLAND, WA 98282 | % Ownership: | 100.0000000000% |
| | | Exemptions: | |
Taxes and Assessment Details
Values
| (+) Improvement Homesite Value: | + | $0 | |
| (+) Improvement Non-Homesite Value: | + | $321,896 | |
| (+) Land Homesite Value: | + | $0 | |
| (+) Land Non-Homesite Value: | + | $300,000 | |
| (+) Curr Use (HS): | + | $0 | $0 |
| (+) Curr Use (NHS): | + | $0 | $0 |
| | | -------------------------- | |
| (=) Market Value: | = | $621,896 | |
| (–) Productivity Loss: | – | $0 | |
| | | -------------------------- | |
| (=) Subtotal: | = | $621,896 | |
| (+) Senior Appraised Value: | + | $0 | |
| (+) Non-Senior Appraised Value: | + | $621,896 | |
| | | -------------------------- | |
| (=) Total Appraised Value: | = | $621,896 | |
| (–) Senior Exemption Loss: | – | $0 | |
| (–) Exemption Loss: | – | $0 | |
| | | -------------------------- | |
| (=) Taxable Value: | = | $621,896 | |
Taxing Jurisdiction
| Owner: | CHUBELASHVILI, RAPHAEL | | |
| % Ownership: | 100.0000000000% | | |
| Total Value: | $621,896 | | |
| Tax Area: | 510 - APPRAISER-Stan/Cam Schl Dist, improved & 1 acre or less |
| CF | Conservation Futures | 0.0316035091 | $621,896 | $621,896 | $19.65 | | |
| EMS1 | Fire & Rescue Dist #1 Camano GEN (EMS) | 0.3677864386 | $621,896 | $621,896 | $228.72 | | |
| FIRE1 | Fire & Rescue Dist #1 Camano GEN | 1.2502910536 | $621,896 | $621,896 | $777.55 | | |
| FIRE1BOND | Fire & Rescue Dist #1 Camano BOND | 0.1570001679 | $621,896 | $621,896 | $97.64 | | |
| CE | County Current Expense | 0.3708482477 | $621,896 | $621,896 | $230.63 | | |
| CR | County Roads | 0.4584763726 | $621,896 | $621,896 | $285.12 | | |
| LCIB | Library Sno-Isle BOND (Camano Island) | 0.0396325772 | $621,896 | $621,896 | $24.65 | | |
| LIB | Library Sno-Isle GEN | 0.3153421757 | $621,896 | $621,896 | $196.11 | | |
| SCH205_401 | School 205-401 Enrichment | 1.2698420524 | $621,896 | $621,896 | $789.71 | | |
| SCH205BOND | School 205-401 BOND | 0.9396497583 | $621,896 | $621,896 | $584.36 | | |
| ST | State School | 1.3035497053 | $621,896 | $621,896 | $810.67 | | |
| ST2 | State School Part 2 | 0.8169543533 | $621,896 | $621,896 | $508.06 | | |
| | Total Tax Rate: | 7.3209764117 | | | | | |
| | | | | Taxes w/Current Exemptions: | $4,552.87 | | |
| | | | | Taxes w/o Exemptions: | $4,552.87 | | |
Improvement / Building
| Improvement #1: | RESIDENTIAL | State Code: | Y | 1768.0 sqft | Value: | $309,236 |
| Bathrooms: | 2 | Bedrooms: | 3 | | Ceiling: | DRYWALL PAINTED | Exterior Wall/Cover: | PLY/HARDBOARD T-111 | | Floor Covering: | CERAMIC TILE/CPT 40-60 | Floor Structure: | WOOD W/SUBFLOOR | | Foundation: | CONCRETE | Heating: | FHA ELECTRIC | | Interior Finish: | DRYWALL PAINT | Plumbing Fixture Cnt: | 9 | | Roof Slope: | 4" IN 12" | Roof Structure/Cover: | CJ ASPHALT |
|
| | Type | Description | Class CD | Sub Class CD | Year Built | Area |
| | BAS | BASE/MAIN FLOOR | 3 | 0 | 1971 | 1768.0 |
| | OP3 | OPEN PORCH W/ROOF | 3 | 0 | 1971 | 72.0 |
| | OCP | OPEN CARPORT | 3 | 0 | 1971 | 348.8 |
| | OWP | OPEN WOOD PORCH W/STEPS | 3 | 0 | 1971 | 48.0 |
| | OWP | OPEN WOOD PORCH W/STEPS | 3 | 0 | 1971 | 360.0 |
| | OWC | OPEN WOOD PORCH W/STEPS/ROOF/C | 3 | 0 | 1971 | 32.0 |
| | OP1 | OPEN PORCH SLAB | 3 | 0 | 1971 | 247.8 |
| Improvement #2: | RESIDENTIAL | State Code: | Y | 0.0 sqft | Value: | $12,660 |
| | Type | Description | Class CD | Sub Class CD | Year Built | Area |
| | oPOL | POLE BARN | 3 | 0 | 1985 | 648.0 |
| | oCPD | CARPRT DRT | 3 | 0 | 1985 | 288.0 |
| | oCAR | CARPORT | 3 | 0 | 1985 | 480.0 |
Sketch
Property Image
Land
| 1 | 16 | AC (00.51-01.00) | 1.0000 | 43560.00 | 0.00 | 0.00 | 1.00 | $300,000 | $0 |
Roll Value History
| 2026 | N/A | N/A | N/A | N/A | N/A |
| 2025 | $321,896 | $300,000 | $0 | $621,896 | $621,896 |
| 2024 | $325,523 | $310,000 | $0 | $635,523 | $635,523 |
| 2023 | $329,150 | $280,000 | $0 | $609,150 | $609,150 |
| 2022 | $306,519 | $260,000 | $0 | $566,519 | $566,519 |
| 2021 | $259,502 | $160,000 | $0 | $419,502 | $419,502 |
| 2020 | $253,237 | $150,000 | $0 | $403,237 | $403,237 |
| 2019 | $190,773 | $180,000 | $0 | $370,773 | $370,773 |
| 2018 | $191,284 | $150,000 | $0 | $341,284 | $341,284 |
| 2017 | $192,295 | $150,000 | $0 | $342,295 | $342,295 |
Deed and Sales History
| 1 | 10/28/2019 | WD | Warranty Deed | GOUGH, DONALD ALLEN | CHUBELASHVILI, RAPHAEL | | | $425,000.00 | 40891 | 4474440 |
| 2 | 09/21/2018 | QCD | Quit Claim Deed | GOUGH, DONALD A | GOUGH, DONALD ALLEN | | | $0.00 | 36205 | 4453031 |
Payout Agreement
| No payout information available.. |