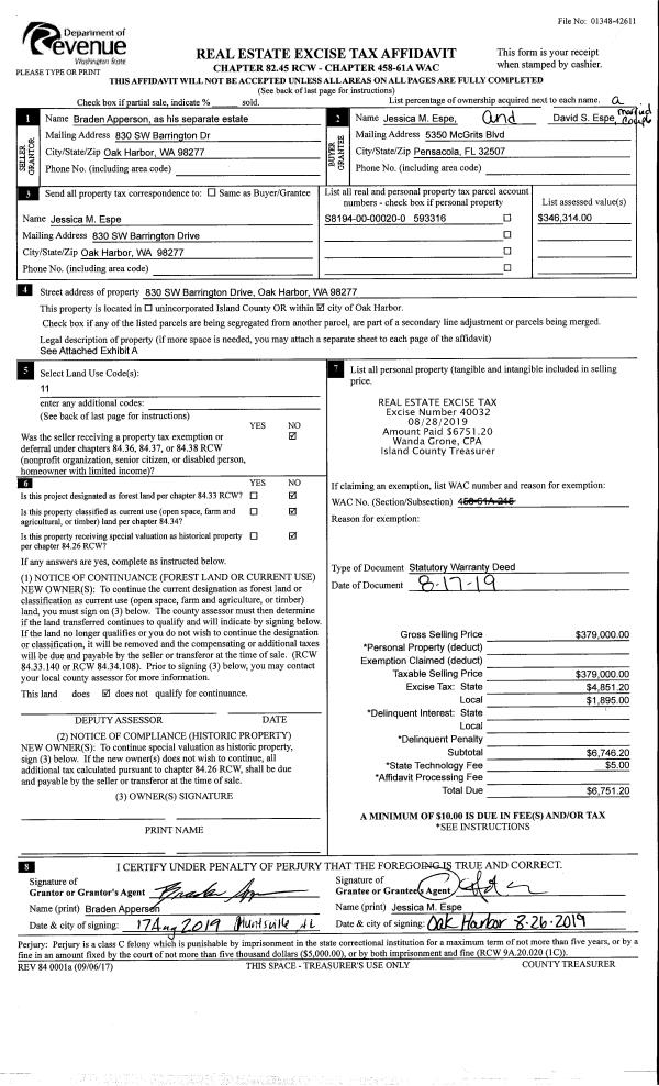
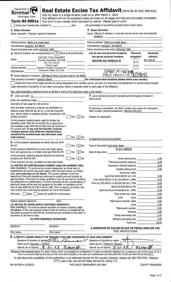
Property
Account |
| Property ID: | 812921 | Abbreviated Legal Description: | MADRONA BCH 2ND LOT 54 |
| Geographic ID: | S7440-02-00054-0 | Agent Code: | |
| Type: | Real | | |
| Tax Area: | 510 - APPRAISER-Stan/Cam Schl Dist, improved & 1 acre or less | Land Use Code | 11 |
| Open Space: | N | DFL | N |
| Historic Property: | N | Remodel Property: | N |
| Multi-Family Redevelopment: | N | | |
| Township: | | Section: | |
| Range: | |
Location |
| Address: | 213 TARRAGON AVE CAMANO ISLAND, WA 98282 | Mapsco: | |
| Neighborhood: | North Camano | Map ID: | 574 |
| Neighborhood CD: | 06-C |
Owner |
| Name: | REED, SAMUEL P | Owner ID: | 309928 |
| Mailing Address: | KARIN A REED 213 TARRAGON AVE CAMANO ISLAND, WA 98282 | % Ownership: | 100.0000000000% |
| | | Exemptions: | |
Taxes and Assessment Details
Values
| (+) Improvement Homesite Value: | + | $0 | |
| (+) Improvement Non-Homesite Value: | + | $334,878 | |
| (+) Land Homesite Value: | + | $0 | |
| (+) Land Non-Homesite Value: | + | $260,000 | |
| (+) Curr Use (HS): | + | $0 | $0 |
| (+) Curr Use (NHS): | + | $0 | $0 |
| | | -------------------------- | |
| (=) Market Value: | = | $594,878 | |
| (–) Productivity Loss: | – | $0 | |
| | | -------------------------- | |
| (=) Subtotal: | = | $594,878 | |
| (+) Senior Appraised Value: | + | $0 | |
| (+) Non-Senior Appraised Value: | + | $594,878 | |
| | | -------------------------- | |
| (=) Total Appraised Value: | = | $594,878 | |
| (–) Senior Exemption Loss: | – | $0 | |
| (–) Exemption Loss: | – | $0 | |
| | | -------------------------- | |
| (=) Taxable Value: | = | $594,878 | |
Taxing Jurisdiction
| Owner: | REED, SAMUEL P | | |
| % Ownership: | 100.0000000000% | | |
| Total Value: | $594,878 | | |
| Tax Area: | 510 - APPRAISER-Stan/Cam Schl Dist, improved & 1 acre or less |
| CF | Conservation Futures | 0.0316035091 | $594,878 | $594,878 | $18.80 | | |
| EMS1 | Fire & Rescue Dist #1 Camano GEN (EMS) | 0.3677864386 | $594,878 | $594,878 | $218.79 | | |
| FIRE1 | Fire & Rescue Dist #1 Camano GEN | 1.2502910536 | $594,878 | $594,878 | $743.77 | | |
| FIRE1BOND | Fire & Rescue Dist #1 Camano BOND | 0.1570001679 | $594,878 | $594,878 | $93.40 | | |
| CE | County Current Expense | 0.3708482477 | $594,878 | $594,878 | $220.61 | | |
| CR | County Roads | 0.4584763726 | $594,878 | $594,878 | $272.74 | | |
| LCIB | Library Sno-Isle BOND (Camano Island) | 0.0396325772 | $594,878 | $594,878 | $23.58 | | |
| LIB | Library Sno-Isle GEN | 0.3153421757 | $594,878 | $594,878 | $187.59 | | |
| SCH205_401 | School 205-401 Enrichment | 1.2698420524 | $594,878 | $594,878 | $755.40 | | |
| SCH205BOND | School 205-401 BOND | 0.9396497583 | $594,878 | $594,878 | $558.98 | | |
| ST | State School | 1.3035497053 | $594,878 | $594,878 | $775.45 | | |
| ST2 | State School Part 2 | 0.8169543533 | $594,878 | $594,878 | $485.99 | | |
| | Total Tax Rate: | 7.3209764117 | | | | | |
| | | | | Taxes w/Current Exemptions: | $4,355.10 | | |
| | | | | Taxes w/o Exemptions: | $4,355.10 | | |
Improvement / Building
| Improvement #1: | RESIDENTIAL | State Code: | Y | 1632.4 sqft | Value: | $334,878 |
| Bathrooms: | 2.5 | Bedrooms: | 2 | | Ceiling: | DRYWALL PAINTED | Exterior Wall/Cover: | CEMENT FIBER | | Floor Covering: | CARPET/VINYL 60-40 | Floor Structure: | WOOD W/SUBFLOOR | | Foundation: | CONCRETE | Heating: | FHA ELECTRIC | | Interior Finish: | DRYWALL PAINT | Plumbing Fixture Cnt: | 13 | | Roof Slope: | 6" IN 12" | Roof Structure/Cover: | CJ ASPHALT |
|
| | Type | Description | Class CD | Sub Class CD | Year Built | Area |
| | BAS | BASE/MAIN FLOOR | 3 | 0 | 2019 | 598.2 |
| | UPS | UPPER STORY | 3 | 0 | 2019 | 1034.2 |
| | AGR | ATTACHED GARAGE | 3 | 0 | 2019 | 412.0 |
| | OP4 | OPEN PORCH W/CEILING-ROOF | 3 | 0 | 2019 | 30.0 |
| | OP2 | OPEN PORCH W/STEPS | 3 | 0 | 2019 | 200.0 |
Sketch
Property Image
Land
| 1 | 12 | SQ (00000-06000) | 0.0900 | 0.00 | 0.00 | 0.00 | 1.00 | $260,000 | $0 |
Roll Value History
| 2026 | N/A | N/A | N/A | N/A | N/A |
| 2025 | $334,878 | $260,000 | $0 | $594,878 | $594,878 |
| 2024 | $337,579 | $260,000 | $0 | $597,579 | $597,579 |
| 2023 | $340,279 | $260,000 | $0 | $600,279 | $600,279 |
| 2022 | $302,964 | $240,000 | $0 | $542,964 | $542,964 |
| 2021 | $266,233 | $160,000 | $0 | $426,233 | $426,233 |
| 2020 | $260,331 | $160,000 | $0 | $420,331 | $420,331 |
| 2019 | $188,697 | $170,000 | $0 | $358,697 | $358,697 |
| 2018 | $0 | $70,000 | $0 | $70,000 | $70,000 |
| 2017 | $0 | $60,000 | $0 | $60,000 | $60,000 |
Deed and Sales History
| 1 | 07/19/2023 | WD | Warranty Deed | STANCAM MADRONA, LLC | REED, SAMUEL P | | | $610,000.00 | 57359 | 4562481 |
| 2 | 05/31/2022 | QCD | Quit Claim Deed | SWANSON, AMANDA | STANCAM MADRONA, LLC | | | $0.00 | 53374 | 4546364 |
| 3 | 06/28/2019 | QCD | Quit Claim Deed | SWANSON, JOHN C | SWANSON, AMANDA | | | $0.00 | 39257 | 4466512 |
| 4 | 06/27/2019 | WD | Warranty Deed | RELIABLE HOLDINGS, INC | SWANSON, AMANDA | | | $436,000.00 | 39237 | 4466511 |
Payout Agreement
| No payout information available.. |