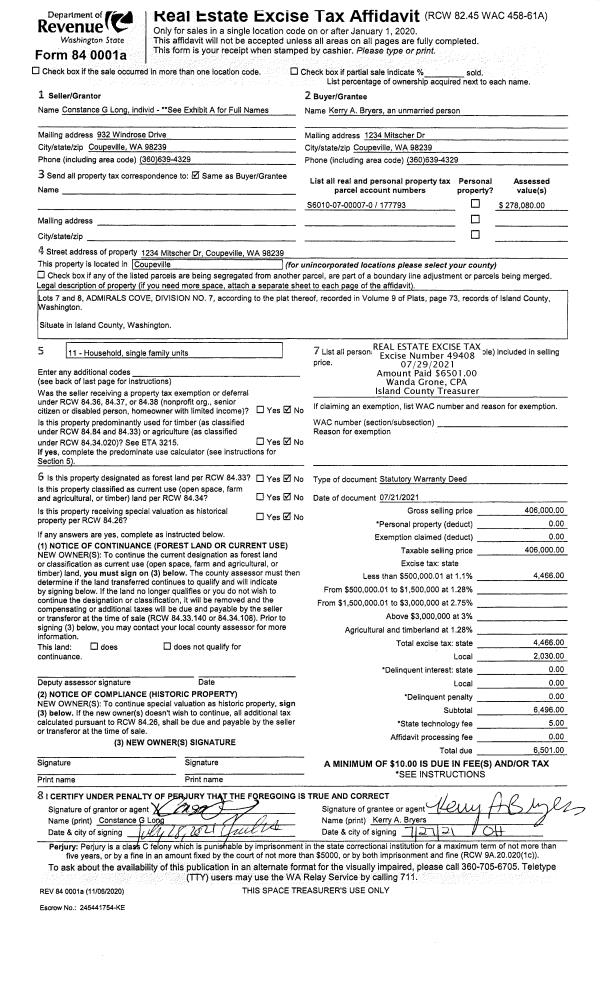
Property
Account |
| Property ID: | 812925 | Abbreviated Legal Description: | E165' OF S/2 N/2 NW NE TGW FOLL DESC: PT OF SW NW NE NE DESC: BG SWCR OF SD SW/4 N1*E164.69' S85*E6' N4*E43.25' N85*W6.54' N1*E110.77' TO NLY LN SD SW/4 S89*W9.04' TO NWCR OF SD SW/4 S318.51' TPB (AKA LOT B BLA AF#4210389 8/24/2007) TGW S/2 S/2 N/2 N |
| Geographic ID: | R32919-474-3400 | Agent Code: | |
| Type: | Real | | |
| Tax Area: | 812 - APPRAISER-S Whid Schl Dist, outside Langley, improved, greater than 1 acre | Land Use Code | 11 |
| Open Space: | N | DFL | N |
| Historic Property: | N | Remodel Property: | N |
| Multi-Family Redevelopment: | N | | |
| Township: | 29 | Section: | 19 |
| Range: | R3 |
Location |
| Address: | 2684 SUNSHINE LN CLINTON, WA 98236 | Mapsco: | |
| Neighborhood: | Cycle 4 | Map ID: | 790 |
| Neighborhood CD: | 4 |
Owner |
| Name: | POMEROY, REBEKAH | Owner ID: | 280889 |
| Mailing Address: | BARRY POMEROY PO BOX 286 CLINTON, WA 98236 | % Ownership: | 100.0000000000% |
| | | Exemptions: | |
Taxes and Assessment Details
Values
| (+) Improvement Homesite Value: | + | $0 | |
| (+) Improvement Non-Homesite Value: | + | $427,935 | |
| (+) Land Homesite Value: | + | $0 | |
| (+) Land Non-Homesite Value: | + | $420,000 | |
| (+) Curr Use (HS): | + | $0 | $0 |
| (+) Curr Use (NHS): | + | $0 | $0 |
| | | -------------------------- | |
| (=) Market Value: | = | $847,935 | |
| (–) Productivity Loss: | – | $0 | |
| | | -------------------------- | |
| (=) Subtotal: | = | $847,935 | |
| (+) Senior Appraised Value: | + | $0 | |
| (+) Non-Senior Appraised Value: | + | $847,935 | |
| | | -------------------------- | |
| (=) Total Appraised Value: | = | $847,935 | |
| (–) Senior Exemption Loss: | – | $0 | |
| (–) Exemption Loss: | – | $0 | |
| | | -------------------------- | |
| (=) Taxable Value: | = | $847,935 | |
Taxing Jurisdiction
| Owner: | POMEROY, REBEKAH | | |
| % Ownership: | 100.0000000000% | | |
| Total Value: | $847,935 | | |
| Tax Area: | 812 - APPRAISER-S Whid Schl Dist, outside Langley, improved, greater than 1 acre |
| CF | Conservation Futures | 0.0316035091 | $847,935 | $847,935 | $26.80 | | |
| FIRE3 | Fire & Rescue Dist #3 S Whidbey GEN | 1.2004855531 | $847,935 | $847,935 | $1,017.93 | | |
| HOBOND | Hospital BOND | 0.1910887512 | $847,935 | $847,935 | $162.03 | | |
| HOGEN | Hospital GEN | 0.3902502903 | $847,935 | $847,935 | $330.91 | | |
| CE | County Current Expense | 0.3708482477 | $847,935 | $847,935 | $314.46 | | |
| CR | County Roads | 0.4584763726 | $847,935 | $847,935 | $388.76 | | |
| ISLANDEMS | Hospital GEN (EMS) | 0.5000000000 | $847,935 | $847,935 | $423.97 | | |
| LIB | Library Sno-Isle GEN | 0.3153421757 | $847,935 | $847,935 | $267.39 | | |
| PORTWHID | Port of S Whidbey GEN | 0.1094540357 | $847,935 | $847,935 | $92.81 | | |
| SCH206BOND | School 206 BOND | 0.3161759235 | $847,935 | $847,935 | $268.10 | | |
| SCH206MO | School 206 Enrichment | 0.4547169547 | $847,935 | $847,935 | $385.57 | | |
| ST | State School | 1.3035497053 | $847,935 | $847,935 | $1,105.33 | | |
| ST2 | State School Part 2 | 0.8169543533 | $847,935 | $847,935 | $692.72 | | |
| SWHIDPRBD | P & R S Whidbey BOND | 0.0152817568 | $847,935 | $847,935 | $12.96 | | |
| SWHIDPRBD2 | P & R S Whidbey BOND2 | 0.0138911264 | $847,935 | $847,935 | $11.78 | | |
| SWHIDPRMT | P & R S Whidbey GEN | 0.2053334452 | $847,935 | $847,935 | $174.11 | | |
| | Total Tax Rate: | 6.6934522006 | | | | | |
| | | | | Taxes w/Current Exemptions: | $5,675.63 | | |
| | | | | Taxes w/o Exemptions: | $5,675.63 | | |
Improvement / Building
| Improvement #1: | RESIDENTIAL | State Code: | Y | 1054.0 sqft | Value: | $268,641 |
| Bathrooms: | 1.5 | Bedrooms: | 2 | | Ceiling: | DRYWALL PAINTED | Cooling: | HEAT PUMP/CONV/V | | Exterior Wall/Cover: | CEMENT FIBER | Floor Covering: | HARDWOOD/CARP 20-80 | | Floor Structure: | SLAB ON GRADE | Foundation: | SLAB | | Interior Finish: | DRYWALL PAINT | Plumbing Fixture Cnt: | 9 | | Roof Slope: | 6" IN 12" | Roof Structure/Cover: | CJ ASPHALT |
|
| | Type | Description | Class CD | Sub Class CD | Year Built | Area |
| | BAS | BASE/MAIN FLOOR | 3 | 0 | 2019 | 1054.0 |
| | BGR | BASEMENT GARAGE | 3 | 0 | 2019 | 1054.0 |
| | OWC | OPEN WOOD PORCH W/STEPS/ROOF/C | 3 | 0 | 2019 | 436.0 |
| Improvement #2: | RESIDENTIAL | State Code: | Y | 450.0 sqft | Value: | $159,294 |
| Bathrooms: | 1 | Bedrooms: | 2 | | Ceiling: | DRYWALL PAINTED | Cooling: | HEAT PUMP/CONV/V | | Exterior Wall/Cover: | CEMENT FIBER | Floor Covering: | CARPET 100% | | Floor Structure: | WOOD W/SUBFLOOR | Foundation: | CONCRETE | | Interior Finish: | DRYWALL PAINT | Plumbing Fixture Cnt: | 5 | | Roof Slope: | 8" IN 12" | Roof Structure/Cover: | CJ ALUMINIUM HEAVY |
|
| | Type | Description | Class CD | Sub Class CD | Year Built | Area |
| | BAS | BASE/MAIN FLOOR | 3 | 0 | 1960 | 450.0 |
| | OWP | OPEN WOOD PORCH W/STEPS | 3 | 0 | 1960 | 180.5 |
| | UTY | STORAGE/UTILITY | 3 | 0 | 1960 | 1464.0 |
| | CPD | OPEN CARPORT DIRT FLOOR | 3 | 0 | 1960 | 120.0 |
Sketch
Property Image
Land
| 1 | 32 | AC (03.01-09.99) | 6.2700 | 0.00 | 0.00 | 0.00 | 1.00 | $420,000 | $0 |
Roll Value History
| 2026 | N/A | N/A | N/A | N/A | N/A |
| 2025 | $427,935 | $420,000 | $0 | $847,935 | $847,935 |
| 2024 | $432,337 | $390,000 | $0 | $822,337 | $822,337 |
| 2023 | $436,739 | $350,000 | $0 | $786,739 | $786,739 |
| 2022 | $399,465 | $350,000 | $0 | $749,465 | $749,465 |
| 2021 | $351,388 | $300,000 | $0 | $651,388 | $651,388 |
| 2020 | $342,551 | $260,000 | $0 | $602,551 | $602,551 |
| 2019 | $160,828 | $300,000 | $0 | $460,828 | $460,828 |
| 2018 | $67,138 | $250,000 | $0 | $317,138 | $317,138 |
| 2017 | $51,372 | $215,000 | $0 | $266,372 | $266,372 |
Deed and Sales History
Payout Agreement
| No payout information available.. |