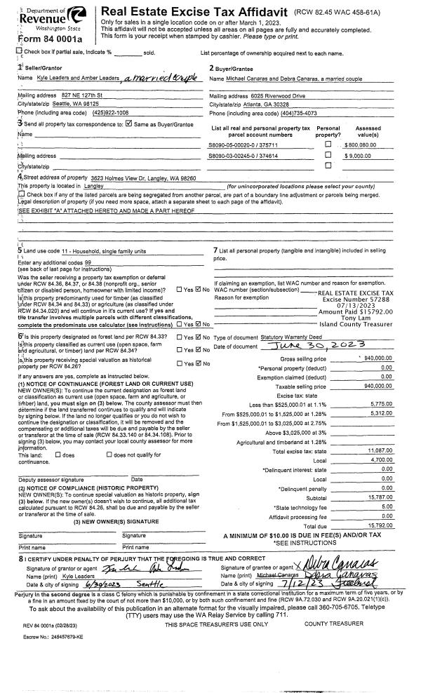
Property
Account |
| Property ID: | 812926 | Abbreviated Legal Description: | LOT 1 SP 163-17.32903-112-3330 AF#4428076 |
| Geographic ID: | R32903-099-3100 | Agent Code: | |
| Type: | Real | | |
| Tax Area: | 712 - APPRAISER-S Whid Schl Dist, outside Langley, improved, greater than 1 acre | Land Use Code | 11 |
| Open Space: | N | DFL | N |
| Historic Property: | N | Remodel Property: | N |
| Multi-Family Redevelopment: | N | | |
| Township: | 29 | Section: | 03 |
| Range: | R3 |
Location |
| Address: | 5901 MAXWELTON RD LANGLEY, WA 98260 | Mapsco: | |
| Neighborhood: | Cycle 4 | Map ID: | 724 |
| Neighborhood CD: | 4 |
Owner |
| Name: | CAUSEY, SHAUNA S | Owner ID: | 306857 |
| Mailing Address: | 5716 SW ADMIRAL WAY SEATTLE, WA 98116 | % Ownership: | 100.0000000000% |
| | | Exemptions: | |
Taxes and Assessment Details
Values
| (+) Improvement Homesite Value: | + | $0 | |
| (+) Improvement Non-Homesite Value: | + | $422,867 | |
| (+) Land Homesite Value: | + | $0 | |
| (+) Land Non-Homesite Value: | + | $370,000 | |
| (+) Curr Use (HS): | + | $0 | $0 |
| (+) Curr Use (NHS): | + | $0 | $0 |
| | | -------------------------- | |
| (=) Market Value: | = | $792,867 | |
| (–) Productivity Loss: | – | $0 | |
| | | -------------------------- | |
| (=) Subtotal: | = | $792,867 | |
| (+) Senior Appraised Value: | + | $0 | |
| (+) Non-Senior Appraised Value: | + | $792,867 | |
| | | -------------------------- | |
| (=) Total Appraised Value: | = | $792,867 | |
| (–) Senior Exemption Loss: | – | $0 | |
| (–) Exemption Loss: | – | $0 | |
| | | -------------------------- | |
| (=) Taxable Value: | = | $792,867 | |
Taxing Jurisdiction
| Owner: | CAUSEY, SHAUNA S | | |
| % Ownership: | 100.0000000000% | | |
| Total Value: | $792,867 | | |
| Tax Area: | 712 - APPRAISER-S Whid Schl Dist, outside Langley, improved, greater than 1 acre |
| CF | Conservation Futures | 0.0316035091 | $792,867 | $792,867 | $25.06 | | |
| FIRE3 | Fire & Rescue Dist #3 S Whidbey GEN | 1.2004855531 | $792,867 | $792,867 | $951.83 | | |
| HOBOND | Hospital BOND | 0.1910887512 | $792,867 | $792,867 | $151.51 | | |
| HOGEN | Hospital GEN | 0.3902502903 | $792,867 | $792,867 | $309.42 | | |
| CE | County Current Expense | 0.3708482477 | $792,867 | $792,867 | $294.03 | | |
| CR | County Roads | 0.4584763726 | $792,867 | $792,867 | $363.51 | | |
| ISLANDEMS | Hospital GEN (EMS) | 0.5000000000 | $792,867 | $792,867 | $396.43 | | |
| LIB | Library Sno-Isle GEN | 0.3153421757 | $792,867 | $792,867 | $250.02 | | |
| PORTWHID | Port of S Whidbey GEN | 0.1094540357 | $792,867 | $792,867 | $86.78 | | |
| SCH206BOND | School 206 BOND | 0.3161759235 | $792,867 | $792,867 | $250.69 | | |
| SCH206MO | School 206 Enrichment | 0.4547169547 | $792,867 | $792,867 | $360.53 | | |
| ST | State School | 1.3035497053 | $792,867 | $792,867 | $1,033.54 | | |
| ST2 | State School Part 2 | 0.8169543533 | $792,867 | $792,867 | $647.74 | | |
| SWHIDPRBD | P & R S Whidbey BOND | 0.0152817568 | $792,867 | $792,867 | $12.12 | | |
| SWHIDPRBD2 | P & R S Whidbey BOND2 | 0.0138911264 | $792,867 | $792,867 | $11.01 | | |
| SWHIDPRMT | P & R S Whidbey GEN | 0.2053334452 | $792,867 | $792,867 | $162.80 | | |
| | Total Tax Rate: | 6.6934522006 | | | | | |
| | | | | Taxes w/Current Exemptions: | $5,307.02 | | |
| | | | | Taxes w/o Exemptions: | $5,307.02 | | |
Improvement / Building
| Improvement #1: | RESIDENTIAL | State Code: | Y | 845.0 sqft | Value: | $139,567 |
| Bathrooms: | 1 | Bedrooms: | 1 | | Ceiling: | TONGUE & GROOVE | Cooling: | HEAT PUMP/CONV/V | | Exterior Wall/Cover: | WOOD SIDING | Floor Covering: | HARDWOOD 100% | | Floor Structure: | WOOD W/SUBFLOOR | Foundation: | CONCRETE | | Interior Finish: | DRYWALL PAINT | Plumbing Fixture Cnt: | 5 | | Roof Slope: | 3" IN 12" | Roof Structure/Cover: | CJ ALUMINIUM HEAVY |
|
| Improvement #2: | RESIDENTIAL | State Code: | Y | 1370.0 sqft | Value: | $188,200 |
| Bathrooms: | 1 | Bedrooms: | 1 | | Ceiling: | DRY WALL SPRAYED | Exterior Wall/Cover: | PLY/HARDBOARD T-111 | | Floor Covering: | CARPET/VINYL 80-20 | Floor Structure: | WOOD W/SUBFLOOR | | Foundation: | CONCRETE BLOCKS | Heating: | BASEBOARD ELECTRIC | | Interior Finish: | DRYWALL PAINT | Plumbing Fixture Cnt: | 6 | | Roof Slope: | FLAT | Roof Structure/Cover: | CJ BUILT-UP ROCK |
|
| | Type | Description | Class CD | Sub Class CD | Year Built | Area |
| | BAS | BASE/MAIN FLOOR | 3 | 0 | 1949 | 1370.0 |
| | OWC | OPEN WOOD PORCH W/STEPS/ROOF/C | 3 | 0 | 1949 | 72.0 |
| | ENP | ENCLOSED PORCH | 3 | 0 | 1949 | 336.0 |
| | DGR | DETACHED GARAGE | 3 | 0 | 1949 | 480.0 |
| | OWR | OPEN WOOD PORCH W/STEPS/ROOF | 3 | 0 | 1949 | 180.0 |
| | UTY | STORAGE/UTILITY | 3 | 0 | 1949 | 100.0 |
| | UTY | STORAGE/UTILITY | 3 | 0 | 1949 | 100.0 |
| Improvement #3: | RESIDENTIAL | State Code: | Y | 481.0 sqft | Value: | $95,100 |
| Bathrooms: | 1 | Bedrooms: | 1 | | Ceiling: | TONGUE & GROOVE | Cooling: | HEAT PUMP/CONV/V | | Exterior Wall/Cover: | WOOD SIDING | Floor Covering: | HARDWOOD 100% | | Floor Structure: | SLAB ABOVE GRADE | Foundation: | SLAB | | Interior Finish: | DRYWALL PAINT | Plumbing Fixture Cnt: | 5 | | Roof Slope: | 3" IN 12" | Roof Structure/Cover: | CJ ALUMINIUM HEAVY |
|
| | Type | Description | Class CD | Sub Class CD | Year Built | Area |
| | BAS | BASE/MAIN FLOOR | 3 | 0 | 1976 | 481.0 |
| | OP3 | OPEN PORCH W/ROOF | 3 | 0 | 1976 | 58.0 |
| | UTY | STORAGE/UTILITY | 3 | 0 | 1976 | 22.0 |
Sketch
Property Image
Land
| 1 | 32 | AC (03.01-09.99) | 5.3600 | 0.00 | 0.00 | 0.00 | 1.00 | $370,000 | $0 |
Roll Value History
| 2026 | N/A | N/A | N/A | N/A | N/A |
| 2025 | $422,867 | $370,000 | $0 | $792,867 | $792,867 |
| 2024 | $433,922 | $350,000 | $0 | $783,922 | $783,922 |
| 2023 | $440,671 | $330,000 | $0 | $770,671 | $770,671 |
| 2022 | $366,817 | $280,000 | $0 | $646,817 | $646,817 |
| 2021 | $317,218 | $230,000 | $0 | $547,218 | $547,218 |
| 2020 | $283,344 | $190,000 | $0 | $473,344 | $473,344 |
| 2019 | $205,545 | $250,000 | $0 | $455,545 | $455,545 |
| 2018 | $206,336 | $210,000 | $0 | $416,336 | $416,336 |
| 2017 | $204,223 | $190,000 | $0 | $394,223 | $394,223 |
Deed and Sales History
| 1 | 12/05/2022 | WD | Warranty Deed | WOLF-ROTTKAY, WERNER R | CAUSEY, SHAUNA S | | | $975,000.00 | 55346 | 4554732 |
| 2 | 04/09/2019 | QCD | Quit Claim Deed | WOLF-ROTTKAY, WERNER R | WOLF-ROTTKAY, WERNER R | | | $0.00 | 38827 | 4464743 |
Payout Agreement
| No payout information available.. |