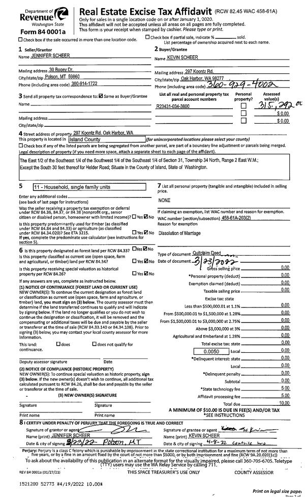
Property
Account |
| Property ID: | 812956 | Abbreviated Legal Description: | R3 T 29 S 07 LOT A BLA 154-19 AF# 4468654 |
| Geographic ID: | R32907-055-0650 | Agent Code: | |
| Type: | Real | | |
| Tax Area: | 712 - APPRAISER-S Whid Schl Dist, outside Langley, improved, greater than 1 acre | Land Use Code | 11 |
| Open Space: | N | DFL | N |
| Historic Property: | N | Remodel Property: | N |
| Multi-Family Redevelopment: | N | | |
| Township: | 29 | Section: | 07 |
| Range: | R3 |
Location |
| Address: | | Mapsco: | |
| Neighborhood: | Cycle 4 | Map ID: | 741 |
| Neighborhood CD: | 4 |
Owner |
| Name: | MA, JIN | Owner ID: | 302577 |
| Mailing Address: | KWOK YANG NG 1804 SCOTT RD FREELAND, WA 98249 | % Ownership: | 100.0000000000% |
| | | Exemptions: | |
Taxes and Assessment Details
Values
| (+) Improvement Homesite Value: | + | $0 | |
| (+) Improvement Non-Homesite Value: | + | $1,305,921 | |
| (+) Land Homesite Value: | + | $0 | |
| (+) Land Non-Homesite Value: | + | $420,000 | |
| (+) Curr Use (HS): | + | $0 | $0 |
| (+) Curr Use (NHS): | + | $0 | $0 |
| | | -------------------------- | |
| (=) Market Value: | = | $1,725,921 | |
| (–) Productivity Loss: | – | $0 | |
| | | -------------------------- | |
| (=) Subtotal: | = | $1,725,921 | |
| (+) Senior Appraised Value: | + | $0 | |
| (+) Non-Senior Appraised Value: | + | $1,725,921 | |
| | | -------------------------- | |
| (=) Total Appraised Value: | = | $1,725,921 | |
| (–) Senior Exemption Loss: | – | $0 | |
| (–) Exemption Loss: | – | $0 | |
| | | -------------------------- | |
| (=) Taxable Value: | = | $1,725,921 | |
Taxing Jurisdiction
| Owner: | MA, JIN | | |
| % Ownership: | 100.0000000000% | | |
| Total Value: | $1,725,921 | | |
| Tax Area: | 712 - APPRAISER-S Whid Schl Dist, outside Langley, improved, greater than 1 acre |
| CF | Conservation Futures | 0.0316035091 | $1,725,921 | $1,725,921 | $54.55 | | |
| FIRE3 | Fire & Rescue Dist #3 S Whidbey GEN | 1.2004855531 | $1,725,921 | $1,725,921 | $2,071.94 | | |
| HOBOND | Hospital BOND | 0.1910887512 | $1,725,921 | $1,725,921 | $329.80 | | |
| HOGEN | Hospital GEN | 0.3902502903 | $1,725,921 | $1,725,921 | $673.54 | | |
| CE | County Current Expense | 0.3708482477 | $1,725,921 | $1,725,921 | $640.05 | | |
| CR | County Roads | 0.4584763726 | $1,725,921 | $1,725,921 | $791.29 | | |
| ISLANDEMS | Hospital GEN (EMS) | 0.5000000000 | $1,725,921 | $1,725,921 | $862.96 | | |
| LIB | Library Sno-Isle GEN | 0.3153421757 | $1,725,921 | $1,725,921 | $544.26 | | |
| PORTWHID | Port of S Whidbey GEN | 0.1094540357 | $1,725,921 | $1,725,921 | $188.91 | | |
| SCH206BOND | School 206 BOND | 0.3161759235 | $1,725,921 | $1,725,921 | $545.69 | | |
| SCH206MO | School 206 Enrichment | 0.4547169547 | $1,725,921 | $1,725,921 | $784.81 | | |
| ST | State School | 1.3035497053 | $1,725,921 | $1,725,921 | $2,249.82 | | |
| ST2 | State School Part 2 | 0.8169543533 | $1,725,921 | $1,725,921 | $1,410.00 | | |
| SWHIDPRBD | P & R S Whidbey BOND | 0.0152817568 | $1,725,921 | $1,725,921 | $26.38 | | |
| SWHIDPRBD2 | P & R S Whidbey BOND2 | 0.0138911264 | $1,725,921 | $1,725,921 | $23.97 | | |
| SWHIDPRMT | P & R S Whidbey GEN | 0.2053334452 | $1,725,921 | $1,725,921 | $354.39 | | |
| | Total Tax Rate: | 6.6934522006 | | | | | |
| | | | | Taxes w/Current Exemptions: | $11,552.36 | | |
| | | | | Taxes w/o Exemptions: | $11,552.36 | | |
Improvement / Building
| Improvement #1: | RESIDENTIAL | State Code: | Y | 4576.1 sqft | Value: | $1,305,921 |
| Bathrooms: | 5 | Bedrooms: | 3 | | Ceiling: | DRYWALL PAINTED | Exterior Wall/Cover: | SHINGLE | | Floor Covering: | TILE CERAMIC | Floor Structure: | SLAB ABOVE GRADE | | Foundation: | SLAB/CONCRETE | Heating: | RADIANT FLOOR | | Interior Finish: | DRYWALL PAINT | Plumbing Fixture Cnt: | 21 | | Roof Slope: | 8" IN 12" | Roof Structure/Cover: | CJ ASPHALT |
|
| | Type | Description | Class CD | Sub Class CD | Year Built | Area |
| | BAS | BASE/MAIN FLOOR | 7 | 0 | 1996 | 2392.3 |
| | OP1 | OPEN PORCH SLAB | 7 | 0 | 1996 | 837.5 |
| | OP4 | OPEN PORCH W/CEILING-ROOF | 7 | 0 | 1996 | 179.0 |
| | BIG | BUILT IN GARAGE | 7 | 0 | 1996 | 931.0 |
| | UPS | UPPER STORY | 7 | 0 | 1996 | 1020.0 |
| | UPS | UPPER STORY | 7 | 0 | 1996 | 1163.8 |
| | BAW | BALCONY WOOD RAIL | 7 | 0 | 1996 | 96.0 |
| | OP4 | OPEN PORCH W/CEILING-ROOF | 7 | 0 | 1996 | 221.7 |
| | UTY | STORAGE/UTILITY | 7 | 0 | 1996 | 96.0 |
Sketch
Property Image
Land
| 1 | 32 | AC (03.01-09.99) | 5.0000 | 217800.00 | 0.00 | 0.00 | 1.00 | $420,000 | $0 |
Roll Value History
| 2026 | N/A | N/A | N/A | N/A | N/A |
| 2025 | $1,305,921 | $420,000 | $0 | $1,725,921 | $1,725,921 |
| 2024 | $1,320,886 | $390,000 | $0 | $1,710,886 | $1,710,886 |
| 2023 | $1,335,854 | $350,000 | $0 | $1,685,854 | $1,685,854 |
| 2022 | $1,219,801 | $350,000 | $0 | $1,569,801 | $1,569,801 |
| 2021 | $1,070,120 | $300,000 | $0 | $1,370,120 | $1,370,120 |
| 2020 | $1,019,366 | $260,000 | $0 | $1,279,366 | $1,279,366 |
| 2019 | $922,157 | $300,000 | $0 | $1,222,157 | $1,222,157 |
| 2018 | $924,829 | $230,000 | $0 | $1,154,829 | $1,154,829 |
| 2017 | $1,015,971 | $150,000 | $0 | $1,165,971 | $1,165,971 |
Deed and Sales History
| 1 | 12/28/2021 | QCD | Quit Claim Deed | NG, KWOK YANG (JACK) | MA, JIN | | | $0.00 | 51582 | 4537361 |
| 2 | 09/04/2019 | WD | Warranty Deed | DEMARTINI, TIMOTHY R | NG, KWOK YANG (JACK) | | | $1,749,000.00 | 40138 | 4470855 |
| 3 | 05/01/2019 | EZ | Easement | DEMARTINI, TIMOTHY R | BEAN, JULIANA | | | $0.00 | 38321 | 4462494 |
| 4 | 04/13/2018 | QCD | Quit Claim Deed | DEMARTINI, TIMOTHY R | DEMARTINI, TIMOTHY R | | | | 34554 | 4446292 |
Payout Agreement
| No payout information available.. |