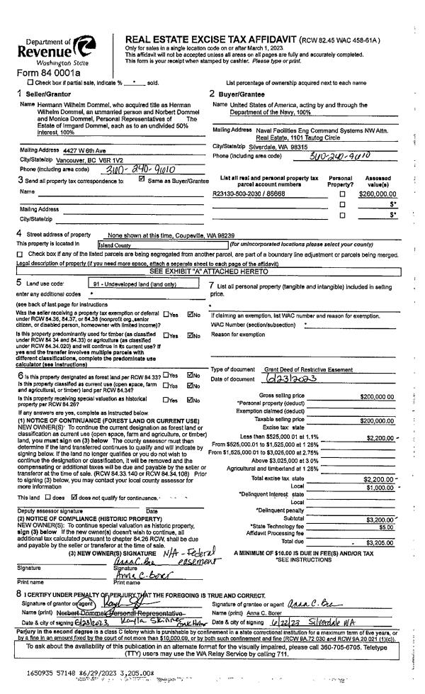
Property
Account |
| Property ID: | 813024 | Abbreviated Legal Description: | LOT 1 SP 325-14.23327-447-3400 AF#4383075 |
| Geographic ID: | R23327-447-3100 | Agent Code: | |
| Type: | Real | | |
| Tax Area: | 112 - APPRAISER-OH Schl Dist, outside OH, improved, greater than 1 acre | Land Use Code | 11 |
| Open Space: | N | DFL | N |
| Historic Property: | N | Remodel Property: | N |
| Multi-Family Redevelopment: | N | | |
| Township: | 33 | Section: | 27 |
| Range: | R2 |
Location |
| Address: | | Mapsco: | |
| Neighborhood: | Cycle 6 | Map ID: | 630 |
| Neighborhood CD: | 6 |
Owner |
| Name: | DEWAR JR, DOREL J | Owner ID: | 294080 |
| Mailing Address: | LEANNE D DEWAR 3144 ANGELA LN OAK HARBOR, WA 98277 | % Ownership: | 100.0000000000% |
| | | Exemptions: | |
Taxes and Assessment Details
Values
| (+) Improvement Homesite Value: | + | $0 | |
| (+) Improvement Non-Homesite Value: | + | $818,731 | |
| (+) Land Homesite Value: | + | $0 | |
| (+) Land Non-Homesite Value: | + | $350,000 | |
| (+) Curr Use (HS): | + | $0 | $0 |
| (+) Curr Use (NHS): | + | $0 | $0 |
| | | -------------------------- | |
| (=) Market Value: | = | $1,168,731 | |
| (–) Productivity Loss: | – | $0 | |
| | | -------------------------- | |
| (=) Subtotal: | = | $1,168,731 | |
| (+) Senior Appraised Value: | + | $0 | |
| (+) Non-Senior Appraised Value: | + | $1,168,731 | |
| | | -------------------------- | |
| (=) Total Appraised Value: | = | $1,168,731 | |
| (–) Senior Exemption Loss: | – | $0 | |
| (–) Exemption Loss: | – | $0 | |
| | | -------------------------- | |
| (=) Taxable Value: | = | $1,168,731 | |
Taxing Jurisdiction
| Owner: | DEWAR JR, DOREL J | | |
| % Ownership: | 100.0000000000% | | |
| Total Value: | $1,168,731 | | |
| Tax Area: | 112 - APPRAISER-OH Schl Dist, outside OH, improved, greater than 1 acre |
| CF | Conservation Futures | 0.0316035091 | $1,168,731 | $1,168,731 | $36.94 | | |
| CEM1 | Cemetery #1 | 0.0040320932 | $1,168,731 | $1,168,731 | $4.71 | | |
| FIRE2 | Fire & Rescue Dist #2 N Whidbey GEN | 0.5475949600 | $1,168,731 | $1,168,731 | $639.99 | | |
| HOBOND | Hospital BOND | 0.1910887512 | $1,168,731 | $1,168,731 | $223.33 | | |
| HOGEN | Hospital GEN | 0.3902502903 | $1,168,731 | $1,168,731 | $456.10 | | |
| CE | County Current Expense | 0.3708482477 | $1,168,731 | $1,168,731 | $433.42 | | |
| CR | County Roads | 0.4584763726 | $1,168,731 | $1,168,731 | $535.84 | | |
| ISLANDEMS | Hospital GEN (EMS) | 0.5000000000 | $1,168,731 | $1,168,731 | $584.37 | | |
| LIB | Library Sno-Isle GEN | 0.3153421757 | $1,168,731 | $1,168,731 | $368.55 | | |
| NWHIDPRMT | P & R N Whidbey GEN | 0.2004466701 | $1,168,731 | $1,168,731 | $234.27 | | |
| SCH201MO | School 201 Enrichment | 1.8559231640 | $1,168,731 | $1,168,731 | $2,169.07 | | |
| ST | State School | 1.3035497053 | $1,168,731 | $1,168,731 | $1,523.50 | | |
| ST2 | State School Part 2 | 0.8169543533 | $1,168,731 | $1,168,731 | $954.80 | | |
| | Total Tax Rate: | 6.9861102925 | | | | | |
| | | | | Taxes w/Current Exemptions: | $8,164.89 | | |
| | | | | Taxes w/o Exemptions: | $8,164.89 | | |
Improvement / Building
| Improvement #1: | RESIDENTIAL | State Code: | Y | 4051.1 sqft | Value: | $818,731 |
| Bathrooms: | 2.5 | Bedrooms: | 3 | | Ceiling: | DRYWALL PAINTED | Exterior Wall/Cover: | CEMENT FIBER | | Floor Covering: | HARDWOOD 100% | Floor Structure: | WOOD W/SUBFLOOR | | Foundation: | CONCRETE | Heating: | FHA GAS | | Interior Finish: | DRYWALL PAINT | Plumbing Fixture Cnt: | 11 | | Roof Slope: | 8" IN 12" | Roof Structure/Cover: | CJ ASPHALT |
|
| | Type | Description | Class CD | Sub Class CD | Year Built | Area |
| | BAS | BASE/MAIN FLOOR | 4 | 0 | 2008 | 2587.3 |
| | DWN | DOWNSTAIRS LIVING AREA | 4 | 0 | 2008 | 1463.8 |
| | OP4 | OPEN PORCH W/CEILING-ROOF | 4 | 0 | 2008 | 64.8 |
| | OP4 | OPEN PORCH W/CEILING-ROOF | 4 | 0 | 2008 | 32.0 |
| | AGR | ATTACHED GARAGE | 4 | 0 | 2008 | 1020.9 |
| | AGR | ATTACHED GARAGE | 4 | 0 | 2008 | 714.0 |
| | UTY | STORAGE/UTILITY | 4 | 0 | 2008 | 626.9 |
| | OWP | OPEN WOOD PORCH W/STEPS | 4 | 0 | 2008 | 749.6 |
| | DGR | DETACHED GARAGE | 4 | 0 | 2008 | 864.0 |
Sketch
Property Image
Land
| 1 | 32 | AC (03.01-09.99) | 5.0100 | 435600.00 | 0.00 | 0.00 | 1.00 | $350,000 | $0 |
Roll Value History
| 2026 | N/A | N/A | N/A | N/A | N/A |
| 2025 | $818,731 | $350,000 | $0 | $1,168,731 | $1,168,731 |
| 2024 | $825,429 | $330,000 | $0 | $1,155,429 | $1,155,429 |
| 2023 | $832,575 | $320,000 | $0 | $1,152,575 | $1,152,575 |
| 2022 | $714,214 | $320,000 | $0 | $1,034,214 | $1,034,214 |
| 2021 | $628,086 | $220,000 | $0 | $848,086 | $848,086 |
| 2020 | $612,441 | $220,000 | $0 | $832,441 | $832,441 |
| 2019 | $515,806 | $260,000 | $0 | $775,806 | $775,806 |
| 2018 | $517,218 | $225,000 | $0 | $742,218 | $742,218 |
| 2017 | $520,044 | $100,000 | $0 | $620,044 | $620,044 |
| 2016 | $506,938 | $80,000 | $0 | $586,938 | $586,938 |
| 2015 | $512,389 | $97,500 | $0 | $609,889 | $609,889 |
Deed and Sales History
| 1 | 04/22/2020 | QCD | Quit Claim Deed | DEWAR JR TRUSTEE, DOREL J | DEWAR JR, DOREL J | | | $0.00 | 42845 | 4485549 |
Payout Agreement
| No payout information available.. |