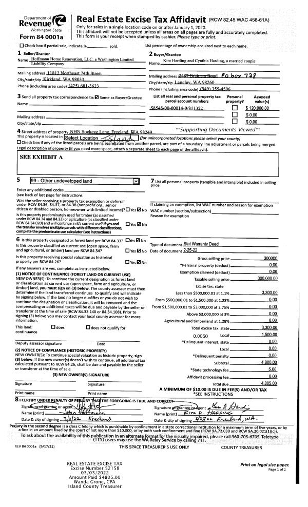
Property
Account |
| Property ID: | 813032 | Abbreviated Legal Description: | LOT 1 SP 336-17.23114-193-2200 AF#4436147 |
| Geographic ID: | R23114-198-2110 | Agent Code: | |
| Type: | Real | | |
| Tax Area: | 512 - APPRAISER-Stan/Cam Schl Dist, improved, greater than 1 acre | Land Use Code | 11 |
| Open Space: | N | DFL | N |
| Historic Property: | N | Remodel Property: | N |
| Multi-Family Redevelopment: | N | | |
| Township: | 31 | Section: | 14 |
| Range: | R2 |
Location |
| Address: | 641 KODIAK AVE CAMANO ISLAND, WA 98282 | Mapsco: | |
| Neighborhood: | Cycle 5 | Map ID: | 481 |
| Neighborhood CD: | 5 |
Owner |
| Name: | EVERETT, RONALD D | Owner ID: | 285215 |
| Mailing Address: | LAVONNE M EVERETT 641 KODIAK AVE CAMANO ISLAND, WA 98282 | % Ownership: | 100.0000000000% |
| | | Exemptions: | |
Taxes and Assessment Details
Values
| (+) Improvement Homesite Value: | + | $0 | |
| (+) Improvement Non-Homesite Value: | + | $463,199 | |
| (+) Land Homesite Value: | + | $0 | |
| (+) Land Non-Homesite Value: | + | $250,000 | |
| (+) Curr Use (HS): | + | $0 | $0 |
| (+) Curr Use (NHS): | + | $0 | $0 |
| | | -------------------------- | |
| (=) Market Value: | = | $713,199 | |
| (–) Productivity Loss: | – | $0 | |
| | | -------------------------- | |
| (=) Subtotal: | = | $713,199 | |
| (+) Senior Appraised Value: | + | $0 | |
| (+) Non-Senior Appraised Value: | + | $713,199 | |
| | | -------------------------- | |
| (=) Total Appraised Value: | = | $713,199 | |
| (–) Senior Exemption Loss: | – | $0 | |
| (–) Exemption Loss: | – | $0 | |
| | | -------------------------- | |
| (=) Taxable Value: | = | $713,199 | |
Taxing Jurisdiction
| Owner: | EVERETT, RONALD D | | |
| % Ownership: | 100.0000000000% | | |
| Total Value: | $713,199 | | |
| Tax Area: | 512 - APPRAISER-Stan/Cam Schl Dist, improved, greater than 1 acre |
| CF | Conservation Futures | 0.0316035091 | $713,199 | $713,199 | $22.54 | | |
| EMS1 | Fire & Rescue Dist #1 Camano GEN (EMS) | 0.3677864386 | $713,199 | $713,199 | $262.30 | | |
| FIRE1 | Fire & Rescue Dist #1 Camano GEN | 1.2502910536 | $713,199 | $713,199 | $891.71 | | |
| FIRE1BOND | Fire & Rescue Dist #1 Camano BOND | 0.1570001679 | $713,199 | $713,199 | $111.97 | | |
| CE | County Current Expense | 0.3708482477 | $713,199 | $713,199 | $264.49 | | |
| CR | County Roads | 0.4584763726 | $713,199 | $713,199 | $326.98 | | |
| LCIB | Library Sno-Isle BOND (Camano Island) | 0.0396325772 | $713,199 | $713,199 | $28.27 | | |
| LIB | Library Sno-Isle GEN | 0.3153421757 | $713,199 | $713,199 | $224.90 | | |
| SCH205_401 | School 205-401 Enrichment | 1.2698420524 | $713,199 | $713,199 | $905.65 | | |
| SCH205BOND | School 205-401 BOND | 0.9396497583 | $713,199 | $713,199 | $670.16 | | |
| ST | State School | 1.3035497053 | $713,199 | $713,199 | $929.69 | | |
| ST2 | State School Part 2 | 0.8169543533 | $713,199 | $713,199 | $582.65 | | |
| | Total Tax Rate: | 7.3209764117 | | | | | |
| | | | | Taxes w/Current Exemptions: | $5,221.31 | | |
| | | | | Taxes w/o Exemptions: | $5,221.31 | | |
Improvement / Building
| Improvement #1: | RESIDENTIAL | State Code: | Y | 2097.5 sqft | Value: | $463,199 |
| Bathrooms: | 2.5 | Bedrooms: | 3 | | Ceiling: | DRYWALL PAINTED | Exterior Wall/Cover: | WOOD SIDING | | Floor Covering: | CARPET/VINYL 80-20 | Floor Structure: | WOOD W/SUBFLOOR | | Foundation: | CONCRETE | Heating: | FHA GAS | | Interior Finish: | DRYWALL PAINT | Plumbing Fixture Cnt: | 10 | | Roof Slope: | 6" IN 12" | Roof Structure/Cover: | CJ ASPHALT |
|
| | Type | Description | Class CD | Sub Class CD | Year Built | Area |
| | BAS | BASE/MAIN FLOOR | 4 | 0 | 2010 | 2097.5 |
| | AGR | ATTACHED GARAGE | 4 | 0 | 2010 | 637.0 |
| | OP4 | OPEN PORCH W/CEILING-ROOF | 4 | 0 | 2010 | 120.0 |
| | OP3 | OPEN PORCH W/ROOF | 4 | 0 | 2010 | 27.0 |
| | OWP | OPEN WOOD PORCH W/STEPS | 4 | 0 | 2010 | 636.0 |
Sketch
Property Image
Land
| 1 | 16 | AC (00.51-01.00) | 0.5100 | 22215.60 | 0.00 | 0.00 | 1.00 | $250,000 | $0 |
Roll Value History
| 2026 | N/A | N/A | N/A | N/A | N/A |
| 2025 | $463,199 | $250,000 | $0 | $713,199 | $713,199 |
| 2024 | $466,770 | $230,000 | $0 | $696,770 | $696,770 |
| 2023 | $470,596 | $230,000 | $0 | $700,596 | $700,596 |
| 2022 | $429,604 | $210,000 | $0 | $639,604 | $639,604 |
| 2021 | $373,116 | $150,000 | $0 | $523,116 | $523,116 |
| 2020 | $362,377 | $120,000 | $0 | $482,377 | $482,377 |
| 2019 | $272,364 | $160,000 | $0 | $432,364 | $432,364 |
| 2018 | $273,095 | $120,000 | $0 | $393,095 | $393,095 |
| 2017 | $274,555 | $50,000 | $0 | $324,555 | $324,555 |
Deed and Sales History
| 1 | 01/29/2018 | WD | Warranty Deed | OLSSON, STEPHEN | EVERETT, RONALD D | | | $410,000.00 | 32908 | 4438980 |
Payout Agreement
| No payout information available.. |