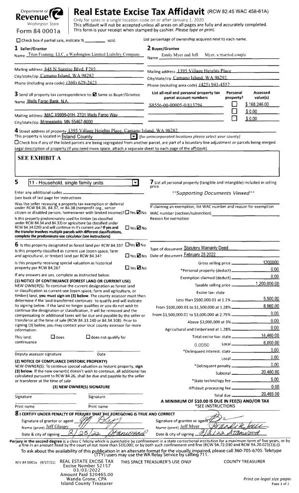
Property
Account |
| Property ID: | 813033 | Abbreviated Legal Description: | LOT 2 SP 336-17.23114-193-2200 AF#4436147 |
| Geographic ID: | R23114-183-2110 | Agent Code: | |
| Type: | Real | | |
| Tax Area: | 510 - APPRAISER-Stan/Cam Schl Dist, improved & 1 acre or less | Land Use Code | 11 |
| Open Space: | N | DFL | N |
| Historic Property: | N | Remodel Property: | N |
| Multi-Family Redevelopment: | N | | |
| Township: | 31 | Section: | 14 |
| Range: | R2 |
Location |
| Address: | 635 KODIAK AVE CAMANO ISLAND, WA 98282 | Mapsco: | |
| Neighborhood: | Cycle 5 | Map ID: | 481 |
| Neighborhood CD: | 5 |
Owner |
| Name: | SMITH, MARK | Owner ID: | 295445 |
| Mailing Address: | CATHERINE SMITH 635 KODIAK AVE CAMANO ISLAND, WA 98282 | % Ownership: | 100.0000000000% |
| | | Exemptions: | |
Taxes and Assessment Details
Values
| (+) Improvement Homesite Value: | + | $0 | |
| (+) Improvement Non-Homesite Value: | + | $474,680 | |
| (+) Land Homesite Value: | + | $0 | |
| (+) Land Non-Homesite Value: | + | $250,000 | |
| (+) Curr Use (HS): | + | $0 | $0 |
| (+) Curr Use (NHS): | + | $0 | $0 |
| | | -------------------------- | |
| (=) Market Value: | = | $724,680 | |
| (–) Productivity Loss: | – | $0 | |
| | | -------------------------- | |
| (=) Subtotal: | = | $724,680 | |
| (+) Senior Appraised Value: | + | $0 | |
| (+) Non-Senior Appraised Value: | + | $724,680 | |
| | | -------------------------- | |
| (=) Total Appraised Value: | = | $724,680 | |
| (–) Senior Exemption Loss: | – | $0 | |
| (–) Exemption Loss: | – | $0 | |
| | | -------------------------- | |
| (=) Taxable Value: | = | $724,680 | |
Taxing Jurisdiction
| Owner: | SMITH, MARK | | |
| % Ownership: | 100.0000000000% | | |
| Total Value: | $724,680 | | |
| Tax Area: | 510 - APPRAISER-Stan/Cam Schl Dist, improved & 1 acre or less |
| CF | Conservation Futures | 0.0316035091 | $724,680 | $724,680 | $22.90 | | |
| EMS1 | Fire & Rescue Dist #1 Camano GEN (EMS) | 0.3677864386 | $724,680 | $724,680 | $266.53 | | |
| FIRE1 | Fire & Rescue Dist #1 Camano GEN | 1.2502910536 | $724,680 | $724,680 | $906.06 | | |
| FIRE1BOND | Fire & Rescue Dist #1 Camano BOND | 0.1570001679 | $724,680 | $724,680 | $113.77 | | |
| CE | County Current Expense | 0.3708482477 | $724,680 | $724,680 | $268.75 | | |
| CR | County Roads | 0.4584763726 | $724,680 | $724,680 | $332.25 | | |
| LCIB | Library Sno-Isle BOND (Camano Island) | 0.0396325772 | $724,680 | $724,680 | $28.72 | | |
| LIB | Library Sno-Isle GEN | 0.3153421757 | $724,680 | $724,680 | $228.52 | | |
| SCH205_401 | School 205-401 Enrichment | 1.2698420524 | $724,680 | $724,680 | $920.23 | | |
| SCH205BOND | School 205-401 BOND | 0.9396497583 | $724,680 | $724,680 | $680.95 | | |
| ST | State School | 1.3035497053 | $724,680 | $724,680 | $944.66 | | |
| ST2 | State School Part 2 | 0.8169543533 | $724,680 | $724,680 | $592.03 | | |
| | Total Tax Rate: | 7.3209764117 | | | | | |
| | | | | Taxes w/Current Exemptions: | $5,305.37 | | |
| | | | | Taxes w/o Exemptions: | $5,305.37 | | |
Improvement / Building
| Improvement #1: | RESIDENTIAL | State Code: | Y | 1794.0 sqft | Value: | $474,680 |
| Bathrooms: | 2 | Bedrooms: | 3 | | Ceiling: | DRYWALL PAINTED | Cooling: | HEAT PUMP/CONV/V | | Exterior Wall/Cover: | CEMENT FIBER | Floor Covering: | CARPET/VINYL 20-80 | | Floor Structure: | WOOD W/SUBFLOOR | Foundation: | CONCRETE | | Interior Finish: | DRYWALL PAINT | Plumbing Fixture Cnt: | 12 | | Roof Slope: | 6" IN 12" | Roof Structure/Cover: | CJ ASPHALT |
|
| | Type | Description | Class CD | Sub Class CD | Year Built | Area |
| | BAS | BASE/MAIN FLOOR | 4 | 0 | 2020 | 1794.0 |
| | AGR | ATTACHED GARAGE | 4 | 0 | 2020 | 484.0 |
| | OWP | OPEN WOOD PORCH W/STEPS | 4 | 0 | 2020 | 142.0 |
| | OWP | OPEN WOOD PORCH W/STEPS | 4 | 0 | 2020 | 281.0 |
Sketch
Property Image
Land
| 1 | 16 | AC (00.51-01.00) | 0.5500 | 23522.40 | 0.00 | 0.00 | 1.00 | $250,000 | $0 |
Roll Value History
| 2026 | N/A | N/A | N/A | N/A | N/A |
| 2025 | $474,680 | $250,000 | $0 | $724,680 | $724,680 |
| 2024 | $478,478 | $230,000 | $0 | $708,478 | $708,478 |
| 2023 | $482,275 | $230,000 | $0 | $712,275 | $712,275 |
| 2022 | $441,285 | $210,000 | $0 | $651,285 | $651,285 |
| 2021 | $398,489 | $150,000 | $0 | $548,489 | $548,489 |
| 2020 | $390,992 | $120,000 | $0 | $510,992 | $510,992 |
| 2019 | $0 | $80,000 | $0 | $80,000 | $80,000 |
| 2018 | $0 | $70,000 | $0 | $70,000 | $70,000 |
| 2017 | $0 | $30,000 | $0 | $30,000 | $30,000 |
Deed and Sales History
| 1 | 07/28/2020 | WD | Warranty Deed | DOUBLE DIAMOND HOMES, LLC | SMITH, MARK | | | $529,000.00 | 44063 | 4492861 |
| 2 | 10/17/2019 | QCD | Quit Claim Deed | REDMOND, STEPHEN M | DOUBLE DIAMOND HOMES, LLC | | | $0.00 | 41177 | 4475926 |
| 3 | 06/26/2018 | QCD | Quit Claim Deed | OLSSON, STEPHEN | REDMOND, STEPHEN M | | | $0.00 | 36633 | 4454931 |
Payout Agreement
| No payout information available.. |