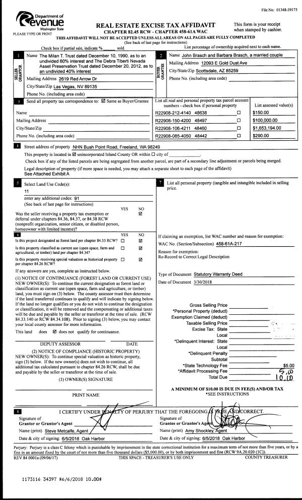
Property
Account |
| Property ID: | 813037 | Abbreviated Legal Description: | LOT 2 SP 145-16.32933-433-4250 AF#4403127 |
| Geographic ID: | R32933-419-4250 | Agent Code: | |
| Type: | Real | | |
| Tax Area: | 712 - APPRAISER-S Whid Schl Dist, outside Langley, improved, greater than 1 acre | Land Use Code | 11 |
| Open Space: | N | DFL | N |
| Historic Property: | N | Remodel Property: | N |
| Multi-Family Redevelopment: | N | | |
| Township: | 29 | Section: | 33 |
| Range: | R3 |
Location |
| Address: | 3513 WILDES RD CLINTON, WA 98236 | Mapsco: | |
| Neighborhood: | Cycle 4 | Map ID: | 837 |
| Neighborhood CD: | 4 |
Owner |
| Name: | MACLEOD, DIANNA | Owner ID: | 285916 |
| Mailing Address: | 3513 WILDES ROAD CLINTON, WA 98236 | % Ownership: | 100.0000000000% |
| | | Exemptions: | SNR/DSBL |
Taxes and Assessment Details
Values
| (+) Improvement Homesite Value: | + | $221,085 | |
| (+) Improvement Non-Homesite Value: | + | $20,274 | |
| (+) Land Homesite Value: | + | $370,000 | |
| (+) Land Non-Homesite Value: | + | $0 | |
| (+) Curr Use (HS): | + | $0 | $0 |
| (+) Curr Use (NHS): | + | $0 | $0 |
| | | -------------------------- | |
| (=) Market Value: | = | $611,359 | |
| (–) Productivity Loss: | – | $0 | |
| | | -------------------------- | |
| (=) Subtotal: | = | $611,359 | |
| (+) Senior Appraised Value: | + | $409,795 | |
| (+) Non-Senior Appraised Value: | + | $20,274 | |
| | | -------------------------- | |
| (=) Total Appraised Value: | = | $430,069 | |
| (–) Senior Exemption Loss: | – | $245,877 | |
| (–) Exemption Loss: | – | $0 | |
| | | -------------------------- | |
| (=) Taxable Value: | = | $184,192 | |
Taxing Jurisdiction
| Owner: | MACLEOD, DIANNA | | |
| % Ownership: | 100.0000000000% | | |
| Total Value: | $611,359 | | |
| Tax Area: | 712 - APPRAISER-S Whid Schl Dist, outside Langley, improved, greater than 1 acre |
| CF | Conservation Futures | 0.0316035091 | $611,359 | $184,192 | $5.82 | | |
| FIRE3 | Fire & Rescue Dist #3 S Whidbey GEN | 1.2004855531 | $611,359 | $184,192 | $221.12 | | |
| HOBOND | Hospital BOND | 0.0000000000 | $611,359 | $20,274 | $3.87 | | |
| HOGEN | Hospital GEN | 0.3902502903 | $611,359 | $184,192 | $71.88 | | |
| CE | County Current Expense | 0.3708482477 | $611,359 | $184,192 | $68.31 | | |
| CR | County Roads | 0.4584763726 | $611,359 | $184,192 | $84.45 | | |
| ISLANDEMS | Hospital GEN (EMS) | 0.5000000000 | $611,359 | $184,192 | $92.10 | | |
| LIB | Library Sno-Isle GEN | 0.3153421757 | $611,359 | $184,192 | $58.08 | | |
| PORTWHID | Port of S Whidbey GEN | 0.1094540357 | $611,359 | $184,192 | $20.16 | | |
| SCH206BOND | School 206 BOND | 0.3161759235 | $611,359 | $184,192 | $58.24 | | |
| SCH206MO | School 206 Enrichment | 0.0000000000 | $611,359 | $20,274 | $9.22 | | |
| ST | State School | 1.3035497053 | $611,359 | $184,192 | $240.10 | | |
| ST2 | State School Part 2 | 0.0000000000 | $611,359 | $20,274 | $16.56 | | |
| SWHIDPRBD | P & R S Whidbey BOND | 0.0000000000 | $611,359 | $20,274 | $0.31 | | |
| SWHIDPRBD2 | P & R S Whidbey BOND2 | 0.0000000000 | $611,359 | $20,274 | $0.28 | | |
| SWHIDPRMT | P & R S Whidbey GEN | 0.2053334452 | $611,359 | $184,192 | $37.82 | | |
| | Total Tax Rate: | 5.2015192582 | | | | | |
| | | | | Taxes w/Current Exemptions: | $988.32 | | |
| | | | | Taxes w/o Exemptions: | $4,092.10 | | |
Improvement / Building
| Improvement #1: | RESIDENTIAL | State Code: | Y | 996.0 sqft | Value: | $241,359 |
| Bathrooms: | 1 | Bedrooms: | 1 | | Ceiling: | DRYWALL PAINTED | Exterior Wall/Cover: | CEMENT FIBER | | Floor Covering: | TILE CERAMIC | Floor Structure: | WOOD W/SUBFLOOR | | Foundation: | CONCRETE | Heating: | WALL HEAT ELECTRIC | | Interior Finish: | DRYWALL PAINT | Plumbing Fixture Cnt: | 7 | | Roof Slope: | 3" IN 12" | Roof Structure/Cover: | BEAM ALUMINUM HEAVY |
|
| | Type | Description | Class CD | Sub Class CD | Year Built | Area |
| | BAS | BASE/MAIN FLOOR | 3 | 0 | 2017 | 996.0 |
| | OWP | OPEN WOOD PORCH W/STEPS | 3 | 0 | 2017 | 32.0 |
| | OCP | OPEN CARPORT | 3 | 0 | 2017 | 280.0 |
| | OWP | OPEN WOOD PORCH W/STEPS | 3 | 0 | 2017 | 60.0 |
| | OWP | OPEN WOOD PORCH W/STEPS | 3 | 0 | 2017 | 360.0 |
| | OWR | OPEN WOOD PORCH W/STEPS/ROOF | 3 | 0 | 2017 | 180.0 |
Sketch
Property Image
Land
| 1 | 32 | AC (03.01-09.99) | 0.0000 | 0.00 | 0.00 | 0.00 | 1.00 | $370,000 | $0 |
Roll Value History
| 2026 | N/A | N/A | N/A | N/A | N/A |
| 2025 | $241,359 | $370,000 | $0 | $611,359 | $184,192 |
| 2024 | $243,337 | $350,000 | $0 | $593,337 | $184,358 |
| 2023 | $245,316 | $330,000 | $0 | $575,316 | $184,525 |
| 2022 | $223,934 | $280,000 | $0 | $503,934 | $182,728 |
| 2021 | $196,283 | $230,000 | $0 | $426,283 | $180,406 |
| 2020 | $172,744 | $150,000 | $0 | $322,744 | $322,744 |
| 2019 | $5,000 | $135,000 | $0 | $140,000 | $140,000 |
| 2018 | $5,000 | $130,000 | $0 | $135,000 | $135,000 |
| 2017 | $5,000 | $74,844 | $0 | $79,844 | $79,844 |
| 2016 | $0 | $64,865 | $0 | $64,865 | $64,865 |
Deed and Sales History
| 1 | 12/28/2016 | QCD | Quit Claim Deed | SCHLICHT, WILLIAM S | MACLEOD, DIANNA | | | $0.00 | 35443 | 4449871 |
Payout Agreement
| No payout information available.. |