Property
Account |
| Property ID: | 813047 | Abbreviated Legal Description: | LOT 2 SP 231-16.32904-036-3290 AF#4413001 |
| Geographic ID: | R32904-014-3290 | Agent Code: | |
| Type: | Real | | |
| Tax Area: | 712 - APPRAISER-S Whid Schl Dist, outside Langley, improved, greater than 1 acre | Land Use Code | 11 |
| Open Space: | N | DFL | N |
| Historic Property: | N | Remodel Property: | N |
| Multi-Family Redevelopment: | N | | |
| Township: | 29 | Section: | 04 |
| Range: | R3 |
Location |
| Address: | 5193 STRIDER RD LANGLEY, WA 98260 | Mapsco: | |
| Neighborhood: | Cycle 4 | Map ID: | 729 |
| Neighborhood CD: | 4 |
Owner |
| Name: | RONGREN, SALLY | Owner ID: | 289424 |
| Mailing Address: | ERIC RONGREN 5193 STRIDER RD LANGLEY, WA 98260 | % Ownership: | 100.0000000000% |
| | | Exemptions: | |
Taxes and Assessment Details
Values
| (+) Improvement Homesite Value: | + | $0 | |
| (+) Improvement Non-Homesite Value: | + | $549,451 | |
| (+) Land Homesite Value: | + | $0 | |
| (+) Land Non-Homesite Value: | + | $380,000 | |
| (+) Curr Use (HS): | + | $0 | $0 |
| (+) Curr Use (NHS): | + | $0 | $0 |
| | | -------------------------- | |
| (=) Market Value: | = | $929,451 | |
| (–) Productivity Loss: | – | $0 | |
| | | -------------------------- | |
| (=) Subtotal: | = | $929,451 | |
| (+) Senior Appraised Value: | + | $0 | |
| (+) Non-Senior Appraised Value: | + | $929,451 | |
| | | -------------------------- | |
| (=) Total Appraised Value: | = | $929,451 | |
| (–) Senior Exemption Loss: | – | $0 | |
| (–) Exemption Loss: | – | $0 | |
| | | -------------------------- | |
| (=) Taxable Value: | = | $929,451 | |
Taxing Jurisdiction
| Owner: | RONGREN, SALLY | | |
| % Ownership: | 100.0000000000% | | |
| Total Value: | $929,451 | | |
| Tax Area: | 712 - APPRAISER-S Whid Schl Dist, outside Langley, improved, greater than 1 acre |
| CF | Conservation Futures | 0.0316035091 | $929,451 | $929,451 | $29.37 | | |
| FIRE3 | Fire & Rescue Dist #3 S Whidbey GEN | 1.2004855531 | $929,451 | $929,451 | $1,115.79 | | |
| HOBOND | Hospital BOND | 0.1910887512 | $929,451 | $929,451 | $177.61 | | |
| HOGEN | Hospital GEN | 0.3902502903 | $929,451 | $929,451 | $362.72 | | |
| CE | County Current Expense | 0.3708482477 | $929,451 | $929,451 | $344.69 | | |
| CR | County Roads | 0.4584763726 | $929,451 | $929,451 | $426.13 | | |
| ISLANDEMS | Hospital GEN (EMS) | 0.5000000000 | $929,451 | $929,451 | $464.73 | | |
| LIB | Library Sno-Isle GEN | 0.3153421757 | $929,451 | $929,451 | $293.10 | | |
| PORTWHID | Port of S Whidbey GEN | 0.1094540357 | $929,451 | $929,451 | $101.73 | | |
| SCH206BOND | School 206 BOND | 0.3161759235 | $929,451 | $929,451 | $293.87 | | |
| SCH206MO | School 206 Enrichment | 0.4547169547 | $929,451 | $929,451 | $422.64 | | |
| ST | State School | 1.3035497053 | $929,451 | $929,451 | $1,211.59 | | |
| ST2 | State School Part 2 | 0.8169543533 | $929,451 | $929,451 | $759.32 | | |
| SWHIDPRBD | P & R S Whidbey BOND | 0.0152817568 | $929,451 | $929,451 | $14.20 | | |
| SWHIDPRBD2 | P & R S Whidbey BOND2 | 0.0138911264 | $929,451 | $929,451 | $12.91 | | |
| SWHIDPRMT | P & R S Whidbey GEN | 0.2053334452 | $929,451 | $929,451 | $190.85 | | |
| | Total Tax Rate: | 6.6934522006 | | | | | |
| | | | | Taxes w/Current Exemptions: | $6,221.25 | | |
| | | | | Taxes w/o Exemptions: | $6,221.25 | | |
Improvement / Building
| Improvement #1: | RESIDENTIAL | State Code: | Y | 2254.2 sqft | Value: | $549,451 |
| Bathrooms: | 2.5 | Bedrooms: | 3 | | Ceiling: | DRYWALL PAINTED | Cooling: | HEAT PUMP/CONV/V | | Exterior Wall/Cover: | CEMENT FIBER | Floor Covering: | HARDWOOD/CARP 20-80 | | Floor Structure: | WOOD W/SUBFLOOR | Foundation: | CONCRETE | | Interior Finish: | DRYWALL PAINT | Plumbing Fixture Cnt: | 14 | | Roof Slope: | 6" IN 12" | Roof Structure/Cover: | CJ ASPHALT |
|
| | Type | Description | Class CD | Sub Class CD | Year Built | Area |
| | BAS | BASE/MAIN FLOOR | 4 | 0 | 2018 | 2254.2 |
| | AGR | ATTACHED GARAGE | 4 | 0 | 2018 | 722.0 |
| | OP4 | OPEN PORCH W/CEILING-ROOF | 4 | 0 | 2018 | 336.0 |
| | OWC | OPEN WOOD PORCH W/STEPS/ROOF/C | 4 | 0 | 2018 | 320.0 |
| | OWP | OPEN WOOD PORCH W/STEPS | 4 | 0 | 2018 | 240.0 |
| | oPOL | POLE BARN | 4 | 0 | 2018 | 720.0 |
Sketch
Property Image
Land
| 1 | 32 | AC (03.01-09.99) | 4.7800 | 437778.00 | 0.00 | 0.00 | 1.00 | $380,000 | $0 |
Roll Value History
| 2026 | N/A | N/A | N/A | N/A | N/A |
| 2025 | $549,451 | $380,000 | $0 | $929,451 | $929,451 |
| 2024 | $553,802 | $350,000 | $0 | $903,802 | $903,802 |
| 2023 | $558,152 | $330,000 | $0 | $888,152 | $888,152 |
| 2022 | $510,722 | $290,000 | $0 | $800,722 | $800,722 |
| 2021 | $449,418 | $230,000 | $0 | $679,418 | $679,418 |
| 2020 | $413,883 | $190,000 | $0 | $603,883 | $603,883 |
| 2019 | $313,579 | $250,000 | $0 | $563,579 | $563,579 |
| 2018 | $157,873 | $122,500 | $0 | $280,373 | $280,373 |
| 2017 | $0 | $75,000 | $0 | $75,000 | $75,000 |
| 2016 | $0 | $65,000 | $0 | $65,000 | $65,000 |
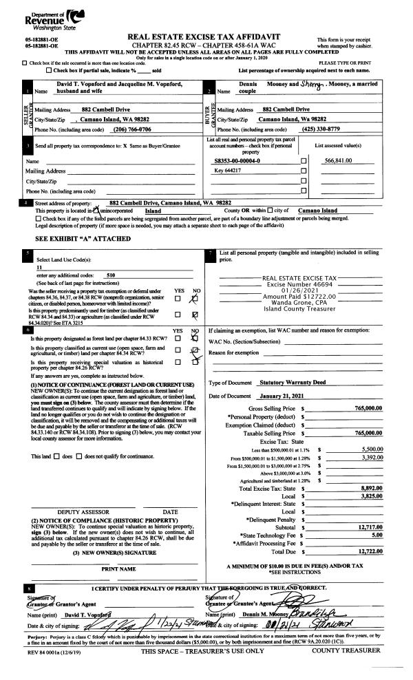
Deed and Sales History
| 1 | 04/23/2019 | QCD | Quit Claim Deed | RONGREN, ERIK | RONGREN, SALLY | | | $0.00 | 38158 | 4461792 |
Payout Agreement
| No payout information available.. |