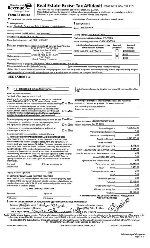
Property
Account |
| Property ID: | 81306 | Abbreviated Legal Description: | 32 - BG ELY CR CAMA CRAFT N35*E85.7' N8*W153' N88*W60 TO ELN CAMA CR S ALG SD ELN TPB TGW BCH & RD EZ |
| Geographic ID: | R23115-390-4320 | Agent Code: | |
| Type: | Real | | |
| Tax Area: | 510 - APPRAISER-Stan/Cam Schl Dist, improved & 1 acre or less | Land Use Code | 11 |
| Open Space: | N | DFL | N |
| Historic Property: | N | Remodel Property: | N |
| Multi-Family Redevelopment: | N | | |
| Township: | 31 | Section: | 15 |
| Range: | R2 |
Location |
| Address: | 898 HENRY LN CAMANO ISLAND, WA 98282 | Mapsco: | |
| Neighborhood: | Cycle 5 | Map ID: | 486 |
| Neighborhood CD: | 5 |
Owner |
| Name: | BOMGARDNER, JOHN C | Owner ID: | 310435 |
| Mailing Address: | 2674 S CAMANO DR CAMANO ISLAND, WA 98282 | % Ownership: | 100.0000000000% |
| | | Exemptions: | |
Taxes and Assessment Details
Values
| (+) Improvement Homesite Value: | + | $0 | |
| (+) Improvement Non-Homesite Value: | + | $185,651 | |
| (+) Land Homesite Value: | + | $0 | |
| (+) Land Non-Homesite Value: | + | $240,000 | |
| (+) Curr Use (HS): | + | $0 | $0 |
| (+) Curr Use (NHS): | + | $0 | $0 |
| | | -------------------------- | |
| (=) Market Value: | = | $425,651 | |
| (–) Productivity Loss: | – | $0 | |
| | | -------------------------- | |
| (=) Subtotal: | = | $425,651 | |
| (+) Senior Appraised Value: | + | $0 | |
| (+) Non-Senior Appraised Value: | + | $425,651 | |
| | | -------------------------- | |
| (=) Total Appraised Value: | = | $425,651 | |
| (–) Senior Exemption Loss: | – | $0 | |
| (–) Exemption Loss: | – | $0 | |
| | | -------------------------- | |
| (=) Taxable Value: | = | $425,651 | |
Taxing Jurisdiction
| Owner: | BOMGARDNER, JOHN C | | |
| % Ownership: | 100.0000000000% | | |
| Total Value: | $425,651 | | |
| Tax Area: | 510 - APPRAISER-Stan/Cam Schl Dist, improved & 1 acre or less |
| CF | Conservation Futures | 0.0316035091 | $425,651 | $425,651 | $13.45 | | |
| EMS1 | Fire & Rescue Dist #1 Camano GEN (EMS) | 0.3677864386 | $425,651 | $425,651 | $156.55 | | |
| FIRE1 | Fire & Rescue Dist #1 Camano GEN | 1.2502910536 | $425,651 | $425,651 | $532.19 | | |
| FIRE1BOND | Fire & Rescue Dist #1 Camano BOND | 0.1570001679 | $425,651 | $425,651 | $66.83 | | |
| CE | County Current Expense | 0.3708482477 | $425,651 | $425,651 | $157.85 | | |
| CR | County Roads | 0.4584763726 | $425,651 | $425,651 | $195.15 | | |
| LCIB | Library Sno-Isle BOND (Camano Island) | 0.0396325772 | $425,651 | $425,651 | $16.87 | | |
| LIB | Library Sno-Isle GEN | 0.3153421757 | $425,651 | $425,651 | $134.23 | | |
| SCH205_401 | School 205-401 Enrichment | 1.2698420524 | $425,651 | $425,651 | $540.51 | | |
| SCH205BOND | School 205-401 BOND | 0.9396497583 | $425,651 | $425,651 | $399.96 | | |
| ST | State School | 1.3035497053 | $425,651 | $425,651 | $554.86 | | |
| ST2 | State School Part 2 | 0.8169543533 | $425,651 | $425,651 | $347.74 | | |
| | Total Tax Rate: | 7.3209764117 | | | | | |
| | | | | Taxes w/Current Exemptions: | $3,116.19 | | |
| | | | | Taxes w/o Exemptions: | $3,116.19 | | |
Improvement / Building
| Improvement #1: | RESIDENTIAL | State Code: | Y | 720.0 sqft | Value: | $185,651 |
| Bathrooms: | 1 | Bedrooms: | 2 | | Ceiling: | TONGUE & GROOVE | Exterior Wall/Cover: | PLY/HARDBOARD T-111 | | Floor Covering: | CARPET/VINYL 80-20 | Floor Structure: | WOOD W/SUBFLOOR | | Foundation: | CONCRETE | Heating: | FHA GAS | | Interior Finish: | DRYWALL PAINT | Plumbing Fixture Cnt: | 5 | | Roof Slope: | 4" IN 12" | Roof Structure/Cover: | BEAM WOOD SHAKES |
|
| | Type | Description | Class CD | Sub Class CD | Year Built | Area |
| | BAS | BASE/MAIN FLOOR | 3 | 0 | 1968 | 720.0 |
| | OCP | OPEN CARPORT | 3 | 0 | 1968 | 460.0 |
| | UTY | STORAGE/UTILITY | 3 | 0 | 1968 | 48.0 |
| | OWP | OPEN WOOD PORCH W/STEPS | 3 | 0 | 1968 | 28.0 |
| | OWP | OPEN WOOD PORCH W/STEPS | 3 | 0 | 1968 | 294.0 |
| | DGR | DETACHED GARAGE | 3 | 0 | 1968 | 704.0 |
Sketch
Property Image
Land
| 1 | 15 | SQ (12001-21780) | 0.2800 | 12196.80 | 0.00 | 0.00 | 1.00 | $240,000 | $0 |
Roll Value History
| 2026 | N/A | N/A | N/A | N/A | N/A |
| 2025 | $185,651 | $240,000 | $0 | $425,651 | $425,651 |
| 2024 | $188,118 | $220,000 | $0 | $408,118 | $408,118 |
| 2023 | $190,585 | $210,000 | $0 | $400,585 | $400,585 |
| 2022 | $174,812 | $210,000 | $0 | $384,812 | $384,812 |
| 2021 | $150,065 | $150,000 | $0 | $300,065 | $300,065 |
| 2020 | $146,219 | $120,000 | $0 | $266,219 | $266,219 |
| 2019 | $104,342 | $160,000 | $0 | $264,342 | $264,342 |
| 2018 | $104,671 | $130,000 | $0 | $234,671 | $234,671 |
| 2017 | $105,330 | $100,000 | $0 | $205,330 | $205,330 |
| 2016 | $106,648 | $90,000 | $0 | $196,648 | $196,648 |
| 2015 | $68,090 | $65,000 | $0 | $133,090 | $133,090 |
| 2014 | $69,088 | $65,000 | $0 | $134,088 | $134,088 |
| 2013 | $70,084 | $41,600 | $0 | $111,684 | $111,684 |
| 2012 | $71,081 | $41,600 | $0 | $112,681 | $112,681 |
| 2011 | $72,077 | $52,000 | $0 | $124,077 | $124,077 |
| 2010 | $74,534 | $52,000 | $0 | $126,534 | $126,534 |
| 2009 | $77,957 | $90,000 | $0 | $167,957 | $167,957 |
| 2008 | $78,197 | $72,225 | $0 | $150,422 | $150,422 |
| 2007 | $79,419 | $72,225 | $0 | $151,644 | $151,644 |
Deed and Sales History
| 1 | 10/20/2023 | QCD | Quit Claim Deed | BOMGARDNER, JOHN C | BOMGARDNER, JOHN C | | | $0.00 | 58298 | 4565928 |
| 2 | 11/08/1999 | WD | Warranty Deed | Unknown | BOMGARDNER, JOHN C | | | $155,000.00 | 94693 | 99026233 |
| 3 | 07/01/1996 | WD | Warranty Deed | DIRKS, MARTIN C | WELLS, D A | | | $119,500.00 | 62744 | 96013434 |
| 4 | 01/01/1900 | OTHER | Other - Misc. Documents | BOMGARDNER, JOHN C | DIRKS, MARTIN C | | | $0.00 | 0 | 0 |
Payout Agreement
| No payout information available.. |