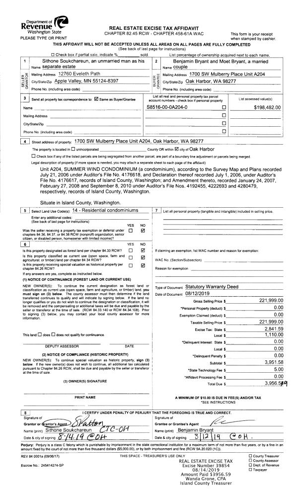
Property
Account |
| Property ID: | 813070 | Abbreviated Legal Description: | LOT 1 SP 133-14.23136-318-4910 AF#4420863 |
| Geographic ID: | R23136-323-4760 | Agent Code: | |
| Type: | Real | | |
| Tax Area: | 542 - APPRAISER-Stan/Cam Schl Dist, Special Dist, improved, greater than 1 acre | Land Use Code | 11 |
| Open Space: | N | DFL | N |
| Historic Property: | N | Remodel Property: | N |
| Multi-Family Redevelopment: | N | | |
| Township: | 31 | Section: | 36 |
| Range: | R2 |
Location |
| Address: | 2147 PARKER RD CAMANO ISLAND, WA 98282 | Mapsco: | |
| Neighborhood: | Cycle 5 | Map ID: | 536 |
| Neighborhood CD: | 5 |
Owner |
| Name: | BAKER, JOSEPH A | Owner ID: | 291128 |
| Mailing Address: | 2147 PARKER RD CAMANO ISLAND, WA 98282 | % Ownership: | 100.0000000000% |
| | | Exemptions: | |
Taxes and Assessment Details
Values
| (+) Improvement Homesite Value: | + | $0 | |
| (+) Improvement Non-Homesite Value: | + | $345,851 | |
| (+) Land Homesite Value: | + | $0 | |
| (+) Land Non-Homesite Value: | + | $260,000 | |
| (+) Curr Use (HS): | + | $0 | $0 |
| (+) Curr Use (NHS): | + | $0 | $0 |
| | | -------------------------- | |
| (=) Market Value: | = | $605,851 | |
| (–) Productivity Loss: | – | $0 | |
| | | -------------------------- | |
| (=) Subtotal: | = | $605,851 | |
| (+) Senior Appraised Value: | + | $0 | |
| (+) Non-Senior Appraised Value: | + | $605,851 | |
| | | -------------------------- | |
| (=) Total Appraised Value: | = | $605,851 | |
| (–) Senior Exemption Loss: | – | $0 | |
| (–) Exemption Loss: | – | $0 | |
| | | -------------------------- | |
| (=) Taxable Value: | = | $605,851 | |
Taxing Jurisdiction
| Owner: | BAKER, JOSEPH A | | |
| % Ownership: | 100.0000000000% | | |
| Total Value: | $605,851 | | |
| Tax Area: | 542 - APPRAISER-Stan/Cam Schl Dist, Special Dist, improved, greater than 1 acre |
| CF | Conservation Futures | 0.0316035091 | $605,851 | $605,851 | $19.15 | | |
| EMS1 | Fire & Rescue Dist #1 Camano GEN (EMS) | 0.3677864386 | $605,851 | $605,851 | $222.82 | | |
| FIRE1 | Fire & Rescue Dist #1 Camano GEN | 1.2502910536 | $605,851 | $605,851 | $757.49 | | |
| FIRE1BOND | Fire & Rescue Dist #1 Camano BOND | 0.1570001679 | $605,851 | $605,851 | $95.12 | | |
| CE | County Current Expense | 0.3708482477 | $605,851 | $605,851 | $224.68 | | |
| CR | County Roads | 0.4584763726 | $605,851 | $605,851 | $277.77 | | |
| LCIB | Library Sno-Isle BOND (Camano Island) | 0.0396325772 | $605,851 | $605,851 | $24.01 | | |
| LIB | Library Sno-Isle GEN | 0.3153421757 | $605,851 | $605,851 | $191.05 | | |
| SCH205_401 | School 205-401 Enrichment | 1.2698420524 | $605,851 | $605,851 | $769.34 | | |
| SCH205BOND | School 205-401 BOND | 0.9396497583 | $605,851 | $605,851 | $569.29 | | |
| ST | State School | 1.3035497053 | $605,851 | $605,851 | $789.76 | | |
| ST2 | State School Part 2 | 0.8169543533 | $605,851 | $605,851 | $494.95 | | |
| | Total Tax Rate: | 7.3209764117 | | | | | |
| | | | | Taxes w/Current Exemptions: | $4,435.43 | | |
| | | | | Taxes w/o Exemptions: | $4,435.43 | | |
Improvement / Building
| Improvement #1: | RESIDENTIAL | State Code: | Y | 1641.8 sqft | Value: | $345,851 |
| Bathrooms: | 2 | Bedrooms: | 3 | | Ceiling: | DRYWALL PAINTED | Cooling: | HEAT PUMP/CONV/V | | Exterior Wall/Cover: | CEMENT FIBER | Floor Covering: | HARDWOOD/CARP 60-40 | | Floor Structure: | WOOD W/SUBFLOOR | Foundation: | CONCRETE | | Interior Finish: | DRYWALL PAINT | Plumbing Fixture Cnt: | 10 | | Roof Slope: | 6" IN 12" | Roof Structure/Cover: | CJ ASPHALT |
|
| | Type | Description | Class CD | Sub Class CD | Year Built | Area |
| | BAS | BASE/MAIN FLOOR | 3 | 0 | 2019 | 1641.8 |
| | AGR | ATTACHED GARAGE | 3 | 0 | 2019 | 420.3 |
| | OP4 | OPEN PORCH W/CEILING-ROOF | 3 | 0 | 2019 | 220.0 |
| | OP4 | OPEN PORCH W/CEILING-ROOF | 3 | 0 | 2019 | 144.0 |
Sketch
Property Image
Land
| 1 | 17 | AC (01.01-02.00) | 1.1500 | 51836.40 | 0.00 | 0.00 | 1.00 | $260,000 | $0 |
Roll Value History
| 2026 | N/A | N/A | N/A | N/A | N/A |
| 2025 | $345,851 | $260,000 | $0 | $605,851 | $605,851 |
| 2024 | $348,640 | $240,000 | $0 | $588,640 | $588,640 |
| 2023 | $351,429 | $230,000 | $0 | $581,429 | $581,429 |
| 2022 | $320,746 | $240,000 | $0 | $560,746 | $560,746 |
| 2021 | $281,841 | $170,000 | $0 | $451,841 | $451,841 |
| 2020 | $276,352 | $150,000 | $0 | $426,352 | $426,352 |
| 2019 | $192,413 | $200,000 | $0 | $392,413 | $392,413 |
| 2018 | $0 | $65,000 | $0 | $65,000 | $65,000 |
| 2017 | $0 | $20,000 | $0 | $20,000 | $20,000 |
Deed and Sales History
| 1 | 07/26/2019 | WD | Warranty Deed | TITAN FRAMING, LLC | BAKER, JOSEPH A | | | $459,000.00 | 39633 | 4468327 |
| 2 | 10/02/2018 | WD | Warranty Deed | CARLO, MARY L | TITAN FRAMING, LLC | | | $440,000.00 | 36218 | 4453112 |
|   | |
Payout Agreement
| No payout information available.. |