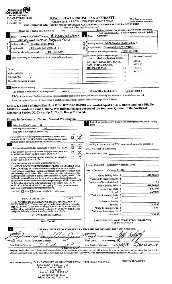
Property
Account |
| Property ID: | 813092 | Abbreviated Legal Description: | N208' ALG E LN PT ND HILL DLC: BG 40' E NW CR US GOV MIL RESV V25 P279 SD DLC E417.4' N417.4' W417.4' S417.4' TPB EX ROW FOR ENGLE RD |
| Geographic ID: | R13116-482-3880 | Agent Code: | |
| Type: | Real | | |
| Tax Area: | 312 - APPRAISER-Cpvl Schl Dist, outside Cpvl, improved, greater than 1 acre | Land Use Code | 11 |
| Open Space: | N | DFL | N |
| Historic Property: | N | Remodel Property: | N |
| Multi-Family Redevelopment: | N | | |
| Township: | 31 | Section: | 16 |
| Range: | R1 |
Location |
| Address: | 827 ENGLE RD COUPEVILLE, WA 98239 | Mapsco: | |
| Neighborhood: | Cycle 2 | Map ID: | 72 |
| Neighborhood CD: | 2 |
Owner |
| Name: | MOTTET, BRADLEY J | Owner ID: | 285438 |
| Mailing Address: | KELSI K MOTTET 2108 NE PARKER RD COUPEVILLE, WA 98239 | % Ownership: | 100.0000000000% |
| | | Exemptions: | |
Taxes and Assessment Details
Values
| (+) Improvement Homesite Value: | + | $0 | |
| (+) Improvement Non-Homesite Value: | + | $484,936 | |
| (+) Land Homesite Value: | + | $0 | |
| (+) Land Non-Homesite Value: | + | $290,000 | |
| (+) Curr Use (HS): | + | $0 | $0 |
| (+) Curr Use (NHS): | + | $0 | $0 |
| | | -------------------------- | |
| (=) Market Value: | = | $774,936 | |
| (–) Productivity Loss: | – | $0 | |
| | | -------------------------- | |
| (=) Subtotal: | = | $774,936 | |
| (+) Senior Appraised Value: | + | $0 | |
| (+) Non-Senior Appraised Value: | + | $774,936 | |
| | | -------------------------- | |
| (=) Total Appraised Value: | = | $774,936 | |
| (–) Senior Exemption Loss: | – | $0 | |
| (–) Exemption Loss: | – | $0 | |
| | | -------------------------- | |
| (=) Taxable Value: | = | $774,936 | |
Taxing Jurisdiction
| Owner: | MOTTET, BRADLEY J | | |
| % Ownership: | 100.0000000000% | | |
| Total Value: | $774,936 | | |
| Tax Area: | 312 - APPRAISER-Cpvl Schl Dist, outside Cpvl, improved, greater than 1 acre |
| CF | Conservation Futures | 0.0316035091 | $774,936 | $774,936 | $24.49 | | |
| CEM2 | Cemetery #2 | 0.0095056933 | $774,936 | $774,936 | $7.37 | | |
| FIRE5 | Fire & Rescue Dist #5 C Whidbey GEN | 1.2008080668 | $774,936 | $774,936 | $930.55 | | |
| FIRE5BOND | Fire & Rescue Dist #5 C Whidbey BOND | 0.1400090713 | $774,936 | $774,936 | $108.50 | | |
| HOBOND | Hospital BOND | 0.1910887512 | $774,936 | $774,936 | $148.08 | | |
| HOGEN | Hospital GEN | 0.3902502903 | $774,936 | $774,936 | $302.42 | | |
| CE | County Current Expense | 0.3708482477 | $774,936 | $774,936 | $287.38 | | |
| CR | County Roads | 0.4584763726 | $774,936 | $774,936 | $355.29 | | |
| ISLANDEMS | Hospital GEN (EMS) | 0.5000000000 | $774,936 | $774,936 | $387.47 | | |
| LIB | Library Sno-Isle GEN | 0.3153421757 | $774,936 | $774,936 | $244.37 | | |
| LIBCAP | Library Sno-Isle BOND (Cap Fac Imp Area) | 0.0543427938 | $774,936 | $774,936 | $42.11 | | |
| POCOUP | Port of Coupeville GEN | 0.1093371703 | $774,936 | $774,936 | $84.73 | | |
| POCOUPIDD | Port of Coupeville IDD | 0.3409740022 | $774,936 | $774,936 | $264.23 | | |
| COUPSDTECH | School 204 CP (TECH) | 0.7545480007 | $774,936 | $774,936 | $584.73 | | |
| SCH204MO | School 204 Enrichment | 0.6716186034 | $774,936 | $774,936 | $520.46 | | |
| ST | State School | 1.3035497053 | $774,936 | $774,936 | $1,010.17 | | |
| ST2 | State School Part 2 | 0.8169543533 | $774,936 | $774,936 | $633.09 | | |
| | Total Tax Rate: | 7.6592568070 | | | | | |
| | | | | Taxes w/Current Exemptions: | $5,935.44 | | |
| | | | | Taxes w/o Exemptions: | $5,935.44 | | |
Improvement / Building
| Improvement #1: | RESIDENTIAL | State Code: | Y | 720.0 sqft | Value: | $193,691 |
| Bathrooms: | 1 | Bedrooms: | 1 | | Ceiling: | DRYWALL PAINTED | Cooling: | HEAT PUMP/CONV/V | | Exterior Wall/Cover: | WOOD SIDING | Floor Covering: | HARDWOOD/CARP 80-20 | | Floor Structure: | SLAB ON GRADE | Foundation: | CONCRETE | | Interior Finish: | DRYWALL PAINT | Plumbing Fixture Cnt: | 6 | | Roof Slope: | 6" IN 12" | Roof Structure/Cover: | CJ ASPHALT |
|
| | Type | Description | Class CD | Sub Class CD | Year Built | Area |
| | BAS | BASE/MAIN FLOOR | 3 | 0 | 2019 | 720.0 |
| | BGR | BASEMENT GARAGE | 3 | 0 | 2019 | 720.0 |
| Improvement #2: | RESIDENTIAL | State Code: | Y | 2320.0 sqft | Value: | $291,245 |
| Bathrooms: | 2.5 | Bedrooms: | 2 | | Ceiling: | DRYWALL PAINTED | Exterior Wall/Cover: | WOOD SIDING | | Floor Covering: | (NONE) | Floor Structure: | WOOD W/SUBFLOOR | | Foundation: | SLAB | Heating: | (NONE) | | Interior Finish: | DRYWALL PAINT | Plumbing Fixture Cnt: | 10 | | Roof Slope: | 6" IN 12" | Roof Structure/Cover: | CJ ASPHALT |
|
| | Type | Description | Class CD | Sub Class CD | Year Built | Area |
| | BAS | BASE/MAIN FLOOR | 3 | 0 | 2019 | 1440.0 |
| | UPS | UPPER STORY | 3 | 0 | 2019 | 880.0 |
Sketch
Property Image
Land
| 1 | HS | HOMESITE | 1.0000 | 43560.00 | 0.00 | 0.00 | 1.00 | $270,000 | $0 |
| 2 | 91 | UNDEVELOPED LAND-METES AND BOUNDS | 1.0000 | 43560.00 | 0.00 | 0.00 | 1.00 | $20,000 | $0 |
Roll Value History
| 2026 | N/A | N/A | N/A | N/A | N/A |
| 2025 | $484,936 | $290,000 | $0 | $774,936 | $774,936 |
| 2024 | $481,848 | $280,000 | $0 | $761,848 | $761,848 |
| 2023 | $366,555 | $290,000 | $0 | $656,555 | $656,555 |
| 2022 | $221,865 | $280,000 | $0 | $501,865 | $501,865 |
| 2021 | $139,764 | $180,000 | $0 | $319,764 | $319,764 |
| 2020 | $136,520 | $170,000 | $0 | $306,520 | $306,520 |
| 2019 | $14,587 | $120,000 | $0 | $134,587 | $134,587 |
| 2018 | $0 | $240,000 | $0 | $240,000 | $240,000 |
Deed and Sales History
Payout Agreement
| No payout information available.. |