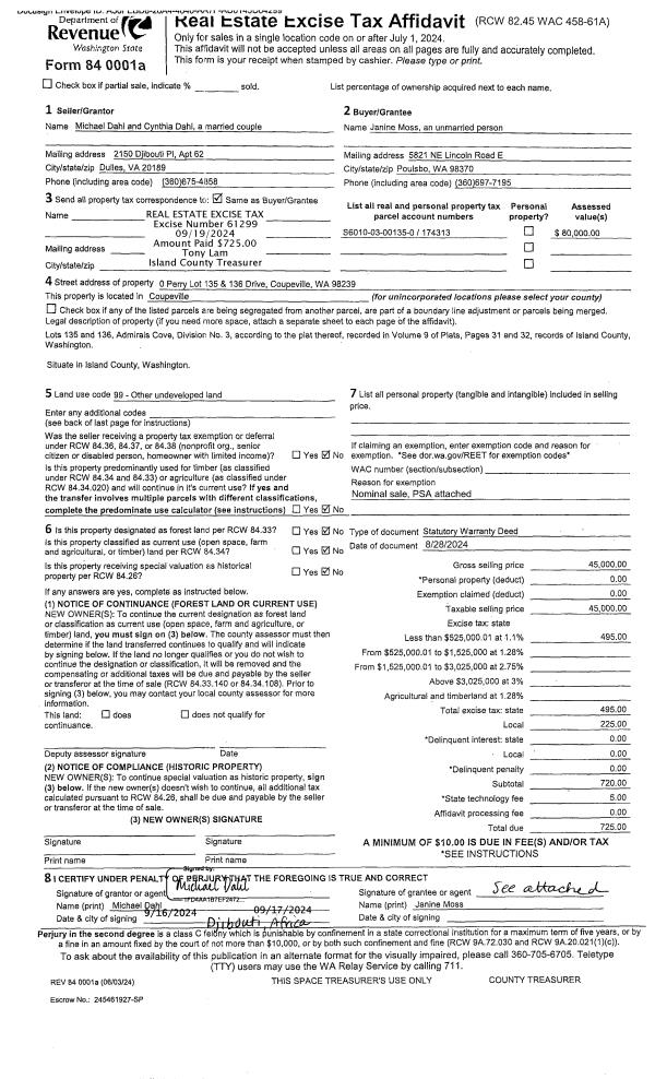
Property
Account |
| Property ID: | 813131 | Abbreviated Legal Description: | LOTS 1 & 2 SP 120-09.23034-34-380-1910 AF#4289453 |
| Geographic ID: | R23034-381-2050 | Agent Code: | |
| Type: | Real | | |
| Tax Area: | 312 - APPRAISER-Cpvl Schl Dist, outside Cpvl, improved, greater than 1 acre | Land Use Code | 11 |
| Open Space: | N | DFL | N |
| Historic Property: | N | Remodel Property: | N |
| Multi-Family Redevelopment: | N | | |
| Township: | 30 | Section: | 34 |
| Range: | R2 |
Location |
| Address: | 4516 HONEYMOON BAY RD GREENBANK, WA 98253 | Mapsco: | |
| Neighborhood: | Cycle 3 | Map ID: | 441 |
| Neighborhood CD: | 3 |
Owner |
| Name: | STARLIGHT, GABRIEL | Owner ID: | 299032 |
| Mailing Address: | 4508 HONEYMOON BAY RD GREENBANK, WA 98253 | % Ownership: | 100.0000000000% |
| | | Exemptions: | |
Taxes and Assessment Details
Values
| (+) Improvement Homesite Value: | + | $0 | |
| (+) Improvement Non-Homesite Value: | + | $114,804 | |
| (+) Land Homesite Value: | + | $0 | |
| (+) Land Non-Homesite Value: | + | $210,000 | |
| (+) Curr Use (HS): | + | $0 | $0 |
| (+) Curr Use (NHS): | + | $0 | $0 |
| | | -------------------------- | |
| (=) Market Value: | = | $324,804 | |
| (–) Productivity Loss: | – | $0 | |
| | | -------------------------- | |
| (=) Subtotal: | = | $324,804 | |
| (+) Senior Appraised Value: | + | $0 | |
| (+) Non-Senior Appraised Value: | + | $324,804 | |
| | | -------------------------- | |
| (=) Total Appraised Value: | = | $324,804 | |
| (–) Senior Exemption Loss: | – | $0 | |
| (–) Exemption Loss: | – | $0 | |
| | | -------------------------- | |
| (=) Taxable Value: | = | $324,804 | |
Taxing Jurisdiction
| Owner: | STARLIGHT, GABRIEL | | |
| % Ownership: | 100.0000000000% | | |
| Total Value: | $324,804 | | |
| Tax Area: | 312 - APPRAISER-Cpvl Schl Dist, outside Cpvl, improved, greater than 1 acre |
| CF | Conservation Futures | 0.0316035091 | $324,804 | $324,804 | $10.26 | | |
| CEM2 | Cemetery #2 | 0.0095056933 | $324,804 | $324,804 | $3.09 | | |
| FIRE5 | Fire & Rescue Dist #5 C Whidbey GEN | 1.2008080668 | $324,804 | $324,804 | $390.03 | | |
| FIRE5BOND | Fire & Rescue Dist #5 C Whidbey BOND | 0.1400090713 | $324,804 | $324,804 | $45.48 | | |
| HOBOND | Hospital BOND | 0.1910887512 | $324,804 | $324,804 | $62.07 | | |
| HOGEN | Hospital GEN | 0.3902502903 | $324,804 | $324,804 | $126.75 | | |
| CE | County Current Expense | 0.3708482477 | $324,804 | $324,804 | $120.45 | | |
| CR | County Roads | 0.4584763726 | $324,804 | $324,804 | $148.91 | | |
| ISLANDEMS | Hospital GEN (EMS) | 0.5000000000 | $324,804 | $324,804 | $162.40 | | |
| LIB | Library Sno-Isle GEN | 0.3153421757 | $324,804 | $324,804 | $102.42 | | |
| LIBCAP | Library Sno-Isle BOND (Cap Fac Imp Area) | 0.0543427938 | $324,804 | $324,804 | $17.65 | | |
| POCOUP | Port of Coupeville GEN | 0.1093371703 | $324,804 | $324,804 | $35.51 | | |
| POCOUPIDD | Port of Coupeville IDD | 0.3409740022 | $324,804 | $324,804 | $110.75 | | |
| COUPSDTECH | School 204 CP (TECH) | 0.7545480007 | $324,804 | $324,804 | $245.08 | | |
| SCH204MO | School 204 Enrichment | 0.6716186034 | $324,804 | $324,804 | $218.14 | | |
| ST | State School | 1.3035497053 | $324,804 | $324,804 | $423.40 | | |
| ST2 | State School Part 2 | 0.8169543533 | $324,804 | $324,804 | $265.35 | | |
| | Total Tax Rate: | 7.6592568070 | | | | | |
| | | | | Taxes w/Current Exemptions: | $2,487.74 | | |
| | | | | Taxes w/o Exemptions: | $2,487.74 | | |
Improvement / Building
| Improvement #1: | RESIDENTIAL | State Code: | Y | 1302.0 sqft | Value: | $114,804 |
| Bathrooms: | 1 | Bedrooms: | 2 | | Ceiling: | (NONE) | Exterior Wall/Cover: | SHINGLE | | Floor Covering: | (NONE) | Floor Structure: | WOOD W/SUBFLOOR | | Foundation: | CONCRETE | Heating: | (NONE) | | Interior Finish: | (NONE) | Plumbing Fixture Cnt: | 6 | | Roof Slope: | 3" IN 12" | Roof Structure/Cover: | CJ ALUMINIUM HEAVY |
|
| | Type | Description | Class CD | Sub Class CD | Year Built | Area |
| | BAS | BASE/MAIN FLOOR | 3 | 0 | 2020 | 858.0 |
| | UPS | UPPER STORY | 3 | 0 | 2020 | 444.0 |
| | UB8 | BASEMENT UNFINISHED 8" | 3 | 0 | 2020 | 858.0 |
| | OWP | OPEN WOOD PORCH W/STEPS | 3 | 0 | 2020 | 0.0 |
| | OWR | OPEN WOOD PORCH W/STEPS/ROOF | 3 | 0 | 2020 | 0.0 |
Sketch
Property Image
Land
| 1 | 32 | AC (03.01-09.99) | 9.0000 | 392040.00 | 0.00 | 0.00 | 1.00 | $210,000 | $0 |
Roll Value History
| 2026 | N/A | N/A | N/A | N/A | N/A |
| 2025 | $114,804 | $210,000 | $0 | $324,804 | $324,804 |
| 2024 | $115,723 | $200,000 | $0 | $315,723 | $315,723 |
| 2023 | $94,065 | $180,000 | $0 | $274,065 | $274,065 |
| 2022 | $55,287 | $180,000 | $0 | $235,287 | $235,287 |
| 2021 | $31,029 | $130,000 | $0 | $161,029 | $161,029 |
| 2020 | $19,717 | $130,000 | $0 | $149,717 | $149,717 |
| 2019 | $0 | $135,000 | $0 | $135,000 | $135,000 |
| 2018 | $0 | $160,030 | $0 | $160,030 | $160,030 |
Deed and Sales History
| 1 | 04/20/2021 | QCD | Quit Claim Deed | STARLIGHT, ARIEL | STARLIGHT, GABRIEL | | | $0.00 | 47935 | 4517327 |
| 2 | 04/20/2021 | WD | Warranty Deed | LYON, RICHARD A | STARLIGHT, GABRIEL | | | $85,000.00 | 47934 | 4517326 |
Payout Agreement
| No payout information available.. |