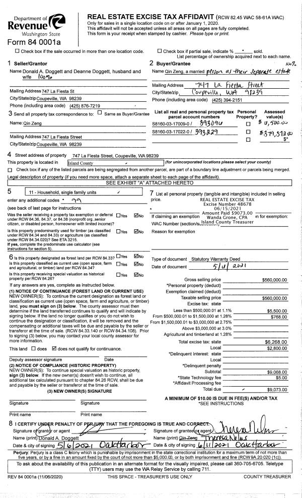
Property
Account |
| Property ID: | 81315 | Abbreviated Legal Description: | 33 - BG ELY CR CAMA CRAFT N34*E85.7' TPB N8*W153' S88 E80' S8*E56.2' S35*W114.2' M/L TPB TGW BCH & RD EZ |
| Geographic ID: | R23115-393-4390 | Agent Code: | |
| Type: | Real | | |
| Tax Area: | 510 - APPRAISER-Stan/Cam Schl Dist, improved & 1 acre or less | Land Use Code | 11 |
| Open Space: | N | DFL | N |
| Historic Property: | N | Remodel Property: | N |
| Multi-Family Redevelopment: | N | | |
| Township: | 31 | Section: | 15 |
| Range: | R2 |
Location |
| Address: | 896 HENRY LN CAMANO IS, WA 98282 | Mapsco: | |
| Neighborhood: | Cycle 5 | Map ID: | 486 |
| Neighborhood CD: | 5 |
Owner |
| Name: | CAMERON, COLLINS J | Owner ID: | 313237 |
| Mailing Address: | CARYN J CAMERON 896 HENRY LN CAMANO ISLAND, WA 98282 | % Ownership: | 100.0000000000% |
| | | Exemptions: | |
Taxes and Assessment Details
Values
| (+) Improvement Homesite Value: | + | $0 | |
| (+) Improvement Non-Homesite Value: | + | $278,056 | |
| (+) Land Homesite Value: | + | $0 | |
| (+) Land Non-Homesite Value: | + | $230,000 | |
| (+) Curr Use (HS): | + | $0 | $0 |
| (+) Curr Use (NHS): | + | $0 | $0 |
| | | -------------------------- | |
| (=) Market Value: | = | $508,056 | |
| (–) Productivity Loss: | – | $0 | |
| | | -------------------------- | |
| (=) Subtotal: | = | $508,056 | |
| (+) Senior Appraised Value: | + | $0 | |
| (+) Non-Senior Appraised Value: | + | $508,056 | |
| | | -------------------------- | |
| (=) Total Appraised Value: | = | $508,056 | |
| (–) Senior Exemption Loss: | – | $0 | |
| (–) Exemption Loss: | – | $0 | |
| | | -------------------------- | |
| (=) Taxable Value: | = | $508,056 | |
Taxing Jurisdiction
| Owner: | CAMERON, COLLINS J | | |
| % Ownership: | 100.0000000000% | | |
| Total Value: | $508,056 | | |
| Tax Area: | 510 - APPRAISER-Stan/Cam Schl Dist, improved & 1 acre or less |
| CF | Conservation Futures | 0.0316035091 | $508,056 | $508,056 | $16.06 | | |
| EMS1 | Fire & Rescue Dist #1 Camano GEN (EMS) | 0.3677864386 | $508,056 | $508,056 | $186.86 | | |
| FIRE1 | Fire & Rescue Dist #1 Camano GEN | 1.2502910536 | $508,056 | $508,056 | $635.22 | | |
| FIRE1BOND | Fire & Rescue Dist #1 Camano BOND | 0.1570001679 | $508,056 | $508,056 | $79.76 | | |
| CE | County Current Expense | 0.3708482477 | $508,056 | $508,056 | $188.41 | | |
| CR | County Roads | 0.4584763726 | $508,056 | $508,056 | $232.93 | | |
| LCIB | Library Sno-Isle BOND (Camano Island) | 0.0396325772 | $508,056 | $508,056 | $20.14 | | |
| LIB | Library Sno-Isle GEN | 0.3153421757 | $508,056 | $508,056 | $160.21 | | |
| SCH205_401 | School 205-401 Enrichment | 1.2698420524 | $508,056 | $508,056 | $645.15 | | |
| SCH205BOND | School 205-401 BOND | 0.9396497583 | $508,056 | $508,056 | $477.39 | | |
| ST | State School | 1.3035497053 | $508,056 | $508,056 | $662.28 | | |
| ST2 | State School Part 2 | 0.8169543533 | $508,056 | $508,056 | $415.06 | | |
| | Total Tax Rate: | 7.3209764117 | | | | | |
| | | | | Taxes w/Current Exemptions: | $3,719.47 | | |
| | | | | Taxes w/o Exemptions: | $3,719.47 | | |
Improvement / Building
| Improvement #1: | RESIDENTIAL | State Code: | Y | 1320.0 sqft | Value: | $278,056 |
| Bathrooms: | 2 | Bedrooms: | 2 | | Ceiling: | DRYWALL PAINTED | Cooling: | HEAT PUMP/CONV/V | | Exterior Wall/Cover: | CEMENT FIBER | Floor Covering: | VINYL 100% | | Floor Structure: | WOOD W/SUBFLOOR | Foundation: | CONCRETE | | Interior Finish: | DRYWALL PAINT | Plumbing Fixture Cnt: | 12 | | Roof Slope: | 4" IN 12" | Roof Structure/Cover: | CJ ASPHALT |
|
| | Type | Description | Class CD | Sub Class CD | Year Built | Area |
| | BAS | BASE/MAIN FLOOR | 3 | 0 | 2022 | 1320.0 |
| | OWP | OPEN WOOD PORCH W/STEPS | 3 | 0 | 2022 | 628.0 |
| | OWR | OPEN WOOD PORCH W/STEPS/ROOF | 3 | 0 | 2022 | 40.0 |
Sketch
| No sketches available for this property. |
Property Image
Land
| 1 | 14 | SQ (08001-12000) | 0.2300 | 10018.80 | 0.00 | 0.00 | 1.00 | $230,000 | $0 |
Roll Value History
| 2026 | N/A | N/A | N/A | N/A | N/A |
| 2025 | $278,056 | $230,000 | $0 | $508,056 | $508,056 |
| 2024 | $279,041 | $100,000 | $0 | $379,041 | $379,041 |
| 2023 | $284,113 | $100,000 | $0 | $384,113 | $384,113 |
| 2022 | $66,991 | $100,000 | $0 | $166,991 | $166,991 |
| 2021 | $0 | $70,000 | $0 | $70,000 | $70,000 |
| 2020 | $0 | $70,000 | $0 | $70,000 | $70,000 |
| 2019 | $0 | $80,000 | $0 | $80,000 | $80,000 |
| 2018 | $0 | $70,000 | $0 | $70,000 | $70,000 |
| 2017 | $0 | $50,000 | $0 | $50,000 | $50,000 |
| 2016 | $0 | $50,000 | $0 | $50,000 | $50,000 |
| 2015 | $0 | $50,000 | $0 | $50,000 | $50,000 |
| 2014 | $0 | $50,000 | $0 | $50,000 | $50,000 |
| 2013 | $0 | $47,000 | $0 | $47,000 | $47,000 |
| 2012 | $0 | $47,000 | $0 | $47,000 | $47,000 |
| 2011 | $0 | $47,000 | $0 | $47,000 | $47,000 |
| 2010 | $0 | $47,000 | $0 | $47,000 | $47,000 |
| 2009 | $0 | $55,000 | $0 | $55,000 | $55,000 |
| 2008 | $0 | $58,080 | $0 | $58,080 | $58,080 |
| 2007 | $0 | $58,080 | $0 | $58,080 | $58,080 |
Deed and Sales History
| 1 | 07/22/2024 | WD | Warranty Deed | CAMERON, MITZI C | CAMERON, COLLINS J | | | $550,000.00 | 60730 | 4575003 |
| 2 | 02/02/2021 | WD | Warranty Deed | FRENCH, JAMES GERALD | CAMERON, MITZI C | | | $80,000.00 | 46814 | 4509961 |
| 3 | 02/02/2007 | QCD | Quit Claim Deed | FRENCH, JAMES GERALD | FRENCH, JAMES GERALD | | | $0.00 | 46797 | 4509808 |
| 4 | 12/28/2006 | QCD | Quit Claim Deed | LAMBE, HELEN | FRENCH, JAMES GERALD | | | $0.00 | 70806 | 4196110 |
| 5 | 01/01/1900 | OTHER | Other - Misc. Documents | Unknown | LAMBE, HELEN | | | $0.00 | 0 | 0 |
Payout Agreement
| No payout information available.. |