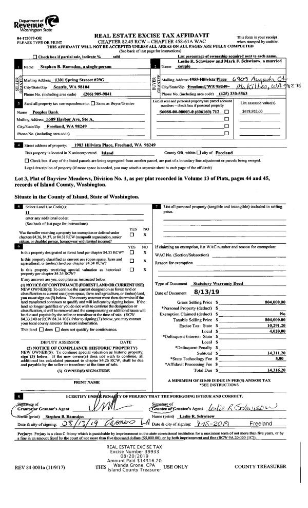
Property
Account |
| Property ID: | 813214 | Abbreviated Legal Description: | PT S/2 NE NW DESC: BG N/4 CR SEC 17 S1*W 661.25' TP ON CLN DAY RD S1*W 250.33' TP ON CLN DAY RD TPB S1*W 410.92' TP ON CLN DAY RD & N89*W 1324.51' N1*E 214' S89*E 538.84' N00*E 195.5' S89*E 788.65' TPB EX E30' FOR RD |
| Geographic ID: | R23017-425-2170 | Agent Code: | |
| Type: | Real | | |
| Tax Area: | 312 - APPRAISER-Cpvl Schl Dist, outside Cpvl, improved, greater than 1 acre | Land Use Code | 83 |
| Open Space: | Y | DFL | N |
| Historic Property: | N | Remodel Property: | N |
| Multi-Family Redevelopment: | N | | |
| Township: | 30 | Section: | 17 |
| Range: | R2 |
Location |
| Address: | 3282 DAY RD GREENBANK, WA 98253 | Mapsco: | |
| Neighborhood: | Cycle 3 | Map ID: | 386 |
| Neighborhood CD: | 3 |
Owner |
| Name: | STANTON, SAMUEL | Owner ID: | 289843 |
| Mailing Address: | CAITLIN STANTON 3282 DAY RD GREENBANK, WA 98253 | % Ownership: | 100.0000000000% |
| | | Exemptions: | |
Taxes and Assessment Details
Values
| (+) Improvement Homesite Value: | + | $0 | |
| (+) Improvement Non-Homesite Value: | + | $347,307 | |
| (+) Land Homesite Value: | + | $0 | |
| (+) Land Non-Homesite Value: | + | $260,000 | |
| (+) Curr Use (HS): | + | $0 | $0 |
| (+) Curr Use (NHS): | + | $110,000 | $3,231 |
| | | -------------------------- | |
| (=) Market Value: | = | $717,307 | |
| (–) Productivity Loss: | – | $106,769 | |
| | | -------------------------- | |
| (=) Subtotal: | = | $610,538 | |
| (+) Senior Appraised Value: | + | $0 | |
| (+) Non-Senior Appraised Value: | + | $610,538 | |
| | | -------------------------- | |
| (=) Total Appraised Value: | = | $610,538 | |
| (–) Senior Exemption Loss: | – | $0 | |
| (–) Exemption Loss: | – | $0 | |
| | | -------------------------- | |
| (=) Taxable Value: | = | $610,538 | |
Taxing Jurisdiction
| Owner: | STANTON, SAMUEL | | |
| % Ownership: | 100.0000000000% | | |
| Total Value: | $717,307 | | |
| Tax Area: | 312 - APPRAISER-Cpvl Schl Dist, outside Cpvl, improved, greater than 1 acre |
| CF | Conservation Futures | 0.0316035091 | $610,538 | $610,538 | $19.30 | | |
| CEM2 | Cemetery #2 | 0.0095056933 | $610,538 | $610,538 | $5.80 | | |
| FIRE5 | Fire & Rescue Dist #5 C Whidbey GEN | 1.2008080668 | $610,538 | $610,538 | $733.14 | | |
| FIRE5BOND | Fire & Rescue Dist #5 C Whidbey BOND | 0.1400090713 | $610,538 | $610,538 | $85.48 | | |
| HOBOND | Hospital BOND | 0.1910887512 | $610,538 | $610,538 | $116.67 | | |
| HOGEN | Hospital GEN | 0.3902502903 | $610,538 | $610,538 | $238.26 | | |
| CE | County Current Expense | 0.3708482477 | $610,538 | $610,538 | $226.42 | | |
| CR | County Roads | 0.4584763726 | $610,538 | $610,538 | $279.92 | | |
| ISLANDEMS | Hospital GEN (EMS) | 0.5000000000 | $610,538 | $610,538 | $305.27 | | |
| LIB | Library Sno-Isle GEN | 0.3153421757 | $610,538 | $610,538 | $192.53 | | |
| LIBCAP | Library Sno-Isle BOND (Cap Fac Imp Area) | 0.0543427938 | $610,538 | $610,538 | $33.18 | | |
| POCOUP | Port of Coupeville GEN | 0.1093371703 | $610,538 | $610,538 | $66.75 | | |
| POCOUPIDD | Port of Coupeville IDD | 0.3409740022 | $610,538 | $610,538 | $208.18 | | |
| COUPSDTECH | School 204 CP (TECH) | 0.7545480007 | $610,538 | $610,538 | $460.68 | | |
| SCH204MO | School 204 Enrichment | 0.6716186034 | $610,538 | $610,538 | $410.05 | | |
| ST | State School | 1.3035497053 | $610,538 | $610,538 | $795.87 | | |
| ST2 | State School Part 2 | 0.8169543533 | $610,538 | $610,538 | $498.78 | | |
| | Total Tax Rate: | 7.6592568070 | | | | | |
| | | | | Taxes w/Current Exemptions: | $4,676.28 | | |
| | | | | Taxes w/o Exemptions: | $4,676.28 | | |
Improvement / Building
| Improvement #1: | RESIDENTIAL | State Code: | Y | 848.0 sqft | Value: | $347,307 |
| Bathrooms: | 1.5 | Bedrooms: | 1 | | Ceiling: | DRYWALL PAINTED | Cooling: | HEAT PUMP/CONV/V | | Exterior Wall/Cover: | WOOD SIDING | Floor Covering: | SOFTWOOD 100% | | Floor Structure: | WOOD W/SUBFLOOR | Foundation: | PEIRS | | Interior Finish: | DRYWALL PAINT | Plumbing Fixture Cnt: | 8 | | Roof Slope: | 8" IN 12" | Roof Structure/Cover: | CJ ALUMINIUM HEAVY |
|
| | Type | Description | Class CD | Sub Class CD | Year Built | Area |
| | BAS | BASE/MAIN FLOOR | 3 | 0 | 1914 | 848.0 |
| | DGR | DETACHED GARAGE | 3 | 0 | 1914 | 1512.0 |
| | OCP | OPEN CARPORT | 3 | 0 | 1914 | 504.0 |
| | ENP | ENCLOSED PORCH | 3 | 0 | 1914 | 504.0 |
| | OWR | OPEN WOOD PORCH W/STEPS/ROOF | 3 | 0 | 1914 | 200.0 |
Sketch
Property Image
Land
| 1 | 88 | DESIGNATED FOREST | 8.7800 | 382456.80 | 0.00 | 0.00 | 1.00 | $110,000 | $3,231 |
| 2 | HS | HOMESITE | 1.0000 | 43560.00 | 0.00 | 0.00 | 1.00 | $260,000 | $0 |
Roll Value History
| 2026 | N/A | N/A | N/A | N/A | N/A |
| 2025 | $347,307 | $370,000 | $3,231 | $610,538 | $610,538 |
| 2024 | $351,529 | $350,000 | $3,231 | $594,760 | $594,760 |
| 2023 | $355,752 | $320,000 | $3,231 | $391,703 | $391,703 |
| 2022 | $325,953 | $260,000 | $0 | $585,953 | $585,953 |
| 2021 | $129,509 | $230,000 | $0 | $359,509 | $359,509 |
| 2020 | $88,448 | $180,000 | $0 | $268,448 | $268,448 |
| 2019 | $73,144 | $230,000 | $0 | $303,144 | $303,144 |
| 2018 | $73,260 | $220,000 | $0 | $293,260 | $293,260 |
Deed and Sales History
| 1 | 05/15/2019 | WD | Warranty Deed | STANTON, SAMUEL | STANTON, SAMUEL | | | $0.00 | 38588 | 4463741 |
Payout Agreement
| No payout information available.. |