Property
Account |
| Property ID: | 813235 | Abbreviated Legal Description: | FIFTH STREET COMMONS CONDO UNIT A-102 |
| Geographic ID: | S8555-00-0A102-0 | Agent Code: | |
| Type: | Real | | |
| Tax Area: | 700 - APPRAISER-S Whid Schl Dist, in town of Langley | Land Use Code | 14 |
| Open Space: | N | DFL | N |
| Historic Property: | N | Remodel Property: | N |
| Multi-Family Redevelopment: | N | | |
| Township: | 30 | Section: | 34 |
| Range: | R3 |
Location |
| Address: | 130 FIFTH ST BLDG A, UNIT A102 LANGLEY, WA 98260 | Mapsco: | |
| Neighborhood: | 42*LG-5th street | Map ID: | 913 |
| Neighborhood CD: | 42*LG5stre |
Owner |
| Name: | GREER, MAISIE | Owner ID: | 288154 |
| Mailing Address: | BENJAMIN DANE GREER 130 5TH STREET UNIT A102 LANGLEY, WA 98260 | % Ownership: | 100.0000000000% |
| | | Exemptions: | |
Taxes and Assessment Details
Values
| (+) Improvement Homesite Value: | + | $0 | |
| (+) Improvement Non-Homesite Value: | + | $164,697 | |
| (+) Land Homesite Value: | + | $0 | |
| (+) Land Non-Homesite Value: | + | $150,000 | |
| (+) Curr Use (HS): | + | $0 | $0 |
| (+) Curr Use (NHS): | + | $0 | $0 |
| | | -------------------------- | |
| (=) Market Value: | = | $314,697 | |
| (–) Productivity Loss: | – | $0 | |
| | | -------------------------- | |
| (=) Subtotal: | = | $314,697 | |
| (+) Senior Appraised Value: | + | $0 | |
| (+) Non-Senior Appraised Value: | + | $314,697 | |
| | | -------------------------- | |
| (=) Total Appraised Value: | = | $314,697 | |
| (–) Senior Exemption Loss: | – | $0 | |
| (–) Exemption Loss: | – | $0 | |
| | | -------------------------- | |
| (=) Taxable Value: | = | $314,697 | |
Taxing Jurisdiction
| Owner: | GREER, MAISIE | | |
| % Ownership: | 100.0000000000% | | |
| Total Value: | $314,697 | | |
| Tax Area: | 700 - APPRAISER-S Whid Schl Dist, in town of Langley |
| CF | Conservation Futures | 0.0316035091 | $314,697 | $314,697 | $9.95 | | |
| LANG | City of Langley | 1.0093520762 | $314,697 | $314,697 | $317.64 | | |
| LANGBOND | City of Langley BOND | 1.0326110892 | $314,697 | $314,697 | $324.96 | | |
| FIRE3 | Fire & Rescue Dist #3 S Whidbey GEN | 1.2004855531 | $314,697 | $314,697 | $377.79 | | |
| HOBOND | Hospital BOND | 0.1910887512 | $314,697 | $314,697 | $60.14 | | |
| HOGEN | Hospital GEN | 0.3902502903 | $314,697 | $314,697 | $122.81 | | |
| CE | County Current Expense | 0.3708482477 | $314,697 | $314,697 | $116.70 | | |
| ISLANDEMS | Hospital GEN (EMS) | 0.5000000000 | $314,697 | $314,697 | $157.35 | | |
| LIB | Library Sno-Isle GEN | 0.3153421757 | $314,697 | $314,697 | $99.24 | | |
| PORTWHID | Port of S Whidbey GEN | 0.1094540357 | $314,697 | $314,697 | $34.44 | | |
| SCH206BOND | School 206 BOND | 0.3161759235 | $314,697 | $314,697 | $99.50 | | |
| SCH206MO | School 206 Enrichment | 0.4547169547 | $314,697 | $314,697 | $143.10 | | |
| ST | State School | 1.3035497053 | $314,697 | $314,697 | $410.22 | | |
| ST2 | State School Part 2 | 0.8169543533 | $314,697 | $314,697 | $257.09 | | |
| SWHIDPRBD | P & R S Whidbey BOND | 0.0152817568 | $314,697 | $314,697 | $4.81 | | |
| SWHIDPRBD2 | P & R S Whidbey BOND2 | 0.0138911264 | $314,697 | $314,697 | $4.37 | | |
| SWHIDPRMT | P & R S Whidbey GEN | 0.2053334452 | $314,697 | $314,697 | $64.62 | | |
| | Total Tax Rate: | 8.2769389934 | | | | | |
| | | | | Taxes w/Current Exemptions: | $2,604.73 | | |
| | | | | Taxes w/o Exemptions: | $2,604.73 | | |
Improvement / Building
| Improvement #1: | RESIDENTIAL | State Code: | A1 | 727.0 sqft | Value: | $164,697 |
| Bathrooms: | 1 | Bedrooms: | 2 | | Ceiling: | DRYWALL PAINTED | Exterior Wall/Cover: | CEMENT FIBER | | Floor Covering: | CARPET/VINYL 80-20 | Floor Structure: | WOOD W/SUBFLOOR | | Foundation: | CONCRETE | Heating: | FHA GAS | | Interior Finish: | DRYWALL PAINT | Plumbing Fixture Cnt: | 6 | | Roof Slope: | 8" IN 12" | Roof Structure/Cover: | CJ ASPHALT |
|
| | Type | Description | Class CD | Sub Class CD | Year Built | Area |
| | BAS | BASE/MAIN FLOOR | 3 | 0 | 1997 | 727.0 |
| | OP1 | OPEN PORCH SLAB | 3 | 0 | 1997 | 84.0 |
| | OCP | OPEN CARPORT | 3 | 0 | 1997 | 162.0 |
| | COMA | Common Area Improvement | 3 | 0 | 1997 | 0.0 |
Sketch
Property Image
Land
| 1 | 61 | MULTIPLE RESIDENCES | 0.0000 | 0.00 | 0.00 | 0.00 | 1.00 | $150,000 | $0 |
Roll Value History
| 2026 | N/A | N/A | N/A | N/A | N/A |
| 2025 | $164,697 | $150,000 | $0 | $314,697 | $314,697 |
| 2024 | $166,486 | $120,000 | $0 | $286,486 | $286,486 |
| 2023 | $168,274 | $100,000 | $0 | $268,274 | $268,274 |
| 2022 | $155,489 | $70,000 | $0 | $225,489 | $225,489 |
| 2021 | $138,684 | $70,000 | $0 | $208,684 | $208,684 |
| 2020 | $107,928 | $95,000 | $0 | $202,928 | $202,928 |
| 2019 | $73,341 | $120,000 | $0 | $193,341 | $193,341 |
Deed and Sales History
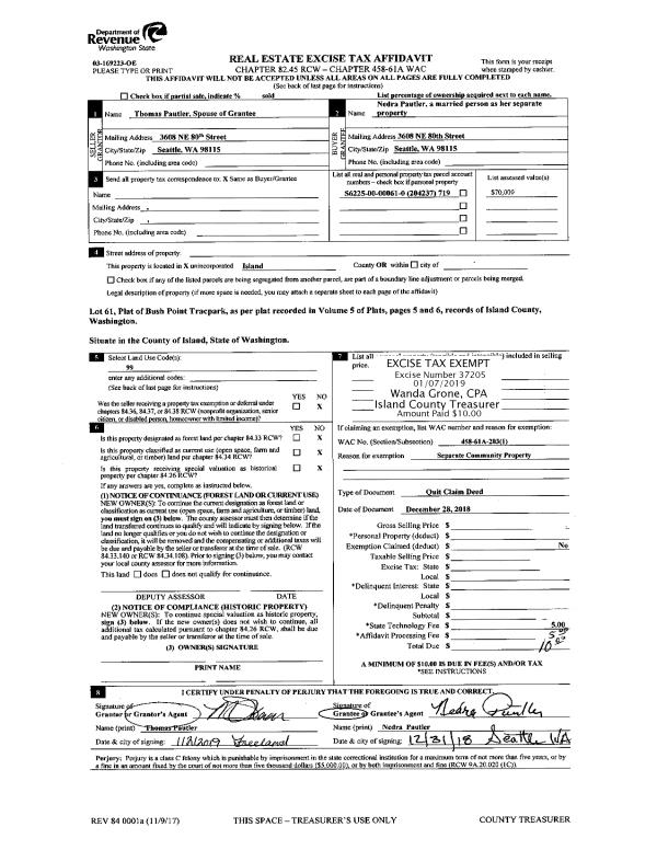
| 1 | 12/28/2018 | WD | Warranty Deed | FIFTH STREET COMMONS CONDOMINIUM ASSN | GREER, MAISIE | | | $175,000.00 | 37187 | 4457455 |
Payout Agreement
| No payout information available.. |