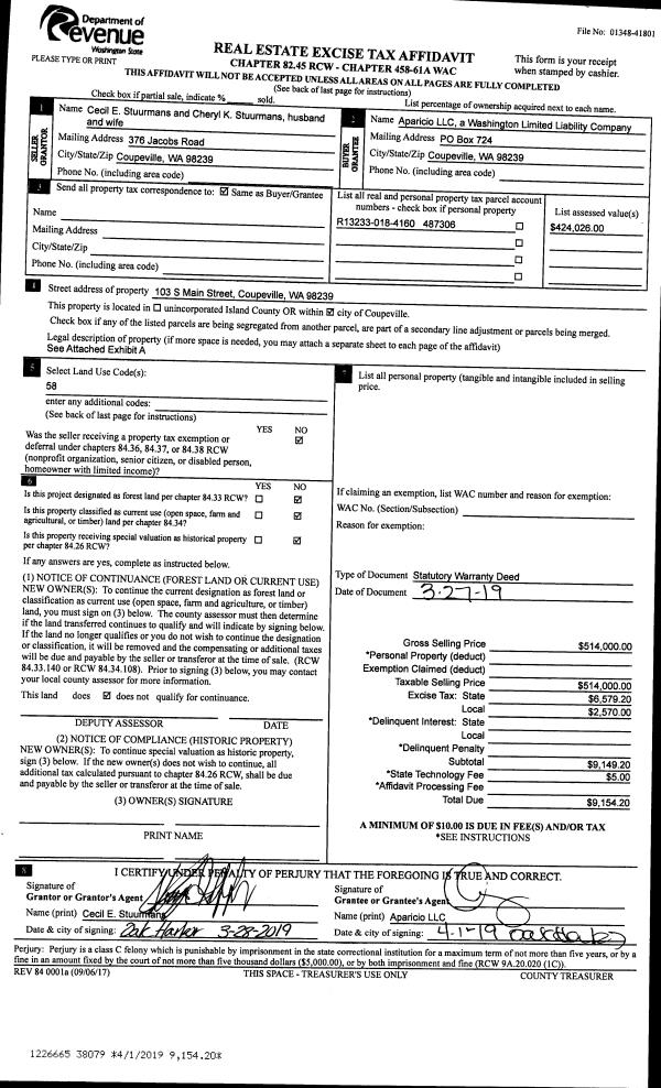
Property
Account |
| Property ID: | 813239 | Abbreviated Legal Description: | LOT 2 SP 183-18.23117.150-1920 AF#4451303 |
| Geographic ID: | R23117-156-1910 | Agent Code: | |
| Type: | Real | | |
| Tax Area: | 319 - APPRAISER-Cpvl Schl Dist, outside Cpvl, vacant & 50 acres or less | Land Use Code | 91 |
| Open Space: | N | DFL | N |
| Historic Property: | N | Remodel Property: | N |
| Multi-Family Redevelopment: | N | | |
| Township: | 31 | Section: | 17 |
| Range: | R2 |
Location |
| Address: | | Mapsco: | |
| Neighborhood: | Area 2 Waterfront Eastside Res | Map ID: | 487 |
| Neighborhood CD: | 2WFTE01R |
Owner |
| Name: | BILLENSTEIN, MANFRED | Owner ID: | 288597 |
| Mailing Address: | 19042 CRIMSON CLOVER TERRACE LEESBURG, VA 20176 | % Ownership: | 100.0000000000% |
| | | Exemptions: | |
Taxes and Assessment Details
Values
| (+) Improvement Homesite Value: | + | $0 | |
| (+) Improvement Non-Homesite Value: | + | $0 | |
| (+) Land Homesite Value: | + | $0 | |
| (+) Land Non-Homesite Value: | + | $475,000 | |
| (+) Curr Use (HS): | + | $0 | $0 |
| (+) Curr Use (NHS): | + | $0 | $0 |
| | | -------------------------- | |
| (=) Market Value: | = | $475,000 | |
| (–) Productivity Loss: | – | $0 | |
| | | -------------------------- | |
| (=) Subtotal: | = | $475,000 | |
| (+) Senior Appraised Value: | + | $0 | |
| (+) Non-Senior Appraised Value: | + | $475,000 | |
| | | -------------------------- | |
| (=) Total Appraised Value: | = | $475,000 | |
| (–) Senior Exemption Loss: | – | $0 | |
| (–) Exemption Loss: | – | $0 | |
| | | -------------------------- | |
| (=) Taxable Value: | = | $475,000 | |
Taxing Jurisdiction
| Owner: | BILLENSTEIN, MANFRED | | |
| % Ownership: | 100.0000000000% | | |
| Total Value: | $475,000 | | |
| Tax Area: | 319 - APPRAISER-Cpvl Schl Dist, outside Cpvl, vacant & 50 acres or less |
| CF | Conservation Futures | 0.0316035091 | $475,000 | $475,000 | $15.01 | | |
| CEM2 | Cemetery #2 | 0.0095056933 | $475,000 | $475,000 | $4.52 | | |
| HOBOND | Hospital BOND | 0.1910887512 | $475,000 | $475,000 | $90.77 | | |
| HOGEN | Hospital GEN | 0.3902502903 | $475,000 | $475,000 | $185.37 | | |
| CE | County Current Expense | 0.3708482477 | $475,000 | $475,000 | $176.15 | | |
| CR | County Roads | 0.4584763726 | $475,000 | $475,000 | $217.78 | | |
| ISLANDEMS | Hospital GEN (EMS) | 0.5000000000 | $475,000 | $475,000 | $237.50 | | |
| LIB | Library Sno-Isle GEN | 0.3153421757 | $475,000 | $475,000 | $149.79 | | |
| LIBCAP | Library Sno-Isle BOND (Cap Fac Imp Area) | 0.0543427938 | $475,000 | $475,000 | $25.81 | | |
| POCOUP | Port of Coupeville GEN | 0.1093371703 | $475,000 | $475,000 | $51.94 | | |
| POCOUPIDD | Port of Coupeville IDD | 0.3409740022 | $475,000 | $475,000 | $161.96 | | |
| COUPSDTECH | School 204 CP (TECH) | 0.7545480007 | $475,000 | $475,000 | $358.41 | | |
| SCH204MO | School 204 Enrichment | 0.6716186034 | $475,000 | $475,000 | $319.02 | | |
| ST | State School | 1.3035497053 | $475,000 | $475,000 | $619.19 | | |
| ST2 | State School Part 2 | 0.8169543533 | $475,000 | $475,000 | $388.05 | | |
| | Total Tax Rate: | 6.3184396689 | | | | | |
| | | | | Taxes w/Current Exemptions: | $3,001.27 | | |
| | | | | Taxes w/o Exemptions: | $3,001.27 | | |
Improvement / Building
Sketch
| No sketches available for this property. |
Property Image
Land
| 1 | HB | HIGH BLUFF | 4.7000 | 204732.00 | 176.49 | 0.00 | 1.00 | $475,000 | $0 |
Roll Value History
| 2026 | N/A | N/A | N/A | N/A | N/A |
| 2025 | $0 | $475,000 | $0 | $475,000 | $475,000 |
| 2024 | $0 | $475,000 | $0 | $475,000 | $475,000 |
| 2023 | $0 | $450,000 | $0 | $450,000 | $450,000 |
| 2022 | $0 | $400,000 | $0 | $400,000 | $400,000 |
| 2021 | $0 | $325,000 | $0 | $325,000 | $325,000 |
| 2020 | $0 | $275,000 | $0 | $275,000 | $275,000 |
| 2019 | $0 | $300,000 | $0 | $300,000 | $300,000 |
| 2018 | $0 | $206,820 | $0 | $206,820 | $206,820 |
Deed and Sales History
| 1 | 11/07/2024 | QCD | Quit Claim Deed | BILLENSTEIN, MANFRED | RIEPL, HELMUT | | | $0.00 | 61916 | 4579765 |
| 2 | 02/06/2019 | QCD | Quit Claim Deed | RIEPL, HELMUT & REBECCA | BILLENSTEIN, MANFRED | | | | 37020 | 4456727 |
Payout Agreement
| No payout information available.. |