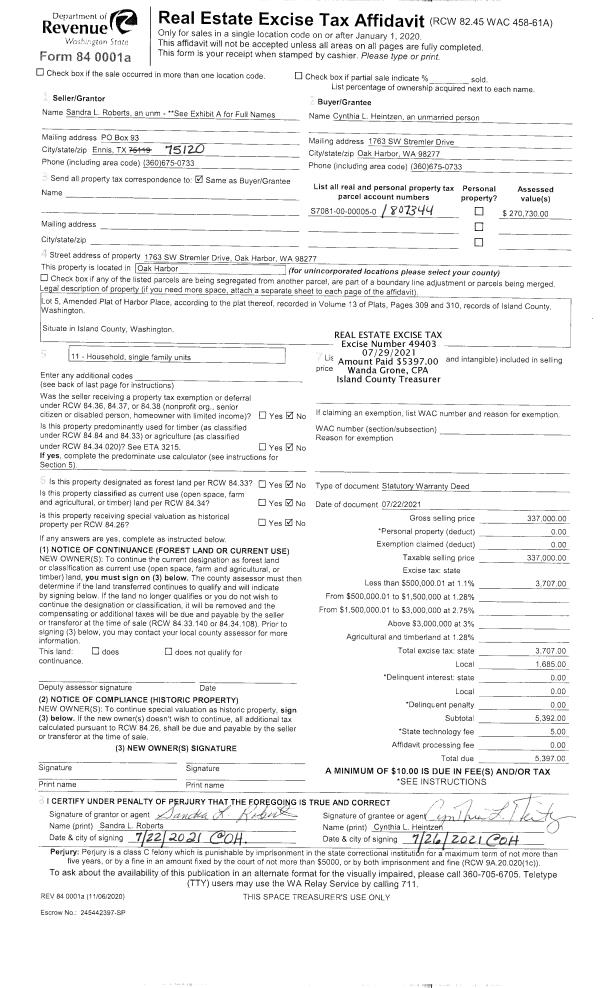
Property
Account |
| Property ID: | 813270 | Abbreviated Legal Description: | LOT 1 SP 316-17.32918-089-5110 AF# 4458170 |
| Geographic ID: | R32918-089-4840 | Agent Code: | |
| Type: | Real | | |
| Tax Area: | 712 - APPRAISER-S Whid Schl Dist, outside Langley, improved, greater than 1 acre | Land Use Code | 11 |
| Open Space: | N | DFL | N |
| Historic Property: | N | Remodel Property: | N |
| Multi-Family Redevelopment: | N | | |
| Township: | 29 | Section: | 18 |
| Range: | R3 |
Location |
| Address: | 2735 EVA LN CLINTON, WA 98236 | Mapsco: | |
| Neighborhood: | Cycle 4 | Map ID: | 784 |
| Neighborhood CD: | 4 |
Owner |
| Name: | BASS, CHARLES M | Owner ID: | 277979 |
| Mailing Address: | CHELSEA L BASS 2735 EVA LN CLINTON, WA 98236 | % Ownership: | 100.0000000000% |
| | | Exemptions: | |
Taxes and Assessment Details
Values
| (+) Improvement Homesite Value: | + | $0 | |
| (+) Improvement Non-Homesite Value: | + | $771,612 | |
| (+) Land Homesite Value: | + | $0 | |
| (+) Land Non-Homesite Value: | + | $420,000 | |
| (+) Curr Use (HS): | + | $0 | $0 |
| (+) Curr Use (NHS): | + | $0 | $0 |
| | | -------------------------- | |
| (=) Market Value: | = | $1,191,612 | |
| (–) Productivity Loss: | – | $0 | |
| | | -------------------------- | |
| (=) Subtotal: | = | $1,191,612 | |
| (+) Senior Appraised Value: | + | $0 | |
| (+) Non-Senior Appraised Value: | + | $1,191,612 | |
| | | -------------------------- | |
| (=) Total Appraised Value: | = | $1,191,612 | |
| (–) Senior Exemption Loss: | – | $0 | |
| (–) Exemption Loss: | – | $0 | |
| | | -------------------------- | |
| (=) Taxable Value: | = | $1,191,612 | |
Taxing Jurisdiction
| Owner: | BASS, CHARLES M | | |
| % Ownership: | 100.0000000000% | | |
| Total Value: | $1,191,612 | | |
| Tax Area: | 712 - APPRAISER-S Whid Schl Dist, outside Langley, improved, greater than 1 acre |
| CF | Conservation Futures | 0.0316035091 | $1,191,612 | $1,191,612 | $37.66 | | |
| FIRE3 | Fire & Rescue Dist #3 S Whidbey GEN | 1.2004855531 | $1,191,612 | $1,191,612 | $1,430.51 | | |
| HOBOND | Hospital BOND | 0.1910887512 | $1,191,612 | $1,191,612 | $227.70 | | |
| HOGEN | Hospital GEN | 0.3902502903 | $1,191,612 | $1,191,612 | $465.03 | | |
| CE | County Current Expense | 0.3708482477 | $1,191,612 | $1,191,612 | $441.91 | | |
| CR | County Roads | 0.4584763726 | $1,191,612 | $1,191,612 | $546.33 | | |
| ISLANDEMS | Hospital GEN (EMS) | 0.5000000000 | $1,191,612 | $1,191,612 | $595.81 | | |
| LIB | Library Sno-Isle GEN | 0.3153421757 | $1,191,612 | $1,191,612 | $375.77 | | |
| PORTWHID | Port of S Whidbey GEN | 0.1094540357 | $1,191,612 | $1,191,612 | $130.43 | | |
| SCH206BOND | School 206 BOND | 0.3161759235 | $1,191,612 | $1,191,612 | $376.76 | | |
| SCH206MO | School 206 Enrichment | 0.4547169547 | $1,191,612 | $1,191,612 | $541.85 | | |
| ST | State School | 1.3035497053 | $1,191,612 | $1,191,612 | $1,553.33 | | |
| ST2 | State School Part 2 | 0.8169543533 | $1,191,612 | $1,191,612 | $973.49 | | |
| SWHIDPRBD | P & R S Whidbey BOND | 0.0152817568 | $1,191,612 | $1,191,612 | $18.21 | | |
| SWHIDPRBD2 | P & R S Whidbey BOND2 | 0.0138911264 | $1,191,612 | $1,191,612 | $16.55 | | |
| SWHIDPRMT | P & R S Whidbey GEN | 0.2053334452 | $1,191,612 | $1,191,612 | $244.68 | | |
| | Total Tax Rate: | 6.6934522006 | | | | | |
| | | | | Taxes w/Current Exemptions: | $7,976.02 | | |
| | | | | Taxes w/o Exemptions: | $7,976.02 | | |
Improvement / Building
| Improvement #1: | RESIDENTIAL | State Code: | Y | 3447.4 sqft | Value: | $771,612 |
| Bathrooms: | 3.5 | Bedrooms: | 3 | | Ceiling: | DRYWALL PAINTED | Cooling: | HEAT PUMP/CONV/V | | Exterior Wall/Cover: | CEMENT FIBER | Floor Covering: | VINYL 100% | | Floor Structure: | WOOD W/SUBFLOOR | Foundation: | CONCRETE | | Interior Finish: | DRYWALL PAINT | Plumbing Fixture Cnt: | 16 | | Roof Slope: | 6" IN 12" | Roof Structure/Cover: | CJ ASPHALT |
|
| | Type | Description | Class CD | Sub Class CD | Year Built | Area |
| | BAS | BASE/MAIN FLOOR | 5 | 0 | 2018 | 2666.5 |
| | UPS | UPPER STORY | 5 | 0 | 2018 | 780.9 |
| | AGR | ATTACHED GARAGE | 5 | 0 | 2018 | 822.1 |
| | CPD | OPEN CARPORT DIRT FLOOR | 5 | 0 | 2018 | 300.0 |
| | OP4 | OPEN PORCH W/CEILING-ROOF | 5 | 0 | 2018 | 374.2 |
| | OWC | OPEN WOOD PORCH W/STEPS/ROOF/C | 5 | 0 | 2018 | 140.7 |
Sketch
Property Image
Land
| 1 | 32 | AC (03.01-09.99) | 0.0000 | 0.00 | 0.00 | 0.00 | 1.00 | $420,000 | $0 |
Roll Value History
| 2026 | N/A | N/A | N/A | N/A | N/A |
| 2025 | $771,612 | $420,000 | $0 | $1,191,612 | $1,191,612 |
| 2024 | $777,884 | $390,000 | $0 | $1,167,884 | $1,167,884 |
| 2023 | $784,157 | $350,000 | $0 | $1,134,157 | $1,134,157 |
| 2022 | $715,739 | $350,000 | $0 | $1,065,739 | $1,065,739 |
| 2021 | $627,310 | $300,000 | $0 | $927,310 | $927,310 |
| 2020 | $586,999 | $260,000 | $0 | $846,999 | $846,999 |
| 2019 | $479,990 | $300,000 | $0 | $779,990 | $779,990 |
| 2018 | $291,503 | $162,500 | $0 | $454,003 | $454,003 |
Deed and Sales History
Payout Agreement
| No payout information available.. |