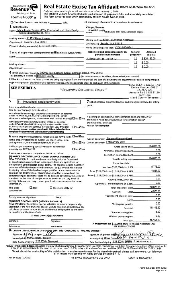
Property
Account |
| Property ID: | 813426 | Abbreviated Legal Description: | SUMMERWIND II CONDO UNIT E-304 |
| Geographic ID: | S8565-00-0E304-0 | Agent Code: | |
| Type: | Real | | |
| Tax Area: | 100 - APPRAISER-OH Schl Dist, in OH | Land Use Code | 14 |
| Open Space: | N | DFL | N |
| Historic Property: | N | Remodel Property: | N |
| Multi-Family Redevelopment: | N | | |
| Township: | 32 | Section: | 3 |
| Range: | R1 |
Location |
| Address: | 1651 SW MULBERRY PLACE UNIT E304 OAK HARBOR, WA 98277 | Mapsco: | |
| Neighborhood: | 3AcOH-ft nuggent | Map ID: | 90 |
| Neighborhood CD: | 3AcOHftngt |
Owner |
| Name: | NEGRON, ANTHONY JOSEPH | Owner ID: | 301316 |
| Mailing Address: | 1651 SW MULBERRY PL #E304 OAK HARBOR, WA 98277 | % Ownership: | 100.0000000000% |
| | | Exemptions: | |
Taxes and Assessment Details
Values
| (+) Improvement Homesite Value: | + | $221,737 | |
| (+) Improvement Non-Homesite Value: | + | $0 | |
| (+) Land Homesite Value: | + | $0 | |
| (+) Land Non-Homesite Value: | + | $65,000 | |
| (+) Curr Use (HS): | + | $0 | $0 |
| (+) Curr Use (NHS): | + | $0 | $0 |
| | | -------------------------- | |
| (=) Market Value: | = | $286,737 | |
| (–) Productivity Loss: | – | $0 | |
| | | -------------------------- | |
| (=) Subtotal: | = | $286,737 | |
| (+) Senior Appraised Value: | + | $0 | |
| (+) Non-Senior Appraised Value: | + | $286,737 | |
| | | -------------------------- | |
| (=) Total Appraised Value: | = | $286,737 | |
| (–) Senior Exemption Loss: | – | $0 | |
| (–) Exemption Loss: | – | $0 | |
| | | -------------------------- | |
| (=) Taxable Value: | = | $286,737 | |
Taxing Jurisdiction
| Owner: | NEGRON, ANTHONY JOSEPH | | |
| % Ownership: | 100.0000000000% | | |
| Total Value: | $286,737 | | |
| Tax Area: | 100 - APPRAISER-OH Schl Dist, in OH |
| CF | Conservation Futures | 0.0316035091 | $286,737 | $286,737 | $9.06 | | |
| CEM1 | Cemetery #1 | 0.0040320932 | $286,737 | $286,737 | $1.16 | | |
| COH | City of Oak Harbor | 2.3001546061 | $286,737 | $286,737 | $659.54 | | |
| OAKBOND | City of Oak Harbor BOND | 0.1926904192 | $286,737 | $286,737 | $55.25 | | |
| HOBOND | Hospital BOND | 0.1910887512 | $286,737 | $286,737 | $54.79 | | |
| HOGEN | Hospital GEN | 0.3902502903 | $286,737 | $286,737 | $111.90 | | |
| CE | County Current Expense | 0.3708482477 | $286,737 | $286,737 | $106.34 | | |
| ISLANDEMS | Hospital GEN (EMS) | 0.5000000000 | $286,737 | $286,737 | $143.37 | | |
| LIB | Library Sno-Isle GEN | 0.3153421757 | $286,737 | $286,737 | $90.42 | | |
| NWHIDPRMT | P & R N Whidbey GEN | 0.2004466701 | $286,737 | $286,737 | $57.48 | | |
| SCH201MO | School 201 Enrichment | 1.8559231640 | $286,737 | $286,737 | $532.16 | | |
| ST | State School | 1.3035497053 | $286,737 | $286,737 | $373.78 | | |
| ST2 | State School Part 2 | 0.8169543533 | $286,737 | $286,737 | $234.25 | | |
| | Total Tax Rate: | 8.4728839852 | | | | | |
| | | | | Taxes w/Current Exemptions: | $2,429.50 | | |
| | | | | Taxes w/o Exemptions: | $2,429.50 | | |
Improvement / Building
| Improvement #1: | RESIDENTIAL | State Code: | A1 | 961.0 sqft | Value: | $221,737 |
| Bathrooms: | 2 | Bedrooms: | 2 | | Ceiling: | DRYWALL PAINTED | Exterior Wall/Cover: | CEMENT FIBER | | Floor Covering: | CARPET/VINYL 80-20 | Floor Structure: | WOOD W/SUBFLOOR | | Foundation: | CONCRETE | Heating: | FHA GAS | | Interior Finish: | DRYWALL PAINT | Plumbing Fixture Cnt: | 10 | | Roof Slope: | 4" IN 12" | Roof Structure/Cover: | CJ ASPHALT |
|
| | Type | Description | Class CD | Sub Class CD | Year Built | Area |
| | BAS | BASE/MAIN FLOOR | 3 | 0 | 2019 | 961.0 |
| | OP4 | OPEN PORCH W/CEILING-ROOF | 3 | 0 | 2019 | 72.0 |
| | OWC | OPEN WOOD PORCH W/STEPS/ROOF/C | 3 | 0 | 2019 | 66.0 |
| | OCP | OPEN CARPORT | 3 | 0 | 2019 | 136.0 |
| | COMA | Common Area Improvement | 3 | 0 | 2019 | 0.0 |
Sketch
Property Image
Land
| 1 | 61 | MULTIPLE RESIDENCES | 0.0000 | 0.00 | 0.00 | 0.00 | 1.00 | $65,000 | $0 |
Roll Value History
| 2026 | N/A | N/A | N/A | N/A | N/A |
| 2025 | $221,737 | $65,000 | $0 | $286,737 | $286,737 |
| 2024 | $223,488 | $65,000 | $0 | $288,488 | $288,488 |
| 2023 | $225,239 | $65,000 | $0 | $290,239 | $290,239 |
| 2022 | $205,986 | $65,000 | $0 | $270,986 | $270,986 |
| 2021 | $181,550 | $40,000 | $0 | $221,550 | $221,550 |
| 2020 | $177,192 | $35,000 | $0 | $212,192 | $212,192 |
| 2019 | $124,166 | $75,000 | $0 | $199,166 | $199,166 |
Deed and Sales History
| 1 | 09/10/2021 | WD | Warranty Deed | YOUNG, VICTORIA M | NEGRON, ANTHONY JOSEPH | | | $300,000.00 | 50185 | 4529987 |
| 2 | 06/18/2019 | WD | Warranty Deed | SUMMERWIND VENTURES II LLC | YOUNG, VICTORIA M | | | $219,500.00 | 39044 | 4465662 |
Payout Agreement
| No payout information available.. |