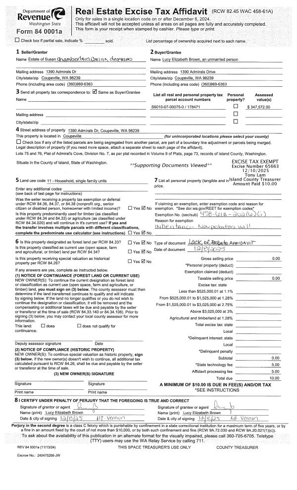
Property
Account |
| Property ID: | 81351 | Abbreviated Legal Description: | 43 - BG 199'N & 30'W OF SE CR GL3 W300' S100' E300' N100' TPB |
| Geographic ID: | R23115-408-5100 | Agent Code: | |
| Type: | Real | | |
| Tax Area: | 519 - APPRAISER-Stan/Cam Schl Dist, vacant & 50 acres or less | Land Use Code | 91 |
| Open Space: | N | DFL | N |
| Historic Property: | N | Remodel Property: | N |
| Multi-Family Redevelopment: | N | | |
| Township: | 31 | Section: | 15 |
| Range: | R2 |
Location |
| Address: | | Mapsco: | |
| Neighborhood: | Cycle 5 | Map ID: | 486 |
| Neighborhood CD: | 5 |
Owner |
| Name: | YERIAN, JEFFREY R | Owner ID: | 297283 |
| Mailing Address: | 110 SW 208TH ST NORMANDY PARK, WA 98166 | % Ownership: | 100.0000000000% |
| | | Exemptions: | |
Taxes and Assessment Details
Values
| (+) Improvement Homesite Value: | + | $0 | |
| (+) Improvement Non-Homesite Value: | + | $0 | |
| (+) Land Homesite Value: | + | $0 | |
| (+) Land Non-Homesite Value: | + | $120,000 | |
| (+) Curr Use (HS): | + | $0 | $0 |
| (+) Curr Use (NHS): | + | $0 | $0 |
| | | -------------------------- | |
| (=) Market Value: | = | $120,000 | |
| (–) Productivity Loss: | – | $0 | |
| | | -------------------------- | |
| (=) Subtotal: | = | $120,000 | |
| (+) Senior Appraised Value: | + | $0 | |
| (+) Non-Senior Appraised Value: | + | $120,000 | |
| | | -------------------------- | |
| (=) Total Appraised Value: | = | $120,000 | |
| (–) Senior Exemption Loss: | – | $0 | |
| (–) Exemption Loss: | – | $0 | |
| | | -------------------------- | |
| (=) Taxable Value: | = | $120,000 | |
Taxing Jurisdiction
| Owner: | YERIAN, JEFFREY R | | |
| % Ownership: | 100.0000000000% | | |
| Total Value: | $120,000 | | |
| Tax Area: | 519 - APPRAISER-Stan/Cam Schl Dist, vacant & 50 acres or less |
| CF | Conservation Futures | 0.0316035091 | $120,000 | $120,000 | $3.79 | | |
| EMS1 | Fire & Rescue Dist #1 Camano GEN (EMS) | 0.3677864386 | $120,000 | $120,000 | $44.13 | | |
| CE | County Current Expense | 0.3708482477 | $120,000 | $120,000 | $44.50 | | |
| CR | County Roads | 0.4584763726 | $120,000 | $120,000 | $55.02 | | |
| LCIB | Library Sno-Isle BOND (Camano Island) | 0.0396325772 | $120,000 | $120,000 | $4.76 | | |
| LIB | Library Sno-Isle GEN | 0.3153421757 | $120,000 | $120,000 | $37.84 | | |
| SCH205_401 | School 205-401 Enrichment | 1.2698420524 | $120,000 | $120,000 | $152.38 | | |
| SCH205BOND | School 205-401 BOND | 0.9396497583 | $120,000 | $120,000 | $112.76 | | |
| ST | State School | 1.3035497053 | $120,000 | $120,000 | $156.43 | | |
| ST2 | State School Part 2 | 0.8169543533 | $120,000 | $120,000 | $98.03 | | |
| | Total Tax Rate: | 5.9136851902 | | | | | |
| | | | | Taxes w/Current Exemptions: | $709.64 | | |
| | | | | Taxes w/o Exemptions: | $709.64 | | |
Improvement / Building
Sketch
| No sketches available for this property. |
Property Image
Land
| 1 | 16 | AC (00.51-01.00) | 0.6900 | 30056.40 | 0.00 | 0.00 | 1.00 | $120,000 | $0 |
Roll Value History
| 2026 | N/A | N/A | N/A | N/A | N/A |
| 2025 | $0 | $120,000 | $0 | $120,000 | $120,000 |
| 2024 | $0 | $130,000 | $0 | $130,000 | $130,000 |
| 2023 | $0 | $110,000 | $0 | $110,000 | $110,000 |
| 2022 | $0 | $110,000 | $0 | $110,000 | $110,000 |
| 2021 | $0 | $70,000 | $0 | $70,000 | $70,000 |
| 2020 | $0 | $7,000 | $0 | $7,000 | $7,000 |
| 2019 | $0 | $7,000 | $0 | $7,000 | $7,000 |
| 2018 | $0 | $7,000 | $0 | $7,000 | $7,000 |
| 2017 | $0 | $5,000 | $0 | $5,000 | $5,000 |
| 2016 | $0 | $5,000 | $0 | $5,000 | $5,000 |
| 2015 | $0 | $5,000 | $0 | $5,000 | $5,000 |
| 2014 | $0 | $5,000 | $0 | $5,000 | $5,000 |
| 2013 | $0 | $23,200 | $0 | $23,200 | $23,200 |
| 2012 | $0 | $23,200 | $0 | $23,200 | $23,200 |
| 2011 | $0 | $23,200 | $0 | $23,200 | $23,200 |
| 2010 | $0 | $23,200 | $0 | $23,200 | $23,200 |
| 2009 | $0 | $25,000 | $0 | $25,000 | $25,000 |
| 2008 | $0 | $148,000 | $0 | $148,000 | $148,000 |
| 2007 | $0 | $148,000 | $0 | $148,000 | $148,000 |
Deed and Sales History
| 1 | 08/01/2025 | WD | Warranty Deed | YERIAN, JEFFREY R | PETZOLDT, DUANE | | | $245,000.00 | 64368 | 4589110 |
| 2 | 10/26/2020 | WD | Warranty Deed | WIGGERS, KEITH L | YERIAN, JEFFREY R | | | $137,500.00 | 45434 | 4500765 |
| 3 | 11/17/2003 | TRUSTEED | Trustee's Deed | TESSEM, JOSEPH A | WIGGERS, KEITH L | | | $0.00 | 35197 | 4083119 |
| 4 | 04/01/1997 | WD | Warranty Deed | HOPKINS, PAUL S | TESSEM, JOSEPH A | | | $30,500.00 | 71073 | 97004875 |
| 5 | 11/01/1996 | WD | Warranty Deed | WOOLHOUSE, VERNA L | HOPKINS, PAUL S | | | $13,333.00 | 64227 | 96020604 |
| 6 | 01/01/1993 | OTHER | Other - Misc. Documents | WOOLHOUSE, JAMES E | WOOLHOUSE, VERNA L | | | $0.00 | 65202 | 0 |
| 7 | 01/01/1900 | OTHER | Other - Misc. Documents | Unknown | WOOLHOUSE, JAMES E | | | $0.00 | 0 | 0 |
Payout Agreement
| No payout information available.. |