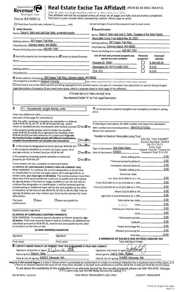
Property
Account |
| Property ID: | 813560 | Abbreviated Legal Description: | PT GL4: BG CLN BODY OF WATER & DRAINAGE AREA TO CRANBERRY LAKE SD CLN LY EQUIDISTANT BETW ELY & WLY BANKS OF SD BODY OF WATER & DRAINAGE AREA 2720'N OF SLN GL2 SEC 3-T33N-R1E NLY ALG SD CLN TP 2820'N OF SLN SD GL2 ELN GL4 S TO PT E TPB W PARA/W SLN SD GL |
| Geographic ID: | R13434-023-5040 | Agent Code: | |
| Type: | Real | | |
| Tax Area: | 119 - APPRAISER-OH Schl Dist, outside OH, vacant & 50 acres or less | Land Use Code | 91 |
| Open Space: | N | DFL | N |
| Historic Property: | N | Remodel Property: | N |
| Multi-Family Redevelopment: | N | | |
| Township: | 34 | Section: | 34 |
| Range: | R1 |
Location |
| Address: | | Mapsco: | |
| Neighborhood: | Cycle 6 | Map ID: | 271 |
| Neighborhood CD: | 6 |
Owner |
| Name: | VALENTA TOWLE ERNST KEESLING, IND & CO-TR TR 2 | Owner ID: | 291054 |
| Mailing Address: | 15710 - 158TH AVE NE WOODINVILLE, WA 98072 | % Ownership: | 100.0000000000% |
| | | Exemptions: | |
Taxes and Assessment Details
Values
| (+) Improvement Homesite Value: | + | $0 | |
| (+) Improvement Non-Homesite Value: | + | $0 | |
| (+) Land Homesite Value: | + | $0 | |
| (+) Land Non-Homesite Value: | + | $100,000 | |
| (+) Curr Use (HS): | + | $0 | $0 |
| (+) Curr Use (NHS): | + | $0 | $0 |
| | | -------------------------- | |
| (=) Market Value: | = | $100,000 | |
| (–) Productivity Loss: | – | $0 | |
| | | -------------------------- | |
| (=) Subtotal: | = | $100,000 | |
| (+) Senior Appraised Value: | + | $0 | |
| (+) Non-Senior Appraised Value: | + | $100,000 | |
| | | -------------------------- | |
| (=) Total Appraised Value: | = | $100,000 | |
| (–) Senior Exemption Loss: | – | $0 | |
| (–) Exemption Loss: | – | $0 | |
| | | -------------------------- | |
| (=) Taxable Value: | = | $100,000 | |
Taxing Jurisdiction
| Owner: | VALENTA TOWLE ERNST KEESLING, IND & CO-TR TR 2 | | |
| % Ownership: | 100.0000000000% | | |
| Total Value: | $100,000 | | |
| Tax Area: | 119 - APPRAISER-OH Schl Dist, outside OH, vacant & 50 acres or less |
| CF | Conservation Futures | 0.0316035091 | $100,000 | $100,000 | $3.16 | | |
| CEM1 | Cemetery #1 | 0.0040320932 | $100,000 | $100,000 | $0.40 | | |
| HOBOND | Hospital BOND | 0.1910887512 | $100,000 | $100,000 | $19.11 | | |
| HOGEN | Hospital GEN | 0.3902502903 | $100,000 | $100,000 | $39.03 | | |
| CE | County Current Expense | 0.3708482477 | $100,000 | $100,000 | $37.08 | | |
| CR | County Roads | 0.4584763726 | $100,000 | $100,000 | $45.85 | | |
| ISLANDEMS | Hospital GEN (EMS) | 0.5000000000 | $100,000 | $100,000 | $50.00 | | |
| LIB | Library Sno-Isle GEN | 0.3153421757 | $100,000 | $100,000 | $31.53 | | |
| NWHIDPRMT | P & R N Whidbey GEN | 0.2004466701 | $100,000 | $100,000 | $20.04 | | |
| SCH201MO | School 201 Enrichment | 1.8559231640 | $100,000 | $100,000 | $185.59 | | |
| ST | State School | 1.3035497053 | $100,000 | $100,000 | $130.35 | | |
| ST2 | State School Part 2 | 0.8169543533 | $100,000 | $100,000 | $81.70 | | |
| | Total Tax Rate: | 6.4385153325 | | | | | |
| | | | | Taxes w/Current Exemptions: | $643.84 | | |
| | | | | Taxes w/o Exemptions: | $643.84 | | |
Improvement / Building
Sketch
| No sketches available for this property. |
Property Image
Land
| 1 | 17 | AC (01.01-02.00) | 0.0000 | 0.00 | 0.00 | 0.00 | 1.00 | $100,000 | $0 |
Roll Value History
| 2026 | N/A | N/A | N/A | N/A | N/A |
| 2025 | $0 | $100,000 | $0 | $100,000 | $100,000 |
| 2024 | $0 | $100,000 | $0 | $100,000 | $100,000 |
| 2023 | $0 | $100,000 | $0 | $100,000 | $100,000 |
| 2022 | $0 | $80,000 | $0 | $80,000 | $80,000 |
| 2021 | $0 | $45,000 | $0 | $45,000 | $45,000 |
| 2020 | $0 | $45,000 | $0 | $45,000 | $45,000 |
| 2019 | $0 | $45,000 | $0 | $45,000 | $45,000 |
Deed and Sales History
| 1 | 08/14/2025 | QCD | Quit Claim Deed | VALENTA TOWLE ERNST KEESLING, IND & CO-TR TR 2 | VALENTA TTEE, SUSAN L | | | $0.00 | 64587 | 4590026 |
| 2 | 09/25/2006 | QCD | Quit Claim Deed | VALENTA TOWLE ERNST KEESLING, IND & CO-TR TR 2 | | | | | 64294 | 4183448 |
| 3 | 12/29/2005 | QCD | Quit Claim Deed | VALENTA TOWLE ERNST, IND & TR1 & TR2 | VALENTA TOWLE ERNST KEESLING, IND & CO-TR TR 2 | | | | 60220 | 4159982 |
| 4 | 12/17/1998 | QCD | Quit Claim Deed | KEESLING ESTATE, JAMES J | VALENTA TOWLE ERNST, IND & TR1 & TR2 | | | | 32571 | 4063240 |
Payout Agreement
| No payout information available.. |