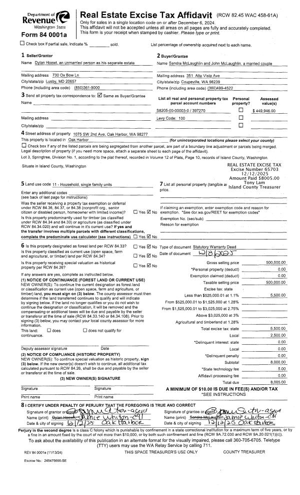
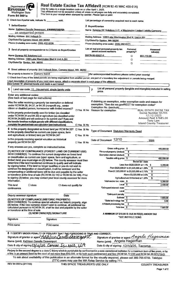
Property
Account |
| Property ID: | 813596 | Abbreviated Legal Description: | 7.6200 Acres ins Section 36s Township 29s Range R3s LOT 2 SP 264-19 AF# 4471044;s |
| Geographic ID: | R32936-061-3160 | Agent Code: | |
| Type: | Real | | |
| Tax Area: | 719 - APPRAISER-S Whid Schl Dist, outside Langley, vacant & 50 acres or less | Land Use Code | 88 |
| Open Space: | N | DFL | Y |
| Historic Property: | N | Remodel Property: | N |
| Multi-Family Redevelopment: | N | | |
| Township: | 29 | Section: | 36 |
| Range: | R3 |
Location |
| Address: | | Mapsco: | |
| Neighborhood: | Cycle 4 | Map ID: | 847 |
| Neighborhood CD: | 4 |
Owner |
| Name: | MCDONALD TTEE, DORINDA | Owner ID: | 316838 |
| Mailing Address: | 3643 RABBIT RUN RD LANGLEY, WA 98260 | % Ownership: | 100.0000000000% |
| | | Exemptions: | |
Taxes and Assessment Details
Values
| (+) Improvement Homesite Value: | + | $0 | |
| (+) Improvement Non-Homesite Value: | + | $0 | |
| (+) Land Homesite Value: | + | $0 | |
| (+) Land Non-Homesite Value: | + | $67,612 | |
| (+) Curr Use (HS): | + | $0 | $0 |
| (+) Curr Use (NHS): | + | $212,388 | $861 |
| | | -------------------------- | |
| (=) Market Value: | = | $280,000 | |
| (–) Productivity Loss: | – | $211,527 | |
| | | -------------------------- | |
| (=) Subtotal: | = | $68,473 | |
| (+) Senior Appraised Value: | + | $0 | |
| (+) Non-Senior Appraised Value: | + | $68,473 | |
| | | -------------------------- | |
| (=) Total Appraised Value: | = | $68,473 | |
| (–) Senior Exemption Loss: | – | $0 | |
| (–) Exemption Loss: | – | $0 | |
| | | -------------------------- | |
| (=) Taxable Value: | = | $68,473 | |
Taxing Jurisdiction
| Owner: | MCDONALD TTEE, DORINDA | | |
| % Ownership: | 100.0000000000% | | |
| Total Value: | $280,000 | | |
| Tax Area: | 719 - APPRAISER-S Whid Schl Dist, outside Langley, vacant & 50 acres or less |
| CF | Conservation Futures | 0.0316035091 | $68,473 | $68,473 | $2.16 | | |
| HOBOND | Hospital BOND | 0.1910887512 | $68,473 | $68,473 | $13.08 | | |
| HOGEN | Hospital GEN | 0.3902502903 | $68,473 | $68,473 | $26.72 | | |
| CE | County Current Expense | 0.3708482477 | $68,473 | $68,473 | $25.39 | | |
| CR | County Roads | 0.4584763726 | $68,473 | $68,473 | $31.39 | | |
| ISLANDEMS | Hospital GEN (EMS) | 0.5000000000 | $68,473 | $68,473 | $34.24 | | |
| LIB | Library Sno-Isle GEN | 0.3153421757 | $68,473 | $68,473 | $21.59 | | |
| PORTWHID | Port of S Whidbey GEN | 0.1094540357 | $68,473 | $68,473 | $7.49 | | |
| SCH206BOND | School 206 BOND | 0.3161759235 | $68,473 | $68,473 | $21.65 | | |
| SCH206MO | School 206 Enrichment | 0.4547169547 | $68,473 | $68,473 | $31.14 | | |
| ST | State School | 1.3035497053 | $68,473 | $68,473 | $89.26 | | |
| ST2 | State School Part 2 | 0.8169543533 | $68,473 | $68,473 | $55.94 | | |
| SWHIDPRBD | P & R S Whidbey BOND | 0.0152817568 | $68,473 | $68,473 | $1.05 | | |
| SWHIDPRBD2 | P & R S Whidbey BOND2 | 0.0138911264 | $68,473 | $68,473 | $0.95 | | |
| SWHIDPRMT | P & R S Whidbey GEN | 0.2053334452 | $68,473 | $68,473 | $14.06 | | |
| | Total Tax Rate: | 5.4929666475 | | | | | |
| | | | | Taxes w/Current Exemptions: | $376.11 | | |
| | | | | Taxes w/o Exemptions: | $376.11 | | |
Improvement / Building
Sketch
| No sketches available for this property. |
Property Image
Land
| 1 | 32 | AC (03.01-09.99) | 1.8400 | 80150.40 | 0.00 | 0.00 | 1.00 | $67,612 | $0 |
| 2 | 32 | AC (03.01-09.99) | 5.7800 | 251776.80 | 0.00 | 0.00 | 1.00 | $212,388 | $861 |
Roll Value History
| 2026 | N/A | N/A | N/A | N/A | N/A |
| 2025 | $0 | $280,000 | $861 | $68,473 | $68,473 |
| 2024 | $0 | $280,000 | $867 | $76,785 | $76,785 |
| 2023 | $0 | $240,000 | $832 | $58,785 | $58,785 |
| 2022 | $0 | $230,000 | $832 | $56,370 | $56,370 |
| 2021 | $0 | $190,000 | $832 | $46,711 | $46,711 |
| 2020 | $0 | $170,000 | $832 | $41,882 | $41,882 |
| 2019 | $0 | $116,000 | $803 | $28,813 | $28,813 |
Deed and Sales History
| 1 | 06/06/2025 | QCD | Quit Claim Deed | BORGMAN, ARLEE SUE | MCDONALD TTEE, DORINDA | | | $0.00 | 63701 | 4586668 |
| 2 | 06/06/2025 | CPADC | Comm Prop Agmnt & Death Cert | BORGMAN, PETER W | BORGMAN, ARLEESUE B | | | $0.00 | 63700 | 4586668 |
Payout Agreement
| No payout information available.. |