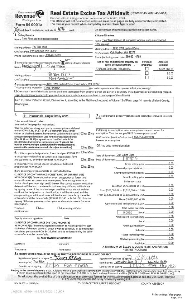
Property
Account |
| Property ID: | 813597 | Abbreviated Legal Description: | 5.6000 Acres ins Section 36s Township 29s Range R3s LOT 1 SP 264-19 AF# 4471044;s |
| Geographic ID: | R32936-114-2920 | Agent Code: | |
| Type: | Real | | |
| Tax Area: | 719 - APPRAISER-S Whid Schl Dist, outside Langley, vacant & 50 acres or less | Land Use Code | 88 |
| Open Space: | N | DFL | Y |
| Historic Property: | N | Remodel Property: | N |
| Multi-Family Redevelopment: | N | | |
| Township: | 29 | Section: | 36 |
| Range: | R3 |
Location |
| Address: | | Mapsco: | |
| Neighborhood: | Cycle 4 | Map ID: | 847 |
| Neighborhood CD: | 4 |
Owner |
| Name: | MCDONALD TTEE, DORINDA | Owner ID: | 316838 |
| Mailing Address: | 3643 RABBIT RUN RD LANGLEY, WA 98260 | % Ownership: | 100.0000000000% |
| | | Exemptions: | |
Taxes and Assessment Details
Values
| (+) Improvement Homesite Value: | + | $0 | |
| (+) Improvement Non-Homesite Value: | + | $0 | |
| (+) Land Homesite Value: | + | $0 | |
| (+) Land Non-Homesite Value: | + | $30,000 | |
| (+) Curr Use (HS): | + | $0 | $0 |
| (+) Curr Use (NHS): | + | $250,000 | $812 |
| | | -------------------------- | |
| (=) Market Value: | = | $280,000 | |
| (–) Productivity Loss: | – | $249,188 | |
| | | -------------------------- | |
| (=) Subtotal: | = | $30,812 | |
| (+) Senior Appraised Value: | + | $0 | |
| (+) Non-Senior Appraised Value: | + | $30,812 | |
| | | -------------------------- | |
| (=) Total Appraised Value: | = | $30,812 | |
| (–) Senior Exemption Loss: | – | $0 | |
| (–) Exemption Loss: | – | $0 | |
| | | -------------------------- | |
| (=) Taxable Value: | = | $30,812 | |
Taxing Jurisdiction
| Owner: | MCDONALD TTEE, DORINDA | | |
| % Ownership: | 100.0000000000% | | |
| Total Value: | $280,000 | | |
| Tax Area: | 719 - APPRAISER-S Whid Schl Dist, outside Langley, vacant & 50 acres or less |
| CF | Conservation Futures | 0.0316035091 | $30,812 | $30,812 | $0.97 | | |
| HOBOND | Hospital BOND | 0.1910887512 | $30,812 | $30,812 | $5.89 | | |
| HOGEN | Hospital GEN | 0.3902502903 | $30,812 | $30,812 | $12.02 | | |
| CE | County Current Expense | 0.3708482477 | $30,812 | $30,812 | $11.43 | | |
| CR | County Roads | 0.4584763726 | $30,812 | $30,812 | $14.13 | | |
| ISLANDEMS | Hospital GEN (EMS) | 0.5000000000 | $30,812 | $30,812 | $15.41 | | |
| LIB | Library Sno-Isle GEN | 0.3153421757 | $30,812 | $30,812 | $9.72 | | |
| PORTWHID | Port of S Whidbey GEN | 0.1094540357 | $30,812 | $30,812 | $3.37 | | |
| SCH206BOND | School 206 BOND | 0.3161759235 | $30,812 | $30,812 | $9.74 | | |
| SCH206MO | School 206 Enrichment | 0.4547169547 | $30,812 | $30,812 | $14.01 | | |
| ST | State School | 1.3035497053 | $30,812 | $30,812 | $40.16 | | |
| ST2 | State School Part 2 | 0.8169543533 | $30,812 | $30,812 | $25.17 | | |
| SWHIDPRBD | P & R S Whidbey BOND | 0.0152817568 | $30,812 | $30,812 | $0.47 | | |
| SWHIDPRBD2 | P & R S Whidbey BOND2 | 0.0138911264 | $30,812 | $30,812 | $0.43 | | |
| SWHIDPRMT | P & R S Whidbey GEN | 0.2053334452 | $30,812 | $30,812 | $6.33 | | |
| | Total Tax Rate: | 5.4929666475 | | | | | |
| | | | | Taxes w/Current Exemptions: | $169.25 | | |
| | | | | Taxes w/o Exemptions: | $169.25 | | |
Improvement / Building
Sketch
| No sketches available for this property. |
Property Image
Land
| 1 | 32 | AC (03.01-09.99) | 0.6000 | 26136.00 | 0.00 | 0.00 | 1.00 | $30,000 | $0 |
| 2 | 32 | AC (03.01-09.99) | 1.8000 | 78408.00 | 0.00 | 0.00 | 1.00 | $90,000 | $335 |
| 3 | 32 | AC (03.01-09.99) | 3.2000 | 139392.00 | 0.00 | 0.00 | 1.00 | $160,000 | $477 |
Roll Value History
| 2026 | N/A | N/A | N/A | N/A | N/A |
| 2025 | $0 | $280,000 | $812 | $30,812 | $30,812 |
| 2024 | $0 | $280,000 | $817 | $32,325 | $32,325 |
| 2023 | $0 | $240,000 | $783 | $26,497 | $26,497 |
| 2022 | $0 | $230,000 | $783 | $25,425 | $25,425 |
| 2021 | $0 | $190,000 | $783 | $21,141 | $21,141 |
| 2020 | $0 | $170,000 | $783 | $18,997 | $18,997 |
| 2019 | $0 | $116,000 | $756 | $13,185 | $13,185 |
Deed and Sales History
| 1 | 06/06/2025 | QCD | Quit Claim Deed | BORGMAN, ARLEE SUE | MCDONALD TTEE, DORINDA | | | $0.00 | 63701 | 4586668 |
| 2 | 06/06/2025 | CPADC | Comm Prop Agmnt & Death Cert | BORGMAN, PETER W | BORGMAN, ARLEESUE B | | | $0.00 | 63700 | 4586668 |
Payout Agreement
| No payout information available.. |