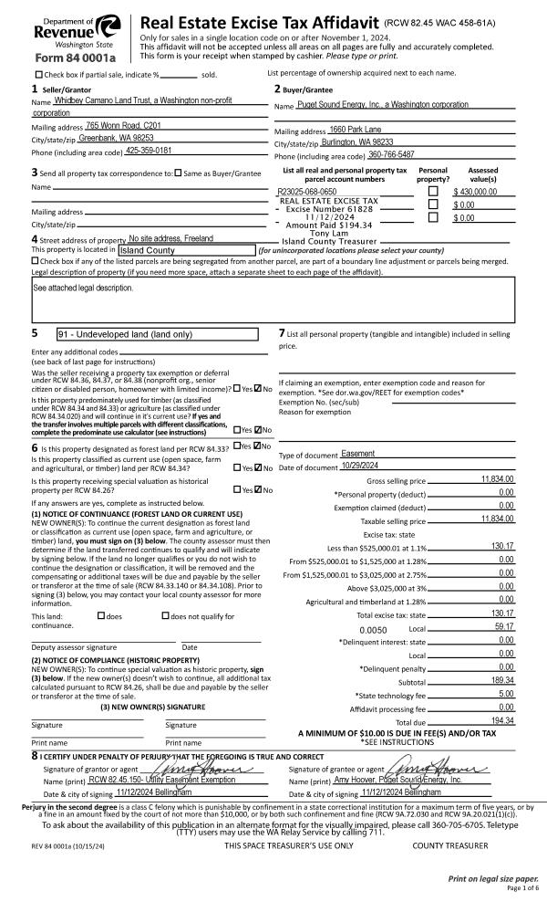
Property
Account |
| Property ID: | 813598 | Abbreviated Legal Description: | Orrs Addition, Lot 34, Blk 0; LOT B BLA 033-20 AF#4489126 |
| Geographic ID: | S7620-00-34000-0 | Agent Code: | |
| Type: | Real | | |
| Tax Area: | 720 - APPRAISER-S Whid Schl Dist, Special District, improved & less than 1 acre | Land Use Code | 11 |
| Open Space: | N | DFL | N |
| Historic Property: | N | Remodel Property: | N |
| Multi-Family Redevelopment: | N | | |
| Township: | | Section: | |
| Range: | |
Location |
| Address: | 6553 CONRAD ST CLINTON, WA 98236 | Mapsco: | |
| Neighborhood: | Cycle 4 | Map ID: | 1002 |
| Neighborhood CD: | 4 |
Owner |
| Name: | SCANTLEN, NATALIE | Owner ID: | 311900 |
| Mailing Address: | 6553 CONRAD ST CLINTON, WA 98236 | % Ownership: | 100.0000000000% |
| | | Exemptions: | |
Taxes and Assessment Details
Values
| (+) Improvement Homesite Value: | + | $0 | |
| (+) Improvement Non-Homesite Value: | + | $476,446 | |
| (+) Land Homesite Value: | + | $0 | |
| (+) Land Non-Homesite Value: | + | $400,000 | |
| (+) Curr Use (HS): | + | $0 | $0 |
| (+) Curr Use (NHS): | + | $0 | $0 |
| | | -------------------------- | |
| (=) Market Value: | = | $876,446 | |
| (–) Productivity Loss: | – | $0 | |
| | | -------------------------- | |
| (=) Subtotal: | = | $876,446 | |
| (+) Senior Appraised Value: | + | $0 | |
| (+) Non-Senior Appraised Value: | + | $876,446 | |
| | | -------------------------- | |
| (=) Total Appraised Value: | = | $876,446 | |
| (–) Senior Exemption Loss: | – | $0 | |
| (–) Exemption Loss: | – | $0 | |
| | | -------------------------- | |
| (=) Taxable Value: | = | $876,446 | |
Taxing Jurisdiction
| Owner: | SCANTLEN, NATALIE | | |
| % Ownership: | 100.0000000000% | | |
| Total Value: | $876,446 | | |
| Tax Area: | 720 - APPRAISER-S Whid Schl Dist, Special District, improved & less than 1 acre |
| CF | Conservation Futures | 0.0316035091 | $876,446 | $876,446 | $27.70 | | |
| FIRE3 | Fire & Rescue Dist #3 S Whidbey GEN | 1.2004855531 | $876,446 | $876,446 | $1,052.16 | | |
| HOBOND | Hospital BOND | 0.1910887512 | $876,446 | $876,446 | $167.48 | | |
| HOGEN | Hospital GEN | 0.3902502903 | $876,446 | $876,446 | $342.03 | | |
| CE | County Current Expense | 0.3708482477 | $876,446 | $876,446 | $325.03 | | |
| CR | County Roads | 0.4584763726 | $876,446 | $876,446 | $401.83 | | |
| ISLANDEMS | Hospital GEN (EMS) | 0.5000000000 | $876,446 | $876,446 | $438.22 | | |
| LIB | Library Sno-Isle GEN | 0.3153421757 | $876,446 | $876,446 | $276.38 | | |
| PORTWHID | Port of S Whidbey GEN | 0.1094540357 | $876,446 | $876,446 | $95.93 | | |
| SCH206BOND | School 206 BOND | 0.3161759235 | $876,446 | $876,446 | $277.11 | | |
| SCH206MO | School 206 Enrichment | 0.4547169547 | $876,446 | $876,446 | $398.53 | | |
| ST | State School | 1.3035497053 | $876,446 | $876,446 | $1,142.49 | | |
| ST2 | State School Part 2 | 0.8169543533 | $876,446 | $876,446 | $716.02 | | |
| SWHIDPRBD | P & R S Whidbey BOND | 0.0152817568 | $876,446 | $876,446 | $13.39 | | |
| SWHIDPRBD2 | P & R S Whidbey BOND2 | 0.0138911264 | $876,446 | $876,446 | $12.17 | | |
| SWHIDPRMT | P & R S Whidbey GEN | 0.2053334452 | $876,446 | $876,446 | $179.96 | | |
| | Total Tax Rate: | 6.6934522006 | | | | | |
| | | | | Taxes w/Current Exemptions: | $5,866.43 | | |
| | | | | Taxes w/o Exemptions: | $5,866.43 | | |
Improvement / Building
| Improvement #1: | RESIDENTIAL | State Code: | Y | 1972.2 sqft | Value: | $476,446 |
| Bathrooms: | 3 | Bedrooms: | 3 | | Ceiling: | DRYWALL PAINTED | Cooling: | HEAT PUMP/CONV/V | | Exterior Wall/Cover: | PLY/HARDBOARD T-111 | Floor Covering: | HARDWOOD/CARP 60-40 | | Floor Structure: | WOOD W/SUBFLOOR | Foundation: | CONCRETE BLOCKS | | Interior Finish: | DRYWALL PAINT | Plumbing Fixture Cnt: | 14 | | Roof Slope: | 4" IN 12" | Roof Structure/Cover: | CJ ALUMINIUM HEAVY |
|
| | Type | Description | Class CD | Sub Class CD | Year Built | Area |
| | BAS | BASE/MAIN FLOOR | 4 | 0 | 1953 | 1414.2 |
| | UB8 | BASEMENT UNFINISHED 8" | 4 | 0 | 1953 | 636.0 |
| | OP3 | OPEN PORCH W/ROOF | 4 | 0 | 1953 | 79.8 |
| | BGR | BASEMENT GARAGE | 4 | 0 | 1953 | 576.0 |
| | UPS | UPPER STORY | 4 | 0 | 1953 | 558.0 |
| | BAW | BALCONY WOOD RAIL | 4 | 0 | 1953 | 72.0 |
| | OWP | OPEN WOOD PORCH W/STEPS | 4 | 0 | 1953 | 120.0 |
| | OWP | OPEN WOOD PORCH W/STEPS | 4 | 0 | 1953 | 438.0 |
Sketch
| No sketches available for this property. |
Property Image
Land
| 1 | 15 | SQ (12001-21780) | 0.3400 | 14810.40 | 0.00 | 0.00 | 1.00 | $400,000 | $0 |
Roll Value History
| 2026 | N/A | N/A | N/A | N/A | N/A |
| 2025 | $476,446 | $400,000 | $0 | $876,446 | $876,446 |
| 2024 | $447,585 | $330,000 | $0 | $777,585 | $777,585 |
| 2023 | $453,415 | $330,000 | $0 | $783,415 | $783,415 |
| 2022 | $416,151 | $300,000 | $0 | $716,151 | $716,151 |
| 2021 | $146,946 | $250,000 | $0 | $396,946 | $396,946 |
| 2020 | $228,220 | $230,000 | $0 | $458,220 | $458,220 |
| 2019 | $274,142 | $300,000 | $0 | $574,142 | $574,142 |
Deed and Sales History
| 1 | 04/04/2024 | WD | Warranty Deed | PENG, LEANG | SCANTLEN, NATALIE | | | $970,000.00 | 59588 | 4570975 |
| 2 | 01/29/2021 | WD | Warranty Deed | PRP HOLDINGS 1 LLC | PENG, LEANG | | | $525,000.00 | 46784 | 4509698 |
Payout Agreement
| No payout information available.. |