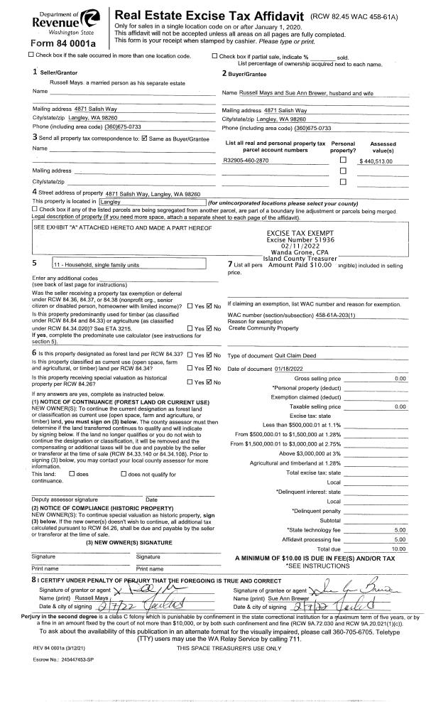
Property
Account |
| Property ID: | 813606 | Abbreviated Legal Description: | SEABREEZE CONDO UNIT 101 |
| Geographic ID: | S8562-00-00101-0 | Agent Code: | |
| Type: | Real | | |
| Tax Area: | 510 - APPRAISER-Stan/Cam Schl Dist, improved & 1 acre or less | Land Use Code | 14 |
| Open Space: | N | DFL | N |
| Historic Property: | N | Remodel Property: | N |
| Multi-Family Redevelopment: | N | | |
| Township: | | Section: | |
| Range: | |
Location |
| Address: | 785 VESPER WAY #101 CAMANO IS, WA 98282 | Mapsco: | |
| Neighborhood: | 55cRR-secamano rd | Map ID: | 922 |
| Neighborhood CD: | 55cRRsecam |
Owner |
| Name: | VESPER WAY, CAMANO ISLAND LLC | Owner ID: | 298281 |
| Mailing Address: | PO BOX 75086 SEATTLE, WA 98175 | % Ownership: | 100.0000000000% |
| | | Exemptions: | |
Taxes and Assessment Details
Values
| (+) Improvement Homesite Value: | + | $0 | |
| (+) Improvement Non-Homesite Value: | + | $138,687 | |
| (+) Land Homesite Value: | + | $0 | |
| (+) Land Non-Homesite Value: | + | $95,000 | |
| (+) Curr Use (HS): | + | $0 | $0 |
| (+) Curr Use (NHS): | + | $0 | $0 |
| | | -------------------------- | |
| (=) Market Value: | = | $233,687 | |
| (–) Productivity Loss: | – | $0 | |
| | | -------------------------- | |
| (=) Subtotal: | = | $233,687 | |
| (+) Senior Appraised Value: | + | $0 | |
| (+) Non-Senior Appraised Value: | + | $233,687 | |
| | | -------------------------- | |
| (=) Total Appraised Value: | = | $233,687 | |
| (–) Senior Exemption Loss: | – | $0 | |
| (–) Exemption Loss: | – | $0 | |
| | | -------------------------- | |
| (=) Taxable Value: | = | $233,687 | |
Taxing Jurisdiction
| Owner: | VESPER WAY, CAMANO ISLAND LLC | | |
| % Ownership: | 100.0000000000% | | |
| Total Value: | $233,687 | | |
| Tax Area: | 510 - APPRAISER-Stan/Cam Schl Dist, improved & 1 acre or less |
| CF | Conservation Futures | 0.0316035091 | $233,687 | $233,687 | $7.39 | | |
| EMS1 | Fire & Rescue Dist #1 Camano GEN (EMS) | 0.3677864386 | $233,687 | $233,687 | $85.95 | | |
| FIRE1 | Fire & Rescue Dist #1 Camano GEN | 1.2502910536 | $233,687 | $233,687 | $292.18 | | |
| FIRE1BOND | Fire & Rescue Dist #1 Camano BOND | 0.1570001679 | $233,687 | $233,687 | $36.69 | | |
| CE | County Current Expense | 0.3708482477 | $233,687 | $233,687 | $86.66 | | |
| CR | County Roads | 0.4584763726 | $233,687 | $233,687 | $107.14 | | |
| LCIB | Library Sno-Isle BOND (Camano Island) | 0.0396325772 | $233,687 | $233,687 | $9.26 | | |
| LIB | Library Sno-Isle GEN | 0.3153421757 | $233,687 | $233,687 | $73.69 | | |
| SCH205_401 | School 205-401 Enrichment | 1.2698420524 | $233,687 | $233,687 | $296.75 | | |
| SCH205BOND | School 205-401 BOND | 0.9396497583 | $233,687 | $233,687 | $219.58 | | |
| ST | State School | 1.3035497053 | $233,687 | $233,687 | $304.62 | | |
| ST2 | State School Part 2 | 0.8169543533 | $233,687 | $233,687 | $190.91 | | |
| | Total Tax Rate: | 7.3209764117 | | | | | |
| | | | | Taxes w/Current Exemptions: | $1,710.82 | | |
| | | | | Taxes w/o Exemptions: | $1,710.82 | | |
Improvement / Building
| Improvement #1: | RESIDENTIAL | State Code: | A1 | 1125.0 sqft | Value: | $138,687 |
| Bathrooms: | 1 | Bedrooms: | 2 | | Ceiling: | DRY WALL SPRAYED | Exterior Wall/Cover: | WOOD SIDING | | Floor Covering: | CARPET 100% | Floor Structure: | WOOD W/SUBFLOOR | | Foundation: | CONCRETE | Heating: | BASEBOARD ELECTRIC | | Interior Finish: | DRYWALL PAINT | Plumbing Fixture Cnt: | 6 | | Roof Slope: | 3" IN 12" | Roof Structure/Cover: | CJ BUILT-UP ROCK |
|
| | Type | Description | Class CD | Sub Class CD | Year Built | Area |
| | BAS | BASE/MAIN FLOOR | 3 | 0 | 1974 | 1125.0 |
| | OP1 | OPEN PORCH SLAB | 3 | 0 | 1974 | 200.0 |
| | OP1 | OPEN PORCH SLAB | 3 | 0 | 1974 | 42.0 |
Sketch
Property Image
Land
| 1 | 61 | MULTIPLE RESIDENCES | 0.6200 | 27007.20 | 0.00 | 0.00 | 1.00 | $95,000 | $0 |
Roll Value History
| 2026 | N/A | N/A | N/A | N/A | N/A |
| 2025 | $138,687 | $95,000 | $0 | $233,687 | $233,687 |
| 2024 | $143,856 | $95,000 | $0 | $238,856 | $238,856 |
| 2023 | $146,027 | $95,000 | $0 | $241,027 | $241,027 |
| 2022 | $134,199 | $95,000 | $0 | $229,199 | $229,199 |
| 2021 | $118,408 | $95,000 | $0 | $213,408 | $213,408 |
| 2020 | $115,731 | $85,000 | $0 | $200,731 | $200,731 |
| 2019 | $59,317 | $26,667 | $0 | $85,984 | $85,984 |
Deed and Sales History
| 1 | 02/22/2021 | WD | Warranty Deed | WUNDORSTAR PROPERTIES LLC | VESPER WAY, CAMANO ISLAND LLC | | | $1,293,800.00 | 47114 | 4512133 |
|   | |
| 2 | 10/16/2019 | WD | Warranty Deed | BURT, RICHARD L | WUNDORSTAR PROPERTIES LLC | | | $1,050,000.00 | 40756 | 4473696 |
Payout Agreement
| No payout information available.. |