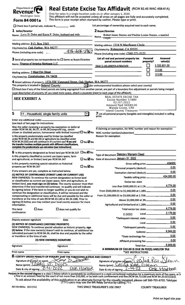
Property
Account |
| Property ID: | 813639 | Abbreviated Legal Description: | EAGLE'S LANDING BUSINESS PARK CONDO PHASE 2 UNIT Q AF#4479713 |
| Geographic ID: | S8558-00-0000Q-0 | Agent Code: | |
| Type: | Real | | |
| Tax Area: | 590 - APPRAISER-Stan/Cam Schl Dist, Special Dist, improved & less than 1 acre | Land Use Code | 50 |
| Open Space: | N | DFL | N |
| Historic Property: | N | Remodel Property: | N |
| Multi-Family Redevelopment: | N | | |
| Township: | 32 | Section: | 16 |
| Range: | R3 |
Location |
| Address: | 1244 MOORE RD BLDG Q CAMANO ISLAND, WA 98282 | Mapsco: | |
| Neighborhood: | 51cRR-utsalady rd | Map ID: | 951 |
| Neighborhood CD: | 51cRRutsal |
Owner |
| Name: | EAGLES LANDING AIRPORT INDUSTRIAL PARK, LLC | Owner ID: | 277420 |
| Mailing Address: | 101 N SUNSET DR CAMANO ISLAND, WA 98282 | % Ownership: | 100.0000000000% |
| | | Exemptions: | |
Taxes and Assessment Details
Values
| (+) Improvement Homesite Value: | + | $0 | |
| (+) Improvement Non-Homesite Value: | + | $292,073 | |
| (+) Land Homesite Value: | + | $0 | |
| (+) Land Non-Homesite Value: | + | $20,000 | |
| (+) Curr Use (HS): | + | $0 | $0 |
| (+) Curr Use (NHS): | + | $0 | $0 |
| | | -------------------------- | |
| (=) Market Value: | = | $312,073 | |
| (–) Productivity Loss: | – | $0 | |
| | | -------------------------- | |
| (=) Subtotal: | = | $312,073 | |
| (+) Senior Appraised Value: | + | $0 | |
| (+) Non-Senior Appraised Value: | + | $312,073 | |
| | | -------------------------- | |
| (=) Total Appraised Value: | = | $312,073 | |
| (–) Senior Exemption Loss: | – | $0 | |
| (–) Exemption Loss: | – | $0 | |
| | | -------------------------- | |
| (=) Taxable Value: | = | $312,073 | |
Taxing Jurisdiction
| Owner: | EAGLES LANDING AIRPORT INDUSTRIAL PARK, LLC | | |
| % Ownership: | 100.0000000000% | | |
| Total Value: | $312,073 | | |
| Tax Area: | 590 - APPRAISER-Stan/Cam Schl Dist, Special Dist, improved & less than 1 acre |
| CF | Conservation Futures | 0.0316035091 | $312,073 | $312,073 | $9.86 | | |
| EMS1 | Fire & Rescue Dist #1 Camano GEN (EMS) | 0.3677864386 | $312,073 | $312,073 | $114.78 | | |
| FIRE1 | Fire & Rescue Dist #1 Camano GEN | 1.2502910536 | $312,073 | $312,073 | $390.18 | | |
| FIRE1BOND | Fire & Rescue Dist #1 Camano BOND | 0.1570001679 | $312,073 | $312,073 | $49.00 | | |
| CE | County Current Expense | 0.3708482477 | $312,073 | $312,073 | $115.73 | | |
| CR | County Roads | 0.4584763726 | $312,073 | $312,073 | $143.08 | | |
| LCIB | Library Sno-Isle BOND (Camano Island) | 0.0396325772 | $312,073 | $312,073 | $12.37 | | |
| LIB | Library Sno-Isle GEN | 0.3153421757 | $312,073 | $312,073 | $98.41 | | |
| SCH205_401 | School 205-401 Enrichment | 1.2698420524 | $312,073 | $312,073 | $396.28 | | |
| SCH205BOND | School 205-401 BOND | 0.9396497583 | $312,073 | $312,073 | $293.24 | | |
| ST | State School | 1.3035497053 | $312,073 | $312,073 | $406.80 | | |
| ST2 | State School Part 2 | 0.8169543533 | $312,073 | $312,073 | $254.95 | | |
| | Total Tax Rate: | 7.3209764117 | | | | | |
| | | | | Taxes w/Current Exemptions: | $2,284.68 | | |
| | | | | Taxes w/o Exemptions: | $2,284.68 | | |
Improvement / Building
| Improvement #1: | COMMERCIAL | State Code: | 132 | 3600.0 sqft | Value: | $292,073 |
| Bathrooms: | 1 | Ceiling: | (NONE) | | Exterior Wall/Cover: | STL/ALM/WD OR ST STD | Floor Covering: | COLORED CONCRETE | | Floor Structure: | SLAB ON GRADE | Foundation: | CONCRETE | | Heating: | (NONE) | Interior Finish: | MINI-WAREHOUSE | | Plumbing Fixture Cnt: | 1 | Roof Slope: | 3" IN 12" | | Roof Structure/Cover: | CJ ALUMINIUM HEAVY |   |   |
|
| | Type | Description | Class CD | Sub Class CD | Year Built | Area |
| | BAS | BASE/MAIN FLOOR | 3 | 0 | 2020 | 3600.0 |
| | oPV1 | PV/ASPH 2" | 3 | 0 | 2020 | 5882.0 |
Sketch
Property Image
Land
| 1 | 64 | PERSONAL BUSINESS | 0.0915 | 3984.00 | 0.00 | 0.00 | 1.00 | $20,000 | $0 |
Roll Value History
| 2026 | N/A | N/A | N/A | N/A | N/A |
| 2025 | $292,073 | $20,000 | $0 | $312,073 | $312,073 |
| 2024 | $295,054 | $20,000 | $0 | $315,054 | $315,054 |
| 2023 | $298,036 | $20,000 | $0 | $318,036 | $318,036 |
| 2022 | $222,350 | $20,000 | $0 | $242,350 | $242,350 |
| 2021 | $219,255 | $18,427 | $0 | $237,682 | $237,682 |
| 2020 | $25,344 | $18,427 | $0 | $43,771 | $43,771 |
| 2019 | $0 | $18,427 | $0 | $18,427 | $18,427 |
Deed and Sales History
Payout Agreement
| No payout information available.. |