Property
Account |
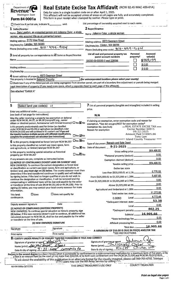
| Property ID: | 813644 | Abbreviated Legal Description: | R3 T 29 S 17 LOT C UNREG SEG AF#4481109 LOT C BLA 104-20 AF#4489195 LOT A BLA 272-20 AF#4506313 SP 293/21 AF#4546240 |
| Geographic ID: | R32917-279-1860 | Agent Code: | |
| Type: | Real | | |
| Tax Area: | 719 - APPRAISER-S Whid Schl Dist, outside Langley, vacant & 50 acres or less | Land Use Code | 91 |
| Open Space: | N | DFL | N |
| Historic Property: | N | Remodel Property: | N |
| Multi-Family Redevelopment: | N | | |
| Township: | 29 | Section: | 17 |
| Range: | R3 |
Location |
| Address: | 5789 KRAMER RD LANGLEY, WA 98260 | Mapsco: | |
| Neighborhood: | Cycle 4 | Map ID: | 780 |
| Neighborhood CD: | 4 |
Owner |
| Name: | JAMES, DARREN | Owner ID: | 308795 |
| Mailing Address: | LISA JAMES PO BOX 1688 LANGLEY, WA 98260 | % Ownership: | 100.0000000000% |
| | | Exemptions: | |
Taxes and Assessment Details
Values
| (+) Improvement Homesite Value: | + | $0 | |
| (+) Improvement Non-Homesite Value: | + | $328,908 | |
| (+) Land Homesite Value: | + | $0 | |
| (+) Land Non-Homesite Value: | + | $320,000 | |
| (+) Curr Use (HS): | + | $0 | $0 |
| (+) Curr Use (NHS): | + | $0 | $0 |
| | | -------------------------- | |
| (=) Market Value: | = | $648,908 | |
| (–) Productivity Loss: | – | $0 | |
| | | -------------------------- | |
| (=) Subtotal: | = | $648,908 | |
| (+) Senior Appraised Value: | + | $0 | |
| (+) Non-Senior Appraised Value: | + | $648,908 | |
| | | -------------------------- | |
| (=) Total Appraised Value: | = | $648,908 | |
| (–) Senior Exemption Loss: | – | $0 | |
| (–) Exemption Loss: | – | $0 | |
| | | -------------------------- | |
| (=) Taxable Value: | = | $648,908 | |
Taxing Jurisdiction
| Owner: | JAMES, DARREN | | |
| % Ownership: | 100.0000000000% | | |
| Total Value: | $648,908 | | |
| Tax Area: | 719 - APPRAISER-S Whid Schl Dist, outside Langley, vacant & 50 acres or less |
| CF | Conservation Futures | 0.0316035091 | $648,908 | $648,908 | $20.51 | | |
| HOBOND | Hospital BOND | 0.1910887512 | $648,908 | $648,908 | $124.00 | | |
| HOGEN | Hospital GEN | 0.3902502903 | $648,908 | $648,908 | $253.24 | | |
| CE | County Current Expense | 0.3708482477 | $648,908 | $648,908 | $240.65 | | |
| CR | County Roads | 0.4584763726 | $648,908 | $648,908 | $297.51 | | |
| ISLANDEMS | Hospital GEN (EMS) | 0.5000000000 | $648,908 | $648,908 | $324.45 | | |
| LIB | Library Sno-Isle GEN | 0.3153421757 | $648,908 | $648,908 | $204.63 | | |
| PORTWHID | Port of S Whidbey GEN | 0.1094540357 | $648,908 | $648,908 | $71.03 | | |
| SCH206BOND | School 206 BOND | 0.3161759235 | $648,908 | $648,908 | $205.17 | | |
| SCH206MO | School 206 Enrichment | 0.4547169547 | $648,908 | $648,908 | $295.07 | | |
| ST | State School | 1.3035497053 | $648,908 | $648,908 | $845.88 | | |
| ST2 | State School Part 2 | 0.8169543533 | $648,908 | $648,908 | $530.13 | | |
| SWHIDPRBD | P & R S Whidbey BOND | 0.0152817568 | $648,908 | $648,908 | $9.92 | | |
| SWHIDPRBD2 | P & R S Whidbey BOND2 | 0.0138911264 | $648,908 | $648,908 | $9.01 | | |
| SWHIDPRMT | P & R S Whidbey GEN | 0.2053334452 | $648,908 | $648,908 | $133.24 | | |
| | Total Tax Rate: | 5.4929666475 | | | | | |
| | | | | Taxes w/Current Exemptions: | $3,564.44 | | |
| | | | | Taxes w/o Exemptions: | $3,564.44 | | |
Improvement / Building
| Improvement #1: | RESIDENTIAL | State Code: | Y | 2349.7 sqft | Value: | $328,908 |
| Bathrooms: | 2.75 | Bedrooms: | 3 | | Ceiling: | DRYWALL PAINTED | Exterior Wall/Cover: | CEMENT FIBER | | Floor Covering: | VINYL 100% | Floor Structure: | WOOD W/SUBFLOOR | | Foundation: | SLAB | Heating: | FHA GAS | | Interior Finish: | DRYWALL PAINT | Plumbing Fixture Cnt: | 15 | | Roof Slope: | 6" IN 12" | Roof Structure/Cover: | CJ ASPHALT |
|
| | Type | Description | Class CD | Sub Class CD | Year Built | Area |
| | BAS | BASE/MAIN FLOOR | 4 | 0 | 2024 | 2002.0 |
| | UPH | HALF STORY | 4 | 0 | 2024 | 347.7 |
| | AGR | ATTACHED GARAGE | 4 | 0 | 2024 | 664.0 |
| | OWC | OPEN WOOD PORCH W/STEPS/ROOF/C | 4 | 0 | 2024 | 184.0 |
| | OP4 | OPEN PORCH W/CEILING-ROOF | 4 | 0 | 2024 | 128.5 |
Sketch
| No sketches available for this property. |
Property Image
Land
| 1 | HS | HOMESITE | 1.0000 | 43560.00 | 0.00 | 0.00 | 1.00 | $260,000 | $0 |
| 2 | 32 | AC (03.01-09.99) | 4.0300 | 175546.80 | 0.00 | 0.00 | 1.00 | $60,000 | $0 |
Roll Value History
| 2026 | N/A | N/A | N/A | N/A | N/A |
| 2025 | $328,908 | $320,000 | $0 | $648,908 | $648,908 |
| 2024 | $0 | $280,000 | $0 | $280,000 | $280,000 |
| 2023 | $0 | $240,000 | $0 | $240,000 | $240,000 |
| 2022 | $0 | $230,000 | $0 | $230,000 | $230,000 |
| 2021 | $247,227 | $290,000 | $0 | $537,227 | $537,227 |
| 2020 | $0 | $190,000 | $0 | $190,000 | $190,000 |
Deed and Sales History
| 1 | 05/30/2023 | WD | Warranty Deed | WHITCOMB, GARY | JAMES, DARREN | | | $345,000.00 | 56857 | 4560500 |
Payout Agreement
| No payout information available.. |