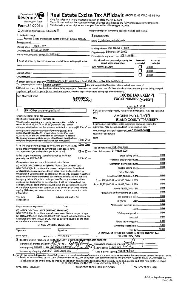
Property
Account |
| Property ID: | 813668 | Abbreviated Legal Description: | COBBLESTONE COTTAGES CONDO UNIT B-2 AF#4489198 |
| Geographic ID: | S8543-00-000B2-0 | Agent Code: | |
| Type: | Real | | |
| Tax Area: | 300 - APPRAISER-Cpvl Schl Dist, in Cpvl | Land Use Code | 14 |
| Open Space: | N | DFL | N |
| Historic Property: | N | Remodel Property: | N |
| Multi-Family Redevelopment: | N | | |
| Township: | | Section: | |
| Range: | |
Location |
| Address: | 306 S MAIN ST UNIT B2 COUPEVILLE, WA 98239 | Mapsco: | |
| Neighborhood: | Cycle 2 | Map ID: | 32 |
| Neighborhood CD: | 2 |
Owner |
| Name: | ALLEN, BARBARA E | Owner ID: | 278477 |
| Mailing Address: | LINDA J PHIPPS PO BOX 952 COUPEVILLE, WA 98239 | % Ownership: | 100.0000000000% |
| | | Exemptions: | |
Taxes and Assessment Details
Values
| (+) Improvement Homesite Value: | + | $0 | |
| (+) Improvement Non-Homesite Value: | + | $296,445 | |
| (+) Land Homesite Value: | + | $0 | |
| (+) Land Non-Homesite Value: | + | $110,000 | |
| (+) Curr Use (HS): | + | $0 | $0 |
| (+) Curr Use (NHS): | + | $0 | $0 |
| | | -------------------------- | |
| (=) Market Value: | = | $406,445 | |
| (–) Productivity Loss: | – | $0 | |
| | | -------------------------- | |
| (=) Subtotal: | = | $406,445 | |
| (+) Senior Appraised Value: | + | $0 | |
| (+) Non-Senior Appraised Value: | + | $406,445 | |
| | | -------------------------- | |
| (=) Total Appraised Value: | = | $406,445 | |
| (–) Senior Exemption Loss: | – | $0 | |
| (–) Exemption Loss: | – | $0 | |
| | | -------------------------- | |
| (=) Taxable Value: | = | $406,445 | |
Taxing Jurisdiction
| Owner: | ALLEN, BARBARA E | | |
| % Ownership: | 100.0000000000% | | |
| Total Value: | $406,445 | | |
| Tax Area: | 300 - APPRAISER-Cpvl Schl Dist, in Cpvl |
| CF | Conservation Futures | 0.0316035091 | $406,445 | $406,445 | $12.85 | | |
| CEM2 | Cemetery #2 | 0.0095056933 | $406,445 | $406,445 | $3.86 | | |
| COUP | City: Town of Coupeville | 0.8426414490 | $406,445 | $406,445 | $342.49 | | |
| FIRE5 | Fire & Rescue Dist #5 C Whidbey GEN | 1.2008080668 | $406,445 | $406,445 | $488.06 | | |
| FIRE5BOND | Fire & Rescue Dist #5 C Whidbey BOND | 0.1400090713 | $406,445 | $406,445 | $56.91 | | |
| HOBOND | Hospital BOND | 0.1910887512 | $406,445 | $406,445 | $77.67 | | |
| HOGEN | Hospital GEN | 0.3902502903 | $406,445 | $406,445 | $158.62 | | |
| CE | County Current Expense | 0.3708482477 | $406,445 | $406,445 | $150.73 | | |
| ISLANDEMS | Hospital GEN (EMS) | 0.5000000000 | $406,445 | $406,445 | $203.22 | | |
| LIB | Library Sno-Isle GEN | 0.3153421757 | $406,445 | $406,445 | $128.17 | | |
| LIBCAP | Library Sno-Isle BOND (Cap Fac Imp Area) | 0.0543427938 | $406,445 | $406,445 | $22.09 | | |
| POCOUP | Port of Coupeville GEN | 0.1093371703 | $406,445 | $406,445 | $44.44 | | |
| POCOUPIDD | Port of Coupeville IDD | 0.3409740022 | $406,445 | $406,445 | $138.59 | | |
| COUPSDTECH | School 204 CP (TECH) | 0.7545480007 | $406,445 | $406,445 | $306.68 | | |
| SCH204MO | School 204 Enrichment | 0.6716186034 | $406,445 | $406,445 | $272.98 | | |
| ST | State School | 1.3035497053 | $406,445 | $406,445 | $529.82 | | |
| ST2 | State School Part 2 | 0.8169543533 | $406,445 | $406,445 | $332.05 | | |
| | Total Tax Rate: | 8.0434218834 | | | | | |
| | | | | Taxes w/Current Exemptions: | $3,269.23 | | |
| | | | | Taxes w/o Exemptions: | $3,269.23 | | |
Improvement / Building
| Improvement #1: | RESIDENTIAL | State Code: | Y | 1540.5 sqft | Value: | $296,445 |
| Bathrooms: | 2.5 | Bedrooms: | 3 | | Ceiling: | DRYWALL PAINTED | Cooling: | HEAT PUMP/CONV/V | | Exterior Wall/Cover: | CEMENT FIBER | Floor Covering: | CARPET/VINYL 60-40 | | Floor Structure: | WOOD W/SUBFLOOR | Foundation: | CONCRETE | | Interior Finish: | DRYWALL PAINT | Plumbing Fixture Cnt: | 12 | | Roof Slope: | 5" IN 12" | Roof Structure/Cover: | CJ ASPHALT |
|
| | Type | Description | Class CD | Sub Class CD | Year Built | Area |
| | BAS | BASE/MAIN FLOOR | 3 | 0 | 2020 | 644.0 |
| | UPS | UPPER STORY | 3 | 0 | 2020 | 896.5 |
| | BIG | BUILT IN GARAGE | 3 | 0 | 2020 | 264.0 |
| | OP3 | OPEN PORCH W/ROOF | 3 | 0 | 2020 | 76.0 |
| | OP1 | OPEN PORCH SLAB | 3 | 0 | 2020 | 48.0 |
Sketch
Property Image
Land
| 1 | 61 | MULTIPLE RESIDENCES | 0.6600 | 28749.60 | 0.00 | 0.00 | 1.00 | $110,000 | $0 |
Roll Value History
| 2026 | N/A | N/A | N/A | N/A | N/A |
| 2025 | $296,445 | $110,000 | $0 | $406,445 | $406,445 |
| 2024 | $298,817 | $110,000 | $0 | $408,817 | $408,817 |
| 2023 | $301,188 | $110,000 | $0 | $411,188 | $411,188 |
| 2022 | $275,588 | $130,000 | $0 | $405,588 | $405,588 |
| 2021 | $244,006 | $95,000 | $0 | $339,006 | $339,006 |
| 2020 | $239,193 | $74,000 | $0 | $313,193 | $313,193 |
Deed and Sales History
| 1 | 07/01/2022 | WD | Warranty Deed | OVERBURY-HOWLAND, DANIEL | ALLEN, BARBARA E | | | $415,000.00 | 53758 | 4548017 |
| 2 | 10/21/2021 | WD | Warranty Deed | MURPHY-SWEET, SETH P | OVERBURY-HOWLAND, DANIEL | | | $407,000.00 | 50971 | 4534149 |
| 3 | 12/22/2020 | WD | Warranty Deed | SO MAIN COBBLESTONE COTTAGES LLC | MURPHY-SWEET, SETH P | | | $352,000.00 | 46449 | 4507129 |
Payout Agreement
| No payout information available.. |