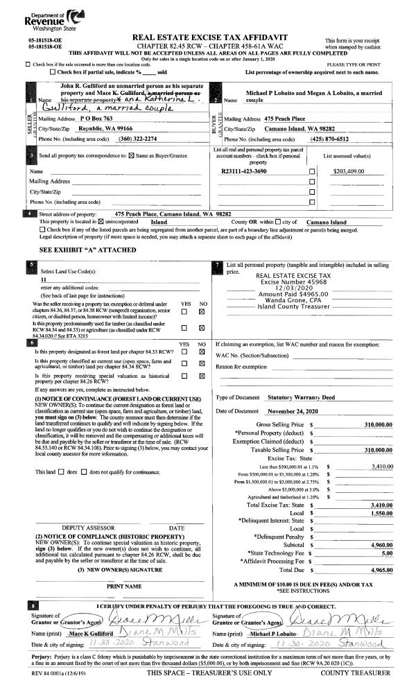
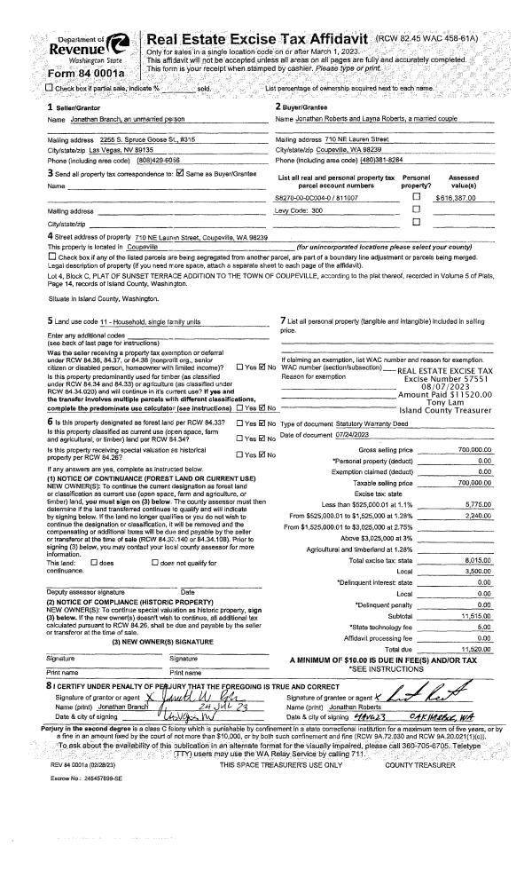
Property
Account |
| Property ID: | 813730 | Abbreviated Legal Description: | 545 INDUSTRIAL CONDO UNIT 104 AF#4490632 |
| Geographic ID: | S8567-00-00104-0 | Agent Code: | |
| Type: | Real | | |
| Tax Area: | 100 - APPRAISER-OH Schl Dist, in OH | Land Use Code | 50 |
| Open Space: | N | DFL | N |
| Historic Property: | N | Remodel Property: | N |
| Multi-Family Redevelopment: | N | | |
| Township: | 33 | Section: | 26 |
| Range: | R1 |
Location |
| Address: | 545 AULT FIELD RD UNIT 104 OAK HARBOR, WA 98277 | Mapsco: | |
| Neighborhood: | 6AcOH-ault field | Map ID: | 233 |
| Neighborhood CD: | 6AcOHautfd |
Owner |
| Name: | MEEK, HARVEY K | Owner ID: | 295348 |
| Mailing Address: | KRISTINA M MEEK 9086 ALBION LN S #7303 NAPLES, FL 34113 | % Ownership: | 100.0000000000% |
| | | Exemptions: | |
Taxes and Assessment Details
Values
| (+) Improvement Homesite Value: | + | $0 | |
| (+) Improvement Non-Homesite Value: | + | $154,058 | |
| (+) Land Homesite Value: | + | $0 | |
| (+) Land Non-Homesite Value: | + | $50,000 | |
| (+) Curr Use (HS): | + | $0 | $0 |
| (+) Curr Use (NHS): | + | $0 | $0 |
| | | -------------------------- | |
| (=) Market Value: | = | $204,058 | |
| (–) Productivity Loss: | – | $0 | |
| | | -------------------------- | |
| (=) Subtotal: | = | $204,058 | |
| (+) Senior Appraised Value: | + | $0 | |
| (+) Non-Senior Appraised Value: | + | $204,058 | |
| | | -------------------------- | |
| (=) Total Appraised Value: | = | $204,058 | |
| (–) Senior Exemption Loss: | – | $0 | |
| (–) Exemption Loss: | – | $0 | |
| | | -------------------------- | |
| (=) Taxable Value: | = | $204,058 | |
Taxing Jurisdiction
| Owner: | MEEK, HARVEY K | | |
| % Ownership: | 100.0000000000% | | |
| Total Value: | $204,058 | | |
| Tax Area: | 100 - APPRAISER-OH Schl Dist, in OH |
| CF | Conservation Futures | 0.0316035091 | $204,058 | $204,058 | $6.45 | | |
| CEM1 | Cemetery #1 | 0.0040320932 | $204,058 | $204,058 | $0.82 | | |
| COH | City of Oak Harbor | 2.3001546061 | $204,058 | $204,058 | $469.36 | | |
| OAKBOND | City of Oak Harbor BOND | 0.1926904192 | $204,058 | $204,058 | $39.32 | | |
| HOBOND | Hospital BOND | 0.1910887512 | $204,058 | $204,058 | $38.99 | | |
| HOGEN | Hospital GEN | 0.3902502903 | $204,058 | $204,058 | $79.63 | | |
| CE | County Current Expense | 0.3708482477 | $204,058 | $204,058 | $75.67 | | |
| ISLANDEMS | Hospital GEN (EMS) | 0.5000000000 | $204,058 | $204,058 | $102.03 | | |
| LIB | Library Sno-Isle GEN | 0.3153421757 | $204,058 | $204,058 | $64.35 | | |
| NWHIDPRMT | P & R N Whidbey GEN | 0.2004466701 | $204,058 | $204,058 | $40.90 | | |
| SCH201MO | School 201 Enrichment | 1.8559231640 | $204,058 | $204,058 | $378.72 | | |
| ST | State School | 1.3035497053 | $204,058 | $204,058 | $266.00 | | |
| ST2 | State School Part 2 | 0.8169543533 | $204,058 | $204,058 | $166.71 | | |
| | Total Tax Rate: | 8.4728839852 | | | | | |
| | | | | Taxes w/Current Exemptions: | $1,728.95 | | |
| | | | | Taxes w/o Exemptions: | $1,728.95 | | |
Improvement / Building
| Improvement #1: | COMMERCIAL | State Code: | Y | 1500.0 sqft | Value: | $154,058 |
| Bathrooms: | 1 | Ceiling: | DRYWALL PAINTED | | Exterior Wall/Cover: | STL/ALM/WD OR ST STD | Floor Covering: | CONCRETE SEALER | | Floor Structure: | SLAB ON GRADE | Foundation: | CONCRETE | | Heating: | GAS HEATERS | Interior Finish: | DRYWALL PAINT | | Plumbing Fixture Cnt: | 1 | Roof Slope: | FLAT | | Roof Structure/Cover: | CJ ALUMINIUM HEAVY |   |   |
|
| | Type | Description | Class CD | Sub Class CD | Year Built | Area |
| | BAS | BASE/MAIN FLOOR | 3 | 0 | 2019 | 1500.0 |
| | oSIT | Site Improvements | 3 | 0 | 2019 | 0.0 |
| | oPV1 | PV/ASPH 2" | 3 | 0 | 2019 | 0.0 |
Sketch
Property Image
Land
| 1 | 71 | INDUSTRIAL MANUFACTURING | 0.0000 | 0.00 | 0.00 | 0.00 | 1.00 | $50,000 | $0 |
Roll Value History
| 2026 | N/A | N/A | N/A | N/A | N/A |
| 2025 | $154,058 | $50,000 | $0 | $204,058 | $204,058 |
| 2024 | $157,359 | $50,000 | $0 | $207,359 | $207,359 |
| 2023 | $159,010 | $50,000 | $0 | $209,010 | $209,010 |
| 2022 | $120,082 | $50,000 | $0 | $170,082 | $170,082 |
| 2021 | $120,082 | $45,000 | $0 | $165,082 | $165,082 |
| 2020 | $0 | $0 | $0 | $0 | $0 |
Deed and Sales History
| 1 | 08/20/2020 | WD | Warranty Deed | MASSEY, W L | MEEK, HARVEY K | | | $166,500.00 | 44364 | 4494488 |
Payout Agreement
| No payout information available.. |