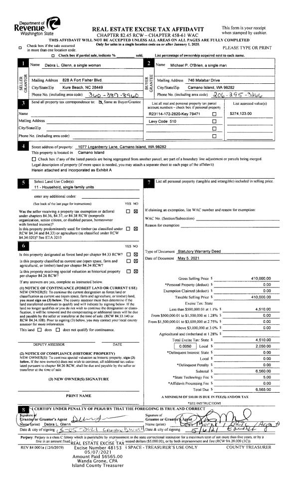
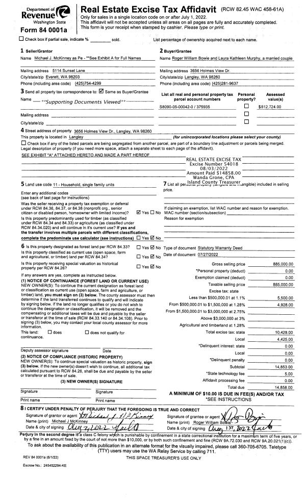
Property
Account |
| Property ID: | 813772 | Abbreviated Legal Description: | 10.0000 Acres ins Section 08s Township 32s Range R1s LOT B UNREG SEG AF#4502581;s |
| Geographic ID: | R13208-045-2310 | Agent Code: | |
| Type: | Real | | |
| Tax Area: | 119 - APPRAISER-OH Schl Dist, outside OH, vacant & 50 acres or less | Land Use Code | 91 |
| Open Space: | N | DFL | N |
| Historic Property: | N | Remodel Property: | N |
| Multi-Family Redevelopment: | N | | |
| Township: | 32 | Section: | 08 |
| Range: | R1 |
Location |
| Address: | 1651 PEDERSEN FARM LN OAK HARBOR, WA 98277 | Mapsco: | |
| Neighborhood: | Cycle 1 | Map ID: | 108 |
| Neighborhood CD: | 1 |
Owner |
| Name: | SENN, KYLE R | Owner ID: | 308969 |
| Mailing Address: | KORTNEE R SENN 1045 DIANE AVEW OAK HARBoR, WA 98277 | % Ownership: | 100.0000000000% |
| | | Exemptions: | |
Taxes and Assessment Details
Values
| (+) Improvement Homesite Value: | + | $0 | |
| (+) Improvement Non-Homesite Value: | + | $0 | |
| (+) Land Homesite Value: | + | $0 | |
| (+) Land Non-Homesite Value: | + | $240,000 | |
| (+) Curr Use (HS): | + | $0 | $0 |
| (+) Curr Use (NHS): | + | $0 | $0 |
| | | -------------------------- | |
| (=) Market Value: | = | $240,000 | |
| (–) Productivity Loss: | – | $0 | |
| | | -------------------------- | |
| (=) Subtotal: | = | $240,000 | |
| (+) Senior Appraised Value: | + | $0 | |
| (+) Non-Senior Appraised Value: | + | $240,000 | |
| | | -------------------------- | |
| (=) Total Appraised Value: | = | $240,000 | |
| (–) Senior Exemption Loss: | – | $0 | |
| (–) Exemption Loss: | – | $0 | |
| | | -------------------------- | |
| (=) Taxable Value: | = | $240,000 | |
Taxing Jurisdiction
| Owner: | SENN, KYLE R | | |
| % Ownership: | 100.0000000000% | | |
| Total Value: | $240,000 | | |
| Tax Area: | 119 - APPRAISER-OH Schl Dist, outside OH, vacant & 50 acres or less |
| CF | Conservation Futures | 0.0316035091 | $240,000 | $240,000 | $7.58 | | |
| CEM1 | Cemetery #1 | 0.0040320932 | $240,000 | $240,000 | $0.97 | | |
| HOBOND | Hospital BOND | 0.1910887512 | $240,000 | $240,000 | $45.86 | | |
| HOGEN | Hospital GEN | 0.3902502903 | $240,000 | $240,000 | $93.66 | | |
| CE | County Current Expense | 0.3708482477 | $240,000 | $240,000 | $89.00 | | |
| CR | County Roads | 0.4584763726 | $240,000 | $240,000 | $110.03 | | |
| ISLANDEMS | Hospital GEN (EMS) | 0.5000000000 | $240,000 | $240,000 | $120.00 | | |
| LIB | Library Sno-Isle GEN | 0.3153421757 | $240,000 | $240,000 | $75.68 | | |
| NWHIDPRMT | P & R N Whidbey GEN | 0.2004466701 | $240,000 | $240,000 | $48.11 | | |
| SCH201MO | School 201 Enrichment | 1.8559231640 | $240,000 | $240,000 | $445.42 | | |
| ST | State School | 1.3035497053 | $240,000 | $240,000 | $312.85 | | |
| ST2 | State School Part 2 | 0.8169543533 | $240,000 | $240,000 | $196.07 | | |
| | Total Tax Rate: | 6.4385153325 | | | | | |
| | | | | Taxes w/Current Exemptions: | $1,545.23 | | |
| | | | | Taxes w/o Exemptions: | $1,545.23 | | |
Improvement / Building
| Improvement #1: | RESIDENTIAL | State Code: | Y | 3040.0 sqft | Value: | $0 |
| Bathrooms: | 2.5 | Bedrooms: | 3 | | Ceiling: | (NONE) | Cooling: | HEAT PUMP/CONV/V | | Exterior Wall/Cover: | (NONE) | Floor Covering: | (NONE) | | Floor Structure: | (NONE) | Foundation: | (NONE) | | Interior Finish: | (NONE) | Plumbing Fixture Cnt: | 15 | | Roof Slope: | 8" IN 12" | Roof Structure/Cover: | (NONE) |
|
| | Type | Description | Class CD | Sub Class CD | Year Built | Area |
| | BAS | BASE/MAIN FLOOR | 4 | 0 | 2024 | 1624.0 |
| | UPS | UPPER STORY | 4 | 0 | 2024 | 1416.0 |
| | BIG | BUILT IN GARAGE | 4 | 0 | 2024 | 784.0 |
| | OWC | OPEN WOOD PORCH W/STEPS/ROOF/C | 4 | 0 | 2024 | 72.0 |
Sketch
Property Image
Land
| 1 | 91 | UNDEVELOPED LAND-METES AND BOUNDS | 9.0000 | 392040.00 | 0.00 | 0.00 | 1.00 | $121,250 | $0 |
| 2 | HS | HOMESITE | 1.0000 | 43560.00 | 0.00 | 0.00 | 1.00 | $118,750 | $0 |
Roll Value History
| 2026 | N/A | N/A | N/A | N/A | N/A |
| 2025 | $0 | $240,000 | $0 | $240,000 | $240,000 |
| 2024 | $0 | $240,000 | $0 | $240,000 | $240,000 |
| 2023 | $0 | $240,000 | $0 | $240,000 | $240,000 |
| 2022 | $0 | $220,000 | $0 | $220,000 | $220,000 |
| 2021 | $0 | $180,000 | $0 | $180,000 | $180,000 |
| 2020 | $0 | $130,000 | $929 | $929 | $929 |
Deed and Sales History
| 1 | 06/09/2023 | WD | Warranty Deed | BEERBOWER, DARYL R | SENN, KYLE R | | | $350,000.00 | 57003 | 4561040 |
| 2 | 03/02/2022 | WD | Warranty Deed | CORSAIR CONSTRUCTION LLC | BEERBOWER, DARYL R | | | $360,000.00 | 52184 | 4540891 |
| 3 | 01/21/2021 | WD | Warranty Deed | PEDERSEN, LEIF A | CORSAIR CONSTRUCTION LLC | | | $835,000.00 | 46657 | 4508808 |
|   | |
Payout Agreement
| No payout information available.. |