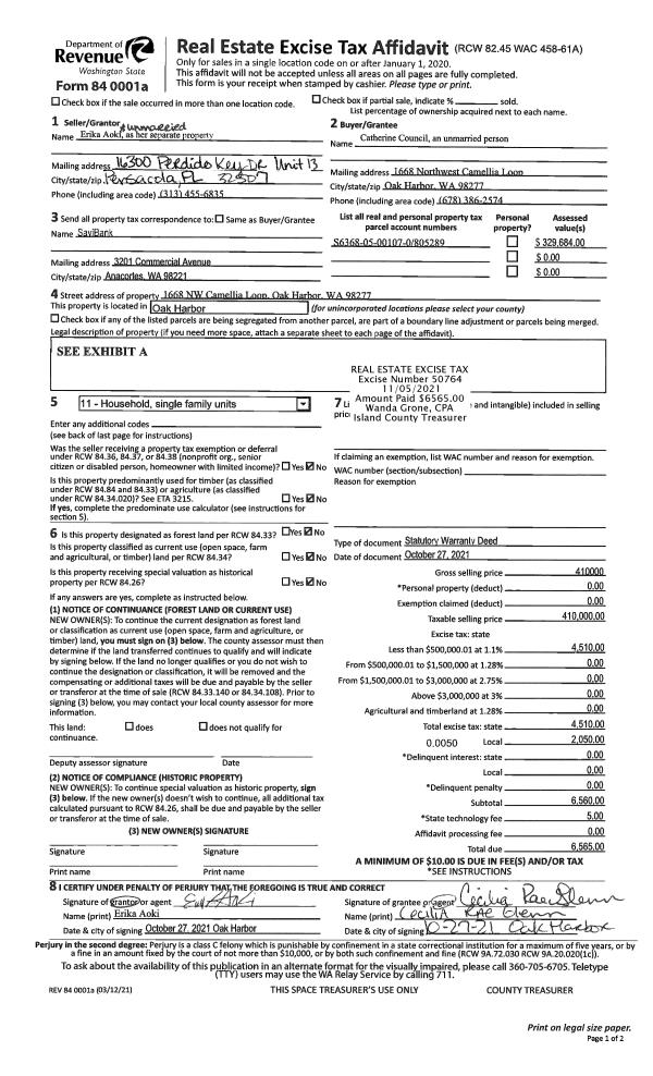
Property
Account |
| Property ID: | 813783 | Abbreviated Legal Description: | 7.4000 Acres ins Section 03s Township 28s Range R3s TGW 13' WSTLY PT 040-2850 PARA 070-3300 JUDGEMENT AF#4496199 LOT 2 SP 257-16 AF#4509481;s |
| Geographic ID: | R32803-042-3500 | Agent Code: | |
| Type: | Real | | |
| Tax Area: | 712 - APPRAISER-S Whid Schl Dist, outside Langley, improved, greater than 1 acre | Land Use Code | 11 |
| Open Space: | N | DFL | N |
| Historic Property: | N | Remodel Property: | N |
| Multi-Family Redevelopment: | N | | |
| Township: | 28 | Section: | 03 |
| Range: | R3 |
Location |
| Address: | 7660 BAILEY RD CLINTON, WA 98236 | Mapsco: | |
| Neighborhood: | Cycle 4 | Map ID: | 684 |
| Neighborhood CD: | 4 |
Owner |
| Name: | BRACKEN FROG MEADOWS, LLC | Owner ID: | 308947 |
| Mailing Address: | 6244 27TH AVE NE SEATTLE, WA 98115 | % Ownership: | 100.0000000000% |
| | | Exemptions: | |
Taxes and Assessment Details
Property Tax Information as of
10/22/2025
Click on "Statement Details" to expand or collapse a tax statement.
* Please enter a valid date ** Please enter a valid date *
Statement Details |
| 2025 | 53693 | ST - State School | $293.15 | $293.15 | $0.00 | $0.00 | $586.30 | $0.00 |
| 2025 | 53693 | Island County - Island County General Fund | $51.27 | $51.27 | $0.00 | $0.00 | $102.54 | $0.00 |
| 2025 | 53693 | ISLANDCORD - Island County Roads | $63.39 | $63.38 | $0.00 | $0.00 | $126.77 | $0.00 |
| 2025 | 53693 | PRTSWHDBY - Port of South Whidbey | $15.13 | $15.13 | $0.00 | $0.00 | $30.26 | $0.00 |
| 2025 | 53693 | PRKRECSWHDBY - Park & Recreation South Whidbey | $50.76 | $50.74 | $0.00 | $0.00 | $101.50 | $0.00 |
| 2025 | 53693 | SCH206 - School 206 South Whidbey | $145.88 | $145.86 | $0.00 | $0.00 | $291.74 | $0.00 |
| 2025 | 53693 | FIRE3 - Fire & Rescue Dist #3 South Whidbey | $165.97 | $165.96 | $0.00 | $0.00 | $331.93 | $0.00 |
| 2025 | 53693 | LIB - Library Sno-Isle Regional | $43.60 | $43.59 | $0.00 | $0.00 | $87.19 | $0.00 |
| 2025 | 53693 | HOSPEMS - Whidbey Health EMS Island County | $69.13 | $69.12 | $0.00 | $0.00 | $138.25 | $0.00 |
| 2025 | 53693 | HOSP - Whidbey Health | $80.37 | $80.37 | $0.00 | $0.00 | $160.74 | $0.00 |
| 2025 | 53693 | CF - Island County Conservation Futures | $4.37 | $4.37 | $0.00 | $0.00 | $8.74 | $0.00 |
| 2025 | 53693 | FP - Forest Protection | $8.50 | $8.50 | $0.00 | $0.00 | $17.00 | $0.00 |
| 2025 | 53693 | LCFFSA - Landowner Contingency Forest Fire Suppression | $3.00 | $3.00 | $0.00 | $0.00 | $6.00 | $0.00 |
| 2025 | 53693 | WDBYCNV - Whidbey Conservation District | $2.90 | $2.90 | $0.00 | $0.00 | $5.80 | $0.00 |
| 2025 | 53693 | FP ADMIN - Fire patrol | $0.25 | $0.25 | $0.00 | $0.00 | $0.50 | $0.00 |
| 2025 | 53693 | TOTAL: | $997.67 | $997.59 | $0.00 | $0.00 | $1995.26 | $0.00 |
|
| 2025 | 53693 | $997.67 | $997.59 | $0.00 | $0.00 | $1995.26 | $0.00 |
Statement Details |
| 2024 | 53471 | ST - State School | $233.83 | $233.82 | $0.00 | $0.00 | $467.65 | $0.00 |
| 2024 | 53471 | Island County - Island County General Fund | $37.25 | $37.24 | $0.00 | $0.00 | $74.49 | $0.00 |
| 2024 | 53471 | ISLANDCORD - Island County Roads | $46.00 | $46.00 | $0.00 | $0.00 | $92.00 | $0.00 |
| 2024 | 53471 | PRTSWHDBY - Port of South Whidbey | $10.99 | $10.99 | $0.00 | $0.00 | $21.98 | $0.00 |
| 2024 | 53471 | PRKRECSWHDBY - Park & Recreation South Whidbey | $36.78 | $36.77 | $0.00 | $0.00 | $73.55 | $0.00 |
| 2024 | 53471 | SCH206 - School 206 South Whidbey | $73.80 | $73.79 | $0.00 | $0.00 | $147.59 | $0.00 |
| 2024 | 53471 | LIB - Library Sno-Isle Regional | $32.43 | $32.43 | $0.00 | $0.00 | $64.86 | $0.00 |
| 2024 | 53471 | HOSPEMS - Whidbey Health EMS Island County | $33.13 | $33.12 | $0.00 | $0.00 | $66.25 | $0.00 |
| 2024 | 53471 | HOSP - Whidbey Health | $58.14 | $58.14 | $0.00 | $0.00 | $116.28 | $0.00 |
| 2024 | 53471 | CF - Island County Conservation Futures | $3.20 | $3.20 | $0.00 | $0.00 | $6.40 | $0.00 |
| 2024 | 53471 | FP - Forest Protection | $8.50 | $8.50 | $0.00 | $0.00 | $17.00 | $0.00 |
| 2024 | 53471 | LCFFSA - Landowner Contingency Forest Fire Suppression | $3.00 | $3.00 | $0.00 | $0.00 | $6.00 | $0.00 |
| 2024 | 53471 | WDBYCNV - Whidbey Conservation District | $2.90 | $2.90 | $0.00 | $0.00 | $5.80 | $0.00 |
| 2024 | 53471 | FP ADMIN - Fire patrol | $0.25 | $0.25 | $0.00 | $0.00 | $0.50 | $0.00 |
| 2024 | 53471 | TOTAL: | $580.20 | $580.15 | $0.00 | $0.00 | $1160.35 | $0.00 |
|
| 2024 | 53471 | $580.20 | $580.15 | $0.00 | $0.00 | $1160.35 | $0.00 |
Statement Details |
| 2023 | 53619 | ST - State School | $206.38 | $206.36 | $0.00 | $0.00 | $412.74 | $0.00 |
| 2023 | 53619 | Island County - Island County General Fund | $34.14 | $34.13 | $0.00 | $0.00 | $68.27 | $0.00 |
| 2023 | 53619 | ISLANDCORD - Island County Roads | $42.53 | $42.53 | $0.00 | $0.00 | $85.06 | $0.00 |
| 2023 | 53619 | PRTSWHDBY - Port of South Whidbey | $9.97 | $9.96 | $0.00 | $0.00 | $19.93 | $0.00 |
| 2023 | 53619 | PRKRECSWHDBY - Park & Recreation South Whidbey | $20.09 | $20.08 | $0.00 | $0.00 | $40.17 | $0.00 |
| 2023 | 53619 | SCH206 - School 206 South Whidbey | $67.11 | $67.10 | $0.00 | $0.00 | $134.21 | $0.00 |
| 2023 | 53619 | LIB - Library Sno-Isle Regional | $26.42 | $26.42 | $0.00 | $0.00 | $52.84 | $0.00 |
| 2023 | 53619 | HOSPEMS - Whidbey Health EMS Island County | $30.28 | $30.28 | $0.00 | $0.00 | $60.56 | $0.00 |
| 2023 | 53619 | HOSP - Whidbey Health | $53.18 | $53.17 | $0.00 | $0.00 | $106.35 | $0.00 |
| 2023 | 53619 | CF - Island County Conservation Futures | $2.94 | $2.93 | $0.00 | $0.00 | $5.87 | $0.00 |
| 2023 | 53619 | FP - Forest Protection | $8.50 | $8.50 | $0.00 | $0.00 | $17.00 | $0.00 |
| 2023 | 53619 | LCFFSA - Landowner Contingency Forest Fire Suppression | $3.00 | $3.00 | $0.00 | $0.00 | $6.00 | $0.00 |
| 2023 | 53619 | WDBYCNV - Whidbey Conservation District | $2.90 | $2.90 | $0.00 | $0.00 | $5.80 | $0.00 |
| 2023 | 53619 | FP ADMIN - Fire patrol | $0.25 | $0.25 | $0.00 | $0.00 | $0.50 | $0.00 |
| 2023 | 53619 | TOTAL: | $507.69 | $507.61 | $0.00 | $0.00 | $1015.30 | $0.00 |
|
| 2023 | 53619 | $507.69 | $507.61 | $0.00 | $0.00 | $1015.30 | $0.00 |
Statement Details |
| 2022 | 53764 | ST - State School | $216.35 | $216.33 | $0.00 | $0.00 | $432.68 | $0.00 |
| 2022 | 53764 | Island County - Island County General Fund | $36.30 | $36.30 | $0.00 | $0.00 | $72.60 | $0.00 |
| 2022 | 53764 | ISLANDCORD - Island County Roads | $45.65 | $45.65 | $0.00 | $0.00 | $91.30 | $0.00 |
| 2022 | 53764 | PRTSWHDBY - Port of South Whidbey | $10.54 | $10.53 | $0.00 | $0.00 | $21.07 | $0.00 |
| 2022 | 53764 | PRKRECSWHDBY - Park & Recreation South Whidbey | $14.95 | $14.94 | $0.00 | $0.00 | $29.89 | $0.00 |
| 2022 | 53764 | SCH206 - School 206 South Whidbey | $74.21 | $74.20 | $0.00 | $0.00 | $148.41 | $0.00 |
| 2022 | 53764 | LIB - Library Sno-Isle Regional | $29.37 | $29.36 | $0.00 | $0.00 | $58.73 | $0.00 |
| 2022 | 53764 | HOSPEMS - Whidbey Health EMS Island County | $31.78 | $31.78 | $0.00 | $0.00 | $63.56 | $0.00 |
| 2022 | 53764 | HOSP - Whidbey Health | $56.92 | $56.91 | $0.00 | $0.00 | $113.83 | $0.00 |
| 2022 | 53764 | CF - Island County Conservation Futures | $3.12 | $3.11 | $0.00 | $0.00 | $6.23 | $0.00 |
| 2022 | 53764 | FP - Forest Protection | $8.50 | $8.50 | $0.00 | $0.00 | $17.00 | $0.00 |
| 2022 | 53764 | LCFFSA - Landowner Contingency Forest Fire Suppression | $3.00 | $3.00 | $0.00 | $0.00 | $6.00 | $0.00 |
| 2022 | 53764 | WDBYCNV - Whidbey Conservation District | $2.90 | $2.90 | $0.00 | $0.00 | $5.80 | $0.00 |
| 2022 | 53764 | FP ADMIN - Fire patrol | $0.25 | $0.25 | $0.00 | $0.00 | $0.50 | $0.00 |
| 2022 | 53764 | TOTAL: | $533.84 | $533.76 | $0.00 | $0.00 | $1067.60 | $0.00 |
|
| 2022 | 53764 | $533.84 | $533.76 | $0.00 | $0.00 | $1067.60 | $0.00 |
Values
| (+) Improvement Homesite Value: | + | $0 | |
| (+) Improvement Non-Homesite Value: | + | $310,733 | |
| (+) Land Homesite Value: | + | $0 | |
| (+) Land Non-Homesite Value: | + | $337,500 | |
| (+) Curr Use (HS): | + | $0 | $0 |
| (+) Curr Use (NHS): | + | $0 | $0 |
| | | -------------------------- | |
| (=) Market Value: | = | $648,233 | |
| (–) Productivity Loss: | – | $0 | |
| | | -------------------------- | |
| (=) Subtotal: | = | $648,233 | |
| (+) Senior Appraised Value: | + | $0 | |
| (+) Non-Senior Appraised Value: | + | $648,233 | |
| | | -------------------------- | |
| (=) Total Appraised Value: | = | $648,233 | |
| (–) Senior Exemption Loss: | – | $0 | |
| (–) Exemption Loss: | – | $0 | |
| | | -------------------------- | |
| (=) Taxable Value: | = | $648,233 | |
Taxing Jurisdiction
| Owner: | BRACKEN FROG MEADOWS, LLC | | |
| % Ownership: | 100.0000000000% | | |
| Total Value: | $648,233 | | |
| Tax Area: | 712 - APPRAISER-S Whid Schl Dist, outside Langley, improved, greater than 1 acre |
| CF | Conservation Futures | 0.0316035091 | $648,233 | $648,233 | $20.49 | | |
| FIRE3 | Fire & Rescue Dist #3 S Whidbey GEN | 1.2004855531 | $648,233 | $648,233 | $778.19 | | |
| HOBOND | Hospital BOND | 0.1910887512 | $648,233 | $648,233 | $123.87 | | |
| HOGEN | Hospital GEN | 0.3902502903 | $648,233 | $648,233 | $252.97 | | |
| CE | County Current Expense | 0.3708482477 | $648,233 | $648,233 | $240.40 | | |
| CR | County Roads | 0.4584763726 | $648,233 | $648,233 | $297.20 | | |
| ISLANDEMS | Hospital GEN (EMS) | 0.5000000000 | $648,233 | $648,233 | $324.12 | | |
| LIB | Library Sno-Isle GEN | 0.3153421757 | $648,233 | $648,233 | $204.42 | | |
| PORTWHID | Port of S Whidbey GEN | 0.1094540357 | $648,233 | $648,233 | $70.95 | | |
| SCH206BOND | School 206 BOND | 0.3161759235 | $648,233 | $648,233 | $204.96 | | |
| SCH206MO | School 206 Enrichment | 0.4547169547 | $648,233 | $648,233 | $294.76 | | |
| ST | State School | 1.3035497053 | $648,233 | $648,233 | $845.00 | | |
| ST2 | State School Part 2 | 0.8169543533 | $648,233 | $648,233 | $529.58 | | |
| SWHIDPRBD | P & R S Whidbey BOND | 0.0152817568 | $648,233 | $648,233 | $9.91 | | |
| SWHIDPRBD2 | P & R S Whidbey BOND2 | 0.0138911264 | $648,233 | $648,233 | $9.00 | | |
| SWHIDPRMT | P & R S Whidbey GEN | 0.2053334452 | $648,233 | $648,233 | $133.10 | | |
| | Total Tax Rate: | 6.6934522006 | | | | | |
| | | | | Taxes w/Current Exemptions: | $4,338.92 | | |
| | | | | Taxes w/o Exemptions: | $4,338.92 | | |
Improvement / Building
| Improvement #1: | RESIDENTIAL | State Code: | Y | 1048.3 sqft | Value: | $310,733 |
| Bathrooms: | 2 | Bedrooms: | 2 | | Ceiling: | DRYWALL PAINTED | Exterior Wall/Cover: | CEMENT FIBER | | Floor Covering: | SOFTWOOD 100% | Floor Structure: | WOOD W/SUBFLOOR | | Foundation: | CONCRETE | Heating: | HEAT PUMP | | Interior Finish: | DRYWALL PAINT | Plumbing Fixture Cnt: | 9 | | Roof Slope: | 3" IN 12" | Roof Structure/Cover: | CJ METAL |
|
| | Type | Description | Class CD | Sub Class CD | Year Built | Area |
| | BAS | BASE/MAIN FLOOR | 4 | 0 | 2024 | 1048.3 |
| | OWP | OPEN WOOD PORCH W/STEPS | 4 | 0 | 2024 | 361.9 |
| | OWC | OPEN WOOD PORCH W/STEPS/ROOF/C | 4 | 0 | 2024 | 242.1 |
Sketch
Property Image
Land
| 1 | 32 | AC (03.01-09.99) | 7.4000 | 322344.00 | 12.74 | 0.00 | 1.00 | $337,500 | $0 |
Roll Value History
| 2026 | N/A | N/A | N/A | N/A | N/A |
| 2025 | $310,733 | $337,500 | $0 | $648,233 | $648,233 |
| 2024 | $46,495 | $230,000 | $0 | $276,495 | $276,495 |
| 2023 | $0 | $200,000 | $0 | $200,000 | $200,000 |
| 2022 | $0 | $170,000 | $0 | $170,000 | $170,000 |
| 2021 | $0 | $150,000 | $0 | $150,000 | $150,000 |
Deed and Sales History
| 1 | 05/26/2023 | QCD | Quit Claim Deed | MULHOLLAND, DELIA | BRACKEN FROG MEADOWS, LLC | | | $0.00 | 56981 | 4560949 |
| 2 | 04/05/2021 | WD | Warranty Deed | JACOBY, MARGARET R | MULHOLLAND, DELIA | | | $235,000.00 | 47675 | 4515812 |
Payout Agreement
| No payout information available.. |