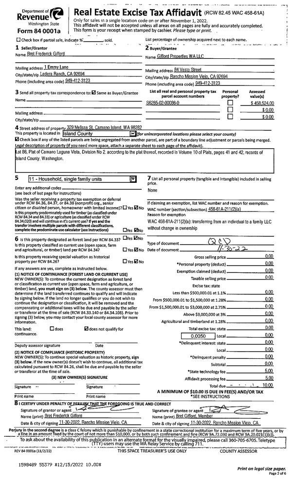
Property
Account |
| Property ID: | 813793 | Abbreviated Legal Description: | CAMANO SUNRISE VIEW ESTATES #1 LOT 4 |
| Geographic ID: | S8556-00-00004-0 | Agent Code: | |
| Type: | Real | | |
| Tax Area: | 512 - APPRAISER-Stan/Cam Schl Dist, improved, greater than 1 acre | Land Use Code | 11 |
| Open Space: | N | DFL | N |
| Historic Property: | N | Remodel Property: | N |
| Multi-Family Redevelopment: | N | | |
| Township: | 31 | Section: | 19 |
| Range: | R3 |
Location |
| Address: | 1383 VILLAGE HEIGHTS PLACE CAMANO IS, WA 98282 | Mapsco: | |
| Neighborhood: | Cycle 5 | Map ID: | 931 |
| Neighborhood CD: | 5 |
Owner |
| Name: | THOMSON, NEIL | Owner ID: | 303883 |
| Mailing Address: | GAIL THOMSON 1383 VILLAGE HEIGHTS PLACE CAMANO ISLAND, WA 98282 | % Ownership: | 100.0000000000% |
| | | Exemptions: | |
Taxes and Assessment Details
Property Tax Information as of
10/23/2025
Click on "Statement Details" to expand or collapse a tax statement.
* Please enter a valid date ** Please enter a valid date *
Statement Details |
| 2025 | 53702 | ST - State School | $1240.14 | $1240.13 | $0.00 | $0.00 | $1240.14 | $1240.13 |
| 2025 | 53702 | Island County - Island County General Fund | $216.89 | $216.88 | $0.00 | $0.00 | $216.89 | $216.88 |
| 2025 | 53702 | ISLANDCORD - Island County Roads | $268.13 | $268.13 | $0.00 | $0.00 | $268.13 | $268.13 |
| 2025 | 53702 | SCH205_401 - School 205-401 Stanwood-Camano | $1292.18 | $1292.17 | $0.00 | $0.00 | $1292.18 | $1292.17 |
| 2025 | 53702 | FIRE1 - Fire & Rescue Dist #1 Camano | $1038.12 | $1038.11 | $0.00 | $0.00 | $1038.12 | $1038.11 |
| 2025 | 53702 | LIB - Library Sno-Isle Regional | $184.42 | $184.42 | $0.00 | $0.00 | $184.42 | $184.42 |
| 2025 | 53702 | CF - Island County Conservation Futures | $18.49 | $18.48 | $0.00 | $0.00 | $18.49 | $18.48 |
| 2025 | 53702 | Camano - Camano Island Conservation District | $2.65 | $2.65 | $0.00 | $0.00 | $2.65 | $2.65 |
| 2025 | 53702 | FP - Forest Protection | $8.50 | $8.50 | $0.00 | $0.00 | $8.50 | $8.50 |
| 2025 | 53702 | LCFFSA - Landowner Contingency Forest Fire Suppression | $3.00 | $3.00 | $0.00 | $0.00 | $3.00 | $3.00 |
| 2025 | 53702 | FP ADMIN - Fire patrol | $0.25 | $0.25 | $0.00 | $0.00 | $0.25 | $0.25 |
| 2025 | 53702 | TOTAL: | $4272.77 | $4272.72 | $0.00 | $0.00 | $4272.77 | $4272.72 |
|
| 2025 | 53702 | $4272.77 | $4272.72 | $0.00 | $0.00 | $4272.77 | $4272.72 |
Statement Details |
| 2024 | 53480 | ST - State School | $1271.59 | $1271.58 | $0.00 | $0.00 | $2543.17 | $0.00 |
| 2024 | 53480 | Island County - Island County General Fund | $202.54 | $202.54 | $0.00 | $0.00 | $405.08 | $0.00 |
| 2024 | 53480 | ISLANDCORD - Island County Roads | $250.17 | $250.16 | $0.00 | $0.00 | $500.33 | $0.00 |
| 2024 | 53480 | SCH205_401 - School 205-401 Stanwood-Camano | $1217.75 | $1217.73 | $0.00 | $0.00 | $2435.48 | $0.00 |
| 2024 | 53480 | FIRE1 - Fire & Rescue Dist #1 Camano | $963.32 | $963.31 | $0.00 | $0.00 | $1926.63 | $0.00 |
| 2024 | 53480 | LIB - Library Sno-Isle Regional | $197.92 | $197.91 | $0.00 | $0.00 | $395.83 | $0.00 |
| 2024 | 53480 | CF - Island County Conservation Futures | $17.41 | $17.41 | $0.00 | $0.00 | $34.82 | $0.00 |
| 2024 | 53480 | Camano - Camano Island Conservation District | $2.65 | $2.65 | $0.00 | $0.00 | $5.30 | $0.00 |
| 2024 | 53480 | FP - Forest Protection | $8.50 | $8.50 | $0.00 | $0.00 | $17.00 | $0.00 |
| 2024 | 53480 | LCFFSA - Landowner Contingency Forest Fire Suppression | $3.00 | $3.00 | $0.00 | $0.00 | $6.00 | $0.00 |
| 2024 | 53480 | FP ADMIN - Fire patrol | $0.25 | $0.25 | $0.00 | $0.00 | $0.50 | $0.00 |
| 2024 | 53480 | TOTAL: | $4135.10 | $4135.04 | $0.00 | $0.00 | $8270.14 | $0.00 |
|
| 2024 | 53480 | $4135.10 | $4135.04 | $0.00 | $0.00 | $8270.14 | $0.00 |
Statement Details |
| 2023 | 53628 | ST - State School | $1121.43 | $1121.43 | $0.00 | $0.00 | $2242.86 | $0.00 |
| 2023 | 53628 | Island County - Island County General Fund | $185.50 | $185.49 | $0.00 | $0.00 | $370.99 | $0.00 |
| 2023 | 53628 | ISLANDCORD - Island County Roads | $231.13 | $231.12 | $0.00 | $0.00 | $462.25 | $0.00 |
| 2023 | 53628 | SCH205_401 - School 205-401 Stanwood-Camano | $1046.63 | $1046.62 | $0.00 | $0.00 | $2093.25 | $0.00 |
| 2023 | 53628 | FIRE1 - Fire & Rescue Dist #1 Camano | $641.24 | $641.21 | $0.00 | $0.00 | $1282.45 | $0.00 |
| 2023 | 53628 | LIB - Library Sno-Isle Regional | $163.44 | $163.43 | $0.00 | $0.00 | $326.87 | $0.00 |
| 2023 | 53628 | CF - Island County Conservation Futures | $15.94 | $15.94 | $0.00 | $0.00 | $31.88 | $0.00 |
| 2023 | 53628 | Camano - Camano Island Conservation District | $2.65 | $2.65 | $0.00 | $0.00 | $5.30 | $0.00 |
| 2023 | 53628 | FP - Forest Protection | $8.50 | $8.50 | $0.00 | $0.00 | $17.00 | $0.00 |
| 2023 | 53628 | LCFFSA - Landowner Contingency Forest Fire Suppression | $3.00 | $3.00 | $0.00 | $0.00 | $6.00 | $0.00 |
| 2023 | 53628 | FP ADMIN - Fire patrol | $0.25 | $0.25 | $0.00 | $0.00 | $0.50 | $0.00 |
| 2023 | 53628 | TOTAL: | $3419.71 | $3419.64 | $0.00 | $0.00 | $6839.35 | $0.00 |
|
| 2023 | 53628 | $3419.71 | $3419.64 | $0.00 | $0.00 | $6839.35 | $0.00 |
Statement Details |
| 2022 | 53773 | ST - State School | $224.68 | $224.67 | $0.00 | $0.00 | $449.35 | $0.00 |
| 2022 | 53773 | Island County - Island County General Fund | $37.70 | $37.70 | $0.00 | $0.00 | $75.40 | $0.00 |
| 2022 | 53773 | ISLANDCORD - Island County Roads | $47.41 | $47.41 | $0.00 | $0.00 | $94.82 | $0.00 |
| 2022 | 53773 | SCH205_401 - School 205-401 Stanwood-Camano | $230.15 | $230.13 | $0.00 | $0.00 | $460.28 | $0.00 |
| 2022 | 53773 | FIRE1 - Fire & Rescue Dist #1 Camano | $38.95 | $38.94 | $0.00 | $0.00 | $77.89 | $0.00 |
| 2022 | 53773 | LIB - Library Sno-Isle Regional | $34.79 | $34.77 | $0.00 | $0.00 | $69.56 | $0.00 |
| 2022 | 53773 | CF - Island County Conservation Futures | $3.24 | $3.23 | $0.00 | $0.00 | $6.47 | $0.00 |
| 2022 | 53773 | Camano - Camano Island Conservation District | $2.65 | $2.65 | $0.00 | $0.00 | $5.30 | $0.00 |
| 2022 | 53773 | FP - Forest Protection | $8.50 | $8.50 | $0.00 | $0.00 | $17.00 | $0.00 |
| 2022 | 53773 | LCFFSA - Landowner Contingency Forest Fire Suppression | $3.00 | $3.00 | $0.00 | $0.00 | $6.00 | $0.00 |
| 2022 | 53773 | FP ADMIN - Fire patrol | $0.25 | $0.25 | $0.00 | $0.00 | $0.50 | $0.00 |
| 2022 | 53773 | TOTAL: | $631.32 | $631.25 | $0.00 | $0.00 | $1262.57 | $0.00 |
|
| 2022 | 53773 | $631.32 | $631.25 | $0.00 | $0.00 | $1262.57 | $0.00 |
Values
| (+) Improvement Homesite Value: | + | $0 | |
| (+) Improvement Non-Homesite Value: | + | $753,677 | |
| (+) Land Homesite Value: | + | $0 | |
| (+) Land Non-Homesite Value: | + | $410,000 | |
| (+) Curr Use (HS): | + | $0 | $0 |
| (+) Curr Use (NHS): | + | $0 | $0 |
| | | -------------------------- | |
| (=) Market Value: | = | $1,163,677 | |
| (–) Productivity Loss: | – | $0 | |
| | | -------------------------- | |
| (=) Subtotal: | = | $1,163,677 | |
| (+) Senior Appraised Value: | + | $0 | |
| (+) Non-Senior Appraised Value: | + | $1,163,677 | |
| | | -------------------------- | |
| (=) Total Appraised Value: | = | $1,163,677 | |
| (–) Senior Exemption Loss: | – | $0 | |
| (–) Exemption Loss: | – | $0 | |
| | | -------------------------- | |
| (=) Taxable Value: | = | $1,163,677 | |
Taxing Jurisdiction
| Owner: | THOMSON, NEIL | | |
| % Ownership: | 100.0000000000% | | |
| Total Value: | $1,163,677 | | |
| Tax Area: | 512 - APPRAISER-Stan/Cam Schl Dist, improved, greater than 1 acre |
| CF | Conservation Futures | 0.0316035091 | $1,163,677 | $1,163,677 | $36.78 | | |
| EMS1 | Fire & Rescue Dist #1 Camano GEN (EMS) | 0.3677864386 | $1,163,677 | $1,163,677 | $427.98 | | |
| FIRE1 | Fire & Rescue Dist #1 Camano GEN | 1.2502910536 | $1,163,677 | $1,163,677 | $1,454.93 | | |
| FIRE1BOND | Fire & Rescue Dist #1 Camano BOND | 0.1570001679 | $1,163,677 | $1,163,677 | $182.70 | | |
| CE | County Current Expense | 0.3708482477 | $1,163,677 | $1,163,677 | $431.55 | | |
| CR | County Roads | 0.4584763726 | $1,163,677 | $1,163,677 | $533.52 | | |
| LCIB | Library Sno-Isle BOND (Camano Island) | 0.0396325772 | $1,163,677 | $1,163,677 | $46.12 | | |
| LIB | Library Sno-Isle GEN | 0.3153421757 | $1,163,677 | $1,163,677 | $366.96 | | |
| SCH205_401 | School 205-401 Enrichment | 1.2698420524 | $1,163,677 | $1,163,677 | $1,477.69 | | |
| SCH205BOND | School 205-401 BOND | 0.9396497583 | $1,163,677 | $1,163,677 | $1,093.45 | | |
| ST | State School | 1.3035497053 | $1,163,677 | $1,163,677 | $1,516.91 | | |
| ST2 | State School Part 2 | 0.8169543533 | $1,163,677 | $1,163,677 | $950.67 | | |
| | Total Tax Rate: | 7.3209764117 | | | | | |
| | | | | Taxes w/Current Exemptions: | $8,519.26 | | |
| | | | | Taxes w/o Exemptions: | $8,519.26 | | |
Improvement / Building
| Improvement #1: | RESIDENTIAL | State Code: | Y | 2468.5 sqft | Value: | $753,677 |
| Bathrooms: | 2 | Bedrooms: | 2 | | Ceiling: | TONGUE & GROOVE | Cooling: | HEAT PUMP/CONV/V | | Exterior Wall/Cover: | CEMENT FIBER | Floor Covering: | HARDWOOD/CARP 60-40 | | Floor Structure: | WOOD W/SUBFLOOR | Foundation: | CONCRETE | | Interior Finish: | DRYWALL PAINT | Plumbing Fixture Cnt: | 12 | | Roof Slope: | 6" IN 12" | Roof Structure/Cover: | BEAM ASPHALT |
|
| | Type | Description | Class CD | Sub Class CD | Year Built | Area |
| | BAS | BASE/MAIN FLOOR | 4 | 0 | 2021 | 2468.5 |
| | AGR | ATTACHED GARAGE | 4 | 0 | 2021 | 813.0 |
| | OWC | OPEN WOOD PORCH W/STEPS/ROOF/C | 4 | 0 | 2021 | 828.0 |
| | OP2 | OPEN PORCH W/STEPS | 4 | 0 | 2021 | 424.0 |
| | OP4 | OPEN PORCH W/CEILING-ROOF | 4 | 0 | 2021 | 315.3 |
| | ENP | ENCLOSED PORCH | 4 | 0 | 2021 | 360.0 |
| | OP2 | OPEN PORCH W/STEPS | 4 | 0 | 2021 | 208.0 |
Sketch
Property Image
Land
| 1 | 18 | AC (02.01-03.00) | 2.3500 | 102366.00 | 0.00 | 0.00 | 1.00 | $410,000 | $0 |
Roll Value History
| 2026 | N/A | N/A | N/A | N/A | N/A |
| 2025 | $753,677 | $410,000 | $0 | $1,163,677 | $1,163,677 |
| 2024 | $759,659 | $410,000 | $0 | $1,169,659 | $1,169,659 |
| 2023 | $767,634 | $320,000 | $0 | $1,087,634 | $1,087,634 |
| 2022 | $663,802 | $260,000 | $0 | $923,802 | $923,802 |
| 2021 | $55,784 | $100,000 | $0 | $155,784 | $155,784 |
Deed and Sales History
| 1 | 04/22/2022 | WD | Warranty Deed | MACDOUGALL, JULIE R | THOMSON, NEIL | | | $1,520,000.00 | 52835 | 4543986 |
| 2 | 02/28/2022 | QCD | Quit Claim Deed | MACDOUGALL, JULIE R | MACDOUGALL, JULIE R | | | $0.00 | 52174 | 4540854 |
| 3 | 02/14/2022 | QCD | Quit Claim Deed | RAEBURN HOMES, LLC | MACDOUGALL, JULIE R | | | $0.00 | 51992 | 4539923 |
| 4 | 03/29/2021 | WD | Warranty Deed | HANSELL MITZEL LLC | RAEBURN HOMES, LLC | | | $0.00 | 47528 | 4514870 |
Payout Agreement
| No payout information available.. |