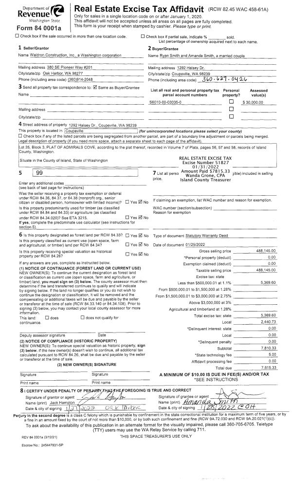
Property
Account |
| Property ID: | 813803 | Abbreviated Legal Description: | HOWARDS POINTE PRD LOT 2 |
| Geographic ID: | S8571-00-00002-0 | Agent Code: | |
| Type: | Real | | |
| Tax Area: | 100 - APPRAISER-OH Schl Dist, in OH | Land Use Code | 11 |
| Open Space: | N | DFL | N |
| Historic Property: | N | Remodel Property: | N |
| Multi-Family Redevelopment: | N | | |
| Township: | 32 | Section: | 09 |
| Range: | R1 |
Location |
| Address: | 2987 SW CRESTWOOD DR OAK HARBOR, WA 98277 | Mapsco: | |
| Neighborhood: | Cycle 1 | Map ID: | 114 |
| Neighborhood CD: | 1 |
Owner |
| Name: | HUGHES, JUSTIN | Owner ID: | 301365 |
| Mailing Address: | ELIZABETH HUGHES 2987 SW CRESTWOOD DR OAK HARBOR, WA 98277 | % Ownership: | 100.0000000000% |
| | | Exemptions: | |
Taxes and Assessment Details
Property Tax Information as of
10/23/2025
Click on "Statement Details" to expand or collapse a tax statement.
* Please enter a valid date ** Please enter a valid date *
Statement Details |
| 2025 | 53712 | ST - State School | $600.05 | $600.03 | $0.00 | $0.00 | $600.05 | $600.03 |
| 2025 | 53712 | Island County - Island County General Fund | $104.94 | $104.94 | $0.00 | $0.00 | $104.94 | $104.94 |
| 2025 | 53712 | CIOKHRB - City of Oak Harbor | $705.40 | $705.39 | $0.00 | $0.00 | $705.40 | $705.39 |
| 2025 | 53712 | PRKRECNWHDBY - Park & Recreation North Whidbey | $56.72 | $56.72 | $0.00 | $0.00 | $56.72 | $56.72 |
| 2025 | 53712 | SCH201 - School 201 Oak Harbor | $525.17 | $525.17 | $0.00 | $0.00 | $525.17 | $525.17 |
| 2025 | 53712 | CEM1 - Cemetery #1 North Whidbey | $1.14 | $1.14 | $0.00 | $0.00 | $1.14 | $1.14 |
| 2025 | 53712 | LIB - Library Sno-Isle Regional | $89.23 | $89.23 | $0.00 | $0.00 | $89.23 | $89.23 |
| 2025 | 53712 | HOSPEMS - Whidbey Health EMS Island County | $141.49 | $141.48 | $0.00 | $0.00 | $141.49 | $141.48 |
| 2025 | 53712 | HOSP - Whidbey Health | $164.50 | $164.50 | $0.00 | $0.00 | $164.50 | $164.50 |
| 2025 | 53712 | CF - Island County Conservation Futures | $8.95 | $8.94 | $0.00 | $0.00 | $8.95 | $8.94 |
| 2025 | 53712 | WDBYCNV - Whidbey Conservation District | $2.55 | $2.55 | $0.00 | $0.00 | $2.55 | $2.55 |
| 2025 | 53712 | TOTAL: | $2400.14 | $2400.09 | $0.00 | $0.00 | $2400.14 | $2400.09 |
|
| 2025 | 53712 | $2400.14 | $2400.09 | $0.00 | $0.00 | $2400.14 | $2400.09 |
Statement Details |
| 2024 | 53490 | ST - State School | $663.97 | $663.96 | $0.00 | $0.00 | $1327.93 | $0.00 |
| 2024 | 53490 | Island County - Island County General Fund | $105.76 | $105.76 | $0.00 | $0.00 | $211.52 | $0.00 |
| 2024 | 53490 | CIOKHRB - City of Oak Harbor | $707.72 | $707.72 | $0.00 | $0.00 | $1415.44 | $0.00 |
| 2024 | 53490 | PRKRECNWHDBY - Park & Recreation North Whidbey | $38.96 | $38.96 | $0.00 | $0.00 | $77.92 | $0.00 |
| 2024 | 53490 | SCH201 - School 201 Oak Harbor | $514.84 | $514.84 | $0.00 | $0.00 | $1029.68 | $0.00 |
| 2024 | 53490 | CEM1 - Cemetery #1 North Whidbey | $1.15 | $1.15 | $0.00 | $0.00 | $2.30 | $0.00 |
| 2024 | 53490 | LIB - Library Sno-Isle Regional | $92.09 | $92.09 | $0.00 | $0.00 | $184.18 | $0.00 |
| 2024 | 53490 | HOSPEMS - Whidbey Health EMS Island County | $94.06 | $94.05 | $0.00 | $0.00 | $188.11 | $0.00 |
| 2024 | 53490 | HOSP - Whidbey Health | $165.10 | $165.09 | $0.00 | $0.00 | $330.19 | $0.00 |
| 2024 | 53490 | CF - Island County Conservation Futures | $9.09 | $9.09 | $0.00 | $0.00 | $18.18 | $0.00 |
| 2024 | 53490 | WDBYCNV - Whidbey Conservation District | $2.55 | $2.55 | $0.00 | $0.00 | $5.10 | $0.00 |
| 2024 | 53490 | TOTAL: | $2395.29 | $2395.26 | $0.00 | $0.00 | $4790.55 | $0.00 |
|
| 2024 | 53490 | $2395.29 | $2395.26 | $0.00 | $0.00 | $4790.55 | $0.00 |
Statement Details |
| 2023 | 53638 | ST - State School | $647.93 | $647.91 | $0.00 | $0.00 | $1295.84 | $0.00 |
| 2023 | 53638 | Island County - Island County General Fund | $107.18 | $107.17 | $0.00 | $0.00 | $214.35 | $0.00 |
| 2023 | 53638 | CIOKHRB - City of Oak Harbor | $727.49 | $727.48 | $0.00 | $0.00 | $1454.97 | $0.00 |
| 2023 | 53638 | PRKRECNWHDBY - Park & Recreation North Whidbey | $39.66 | $39.65 | $0.00 | $0.00 | $79.31 | $0.00 |
| 2023 | 53638 | SCH201 - School 201 Oak Harbor | $512.12 | $512.11 | $0.00 | $0.00 | $1024.23 | $0.00 |
| 2023 | 53638 | CEM1 - Cemetery #1 North Whidbey | $1.18 | $1.17 | $0.00 | $0.00 | $2.35 | $0.00 |
| 2023 | 53638 | LIB - Library Sno-Isle Regional | $82.96 | $82.95 | $0.00 | $0.00 | $165.91 | $0.00 |
| 2023 | 53638 | HOSPEMS - Whidbey Health EMS Island County | $95.07 | $95.06 | $0.00 | $0.00 | $190.13 | $0.00 |
| 2023 | 53638 | HOSP - Whidbey Health | $166.96 | $166.95 | $0.00 | $0.00 | $333.91 | $0.00 |
| 2023 | 53638 | CF - Island County Conservation Futures | $9.21 | $9.21 | $0.00 | $0.00 | $18.42 | $0.00 |
| 2023 | 53638 | WDBYCNV - Whidbey Conservation District | $2.55 | $2.55 | $0.00 | $0.00 | $5.10 | $0.00 |
| 2023 | 53638 | TOTAL: | $2392.31 | $2392.21 | $0.00 | $0.00 | $4784.52 | $0.00 |
|
| 2023 | 53638 | $2392.31 | $2392.21 | $0.00 | $0.00 | $4784.52 | $0.00 |
Statement Details |
| 2022 | 53783 | ST - State School | $218.57 | $218.55 | $0.00 | $0.00 | $437.12 | $0.00 |
| 2022 | 53783 | Island County - Island County General Fund | $36.68 | $36.67 | $0.00 | $0.00 | $73.35 | $0.00 |
| 2022 | 53783 | CIOKHRB - City of Oak Harbor | $138.14 | $138.13 | $0.00 | $0.00 | $276.27 | $0.00 |
| 2022 | 53783 | PRKRECNWHDBY - Park & Recreation North Whidbey | $13.25 | $13.25 | $0.00 | $0.00 | $26.50 | $0.00 |
| 2022 | 53783 | SCH201 - School 201 Oak Harbor | $281.88 | $281.86 | $0.00 | $0.00 | $563.74 | $0.00 |
| 2022 | 53783 | CEM1 - Cemetery #1 North Whidbey | $0.39 | $0.39 | $0.00 | $0.00 | $0.78 | $0.00 |
| 2022 | 53783 | LIB - Library Sno-Isle Regional | $29.67 | $29.66 | $0.00 | $0.00 | $59.33 | $0.00 |
| 2022 | 53783 | HOSPEMS - Whidbey Health EMS Island County | $32.11 | $32.10 | $0.00 | $0.00 | $64.21 | $0.00 |
| 2022 | 53783 | HOSP - Whidbey Health | $57.51 | $57.49 | $0.00 | $0.00 | $115.00 | $0.00 |
| 2022 | 53783 | CF - Island County Conservation Futures | $3.15 | $3.14 | $0.00 | $0.00 | $6.29 | $0.00 |
| 2022 | 53783 | WDBYCNV - Whidbey Conservation District | $2.55 | $2.55 | $0.00 | $0.00 | $5.10 | $0.00 |
| 2022 | 53783 | TOTAL: | $813.90 | $813.79 | $0.00 | $0.00 | $1627.69 | $0.00 |
|
| 2022 | 53783 | $813.90 | $813.79 | $0.00 | $0.00 | $1627.69 | $0.00 |
Values
| (+) Improvement Homesite Value: | + | $0 | |
| (+) Improvement Non-Homesite Value: | + | $432,505 | |
| (+) Land Homesite Value: | + | $0 | |
| (+) Land Non-Homesite Value: | + | $180,000 | |
| (+) Curr Use (HS): | + | $0 | $0 |
| (+) Curr Use (NHS): | + | $0 | $0 |
| | | -------------------------- | |
| (=) Market Value: | = | $612,505 | |
| (–) Productivity Loss: | – | $0 | |
| | | -------------------------- | |
| (=) Subtotal: | = | $612,505 | |
| (+) Senior Appraised Value: | + | $0 | |
| (+) Non-Senior Appraised Value: | + | $612,505 | |
| | | -------------------------- | |
| (=) Total Appraised Value: | = | $612,505 | |
| (–) Senior Exemption Loss: | – | $0 | |
| (–) Exemption Loss: | – | $0 | |
| | | -------------------------- | |
| (=) Taxable Value: | = | $612,505 | |
Taxing Jurisdiction
| Owner: | HUGHES, JUSTIN | | |
| % Ownership: | 100.0000000000% | | |
| Total Value: | $612,505 | | |
| Tax Area: | 100 - APPRAISER-OH Schl Dist, in OH |
| CF | Conservation Futures | 0.0316035091 | $612,505 | $612,505 | $19.36 | | |
| CEM1 | Cemetery #1 | 0.0040320932 | $612,505 | $612,505 | $2.47 | | |
| COH | City of Oak Harbor | 2.3001546061 | $612,505 | $612,505 | $1,408.86 | | |
| OAKBOND | City of Oak Harbor BOND | 0.1926904192 | $612,505 | $612,505 | $118.02 | | |
| HOBOND | Hospital BOND | 0.1910887512 | $612,505 | $612,505 | $117.04 | | |
| HOGEN | Hospital GEN | 0.3902502903 | $612,505 | $612,505 | $239.03 | | |
| CE | County Current Expense | 0.3708482477 | $612,505 | $612,505 | $227.15 | | |
| ISLANDEMS | Hospital GEN (EMS) | 0.5000000000 | $612,505 | $612,505 | $306.25 | | |
| LIB | Library Sno-Isle GEN | 0.3153421757 | $612,505 | $612,505 | $193.15 | | |
| NWHIDPRMT | P & R N Whidbey GEN | 0.2004466701 | $612,505 | $612,505 | $122.77 | | |
| SCH201MO | School 201 Enrichment | 1.8559231640 | $612,505 | $612,505 | $1,136.76 | | |
| ST | State School | 1.3035497053 | $612,505 | $612,505 | $798.43 | | |
| ST2 | State School Part 2 | 0.8169543533 | $612,505 | $612,505 | $500.39 | | |
| | Total Tax Rate: | 8.4728839852 | | | | | |
| | | | | Taxes w/Current Exemptions: | $5,189.68 | | |
| | | | | Taxes w/o Exemptions: | $5,189.68 | | |
Improvement / Building
| Improvement #1: | RESIDENTIAL | State Code: | Y | 2060.7 sqft | Value: | $432,505 |
| Bathrooms: | 2.5 | Bedrooms: | 3 | | Ceiling: | DRYWALL PAINTED | Exterior Wall/Cover: | PLY/HARDBOARD T-111 | | Floor Covering: | HARDWOOD/CARP 60-40 | Floor Structure: | WOOD W/SUBFLOOR | | Foundation: | CONCRETE | Heating: | FHA ELECTRIC | | Interior Finish: | DRYWALL PAINT | Plumbing Fixture Cnt: | 13 | | Roof Slope: | 4" IN 12" | Roof Structure/Cover: | CJ ASPHALT |
|
| | Type | Description | Class CD | Sub Class CD | Year Built | Area |
| | BAS | BASE/MAIN FLOOR | 4 | 0 | 2021 | 814.5 |
| | UPS | UPPER STORY | 4 | 0 | 2021 | 1246.2 |
| | BIG | BUILT IN GARAGE | 4 | 0 | 2021 | 370.5 |
| | OP4 | OPEN PORCH W/CEILING-ROOF | 4 | 0 | 2021 | 87.0 |
Sketch
Property Image
Land
| 1 | 12 | SQ (00000-06000) | 0.0000 | 0.00 | 0.00 | 0.00 | 1.00 | $180,000 | $0 |
Roll Value History
| 2026 | N/A | N/A | N/A | N/A | N/A |
| 2025 | $432,505 | $180,000 | $0 | $612,505 | $612,505 |
| 2024 | $435,938 | $130,000 | $0 | $565,938 | $565,938 |
| 2023 | $437,914 | $130,000 | $0 | $567,914 | $567,914 |
| 2022 | $403,740 | $130,000 | $0 | $533,740 | $533,740 |
| 2021 | $101,544 | $50,000 | $0 | $151,544 | $151,544 |
Deed and Sales History
| 1 | 09/10/2021 | WD | Warranty Deed | HOWARD'S POINTE, LLC | HUGHES, JUSTIN | | | $560,000.00 | 50270 | 4530380 |
Payout Agreement
| No payout information available.. |