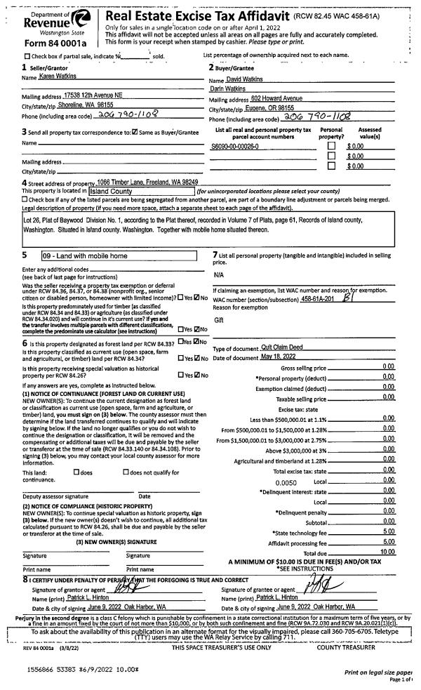
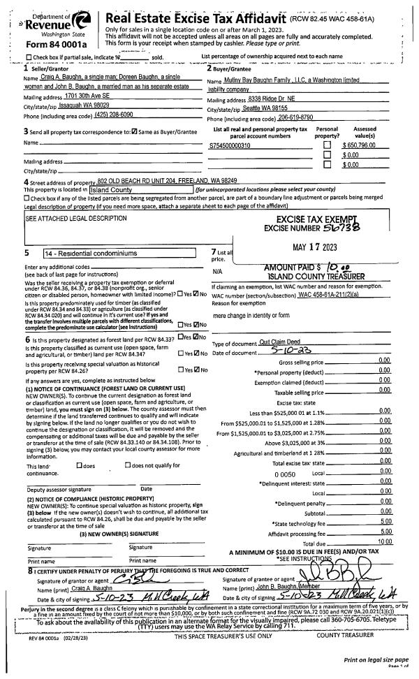
Property
Account |
| Property ID: | 813978 | Abbreviated Legal Description: | 4.9400 Acres ins Section 20s Township 33s Range R2s LOT 2 SP F233-21 AF#4535001;s |
| Geographic ID: | R23320-128-0980 | Agent Code: | |
| Type: | Real | | |
| Tax Area: | 119 - APPRAISER-OH Schl Dist, outside OH, vacant & 50 acres or less | Land Use Code | 91 |
| Open Space: | N | DFL | N |
| Historic Property: | N | Remodel Property: | N |
| Multi-Family Redevelopment: | N | | |
| Township: | 33 | Section: | 20 |
| Range: | R2 |
Location |
| Address: | | Mapsco: | |
| Neighborhood: | Cycle 6 | Map ID: | 612 |
| Neighborhood CD: | 6 |
Owner |
| Name: | ECHELBARGER TTEE, MARK S | Owner ID: | 302513 |
| Mailing Address: | 19502 56TH AVE W #103 LYNNWOOD, WA 98036 | % Ownership: | 100.0000000000% |
| | | Exemptions: | |
Taxes and Assessment Details
Property Tax Information as of
10/22/2025
Click on "Statement Details" to expand or collapse a tax statement.
* Please enter a valid date ** Please enter a valid date *
Statement Details |
| 2025 | 53857 | ST - State School | $159.04 | $159.03 | $0.00 | $0.00 | $318.07 | $0.00 |
| 2025 | 53857 | Island County - Island County General Fund | $27.82 | $27.81 | $0.00 | $0.00 | $55.63 | $0.00 |
| 2025 | 53857 | ISLANDCORD - Island County Roads | $34.39 | $34.38 | $0.00 | $0.00 | $68.77 | $0.00 |
| 2025 | 53857 | PRKRECNWHDBY - Park & Recreation North Whidbey | $15.04 | $15.03 | $0.00 | $0.00 | $30.07 | $0.00 |
| 2025 | 53857 | SCH201 - School 201 Oak Harbor | $139.20 | $139.19 | $0.00 | $0.00 | $278.39 | $0.00 |
| 2025 | 53857 | CEM1 - Cemetery #1 North Whidbey | $0.30 | $0.30 | $0.00 | $0.00 | $0.60 | $0.00 |
| 2025 | 53857 | LIB - Library Sno-Isle Regional | $23.65 | $23.65 | $0.00 | $0.00 | $47.30 | $0.00 |
| 2025 | 53857 | HOSPEMS - Whidbey Health EMS Island County | $37.50 | $37.50 | $0.00 | $0.00 | $75.00 | $0.00 |
| 2025 | 53857 | HOSP - Whidbey Health | $43.60 | $43.60 | $0.00 | $0.00 | $87.20 | $0.00 |
| 2025 | 53857 | CF - Island County Conservation Futures | $2.37 | $2.37 | $0.00 | $0.00 | $4.74 | $0.00 |
| 2025 | 53857 | FP - Forest Protection | $8.50 | $8.50 | $0.00 | $0.00 | $17.00 | $0.00 |
| 2025 | 53857 | LCFFSA - Landowner Contingency Forest Fire Suppression | $3.00 | $3.00 | $0.00 | $0.00 | $6.00 | $0.00 |
| 2025 | 53857 | WDBYCNV - Whidbey Conservation District | $2.75 | $2.75 | $0.00 | $0.00 | $5.50 | $0.00 |
| 2025 | 53857 | FP ADMIN - Fire patrol | $0.25 | $0.25 | $0.00 | $0.00 | $0.50 | $0.00 |
| 2025 | 53857 | TOTAL: | $497.41 | $497.36 | $0.00 | $0.00 | $994.77 | $0.00 |
|
| 2025 | 53857 | $497.41 | $497.36 | $0.00 | $0.00 | $994.77 | $0.00 |
Statement Details |
| 2024 | 53636 | ST - State School | $163.68 | $163.67 | $0.00 | $0.00 | $327.35 | $0.00 |
| 2024 | 53636 | Island County - Island County General Fund | $26.07 | $26.07 | $0.00 | $0.00 | $52.14 | $0.00 |
| 2024 | 53636 | ISLANDCORD - Island County Roads | $32.20 | $32.20 | $0.00 | $0.00 | $64.40 | $0.00 |
| 2024 | 53636 | PRKRECNWHDBY - Park & Recreation North Whidbey | $9.61 | $9.60 | $0.00 | $0.00 | $19.21 | $0.00 |
| 2024 | 53636 | SCH201 - School 201 Oak Harbor | $126.92 | $126.91 | $0.00 | $0.00 | $253.83 | $0.00 |
| 2024 | 53636 | CEM1 - Cemetery #1 North Whidbey | $0.29 | $0.28 | $0.00 | $0.00 | $0.57 | $0.00 |
| 2024 | 53636 | LIB - Library Sno-Isle Regional | $22.70 | $22.70 | $0.00 | $0.00 | $45.40 | $0.00 |
| 2024 | 53636 | HOSPEMS - Whidbey Health EMS Island County | $23.19 | $23.18 | $0.00 | $0.00 | $46.37 | $0.00 |
| 2024 | 53636 | HOSP - Whidbey Health | $40.70 | $40.70 | $0.00 | $0.00 | $81.40 | $0.00 |
| 2024 | 53636 | CF - Island County Conservation Futures | $2.24 | $2.24 | $0.00 | $0.00 | $4.48 | $0.00 |
| 2024 | 53636 | FP - Forest Protection | $8.50 | $8.50 | $0.00 | $0.00 | $17.00 | $0.00 |
| 2024 | 53636 | LCFFSA - Landowner Contingency Forest Fire Suppression | $3.00 | $3.00 | $0.00 | $0.00 | $6.00 | $0.00 |
| 2024 | 53636 | WDBYCNV - Whidbey Conservation District | $2.75 | $2.75 | $0.00 | $0.00 | $5.50 | $0.00 |
| 2024 | 53636 | FP ADMIN - Fire patrol | $0.25 | $0.25 | $0.00 | $0.00 | $0.50 | $0.00 |
| 2024 | 53636 | TOTAL: | $462.10 | $462.05 | $0.00 | $0.00 | $924.15 | $0.00 |
|
| 2024 | 53636 | $462.10 | $462.05 | $0.00 | $0.00 | $924.15 | $0.00 |
Statement Details |
| 2023 | 53790 | ST - State School | $121.39 | $121.39 | $0.00 | $0.00 | $242.78 | $0.00 |
| 2023 | 53790 | Island County - Island County General Fund | $20.08 | $20.08 | $0.00 | $0.00 | $40.16 | $0.00 |
| 2023 | 53790 | ISLANDCORD - Island County Roads | $25.02 | $25.02 | $0.00 | $0.00 | $50.04 | $0.00 |
| 2023 | 53790 | PRKRECNWHDBY - Park & Recreation North Whidbey | $7.43 | $7.43 | $0.00 | $0.00 | $14.86 | $0.00 |
| 2023 | 53790 | SCH201 - School 201 Oak Harbor | $95.95 | $95.95 | $0.00 | $0.00 | $191.90 | $0.00 |
| 2023 | 53790 | CEM1 - Cemetery #1 North Whidbey | $0.22 | $0.22 | $0.00 | $0.00 | $0.44 | $0.00 |
| 2023 | 53790 | LIB - Library Sno-Isle Regional | $15.54 | $15.54 | $0.00 | $0.00 | $31.08 | $0.00 |
| 2023 | 53790 | HOSPEMS - Whidbey Health EMS Island County | $17.81 | $17.81 | $0.00 | $0.00 | $35.62 | $0.00 |
| 2023 | 53790 | HOSP - Whidbey Health | $31.29 | $31.27 | $0.00 | $0.00 | $62.56 | $0.00 |
| 2023 | 53790 | CF - Island County Conservation Futures | $1.73 | $1.72 | $0.00 | $0.00 | $3.45 | $0.00 |
| 2023 | 53790 | FP - Forest Protection | $8.50 | $8.50 | $0.00 | $0.00 | $17.00 | $0.00 |
| 2023 | 53790 | LCFFSA - Landowner Contingency Forest Fire Suppression | $3.00 | $3.00 | $0.00 | $0.00 | $6.00 | $0.00 |
| 2023 | 53790 | WDBYCNV - Whidbey Conservation District | $2.75 | $2.75 | $0.00 | $0.00 | $5.50 | $0.00 |
| 2023 | 53790 | FP ADMIN - Fire patrol | $0.25 | $0.25 | $0.00 | $0.00 | $0.50 | $0.00 |
| 2023 | 53790 | TOTAL: | $350.96 | $350.93 | $0.00 | $0.00 | $701.89 | $0.00 |
|
| 2023 | 53790 | $350.96 | $350.93 | $0.00 | $0.00 | $701.89 | $0.00 |
Statement Details |
| 2022 | 53944 | ST - State School | $115.38 | $115.37 | $0.00 | $0.00 | $230.75 | $0.00 |
| 2022 | 53944 | Island County - Island County General Fund | $19.36 | $19.36 | $0.00 | $0.00 | $38.72 | $0.00 |
| 2022 | 53944 | ISLANDCORD - Island County Roads | $24.35 | $24.34 | $0.00 | $0.00 | $48.69 | $0.00 |
| 2022 | 53944 | PRKRECNWHDBY - Park & Recreation North Whidbey | $7.00 | $6.99 | $0.00 | $0.00 | $13.99 | $0.00 |
| 2022 | 53944 | SCH201 - School 201 Oak Harbor | $148.81 | $148.79 | $0.00 | $0.00 | $297.60 | $0.00 |
| 2022 | 53944 | CEM1 - Cemetery #1 North Whidbey | $0.21 | $0.20 | $0.00 | $0.00 | $0.41 | $0.00 |
| 2022 | 53944 | LIB - Library Sno-Isle Regional | $15.66 | $15.66 | $0.00 | $0.00 | $31.32 | $0.00 |
| 2022 | 53944 | HOSPEMS - Whidbey Health EMS Island County | $16.95 | $16.95 | $0.00 | $0.00 | $33.90 | $0.00 |
| 2022 | 53944 | HOSP - Whidbey Health | $30.36 | $30.35 | $0.00 | $0.00 | $60.71 | $0.00 |
| 2022 | 53944 | CF - Island County Conservation Futures | $1.66 | $1.66 | $0.00 | $0.00 | $3.32 | $0.00 |
| 2022 | 53944 | FP - Forest Protection | $8.50 | $8.50 | $0.00 | $0.00 | $17.00 | $0.00 |
| 2022 | 53944 | LCFFSA - Landowner Contingency Forest Fire Suppression | $3.00 | $3.00 | $0.00 | $0.00 | $6.00 | $0.00 |
| 2022 | 53944 | FP ADMIN - Fire patrol | $0.50 | $0.00 | $0.00 | $0.00 | $0.50 | $0.00 |
| 2022 | 53944 | TOTAL: | $391.74 | $391.17 | $0.00 | $0.00 | $782.91 | $0.00 |
|
| 2022 | 53944 | $391.74 | $391.17 | $0.00 | $0.00 | $782.91 | $0.00 |
Values
| (+) Improvement Homesite Value: | + | $0 | |
| (+) Improvement Non-Homesite Value: | + | $0 | |
| (+) Land Homesite Value: | + | $0 | |
| (+) Land Non-Homesite Value: | + | $170,000 | |
| (+) Curr Use (HS): | + | $0 | $0 |
| (+) Curr Use (NHS): | + | $0 | $0 |
| | | -------------------------- | |
| (=) Market Value: | = | $170,000 | |
| (–) Productivity Loss: | – | $0 | |
| | | -------------------------- | |
| (=) Subtotal: | = | $170,000 | |
| (+) Senior Appraised Value: | + | $0 | |
| (+) Non-Senior Appraised Value: | + | $170,000 | |
| | | -------------------------- | |
| (=) Total Appraised Value: | = | $170,000 | |
| (–) Senior Exemption Loss: | – | $0 | |
| (–) Exemption Loss: | – | $0 | |
| | | -------------------------- | |
| (=) Taxable Value: | = | $170,000 | |
Taxing Jurisdiction
| Owner: | ECHELBARGER TTEE, MARK S | | |
| % Ownership: | 100.0000000000% | | |
| Total Value: | $170,000 | | |
| Tax Area: | 119 - APPRAISER-OH Schl Dist, outside OH, vacant & 50 acres or less |
| CF | Conservation Futures | 0.0316035091 | $170,000 | $170,000 | $5.37 | | |
| CEM1 | Cemetery #1 | 0.0040320932 | $170,000 | $170,000 | $0.69 | | |
| HOBOND | Hospital BOND | 0.1910887512 | $170,000 | $170,000 | $32.49 | | |
| HOGEN | Hospital GEN | 0.3902502903 | $170,000 | $170,000 | $66.34 | | |
| CE | County Current Expense | 0.3708482477 | $170,000 | $170,000 | $63.04 | | |
| CR | County Roads | 0.4584763726 | $170,000 | $170,000 | $77.94 | | |
| ISLANDEMS | Hospital GEN (EMS) | 0.5000000000 | $170,000 | $170,000 | $85.00 | | |
| LIB | Library Sno-Isle GEN | 0.3153421757 | $170,000 | $170,000 | $53.61 | | |
| NWHIDPRMT | P & R N Whidbey GEN | 0.2004466701 | $170,000 | $170,000 | $34.08 | | |
| SCH201MO | School 201 Enrichment | 1.8559231640 | $170,000 | $170,000 | $315.51 | | |
| ST | State School | 1.3035497053 | $170,000 | $170,000 | $221.60 | | |
| ST2 | State School Part 2 | 0.8169543533 | $170,000 | $170,000 | $138.88 | | |
| | Total Tax Rate: | 6.4385153325 | | | | | |
| | | | | Taxes w/Current Exemptions: | $1,094.55 | | |
| | | | | Taxes w/o Exemptions: | $1,094.55 | | |
Improvement / Building
Sketch
| No sketches available for this property. |
Property Image
Land
| 1 | 32 | AC (03.01-09.99) | 4.9400 | 215186.40 | 0.00 | 0.00 | 1.00 | $170,000 | $0 |
Roll Value History
| 2026 | N/A | N/A | N/A | N/A | N/A |
| 2025 | $0 | $170,000 | $0 | $170,000 | $170,000 |
| 2024 | $0 | $150,000 | $0 | $150,000 | $150,000 |
| 2023 | $0 | $140,000 | $0 | $140,000 | $140,000 |
| 2022 | $0 | $100,000 | $0 | $100,000 | $100,000 |
| 2021 | $0 | $80,000 | $0 | $80,000 | $80,000 |
Deed and Sales History
| 1 | 12/28/2021 | WD | Warranty Deed | MCKENZIE, CRAIG | ECHELBARGER TTEE, MARK S | | | $330,000.00 | 51519 | 4536909 |
|   | |
Payout Agreement
| No payout information available.. |