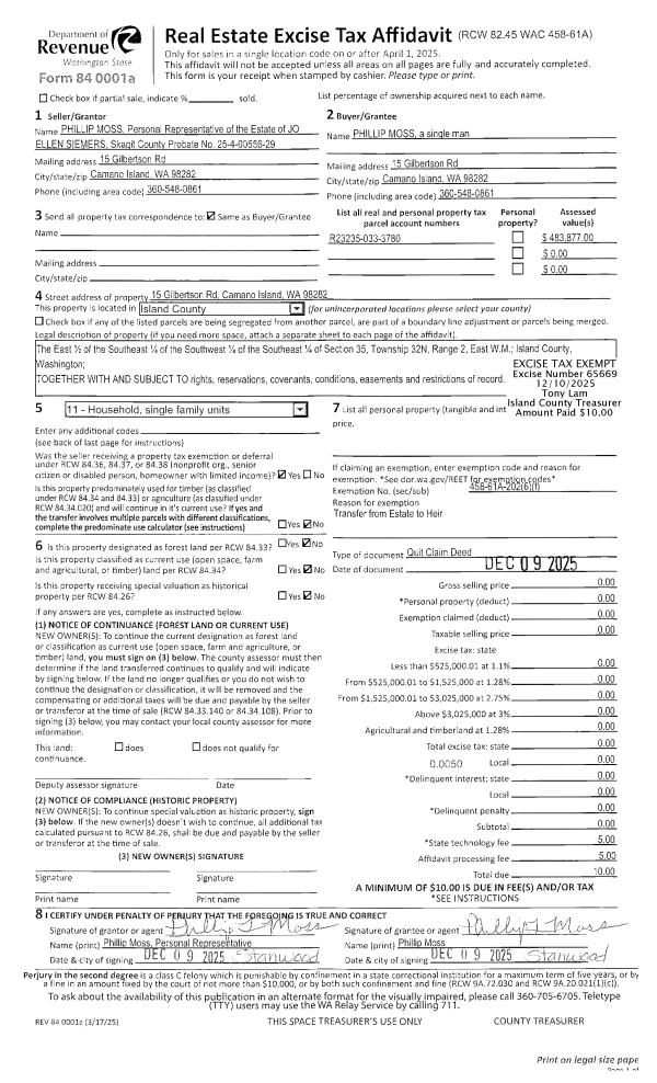
Property
Account |
| Property ID: | 814001 | Abbreviated Legal Description: | 0.7100 Acres ins Section 23s Township 32s Range R2s LOT 2 SP 389-19 AF#4536779;s |
| Geographic ID: | R23223-257-4500 | Agent Code: | |
| Type: | Real | | |
| Tax Area: | 510 - APPRAISER-Stan/Cam Schl Dist, improved & 1 acre or less | Land Use Code | 11 |
| Open Space: | N | DFL | N |
| Historic Property: | N | Remodel Property: | N |
| Multi-Family Redevelopment: | N | | |
| Township: | 32 | Section: | 23 |
| Range: | R2 |
Location |
| Address: | 968 VALARIE DR CAMANO ISLAND, WA 98282 | Mapsco: | |
| Neighborhood: | North Camano | Map ID: | 555 |
| Neighborhood CD: | 06-C |
Owner |
| Name: | MCGILLIVRAY, DONALD | Owner ID: | 312125 |
| Mailing Address: | ROBERTA MCGILLIVRAY PO BOX 101 STANWOOD, WA 98292 | % Ownership: | 100.0000000000% |
| | | Exemptions: | |
Taxes and Assessment Details
Property Tax Information as of
10/22/2025
Click on "Statement Details" to expand or collapse a tax statement.
* Please enter a valid date ** Please enter a valid date *
Statement Details |
| 2025 | 53879 | ST - State School | $265.07 | $265.06 | $0.00 | $0.00 | $530.13 | $0.00 |
| 2025 | 53879 | Island County - Island County General Fund | $46.36 | $46.35 | $0.00 | $0.00 | $92.71 | $0.00 |
| 2025 | 53879 | ISLANDCORD - Island County Roads | $57.31 | $57.31 | $0.00 | $0.00 | $114.62 | $0.00 |
| 2025 | 53879 | SCH205_401 - School 205-401 Stanwood-Camano | $276.19 | $276.18 | $0.00 | $0.00 | $552.37 | $0.00 |
| 2025 | 53879 | FIRE1 - Fire & Rescue Dist #1 Camano | $45.98 | $45.97 | $0.00 | $0.00 | $91.95 | $0.00 |
| 2025 | 53879 | LIB - Library Sno-Isle Regional | $39.42 | $39.42 | $0.00 | $0.00 | $78.84 | $0.00 |
| 2025 | 53879 | CF - Island County Conservation Futures | $3.95 | $3.95 | $0.00 | $0.00 | $7.90 | $0.00 |
| 2025 | 53879 | Camano - Camano Island Conservation District | $2.55 | $2.55 | $0.00 | $0.00 | $5.10 | $0.00 |
| 2025 | 53879 | FP - Forest Protection | $8.50 | $8.50 | $0.00 | $0.00 | $17.00 | $0.00 |
| 2025 | 53879 | LCFFSA - Landowner Contingency Forest Fire Suppression | $3.00 | $3.00 | $0.00 | $0.00 | $6.00 | $0.00 |
| 2025 | 53879 | FP ADMIN - Fire patrol | $0.25 | $0.25 | $0.00 | $0.00 | $0.50 | $0.00 |
| 2025 | 53879 | TOTAL: | $748.58 | $748.54 | $0.00 | $0.00 | $1497.12 | $0.00 |
|
| 2025 | 53879 | $748.58 | $748.54 | $0.00 | $0.00 | $1497.12 | $0.00 |
Statement Details |
| 2024 | 53658 | ST - State School | $292.29 | $292.27 | $0.00 | $0.00 | $584.56 | $0.00 |
| 2024 | 53658 | Island County - Island County General Fund | $46.56 | $46.55 | $0.00 | $0.00 | $93.11 | $0.00 |
| 2024 | 53658 | ISLANDCORD - Island County Roads | $57.50 | $57.50 | $0.00 | $0.00 | $115.00 | $0.00 |
| 2024 | 53658 | SCH205_401 - School 205-401 Stanwood-Camano | $279.91 | $279.90 | $0.00 | $0.00 | $559.81 | $0.00 |
| 2024 | 53658 | FIRE1 - Fire & Rescue Dist #1 Camano | $46.03 | $46.02 | $0.00 | $0.00 | $92.05 | $0.00 |
| 2024 | 53658 | LIB - Library Sno-Isle Regional | $45.50 | $45.49 | $0.00 | $0.00 | $90.99 | $0.00 |
| 2024 | 53658 | CF - Island County Conservation Futures | $4.00 | $4.00 | $0.00 | $0.00 | $8.00 | $0.00 |
| 2024 | 53658 | Camano - Camano Island Conservation District | $2.55 | $2.55 | $0.00 | $0.00 | $5.10 | $0.00 |
| 2024 | 53658 | FP - Forest Protection | $8.50 | $8.50 | $0.00 | $0.00 | $17.00 | $0.00 |
| 2024 | 53658 | LCFFSA - Landowner Contingency Forest Fire Suppression | $3.00 | $3.00 | $0.00 | $0.00 | $6.00 | $0.00 |
| 2024 | 53658 | FP ADMIN - Fire patrol | $0.25 | $0.25 | $0.00 | $0.00 | $0.50 | $0.00 |
| 2024 | 53658 | TOTAL: | $786.09 | $786.03 | $0.00 | $0.00 | $1572.12 | $0.00 |
|
| 2024 | 53658 | $786.09 | $786.03 | $0.00 | $0.00 | $1572.12 | $0.00 |
Statement Details |
| 2023 | 53812 | ST - State School | $279.21 | $279.20 | $0.00 | $0.00 | $558.41 | $0.00 |
| 2023 | 53812 | Island County - Island County General Fund | $46.19 | $46.18 | $0.00 | $0.00 | $92.37 | $0.00 |
| 2023 | 53812 | ISLANDCORD - Island County Roads | $57.55 | $57.54 | $0.00 | $0.00 | $115.09 | $0.00 |
| 2023 | 53812 | SCH205_401 - School 205-401 Stanwood-Camano | $260.58 | $260.58 | $0.00 | $0.00 | $521.16 | $0.00 |
| 2023 | 53812 | FIRE1 - Fire & Rescue Dist #1 Camano | $45.98 | $45.97 | $0.00 | $0.00 | $91.95 | $0.00 |
| 2023 | 53812 | LIB - Library Sno-Isle Regional | $40.70 | $40.68 | $0.00 | $0.00 | $81.38 | $0.00 |
| 2023 | 53812 | CF - Island County Conservation Futures | $3.97 | $3.97 | $0.00 | $0.00 | $7.94 | $0.00 |
| 2023 | 53812 | Camano - Camano Island Conservation District | $2.55 | $2.55 | $0.00 | $0.00 | $5.10 | $0.00 |
| 2023 | 53812 | FP - Forest Protection | $8.50 | $8.50 | $0.00 | $0.00 | $17.00 | $0.00 |
| 2023 | 53812 | LCFFSA - Landowner Contingency Forest Fire Suppression | $3.00 | $3.00 | $0.00 | $0.00 | $6.00 | $0.00 |
| 2023 | 53812 | FP ADMIN - Fire patrol | $0.25 | $0.25 | $0.00 | $0.00 | $0.50 | $0.00 |
| 2023 | 53812 | TOTAL: | $748.48 | $748.42 | $0.00 | $0.00 | $1496.90 | $0.00 |
|
| 2023 | 53812 | $748.48 | $748.42 | $0.00 | $0.00 | $1496.90 | $0.00 |
Statement Details |
| 2022 | 53975 | ST - State School | $165.86 | $165.85 | $0.00 | $0.00 | $331.71 | $0.00 |
| 2022 | 53975 | Island County - Island County General Fund | $27.83 | $27.83 | $0.00 | $0.00 | $55.66 | $0.00 |
| 2022 | 53975 | ISLANDCORD - Island County Roads | $35.00 | $34.99 | $0.00 | $0.00 | $69.99 | $0.00 |
| 2022 | 53975 | SCH205_401 - School 205-401 Stanwood-Camano | $169.90 | $169.89 | $0.00 | $0.00 | $339.79 | $0.00 |
| 2022 | 53975 | FIRE1 - Fire & Rescue Dist #1 Camano | $99.83 | $99.81 | $0.00 | $0.00 | $199.64 | $0.00 |
| 2022 | 53975 | LIB - Library Sno-Isle Regional | $25.68 | $25.67 | $0.00 | $0.00 | $51.35 | $0.00 |
| 2022 | 53975 | CF - Island County Conservation Futures | $2.39 | $2.39 | $0.00 | $0.00 | $4.78 | $0.00 |
| 2022 | 53975 | Camano - Camano Island Conservation District | $2.55 | $2.55 | $0.00 | $0.00 | $5.10 | $0.00 |
| 2022 | 53975 | CWU - Clean Water Utility | $19.57 | $19.56 | $0.00 | $0.00 | $39.13 | $0.00 |
| 2022 | 53975 | FP - Forest Protection | $8.50 | $8.50 | $0.00 | $0.00 | $17.00 | $0.00 |
| 2022 | 53975 | LCFFSA - Landowner Contingency Forest Fire Suppression | $3.00 | $3.00 | $0.00 | $0.00 | $6.00 | $0.00 |
| 2022 | 53975 | FP ADMIN - Fire patrol | $0.25 | $0.25 | $0.00 | $0.00 | $0.50 | $0.00 |
| 2022 | 53975 | TOTAL: | $560.36 | $560.29 | $0.00 | $0.00 | $1120.65 | $0.00 |
|
| 2022 | 53975 | $560.36 | $560.29 | $0.00 | $0.00 | $1120.65 | $0.00 |
Values
| (+) Improvement Homesite Value: | + | $0 | |
| (+) Improvement Non-Homesite Value: | + | $704,714 | |
| (+) Land Homesite Value: | + | $0 | |
| (+) Land Non-Homesite Value: | + | $310,000 | |
| (+) Curr Use (HS): | + | $0 | $0 |
| (+) Curr Use (NHS): | + | $0 | $0 |
| | | -------------------------- | |
| (=) Market Value: | = | $1,014,714 | |
| (–) Productivity Loss: | – | $0 | |
| | | -------------------------- | |
| (=) Subtotal: | = | $1,014,714 | |
| (+) Senior Appraised Value: | + | $0 | |
| (+) Non-Senior Appraised Value: | + | $1,014,714 | |
| | | -------------------------- | |
| (=) Total Appraised Value: | = | $1,014,714 | |
| (–) Senior Exemption Loss: | – | $0 | |
| (–) Exemption Loss: | – | $0 | |
| | | -------------------------- | |
| (=) Taxable Value: | = | $1,014,714 | |
Taxing Jurisdiction
| Owner: | MCGILLIVRAY, DONALD | | |
| % Ownership: | 100.0000000000% | | |
| Total Value: | $1,014,714 | | |
| Tax Area: | 510 - APPRAISER-Stan/Cam Schl Dist, improved & 1 acre or less |
| CF | Conservation Futures | 0.0316035091 | $1,014,714 | $1,014,714 | $32.07 | | |
| EMS1 | Fire & Rescue Dist #1 Camano GEN (EMS) | 0.3677864386 | $1,014,714 | $1,014,714 | $373.20 | | |
| FIRE1 | Fire & Rescue Dist #1 Camano GEN | 1.2502910536 | $1,014,714 | $1,014,714 | $1,268.69 | | |
| FIRE1BOND | Fire & Rescue Dist #1 Camano BOND | 0.1570001679 | $1,014,714 | $1,014,714 | $159.31 | | |
| CE | County Current Expense | 0.3708482477 | $1,014,714 | $1,014,714 | $376.30 | | |
| CR | County Roads | 0.4584763726 | $1,014,714 | $1,014,714 | $465.22 | | |
| LCIB | Library Sno-Isle BOND (Camano Island) | 0.0396325772 | $1,014,714 | $1,014,714 | $40.22 | | |
| LIB | Library Sno-Isle GEN | 0.3153421757 | $1,014,714 | $1,014,714 | $319.98 | | |
| SCH205_401 | School 205-401 Enrichment | 1.2698420524 | $1,014,714 | $1,014,714 | $1,288.53 | | |
| SCH205BOND | School 205-401 BOND | 0.9396497583 | $1,014,714 | $1,014,714 | $953.48 | | |
| ST | State School | 1.3035497053 | $1,014,714 | $1,014,714 | $1,322.73 | | |
| ST2 | State School Part 2 | 0.8169543533 | $1,014,714 | $1,014,714 | $828.98 | | |
| | Total Tax Rate: | 7.3209764117 | | | | | |
| | | | | Taxes w/Current Exemptions: | $7,428.71 | | |
| | | | | Taxes w/o Exemptions: | $7,428.71 | | |
Improvement / Building
| Improvement #1: | RESIDENTIAL | State Code: | Y | 3068.9 sqft | Value: | $704,714 |
| Bathrooms: | 4.5 | Bedrooms: | 4 | | Ceiling: | BEAM T&G | Exterior Wall/Cover: | CEMENT FIBER | | Floor Covering: | (NONE) | Floor Structure: | WOOD W/SUBFLOOR | | Foundation: | SLAB | Heating: | HEAT PUMP | | Interior Finish: | DRYWALL PAINT | Plumbing Fixture Cnt: | 21 | | Roof Slope: | 10" IN 12" | Roof Structure/Cover: | BEAM ASPHALT |
|
| | Type | Description | Class CD | Sub Class CD | Year Built | Area |
| | BAS | BASE/MAIN FLOOR | 5 | 0 | 2025 | 1860.0 |
| | UPS | UPPER STORY | 5 | 0 | 2025 | 1208.9 |
| | AGR | ATTACHED GARAGE | 5 | 0 | 2025 | 441.0 |
| | OWP | OPEN WOOD PORCH W/STEPS | 5 | 0 | 2025 | 256.0 |
Sketch
| No sketches available for this property. |
Property Image
Land
| 1 | 16 | AC (00.51-01.00) | 0.7100 | 30927.60 | 0.00 | 0.00 | 1.00 | $310,000 | $0 |
Roll Value History
| 2026 | N/A | N/A | N/A | N/A | N/A |
| 2025 | $704,714 | $310,000 | $0 | $1,014,714 | $1,014,714 |
| 2024 | $0 | $250,000 | $0 | $250,000 | $250,000 |
| 2023 | $0 | $250,000 | $0 | $250,000 | $250,000 |
| 2022 | $0 | $230,000 | $0 | $230,000 | $230,000 |
| 2021 | $0 | $115,000 | $0 | $115,000 | $115,000 |
Deed and Sales History
| 1 | 04/25/2024 | WD | Warranty Deed | NELSON, J ROGER | MCGILLIVRAY, DONALD | | | $230,000.00 | 59760 | 4571651 |
| 2 | 12/24/2021 | QCD | Quit Claim Deed | CROUCH, RICHARD A | NELSON, J ROGER | | | $0.00 | 51510 | 4536852 |
Payout Agreement
| No payout information available.. |