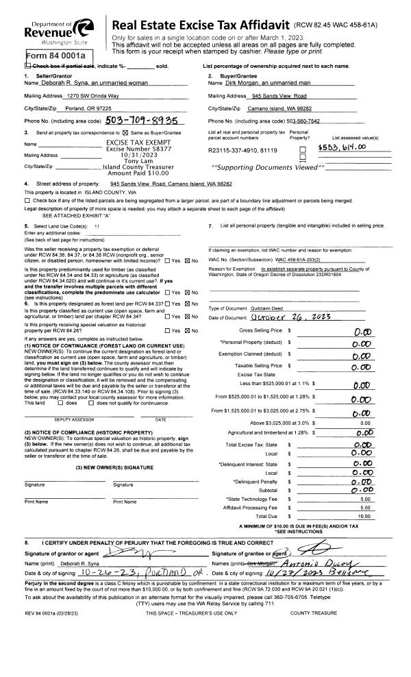
Property
Account |
| Property ID: | 814024 | Abbreviated Legal Description: | 3.9600 Acres ins Section 05s Township 29s Range R3s LOT C BLA 274-16 LOT 1 SP 419-21 AF#4540753;s |
| Geographic ID: | R32905-548-3820 | Agent Code: | |
| Type: | Real | | |
| Tax Area: | 712 - APPRAISER-S Whid Schl Dist, outside Langley, improved, greater than 1 acre | Land Use Code | 11 |
| Open Space: | N | DFL | N |
| Historic Property: | N | Remodel Property: | N |
| Multi-Family Redevelopment: | N | | |
| Township: | 29 | Section: | 05 |
| Range: | R3 |
Location |
| Address: | 3100 LALKA LN LANGLEY, WA 98260 | Mapsco: | |
| Neighborhood: | Cycle 4 | Map ID: | 736 |
| Neighborhood CD: | 4 |
Owner |
| Name: | MARANO, ZACHARY G | Owner ID: | 307920 |
| Mailing Address: | PHILLIP A VILKAS 1484 BONNIE VIEW ACRES RD OAK HARBOR, WA 98277 | % Ownership: | 100.0000000000% |
| | | Exemptions: | |
Taxes and Assessment Details
Property Tax Information as of
10/22/2025
Click on "Statement Details" to expand or collapse a tax statement.
* Please enter a valid date ** Please enter a valid date *
Statement Details |
| 2025 | 53894 | ST - State School | $243.86 | $243.86 | $0.00 | $0.00 | $487.72 | $0.00 |
| 2025 | 53894 | Island County - Island County General Fund | $42.65 | $42.65 | $0.00 | $0.00 | $85.30 | $0.00 |
| 2025 | 53894 | ISLANDCORD - Island County Roads | $52.73 | $52.72 | $0.00 | $0.00 | $105.45 | $0.00 |
| 2025 | 53894 | PRTSWHDBY - Port of South Whidbey | $12.59 | $12.58 | $0.00 | $0.00 | $25.17 | $0.00 |
| 2025 | 53894 | PRKRECSWHDBY - Park & Recreation South Whidbey | $42.23 | $42.20 | $0.00 | $0.00 | $84.43 | $0.00 |
| 2025 | 53894 | SCH206 - School 206 South Whidbey | $121.34 | $121.33 | $0.00 | $0.00 | $242.67 | $0.00 |
| 2025 | 53894 | LIB - Library Sno-Isle Regional | $36.27 | $36.26 | $0.00 | $0.00 | $72.53 | $0.00 |
| 2025 | 53894 | HOSPEMS - Whidbey Health EMS Island County | $57.50 | $57.50 | $0.00 | $0.00 | $115.00 | $0.00 |
| 2025 | 53894 | HOSP - Whidbey Health | $66.86 | $66.85 | $0.00 | $0.00 | $133.71 | $0.00 |
| 2025 | 53894 | CF - Island County Conservation Futures | $3.64 | $3.63 | $0.00 | $0.00 | $7.27 | $0.00 |
| 2025 | 53894 | FP - Forest Protection | $8.50 | $8.50 | $0.00 | $0.00 | $17.00 | $0.00 |
| 2025 | 53894 | LCFFSA - Landowner Contingency Forest Fire Suppression | $3.00 | $3.00 | $0.00 | $0.00 | $6.00 | $0.00 |
| 2025 | 53894 | WDBYCNV - Whidbey Conservation District | $2.70 | $2.70 | $0.00 | $0.00 | $5.40 | $0.00 |
| 2025 | 53894 | FP ADMIN - Fire patrol | $0.25 | $0.25 | $0.00 | $0.00 | $0.50 | $0.00 |
| 2025 | 53894 | TOTAL: | $694.12 | $694.03 | $0.00 | $0.00 | $1388.15 | $0.00 |
|
| 2025 | 53894 | $694.12 | $694.03 | $0.00 | $0.00 | $1388.15 | $0.00 |
Statement Details |
| 2024 | 53673 | ST - State School | $233.83 | $233.82 | $0.00 | $0.00 | $467.65 | $0.00 |
| 2024 | 53673 | Island County - Island County General Fund | $37.25 | $37.24 | $0.00 | $0.00 | $74.49 | $0.00 |
| 2024 | 53673 | ISLANDCORD - Island County Roads | $46.00 | $46.00 | $0.00 | $0.00 | $92.00 | $0.00 |
| 2024 | 53673 | PRTSWHDBY - Port of South Whidbey | $10.99 | $10.99 | $0.00 | $0.00 | $21.98 | $0.00 |
| 2024 | 53673 | PRKRECSWHDBY - Park & Recreation South Whidbey | $36.78 | $36.77 | $0.00 | $0.00 | $73.55 | $0.00 |
| 2024 | 53673 | SCH206 - School 206 South Whidbey | $73.80 | $73.79 | $0.00 | $0.00 | $147.59 | $0.00 |
| 2024 | 53673 | LIB - Library Sno-Isle Regional | $32.43 | $32.43 | $0.00 | $0.00 | $64.86 | $0.00 |
| 2024 | 53673 | HOSPEMS - Whidbey Health EMS Island County | $33.13 | $33.12 | $0.00 | $0.00 | $66.25 | $0.00 |
| 2024 | 53673 | HOSP - Whidbey Health | $58.14 | $58.14 | $0.00 | $0.00 | $116.28 | $0.00 |
| 2024 | 53673 | CF - Island County Conservation Futures | $3.20 | $3.20 | $0.00 | $0.00 | $6.40 | $0.00 |
| 2024 | 53673 | FP - Forest Protection | $8.50 | $8.50 | $0.00 | $0.00 | $17.00 | $0.00 |
| 2024 | 53673 | LCFFSA - Landowner Contingency Forest Fire Suppression | $3.00 | $3.00 | $0.00 | $0.00 | $6.00 | $0.00 |
| 2024 | 53673 | WDBYCNV - Whidbey Conservation District | $2.70 | $2.70 | $0.00 | $0.00 | $5.40 | $0.00 |
| 2024 | 53673 | FP ADMIN - Fire patrol | $0.25 | $0.25 | $0.00 | $0.00 | $0.50 | $0.00 |
| 2024 | 53673 | TOTAL: | $580.00 | $579.95 | $0.00 | $0.00 | $1159.95 | $0.00 |
|
| 2024 | 53673 | $580.00 | $579.95 | $0.00 | $0.00 | $1159.95 | $0.00 |
Statement Details |
| 2023 | 53827 | ST - State School | $206.38 | $206.36 | $0.00 | $0.00 | $412.74 | $0.00 |
| 2023 | 53827 | Island County - Island County General Fund | $34.14 | $34.13 | $0.00 | $0.00 | $68.27 | $0.00 |
| 2023 | 53827 | ISLANDCORD - Island County Roads | $42.53 | $42.53 | $0.00 | $0.00 | $85.06 | $0.00 |
| 2023 | 53827 | PRTSWHDBY - Port of South Whidbey | $9.97 | $9.96 | $0.00 | $0.00 | $19.93 | $0.00 |
| 2023 | 53827 | PRKRECSWHDBY - Park & Recreation South Whidbey | $20.09 | $20.08 | $0.00 | $0.00 | $40.17 | $0.00 |
| 2023 | 53827 | SCH206 - School 206 South Whidbey | $67.11 | $67.10 | $0.00 | $0.00 | $134.21 | $0.00 |
| 2023 | 53827 | LIB - Library Sno-Isle Regional | $26.42 | $26.42 | $0.00 | $0.00 | $52.84 | $0.00 |
| 2023 | 53827 | HOSPEMS - Whidbey Health EMS Island County | $30.28 | $30.28 | $0.00 | $0.00 | $60.56 | $0.00 |
| 2023 | 53827 | HOSP - Whidbey Health | $53.18 | $53.17 | $0.00 | $0.00 | $106.35 | $0.00 |
| 2023 | 53827 | CF - Island County Conservation Futures | $2.94 | $2.93 | $0.00 | $0.00 | $5.87 | $0.00 |
| 2023 | 53827 | FP - Forest Protection | $8.50 | $8.50 | $0.00 | $0.00 | $17.00 | $0.00 |
| 2023 | 53827 | LCFFSA - Landowner Contingency Forest Fire Suppression | $3.00 | $3.00 | $0.00 | $0.00 | $6.00 | $0.00 |
| 2023 | 53827 | WDBYCNV - Whidbey Conservation District | $2.70 | $2.70 | $0.00 | $0.00 | $5.40 | $0.00 |
| 2023 | 53827 | FP ADMIN - Fire patrol | $0.25 | $0.25 | $0.00 | $0.00 | $0.50 | $0.00 |
| 2023 | 53827 | TOTAL: | $507.49 | $507.41 | $0.00 | $0.00 | $1014.90 | $0.00 |
|
| 2023 | 53827 | $507.49 | $507.41 | $0.00 | $0.00 | $1014.90 | $0.00 |
Values
| (+) Improvement Homesite Value: | + | $0 | |
| (+) Improvement Non-Homesite Value: | + | $59,875 | |
| (+) Land Homesite Value: | + | $0 | |
| (+) Land Non-Homesite Value: | + | $275,500 | |
| (+) Curr Use (HS): | + | $0 | $0 |
| (+) Curr Use (NHS): | + | $0 | $0 |
| | | -------------------------- | |
| (=) Market Value: | = | $335,375 | |
| (–) Productivity Loss: | – | $0 | |
| | | -------------------------- | |
| (=) Subtotal: | = | $335,375 | |
| (+) Senior Appraised Value: | + | $0 | |
| (+) Non-Senior Appraised Value: | + | $335,375 | |
| | | -------------------------- | |
| (=) Total Appraised Value: | = | $335,375 | |
| (–) Senior Exemption Loss: | – | $0 | |
| (–) Exemption Loss: | – | $0 | |
| | | -------------------------- | |
| (=) Taxable Value: | = | $335,375 | |
Taxing Jurisdiction
| Owner: | MARANO, ZACHARY G | | |
| % Ownership: | 100.0000000000% | | |
| Total Value: | $335,375 | | |
| Tax Area: | 712 - APPRAISER-S Whid Schl Dist, outside Langley, improved, greater than 1 acre |
| CF | Conservation Futures | 0.0316035091 | $335,375 | $335,375 | $10.60 | | |
| FIRE3 | Fire & Rescue Dist #3 S Whidbey GEN | 1.2004855531 | $335,375 | $335,375 | $402.61 | | |
| HOBOND | Hospital BOND | 0.1910887512 | $335,375 | $335,375 | $64.09 | | |
| HOGEN | Hospital GEN | 0.3902502903 | $335,375 | $335,375 | $130.88 | | |
| CE | County Current Expense | 0.3708482477 | $335,375 | $335,375 | $124.37 | | |
| CR | County Roads | 0.4584763726 | $335,375 | $335,375 | $153.76 | | |
| ISLANDEMS | Hospital GEN (EMS) | 0.5000000000 | $335,375 | $335,375 | $167.69 | | |
| LIB | Library Sno-Isle GEN | 0.3153421757 | $335,375 | $335,375 | $105.76 | | |
| PORTWHID | Port of S Whidbey GEN | 0.1094540357 | $335,375 | $335,375 | $36.71 | | |
| SCH206BOND | School 206 BOND | 0.3161759235 | $335,375 | $335,375 | $106.04 | | |
| SCH206MO | School 206 Enrichment | 0.4547169547 | $335,375 | $335,375 | $152.50 | | |
| ST | State School | 1.3035497053 | $335,375 | $335,375 | $437.18 | | |
| ST2 | State School Part 2 | 0.8169543533 | $335,375 | $335,375 | $273.99 | | |
| SWHIDPRBD | P & R S Whidbey BOND | 0.0152817568 | $335,375 | $335,375 | $5.13 | | |
| SWHIDPRBD2 | P & R S Whidbey BOND2 | 0.0138911264 | $335,375 | $335,375 | $4.66 | | |
| SWHIDPRMT | P & R S Whidbey GEN | 0.2053334452 | $335,375 | $335,375 | $68.86 | | |
| | Total Tax Rate: | 6.6934522006 | | | | | |
| | | | | Taxes w/Current Exemptions: | $2,244.83 | | |
| | | | | Taxes w/o Exemptions: | $2,244.83 | | |
Improvement / Building
| Improvement #1: | RESIDENTIAL | State Code: | Y | 2570.4 sqft | Value: | $59,875 |
| Bathrooms: | 2.5 | Bedrooms: | 3 | | Ceiling: | (NONE) | Exterior Wall/Cover: | (NONE) | | Floor Covering: | (NONE) | Floor Structure: | WOOD W/SUBFLOOR | | Foundation: | CONCRETE | Heating: | (NONE) | | Interior Finish: | (NONE) | Plumbing Fixture Cnt: | 13 | | Roof Slope: | 6" IN 12" | Roof Structure/Cover: | (NONE) |
|
| | Type | Description | Class CD | Sub Class CD | Year Built | Area |
| | BAS | BASE/MAIN FLOOR | 3 | 0 | 2025 | 1296.1 |
| | DWN | DOWNSTAIRS LIVING AREA | 3 | 0 | 2025 | 1274.3 |
| | OWR | OPEN WOOD PORCH W/STEPS/ROOF | 3 | 0 | 2025 | 250.5 |
| | OP4 | OPEN PORCH W/CEILING-ROOF | 3 | 0 | 2025 | 250.5 |
| | DGR | DETACHED GARAGE | 3 | 0 | 2025 | 840.0 |
| | OP4 | OPEN PORCH W/CEILING-ROOF | 3 | 0 | 2025 | 120.0 |
Sketch
| No sketches available for this property. |
Property Image
Land
| 1 | 32 | AC (03.01-09.99) | 3.9600 | 172497.60 | 0.00 | 0.00 | 1.00 | $275,500 | $0 |
Roll Value History
| 2026 | N/A | N/A | N/A | N/A | N/A |
| 2025 | $59,875 | $275,500 | $0 | $335,375 | $335,375 |
| 2024 | $0 | $230,000 | $0 | $230,000 | $230,000 |
| 2023 | $0 | $200,000 | $0 | $200,000 | $200,000 |
| 2022 | $0 | $170,000 | $0 | $170,000 | $170,000 |
Deed and Sales History
| 1 | 03/09/2023 | WD | Warranty Deed | SARKIS, PAUL | MARANO, ZACHARY G | | | $250,000.00 | 56069 | 4557572 |
Payout Agreement
| No payout information available.. |