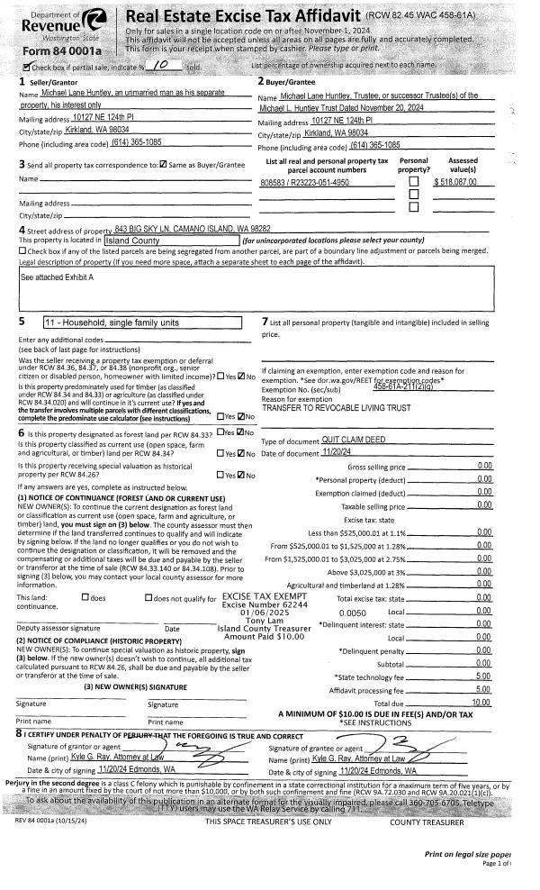
Property
Account |
| Property ID: | 814027 | Abbreviated Legal Description: | 2.6400 Acres ins Section 11s Township 31s Range R2s LOT B SP 496/21 AF#4544330;s |
| Geographic ID: | R23111-443-2400 | Agent Code: | |
| Type: | Real | | |
| Tax Area: | 512 - APPRAISER-Stan/Cam Schl Dist, improved, greater than 1 acre | Land Use Code | 11 |
| Open Space: | N | DFL | N |
| Historic Property: | N | Remodel Property: | N |
| Multi-Family Redevelopment: | N | | |
| Township: | 31 | Section: | 11 |
| Range: | R2 |
Location |
| Address: | | Mapsco: | |
| Neighborhood: | Cycle 5 | Map ID: | 471 |
| Neighborhood CD: | 5 |
Owner |
| Name: | KURTZ JTWROS, SETH | Owner ID: | 307170 |
| Mailing Address: | REBECCA KURTZ JTWROS 458 DOVE DR CAMANO ISLAND, WA 98282 | % Ownership: | 100.0000000000% |
| | | Exemptions: | |
Taxes and Assessment Details
Property Tax Information as of
10/22/2025
Click on "Statement Details" to expand or collapse a tax statement.
* Please enter a valid date ** Please enter a valid date *
Statement Details |
| 2025 | 53897 | ST - State School | $936.34 | $936.33 | $0.00 | $0.00 | $936.34 | $936.33 |
| 2025 | 53897 | Island County - Island County General Fund | $163.76 | $163.75 | $0.00 | $0.00 | $163.76 | $163.75 |
| 2025 | 53897 | ISLANDCORD - Island County Roads | $202.45 | $202.44 | $0.00 | $0.00 | $202.45 | $202.44 |
| 2025 | 53897 | SCH205_401 - School 205-401 Stanwood-Camano | $975.64 | $975.62 | $0.00 | $0.00 | $975.64 | $975.62 |
| 2025 | 53897 | FIRE1 - Fire & Rescue Dist #1 Camano | $783.81 | $783.80 | $0.00 | $0.00 | $783.81 | $783.80 |
| 2025 | 53897 | LIB - Library Sno-Isle Regional | $139.25 | $139.24 | $0.00 | $0.00 | $139.25 | $139.24 |
| 2025 | 53897 | CF - Island County Conservation Futures | $13.96 | $13.95 | $0.00 | $0.00 | $13.96 | $13.95 |
| 2025 | 53897 | Camano - Camano Island Conservation District | $2.65 | $2.65 | $0.00 | $0.00 | $2.65 | $2.65 |
| 2025 | 53897 | FP - Forest Protection | $8.50 | $8.50 | $0.00 | $0.00 | $8.50 | $8.50 |
| 2025 | 53897 | LCFFSA - Landowner Contingency Forest Fire Suppression | $3.00 | $3.00 | $0.00 | $0.00 | $3.00 | $3.00 |
| 2025 | 53897 | FP ADMIN - Fire patrol | $0.25 | $0.25 | $0.00 | $0.00 | $0.25 | $0.25 |
| 2025 | 53897 | TOTAL: | $3229.61 | $3229.53 | $0.00 | $0.00 | $3229.61 | $3229.53 |
|
| 2025 | 53897 | $3229.61 | $3229.53 | $0.00 | $0.00 | $3229.61 | $3229.53 |
Statement Details |
| 2024 | 53676 | ST - State School | $889.25 | $889.24 | $0.00 | $0.00 | $1778.49 | $0.00 |
| 2024 | 53676 | Island County - Island County General Fund | $141.64 | $141.64 | $0.00 | $0.00 | $283.28 | $0.00 |
| 2024 | 53676 | ISLANDCORD - Island County Roads | $174.95 | $174.94 | $0.00 | $0.00 | $349.89 | $0.00 |
| 2024 | 53676 | SCH205_401 - School 205-401 Stanwood-Camano | $851.59 | $851.59 | $0.00 | $0.00 | $1703.18 | $0.00 |
| 2024 | 53676 | FIRE1 - Fire & Rescue Dist #1 Camano | $673.68 | $673.66 | $0.00 | $0.00 | $1347.34 | $0.00 |
| 2024 | 53676 | LIB - Library Sno-Isle Regional | $138.41 | $138.40 | $0.00 | $0.00 | $276.81 | $0.00 |
| 2024 | 53676 | CF - Island County Conservation Futures | $12.18 | $12.17 | $0.00 | $0.00 | $24.35 | $0.00 |
| 2024 | 53676 | Camano - Camano Island Conservation District | $2.65 | $2.65 | $0.00 | $0.00 | $5.30 | $0.00 |
| 2024 | 53676 | FP - Forest Protection | $8.50 | $8.50 | $0.00 | $0.00 | $17.00 | $0.00 |
| 2024 | 53676 | LCFFSA - Landowner Contingency Forest Fire Suppression | $3.00 | $3.00 | $0.00 | $0.00 | $6.00 | $0.00 |
| 2024 | 53676 | FP ADMIN - Fire patrol | $0.25 | $0.25 | $0.00 | $0.00 | $0.50 | $0.00 |
| 2024 | 53676 | TOTAL: | $2896.10 | $2896.04 | $0.00 | $0.00 | $5792.14 | $0.00 |
|
| 2024 | 53676 | $2896.10 | $2896.04 | $0.00 | $0.00 | $5792.14 | $0.00 |
Statement Details |
| 2023 | 53830 | ST - State School | $555.57 | $555.56 | $0.00 | $0.00 | $1111.13 | $0.00 |
| 2023 | 53830 | Island County - Island County General Fund | $91.90 | $91.89 | $0.00 | $0.00 | $183.79 | $0.00 |
| 2023 | 53830 | ISLANDCORD - Island County Roads | $114.50 | $114.50 | $0.00 | $0.00 | $229.00 | $0.00 |
| 2023 | 53830 | SCH205_401 - School 205-401 Stanwood-Camano | $518.51 | $518.50 | $0.00 | $0.00 | $1037.01 | $0.00 |
| 2023 | 53830 | FIRE1 - Fire & Rescue Dist #1 Camano | $317.68 | $317.65 | $0.00 | $0.00 | $635.33 | $0.00 |
| 2023 | 53830 | LIB - Library Sno-Isle Regional | $80.97 | $80.96 | $0.00 | $0.00 | $161.93 | $0.00 |
| 2023 | 53830 | CF - Island County Conservation Futures | $7.90 | $7.89 | $0.00 | $0.00 | $15.79 | $0.00 |
| 2023 | 53830 | Camano - Camano Island Conservation District | $2.65 | $2.65 | $0.00 | $0.00 | $5.30 | $0.00 |
| 2023 | 53830 | FP - Forest Protection | $8.50 | $8.50 | $0.00 | $0.00 | $17.00 | $0.00 |
| 2023 | 53830 | LCFFSA - Landowner Contingency Forest Fire Suppression | $3.00 | $3.00 | $0.00 | $0.00 | $6.00 | $0.00 |
| 2023 | 53830 | FP ADMIN - Fire patrol | $0.25 | $0.25 | $0.00 | $0.00 | $0.50 | $0.00 |
| 2023 | 53830 | TOTAL: | $1701.43 | $1701.35 | $0.00 | $0.00 | $3402.78 | $0.00 |
|
| 2023 | 53830 | $1701.43 | $1701.35 | $0.00 | $0.00 | $3402.78 | $0.00 |
Values
| (+) Improvement Homesite Value: | + | $0 | |
| (+) Improvement Non-Homesite Value: | + | $598,512 | |
| (+) Land Homesite Value: | + | $0 | |
| (+) Land Non-Homesite Value: | + | $300,000 | |
| (+) Curr Use (HS): | + | $0 | $0 |
| (+) Curr Use (NHS): | + | $0 | $0 |
| | | -------------------------- | |
| (=) Market Value: | = | $898,512 | |
| (–) Productivity Loss: | – | $0 | |
| | | -------------------------- | |
| (=) Subtotal: | = | $898,512 | |
| (+) Senior Appraised Value: | + | $0 | |
| (+) Non-Senior Appraised Value: | + | $898,512 | |
| | | -------------------------- | |
| (=) Total Appraised Value: | = | $898,512 | |
| (–) Senior Exemption Loss: | – | $0 | |
| (–) Exemption Loss: | – | $0 | |
| | | -------------------------- | |
| (=) Taxable Value: | = | $898,512 | |
Taxing Jurisdiction
| Owner: | KURTZ JTWROS, SETH | | |
| % Ownership: | 100.0000000000% | | |
| Total Value: | $898,512 | | |
| Tax Area: | 512 - APPRAISER-Stan/Cam Schl Dist, improved, greater than 1 acre |
| CF | Conservation Futures | 0.0316035091 | $898,512 | $898,512 | $28.40 | | |
| EMS1 | Fire & Rescue Dist #1 Camano GEN (EMS) | 0.3677864386 | $898,512 | $898,512 | $330.46 | | |
| FIRE1 | Fire & Rescue Dist #1 Camano GEN | 1.2502910536 | $898,512 | $898,512 | $1,123.40 | | |
| FIRE1BOND | Fire & Rescue Dist #1 Camano BOND | 0.1570001679 | $898,512 | $898,512 | $141.07 | | |
| CE | County Current Expense | 0.3708482477 | $898,512 | $898,512 | $333.21 | | |
| CR | County Roads | 0.4584763726 | $898,512 | $898,512 | $411.95 | | |
| LCIB | Library Sno-Isle BOND (Camano Island) | 0.0396325772 | $898,512 | $898,512 | $35.61 | | |
| LIB | Library Sno-Isle GEN | 0.3153421757 | $898,512 | $898,512 | $283.34 | | |
| SCH205_401 | School 205-401 Enrichment | 1.2698420524 | $898,512 | $898,512 | $1,140.97 | | |
| SCH205BOND | School 205-401 BOND | 0.9396497583 | $898,512 | $898,512 | $844.29 | | |
| ST | State School | 1.3035497053 | $898,512 | $898,512 | $1,171.26 | | |
| ST2 | State School Part 2 | 0.8169543533 | $898,512 | $898,512 | $734.04 | | |
| | Total Tax Rate: | 7.3209764117 | | | | | |
| | | | | Taxes w/Current Exemptions: | $6,578.00 | | |
| | | | | Taxes w/o Exemptions: | $6,578.00 | | |
Improvement / Building
| Improvement #1: | RESIDENTIAL | State Code: | Y | 988.0 sqft | Value: | $213,122 |
| Bathrooms: | 1 | Bedrooms: | 1 | | Ceiling: | DRYWALL PAINTED | Exterior Wall/Cover: | PLY/HARDBOARD T-111 | | Floor Covering: | CARPET/VINYL 60-40 | Floor Structure: | WOOD W/SUBFLOOR | | Foundation: | SLAB | Heating: | WALL HEAT ELECTRIC | | Interior Finish: | DRYWALL PAINT | Plumbing Fixture Cnt: | 6 | | Roof Slope: | 5" IN 12" | Roof Structure/Cover: | CJ ASPHALT |
|
| | Type | Description | Class CD | Sub Class CD | Year Built | Area |
| | BAS | BASE/MAIN FLOOR | 3 | 0 | 2011 | 988.0 |
| | BIG | BUILT IN GARAGE | 3 | 0 | 2011 | 676.0 |
| | CPD | OPEN CARPORT DIRT FLOOR | 3 | 0 | 2011 | 312.0 |
| | CPD | OPEN CARPORT DIRT FLOOR | 3 | 0 | 2011 | 288.0 |
| | BAW | BALCONY WOOD RAIL | 3 | 0 | 2011 | 212.0 |
| Improvement #2: | RESIDENTIAL | State Code: | Y | 3260.0 sqft | Value: | $385,390 |
| Bathrooms: | 2 | Bedrooms: | 3 | | Ceiling: | DRYWALL PAINTED | Exterior Wall/Cover: | PLY/HARDBOARD T-111 | | Floor Covering: | CARPET/VINYL 60-40 | Floor Structure: | WOOD W/SUBFLOOR | | Foundation: | SLAB | Heating: | WALL HEAT ELECTRIC | | Interior Finish: | DRYWALL PAINT | Plumbing Fixture Cnt: | 11 | | Roof Slope: | 5" IN 12" | Roof Structure/Cover: | CJ ASPHALT |
|
| | Type | Description | Class CD | Sub Class CD | Year Built | Area |
| | BAS | BASE/MAIN FLOOR | 3 | 0 | 2011 | 1292.0 |
| | BIG | BUILT IN GARAGE | 3 | 0 | 2011 | 676.0 |
| | CPD | OPEN CARPORT DIRT FLOOR | 3 | 0 | 2011 | 364.0 |
| | OWP | OPEN WOOD PORCH W/STEPS | 3 | 0 | 2011 | 304.0 |
| | BAW | BALCONY WOOD RAIL | 3 | 0 | 2011 | 100.0 |
| | UPS | UPPER STORY | 3 | 0 | 2011 | 1968.0 |
Sketch
Property Image
Land
| 1 | 18 | AC (02.01-03.00) | 2.6400 | 114998.40 | 0.00 | 0.00 | 1.00 | $300,000 | $0 |
Roll Value History
| 2026 | N/A | N/A | N/A | N/A | N/A |
| 2025 | $598,512 | $300,000 | $0 | $898,512 | $898,512 |
| 2024 | $603,126 | $280,000 | $0 | $883,126 | $883,126 |
| 2023 | $490,606 | $270,000 | $0 | $760,606 | $760,606 |
| 2022 | $197,659 | $260,000 | $0 | $457,659 | $457,659 |
Deed and Sales History
| 1 | 01/04/2023 | QCD | Quit Claim Deed | DIAZ, DAVID | KURTZ JTWROS, SETH | | | $0.00 | 55537 | 4555380 |
Payout Agreement
| No payout information available.. |