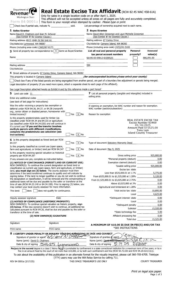
Property
Account |
| Property ID: | 814164 | Abbreviated Legal Description: | MARIN WOODS, Lot 2, |
| Geographic ID: | S8578-00-00002-0 | Agent Code: | |
| Type: | Real | | |
| Tax Area: | 100 - APPRAISER-OH Schl Dist, in OH | Land Use Code | 11 |
| Open Space: | N | DFL | N |
| Historic Property: | N | Remodel Property: | N |
| Multi-Family Redevelopment: | N | | |
| Township: | 32 | Section: | 04 |
| Range: | R1 |
Location |
| Address: | SW ROBERTSON DR OAK HARBOR, WA 98277 | Mapsco: | |
| Neighborhood: | Cycle 1 | Map ID: | 97 |
| Neighborhood CD: | 1 |
Owner |
| Name: | TUTTLE, CHRISTOPHER MATTHEW | Owner ID: | 314683 |
| Mailing Address: | KIMBERLIE DAWN TUTTLE 2111 SOUTHEAST ROBERTSON DR OAK HARBOR, WA 98277 | % Ownership: | 100.0000000000% |
| | | Exemptions: | |
Taxes and Assessment Details
Property Tax Information as of
10/23/2025
Click on "Statement Details" to expand or collapse a tax statement.
* Please enter a valid date ** Please enter a valid date *
Statement Details |
| 2025 | 54005 | ST - State School | $307.82 | $0.00 | $0.00 | $0.00 | $307.82 | $0.00 |
| 2025 | 54005 | Island County - Island County General Fund | $53.83 | $0.00 | $0.00 | $0.00 | $53.83 | $0.00 |
| 2025 | 54005 | CIOKHRB - City of Oak Harbor | $361.88 | $0.00 | $0.00 | $0.00 | $361.88 | $0.00 |
| 2025 | 54005 | PRKRECNWHDBY - Park & Recreation North Whidbey | $29.10 | $0.00 | $0.00 | $0.00 | $29.10 | $0.00 |
| 2025 | 54005 | SCH201 - School 201 Oak Harbor | $269.42 | $0.00 | $0.00 | $0.00 | $269.42 | $0.00 |
| 2025 | 54005 | CEM1 - Cemetery #1 North Whidbey | $0.59 | $0.00 | $0.00 | $0.00 | $0.59 | $0.00 |
| 2025 | 54005 | LIB - Library Sno-Isle Regional | $45.78 | $0.00 | $0.00 | $0.00 | $45.78 | $0.00 |
| 2025 | 54005 | HOSPEMS - Whidbey Health EMS Island County | $72.58 | $0.00 | $0.00 | $0.00 | $72.58 | $0.00 |
| 2025 | 54005 | HOSP - Whidbey Health | $84.39 | $0.00 | $0.00 | $0.00 | $84.39 | $0.00 |
| 2025 | 54005 | CF - Island County Conservation Futures | $4.59 | $0.00 | $0.00 | $0.00 | $4.59 | $0.00 |
| 2025 | 54005 | WDBYCNV - Whidbey Conservation District | $5.10 | $0.00 | $0.00 | $0.00 | $5.10 | $0.00 |
| 2025 | 54005 | BANK FEE - Bank Fee | $20.00 | $0.00 | $0.00 | $0.00 | $20.00 | $0.00 |
| 2025 | 54005 | TOTAL: | $1255.08 | $0.00 | $0.00 | $0.00 | $1255.08 | $0.00 |
|
| 2025 | 54005 | $1255.08 | $0.00 | $0.00 | $0.00 | $1255.08 | $0.00 |
Statement Details |
| 2024 | 53790 | ST - State School | $93.53 | $93.53 | $0.00 | $0.00 | $187.06 | $0.00 |
| 2024 | 53790 | Island County - Island County General Fund | $14.90 | $14.90 | $0.00 | $0.00 | $29.80 | $0.00 |
| 2024 | 53790 | CIOKHRB - City of Oak Harbor | $99.70 | $99.69 | $0.00 | $0.00 | $199.39 | $0.00 |
| 2024 | 53790 | PRKRECNWHDBY - Park & Recreation North Whidbey | $5.49 | $5.49 | $0.00 | $0.00 | $10.98 | $0.00 |
| 2024 | 53790 | SCH201 - School 201 Oak Harbor | $72.53 | $72.52 | $0.00 | $0.00 | $145.05 | $0.00 |
| 2024 | 53790 | CEM1 - Cemetery #1 North Whidbey | $0.16 | $0.16 | $0.00 | $0.00 | $0.32 | $0.00 |
| 2024 | 53790 | LIB - Library Sno-Isle Regional | $12.97 | $12.97 | $0.00 | $0.00 | $25.94 | $0.00 |
| 2024 | 53790 | HOSPEMS - Whidbey Health EMS Island County | $13.25 | $13.25 | $0.00 | $0.00 | $26.50 | $0.00 |
| 2024 | 53790 | HOSP - Whidbey Health | $23.26 | $23.25 | $0.00 | $0.00 | $46.51 | $0.00 |
| 2024 | 53790 | CF - Island County Conservation Futures | $1.28 | $1.28 | $0.00 | $0.00 | $2.56 | $0.00 |
| 2024 | 53790 | WDBYCNV - Whidbey Conservation District | $2.55 | $2.55 | $0.00 | $0.00 | $5.10 | $0.00 |
| 2024 | 53790 | TOTAL: | $339.62 | $339.59 | $0.00 | $0.00 | $679.21 | $0.00 |
|
| 2024 | 53790 | $339.62 | $339.59 | $0.00 | $0.00 | $679.21 | $0.00 |
Values
| (+) Improvement Homesite Value: | + | $0 | |
| (+) Improvement Non-Homesite Value: | + | $456,681 | |
| (+) Land Homesite Value: | + | $0 | |
| (+) Land Non-Homesite Value: | + | $210,000 | |
| (+) Curr Use (HS): | + | $0 | $0 |
| (+) Curr Use (NHS): | + | $0 | $0 |
| | | -------------------------- | |
| (=) Market Value: | = | $666,681 | |
| (–) Productivity Loss: | – | $0 | |
| | | -------------------------- | |
| (=) Subtotal: | = | $666,681 | |
| (+) Senior Appraised Value: | + | $0 | |
| (+) Non-Senior Appraised Value: | + | $666,681 | |
| | | -------------------------- | |
| (=) Total Appraised Value: | = | $666,681 | |
| (–) Senior Exemption Loss: | – | $0 | |
| (–) Exemption Loss: | – | $0 | |
| | | -------------------------- | |
| (=) Taxable Value: | = | $666,681 | |
Taxing Jurisdiction
| Owner: | TUTTLE, CHRISTOPHER MATTHEW | | |
| % Ownership: | 100.0000000000% | | |
| Total Value: | $666,681 | | |
| Tax Area: | 100 - APPRAISER-OH Schl Dist, in OH |
| CF | Conservation Futures | 0.0316035091 | $666,681 | $666,681 | $21.07 | | |
| CEM1 | Cemetery #1 | 0.0040320932 | $666,681 | $666,681 | $2.69 | | |
| COH | City of Oak Harbor | 2.3001546061 | $666,681 | $666,681 | $1,533.47 | | |
| OAKBOND | City of Oak Harbor BOND | 0.1926904192 | $666,681 | $666,681 | $128.46 | | |
| HOBOND | Hospital BOND | 0.1910887512 | $666,681 | $666,681 | $127.40 | | |
| HOGEN | Hospital GEN | 0.3902502903 | $666,681 | $666,681 | $260.17 | | |
| CE | County Current Expense | 0.3708482477 | $666,681 | $666,681 | $247.24 | | |
| ISLANDEMS | Hospital GEN (EMS) | 0.5000000000 | $666,681 | $666,681 | $333.34 | | |
| LIB | Library Sno-Isle GEN | 0.3153421757 | $666,681 | $666,681 | $210.23 | | |
| NWHIDPRMT | P & R N Whidbey GEN | 0.2004466701 | $666,681 | $666,681 | $133.63 | | |
| SCH201MO | School 201 Enrichment | 1.8559231640 | $666,681 | $666,681 | $1,237.31 | | |
| ST | State School | 1.3035497053 | $666,681 | $666,681 | $869.05 | | |
| ST2 | State School Part 2 | 0.8169543533 | $666,681 | $666,681 | $544.65 | | |
| | Total Tax Rate: | 8.4728839852 | | | | | |
| | | | | Taxes w/Current Exemptions: | $5,648.71 | | |
| | | | | Taxes w/o Exemptions: | $5,648.71 | | |
Improvement / Building
| Improvement #1: | RESIDENTIAL | State Code: | Y | 2571.8 sqft | Value: | $456,681 |
| Bathrooms: | 3 | Bedrooms: | 4 | | Ceiling: | DRYWALL PAINTED | Cooling: | HEAT PUMP/CONV/V | | Exterior Wall/Cover: | PLY/HARDBOARD T-111 | Floor Covering: | CARPET/VINYL 20-80 | | Floor Structure: | WOOD W/SUBFLOOR | Foundation: | CONCRETE | | Interior Finish: | DRYWALL PAINT | Plumbing Fixture Cnt: | 16 | | Roof Slope: | 6" IN 12" | Roof Structure/Cover: | CJ ASPHALT |
|
| | Type | Description | Class CD | Sub Class CD | Year Built | Area |
| | BAS | BASE/MAIN FLOOR | 3 | 0 | 2024 | 1061.0 |
| | UPS | UPPER STORY | 3 | 0 | 2024 | 1510.8 |
| | AGR | ATTACHED GARAGE | 3 | 0 | 2024 | 434.0 |
| | OP4 | OPEN PORCH W/CEILING-ROOF | 3 | 0 | 2024 | 25.0 |
| | OWC | OPEN WOOD PORCH W/STEPS/ROOF/C | 3 | 0 | 2024 | 96.0 |
Sketch
Property Image
Land
| 1 | 12 | SQ (00000-06000) | 0.1257 | 5474.00 | 0.00 | 0.00 | 1.00 | $210,000 | $0 |
Roll Value History
| 2026 | N/A | N/A | N/A | N/A | N/A |
| 2025 | $456,681 | $210,000 | $0 | $666,681 | $666,681 |
| 2024 | $65,167 | $80,000 | $0 | $145,167 | $145,167 |
| 2023 | $0 | $80,000 | $0 | $80,000 | $80,000 |
Deed and Sales History
| 1 | 11/07/2024 | WD | Warranty Deed | MARIN WOOD LLC | TUTTLE, CHRISTOPHER MATTHEW | | | $674,950.00 | 61938 | 4579838 |
Payout Agreement
| No payout information available.. |