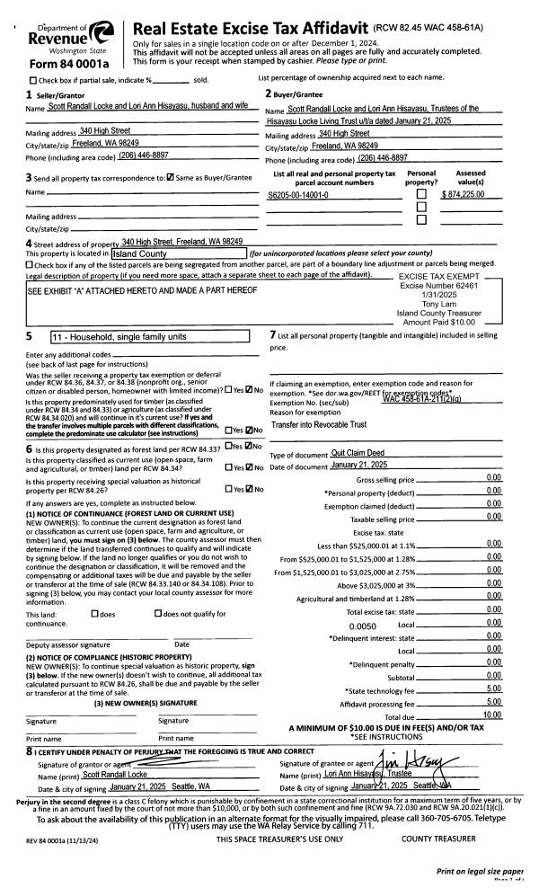
Property
Account |
| Property ID: | 814169 | Abbreviated Legal Description: | MARIN WOODS,s Lot 7,s |
| Geographic ID: | S8578-00-00007-0 | Agent Code: | |
| Type: | Real | | |
| Tax Area: | 100 - APPRAISER-OH Schl Dist, in OH | Land Use Code | 11 |
| Open Space: | N | DFL | N |
| Historic Property: | N | Remodel Property: | N |
| Multi-Family Redevelopment: | N | | |
| Township: | 32 | Section: | 04 |
| Range: | R1 |
Location |
| Address: | 455 SW FAIRWAY DR OAK HARBOR, WA 98277 | Mapsco: | |
| Neighborhood: | Cycle 1 | Map ID: | 97 |
| Neighborhood CD: | 1 |
Owner |
| Name: | AGPOON, ACE GODFREY A | Owner ID: | 310791 |
| Mailing Address: | ARGIE ILONAH C AGPOON 455 SOUTHEAST FAIRWAY DR OAK HARBOR, WA 98277 | % Ownership: | 100.0000000000% |
| | | Exemptions: | |
Taxes and Assessment Details
Property Tax Information as of
10/23/2025
Click on "Statement Details" to expand or collapse a tax statement.
* Please enter a valid date ** Please enter a valid date *
Statement Details |
| 2025 | 54010 | ST - State School | $619.06 | $619.05 | $0.00 | $0.00 | $1238.11 | $0.00 |
| 2025 | 54010 | Island County - Island County General Fund | $108.27 | $108.26 | $0.00 | $0.00 | $216.53 | $0.00 |
| 2025 | 54010 | CIOKHRB - City of Oak Harbor | $727.76 | $727.75 | $0.00 | $0.00 | $1455.51 | $0.00 |
| 2025 | 54010 | PRKRECNWHDBY - Park & Recreation North Whidbey | $58.52 | $58.52 | $0.00 | $0.00 | $117.04 | $0.00 |
| 2025 | 54010 | SCH201 - School 201 Oak Harbor | $541.81 | $541.81 | $0.00 | $0.00 | $1083.62 | $0.00 |
| 2025 | 54010 | CEM1 - Cemetery #1 North Whidbey | $1.18 | $1.17 | $0.00 | $0.00 | $2.35 | $0.00 |
| 2025 | 54010 | LIB - Library Sno-Isle Regional | $92.06 | $92.06 | $0.00 | $0.00 | $184.12 | $0.00 |
| 2025 | 54010 | HOSPEMS - Whidbey Health EMS Island County | $145.97 | $145.97 | $0.00 | $0.00 | $291.94 | $0.00 |
| 2025 | 54010 | HOSP - Whidbey Health | $169.72 | $169.71 | $0.00 | $0.00 | $339.43 | $0.00 |
| 2025 | 54010 | CF - Island County Conservation Futures | $9.23 | $9.22 | $0.00 | $0.00 | $18.45 | $0.00 |
| 2025 | 54010 | WDBYCNV - Whidbey Conservation District | $2.55 | $2.55 | $0.00 | $0.00 | $5.10 | $0.00 |
| 2025 | 54010 | TOTAL: | $2476.13 | $2476.07 | $0.00 | $0.00 | $4952.20 | $0.00 |
|
| 2025 | 54010 | $2476.13 | $2476.07 | $0.00 | $0.00 | $4952.20 | $0.00 |
Statement Details |
| 2024 | 53795 | ST - State School | $104.14 | $104.14 | $0.00 | $0.00 | $208.28 | $0.00 |
| 2024 | 53795 | Island County - Island County General Fund | $16.59 | $16.58 | $0.00 | $0.00 | $33.17 | $0.00 |
| 2024 | 53795 | CIOKHRB - City of Oak Harbor | $111.01 | $110.99 | $0.00 | $0.00 | $222.00 | $0.00 |
| 2024 | 53795 | PRKRECNWHDBY - Park & Recreation North Whidbey | $6.11 | $6.11 | $0.00 | $0.00 | $12.22 | $0.00 |
| 2024 | 53795 | SCH201 - School 201 Oak Harbor | $80.75 | $80.75 | $0.00 | $0.00 | $161.50 | $0.00 |
| 2024 | 53795 | CEM1 - Cemetery #1 North Whidbey | $0.18 | $0.18 | $0.00 | $0.00 | $0.36 | $0.00 |
| 2024 | 53795 | LIB - Library Sno-Isle Regional | $14.45 | $14.44 | $0.00 | $0.00 | $28.89 | $0.00 |
| 2024 | 53795 | HOSPEMS - Whidbey Health EMS Island County | $14.75 | $14.75 | $0.00 | $0.00 | $29.50 | $0.00 |
| 2024 | 53795 | HOSP - Whidbey Health | $25.90 | $25.89 | $0.00 | $0.00 | $51.79 | $0.00 |
| 2024 | 53795 | CF - Island County Conservation Futures | $1.43 | $1.42 | $0.00 | $0.00 | $2.85 | $0.00 |
| 2024 | 53795 | WDBYCNV - Whidbey Conservation District | $2.55 | $2.55 | $0.00 | $0.00 | $5.10 | $0.00 |
| 2024 | 53795 | TOTAL: | $377.86 | $377.80 | $0.00 | $0.00 | $755.66 | $0.00 |
|
| 2024 | 53795 | $377.86 | $377.80 | $0.00 | $0.00 | $755.66 | $0.00 |
Values
| (+) Improvement Homesite Value: | + | $0 | |
| (+) Improvement Non-Homesite Value: | + | $386,839 | |
| (+) Land Homesite Value: | + | $0 | |
| (+) Land Non-Homesite Value: | + | $210,000 | |
| (+) Curr Use (HS): | + | $0 | $0 |
| (+) Curr Use (NHS): | + | $0 | $0 |
| | | -------------------------- | |
| (=) Market Value: | = | $596,839 | |
| (–) Productivity Loss: | – | $0 | |
| | | -------------------------- | |
| (=) Subtotal: | = | $596,839 | |
| (+) Senior Appraised Value: | + | $0 | |
| (+) Non-Senior Appraised Value: | + | $596,839 | |
| | | -------------------------- | |
| (=) Total Appraised Value: | = | $596,839 | |
| (–) Senior Exemption Loss: | – | $0 | |
| (–) Exemption Loss: | – | $0 | |
| | | -------------------------- | |
| (=) Taxable Value: | = | $596,839 | |
Taxing Jurisdiction
| Owner: | AGPOON, ACE GODFREY A | | |
| % Ownership: | 100.0000000000% | | |
| Total Value: | $596,839 | | |
| Tax Area: | 100 - APPRAISER-OH Schl Dist, in OH |
| CF | Conservation Futures | 0.0316035091 | $596,839 | $596,839 | $18.86 | | |
| CEM1 | Cemetery #1 | 0.0040320932 | $596,839 | $596,839 | $2.41 | | |
| COH | City of Oak Harbor | 2.3001546061 | $596,839 | $596,839 | $1,372.82 | | |
| OAKBOND | City of Oak Harbor BOND | 0.1926904192 | $596,839 | $596,839 | $115.01 | | |
| HOBOND | Hospital BOND | 0.1910887512 | $596,839 | $596,839 | $114.05 | | |
| HOGEN | Hospital GEN | 0.3902502903 | $596,839 | $596,839 | $232.92 | | |
| CE | County Current Expense | 0.3708482477 | $596,839 | $596,839 | $221.34 | | |
| ISLANDEMS | Hospital GEN (EMS) | 0.5000000000 | $596,839 | $596,839 | $298.42 | | |
| LIB | Library Sno-Isle GEN | 0.3153421757 | $596,839 | $596,839 | $188.21 | | |
| NWHIDPRMT | P & R N Whidbey GEN | 0.2004466701 | $596,839 | $596,839 | $119.63 | | |
| SCH201MO | School 201 Enrichment | 1.8559231640 | $596,839 | $596,839 | $1,107.69 | | |
| ST | State School | 1.3035497053 | $596,839 | $596,839 | $778.01 | | |
| ST2 | State School Part 2 | 0.8169543533 | $596,839 | $596,839 | $487.59 | | |
| | Total Tax Rate: | 8.4728839852 | | | | | |
| | | | | Taxes w/Current Exemptions: | $5,056.96 | | |
| | | | | Taxes w/o Exemptions: | $5,056.96 | | |
Improvement / Building
| Improvement #1: | RESIDENTIAL | State Code: | Y | 1960.4 sqft | Value: | $386,839 |
| Bathrooms: | 3 | Bedrooms: | 4 | | Ceiling: | DRYWALL PAINTED | Cooling: | HEAT PUMP/CONV/V | | Exterior Wall/Cover: | PLY/HARDBOARD T-111 | Floor Covering: | HARDWOOD/CARP 80-20 | | Floor Structure: | WOOD W/SUBFLOOR | Foundation: | CONCRETE | | Interior Finish: | DRYWALL PAINT | Plumbing Fixture Cnt: | 13 | | Roof Slope: | 4" IN 12" | Roof Structure/Cover: | CJ ASPHALT |
|
| | Type | Description | Class CD | Sub Class CD | Year Built | Area |
| | BAS | BASE/MAIN FLOOR | 3 | 0 | 2023 | 930.4 |
| | UPS | UPPER STORY | 3 | 0 | 2023 | 1030.0 |
| | BIG | BUILT IN GARAGE | 3 | 0 | 2023 | 415.2 |
| | OP1 | OPEN PORCH SLAB | 3 | 0 | 2023 | 144.0 |
| | OP4 | OPEN PORCH W/CEILING-ROOF | 3 | 0 | 2023 | 40.8 |
Sketch
Property Image
Land
| 1 | 12 | SQ (00000-06000) | 0.1210 | 5272.00 | 0.00 | 0.00 | 1.00 | $210,000 | $0 |
Roll Value History
| 2026 | N/A | N/A | N/A | N/A | N/A |
| 2025 | $386,839 | $210,000 | $0 | $596,839 | $596,839 |
| 2024 | $393,872 | $190,000 | $0 | $583,872 | $583,872 |
| 2023 | $9,074 | $80,000 | $0 | $89,074 | $89,074 |
Deed and Sales History
| 1 | 11/07/2023 | WD | Warranty Deed | MARIN WOOD LLC | AGPOON, ACE GODFREY A | | | $594,450.00 | 58630 | 4567127 |
Payout Agreement
| No payout information available.. |