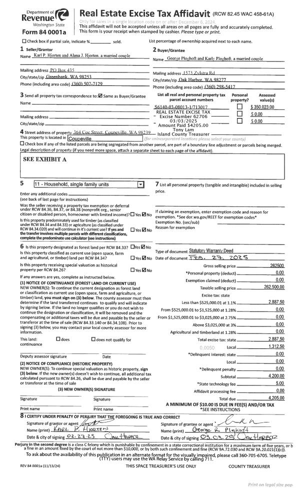
Property
Account |
| Property ID: | 814356 | Abbreviated Legal Description: | BEACHCOMBERS 1 LOT 17 |
| Geographic ID: | S6095-00-00017-0 | Agent Code: | |
| Type: | Real | | |
| Tax Area: | 319 - APPRAISER-Cpvl Schl Dist, outside Cpvl, vacant & 50 acres or less | Land Use Code | 99 |
| Open Space: | N | DFL | N |
| Historic Property: | N | Remodel Property: | N |
| Multi-Family Redevelopment: | N | | |
| Township: | | Section: | |
| Range: | |
Location |
| Address: | | Mapsco: | |
| Neighborhood: | Cycle 2 | Map ID: | 530 |
| Neighborhood CD: | 2 |
Owner |
| Name: | DEMOPOLIS, CHRIS | Owner ID: | 8295 |
| Mailing Address: | C/O THEMO DEMOPOULOS 1120 10TH ST ANACORTES, WA 98221-1921 | % Ownership: | 100.0000000000% |
| | | Exemptions: | |
Taxes and Assessment Details
Property Tax Information as of
10/23/2025
Click on "Statement Details" to expand or collapse a tax statement.
* Please enter a valid date ** Please enter a valid date *
Statement Details |
| 2025 | 54179 | ST - State School | $18.03 | $18.02 | $0.00 | $0.00 | $18.03 | $18.02 |
| 2025 | 54179 | Island County - Island County General Fund | $3.15 | $3.15 | $0.00 | $0.00 | $3.15 | $3.15 |
| 2025 | 54179 | ISLANDCORD - Island County Roads | $3.90 | $3.89 | $0.00 | $0.00 | $3.90 | $3.89 |
| 2025 | 54179 | PRTCPVL - Port of Coupeville | $3.83 | $3.83 | $0.00 | $0.00 | $3.83 | $3.83 |
| 2025 | 54179 | SCH204 - School 204 Coupeville | $6.76 | $6.76 | $0.00 | $0.00 | $6.76 | $6.76 |
| 2025 | 54179 | CEM2 - Cemetery #2 Central Whidbey | $0.08 | $0.08 | $0.00 | $0.00 | $0.08 | $0.08 |
| 2025 | 54179 | LIB - Library Sno-Isle Regional | $3.14 | $3.14 | $0.00 | $0.00 | $3.14 | $3.14 |
| 2025 | 54179 | HOSPEMS - Whidbey Health EMS Island County | $4.25 | $4.25 | $0.00 | $0.00 | $4.25 | $4.25 |
| 2025 | 54179 | HOSP - Whidbey Health | $4.95 | $4.93 | $0.00 | $0.00 | $4.95 | $4.93 |
| 2025 | 54179 | CF - Island County Conservation Futures | $0.27 | $0.27 | $0.00 | $0.00 | $0.27 | $0.27 |
| 2025 | 54179 | FP - Forest Protection | $8.50 | $8.50 | $0.00 | $0.00 | $8.50 | $8.50 |
| 2025 | 54179 | LCFFSA - Landowner Contingency Forest Fire Suppression | $3.00 | $3.00 | $0.00 | $0.00 | $3.00 | $3.00 |
| 2025 | 54179 | WDBYCNV - Whidbey Conservation District | $2.55 | $2.55 | $0.00 | $0.00 | $2.55 | $2.55 |
| 2025 | 54179 | FP ADMIN - Fire patrol | $0.25 | $0.25 | $0.00 | $0.00 | $0.25 | $0.25 |
| 2025 | 54179 | TOTAL: | $62.66 | $62.62 | $0.00 | $0.00 | $62.66 | $62.62 |
|
| 2025 | 54179 | $62.66 | $62.62 | $0.00 | $0.00 | $62.66 | $62.62 |
Values
| (+) Improvement Homesite Value: | + | $0 | |
| (+) Improvement Non-Homesite Value: | + | $0 | |
| (+) Land Homesite Value: | + | $0 | |
| (+) Land Non-Homesite Value: | + | $17,000 | |
| (+) Curr Use (HS): | + | $0 | $0 |
| (+) Curr Use (NHS): | + | $0 | $0 |
| | | -------------------------- | |
| (=) Market Value: | = | $17,000 | |
| (–) Productivity Loss: | – | $0 | |
| | | -------------------------- | |
| (=) Subtotal: | = | $17,000 | |
| (+) Senior Appraised Value: | + | $0 | |
| (+) Non-Senior Appraised Value: | + | $17,000 | |
| | | -------------------------- | |
| (=) Total Appraised Value: | = | $17,000 | |
| (–) Senior Exemption Loss: | – | $0 | |
| (–) Exemption Loss: | – | $0 | |
| | | -------------------------- | |
| (=) Taxable Value: | = | $17,000 | |
Taxing Jurisdiction
| Owner: | DEMOPOLIS, CHRIS | | |
| % Ownership: | 100.0000000000% | | |
| Total Value: | $17,000 | | |
| Tax Area: | 319 - APPRAISER-Cpvl Schl Dist, outside Cpvl, vacant & 50 acres or less |
| CF | Conservation Futures | 0.0316035091 | $17,000 | $17,000 | $0.54 | | |
| CEM2 | Cemetery #2 | 0.0095056933 | $17,000 | $17,000 | $0.16 | | |
| HOBOND | Hospital BOND | 0.1910887512 | $17,000 | $17,000 | $3.25 | | |
| HOGEN | Hospital GEN | 0.3902502903 | $17,000 | $17,000 | $6.63 | | |
| CE | County Current Expense | 0.3708482477 | $17,000 | $17,000 | $6.30 | | |
| CR | County Roads | 0.4584763726 | $17,000 | $17,000 | $7.79 | | |
| ISLANDEMS | Hospital GEN (EMS) | 0.5000000000 | $17,000 | $17,000 | $8.50 | | |
| LIB | Library Sno-Isle GEN | 0.3153421757 | $17,000 | $17,000 | $5.36 | | |
| LIBCAP | Library Sno-Isle BOND (Cap Fac Imp Area) | 0.0543427938 | $17,000 | $17,000 | $0.92 | | |
| POCOUP | Port of Coupeville GEN | 0.1093371703 | $17,000 | $17,000 | $1.86 | | |
| POCOUPIDD | Port of Coupeville IDD | 0.3409740022 | $17,000 | $17,000 | $5.80 | | |
| COUPSDTECH | School 204 CP (TECH) | 0.7545480007 | $17,000 | $17,000 | $12.83 | | |
| SCH204MO | School 204 Enrichment | 0.6716186034 | $17,000 | $17,000 | $11.42 | | |
| ST | State School | 1.3035497053 | $17,000 | $17,000 | $22.16 | | |
| ST2 | State School Part 2 | 0.8169543533 | $17,000 | $17,000 | $13.89 | | |
| | Total Tax Rate: | 6.3184396689 | | | | | |
| | | | | Taxes w/Current Exemptions: | $107.41 | | |
| | | | | Taxes w/o Exemptions: | $107.41 | | |
Improvement / Building
Sketch
| No sketches available for this property. |
Property Image
Land
| 1 | 14 | SQ (08001-12000) | 0.1860 | 8102.16 | 0.00 | 0.00 | 1.00 | $17,000 | $0 |
Roll Value History
| 2026 | N/A | N/A | N/A | N/A | N/A |
| 2025 | $0 | $17,000 | $0 | $17,000 | $17,000 |
| 2024 | $0 | $17,000 | $0 | $17,000 | $17,000 |
Deed and Sales History
Payout Agreement
| No payout information available.. |