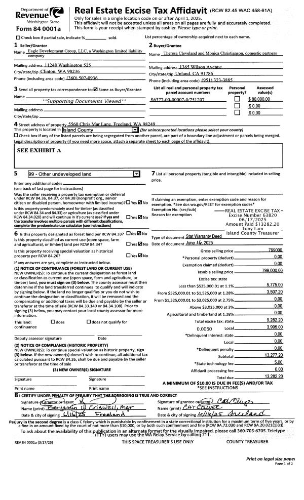
Property
Account |
| Property ID: | 814415 | Abbreviated Legal Description: | RIDGE VIEW ESTATES,s Lot 004,s Blk 00;s |
| Geographic ID: | S8580-00-00004-0 | Agent Code: | |
| Type: | Real | | |
| Tax Area: | 512 - APPRAISER-Stan/Cam Schl Dist, improved, greater than 1 acre | Land Use Code | 11 |
| Open Space: | N | DFL | N |
| Historic Property: | N | Remodel Property: | N |
| Multi-Family Redevelopment: | N | | |
| Township: | 32 | Section: | 35 |
| Range: | R2 |
Location |
| Address: | 159 N CAMANO RIDGE RD CAMANO ISLAND, WA 98282 | Mapsco: | |
| Neighborhood: | North Camano | Map ID: | 576 |
| Neighborhood CD: | 06-C |
Owner |
| Name: | NIETFELD, SAM DAVID | Owner ID: | 314713 |
| Mailing Address: | VICTORIA M JURGENS 159 N CAMANO RIDGE RD CAMANO ISLAND, WA 98282 | % Ownership: | 100.0000000000% |
| | | Exemptions: | |
Taxes and Assessment Details
Property Tax Information as of
10/23/2025
Click on "Statement Details" to expand or collapse a tax statement.
* Please enter a valid date ** Please enter a valid date *
Statement Details |
| 2025 | 54235 | ST - State School | $137.83 | $137.83 | $0.00 | $0.00 | $137.83 | $137.83 |
| 2025 | 54235 | Island County - Island County General Fund | $24.11 | $24.10 | $0.00 | $0.00 | $24.11 | $24.10 |
| 2025 | 54235 | ISLANDCORD - Island County Roads | $29.80 | $29.80 | $0.00 | $0.00 | $29.80 | $29.80 |
| 2025 | 54235 | SCH205_401 - School 205-401 Stanwood-Camano | $143.62 | $143.61 | $0.00 | $0.00 | $143.62 | $143.61 |
| 2025 | 54235 | FIRE1 - Fire & Rescue Dist #1 Camano | $115.39 | $115.37 | $0.00 | $0.00 | $115.39 | $115.37 |
| 2025 | 54235 | LIB - Library Sno-Isle Regional | $20.50 | $20.49 | $0.00 | $0.00 | $20.50 | $20.49 |
| 2025 | 54235 | CF - Island County Conservation Futures | $2.06 | $2.05 | $0.00 | $0.00 | $2.06 | $2.05 |
| 2025 | 54235 | Camano - Camano Island Conservation District | $2.60 | $2.60 | $0.00 | $0.00 | $2.60 | $2.60 |
| 2025 | 54235 | FP - Forest Protection | $8.50 | $8.50 | $0.00 | $0.00 | $8.50 | $8.50 |
| 2025 | 54235 | LCFFSA - Landowner Contingency Forest Fire Suppression | $3.00 | $3.00 | $0.00 | $0.00 | $3.00 | $3.00 |
| 2025 | 54235 | FP ADMIN - Fire patrol | $0.25 | $0.25 | $0.00 | $0.00 | $0.25 | $0.25 |
| 2025 | 54235 | TOTAL: | $487.66 | $487.60 | $0.00 | $0.00 | $487.66 | $487.60 |
|
| 2025 | 54235 | $487.66 | $487.60 | $0.00 | $0.00 | $487.66 | $487.60 |
Values
| (+) Improvement Homesite Value: | + | $0 | |
| (+) Improvement Non-Homesite Value: | + | $541,216 | |
| (+) Land Homesite Value: | + | $0 | |
| (+) Land Non-Homesite Value: | + | $300,000 | |
| (+) Curr Use (HS): | + | $0 | $0 |
| (+) Curr Use (NHS): | + | $0 | $0 |
| | | -------------------------- | |
| (=) Market Value: | = | $841,216 | |
| (–) Productivity Loss: | – | $0 | |
| | | -------------------------- | |
| (=) Subtotal: | = | $841,216 | |
| (+) Senior Appraised Value: | + | $0 | |
| (+) Non-Senior Appraised Value: | + | $841,216 | |
| | | -------------------------- | |
| (=) Total Appraised Value: | = | $841,216 | |
| (–) Senior Exemption Loss: | – | $0 | |
| (–) Exemption Loss: | – | $0 | |
| | | -------------------------- | |
| (=) Taxable Value: | = | $841,216 | |
Taxing Jurisdiction
| Owner: | NIETFELD, SAM DAVID | | |
| % Ownership: | 100.0000000000% | | |
| Total Value: | $841,216 | | |
| Tax Area: | 512 - APPRAISER-Stan/Cam Schl Dist, improved, greater than 1 acre |
| CF | Conservation Futures | 0.0316035091 | $841,216 | $841,216 | $26.59 | | |
| EMS1 | Fire & Rescue Dist #1 Camano GEN (EMS) | 0.3677864386 | $841,216 | $841,216 | $309.39 | | |
| FIRE1 | Fire & Rescue Dist #1 Camano GEN | 1.2502910536 | $841,216 | $841,216 | $1,051.76 | | |
| FIRE1BOND | Fire & Rescue Dist #1 Camano BOND | 0.1570001679 | $841,216 | $841,216 | $132.07 | | |
| CE | County Current Expense | 0.3708482477 | $841,216 | $841,216 | $311.96 | | |
| CR | County Roads | 0.4584763726 | $841,216 | $841,216 | $385.68 | | |
| LCIB | Library Sno-Isle BOND (Camano Island) | 0.0396325772 | $841,216 | $841,216 | $33.34 | | |
| LIB | Library Sno-Isle GEN | 0.3153421757 | $841,216 | $841,216 | $265.27 | | |
| SCH205_401 | School 205-401 Enrichment | 1.2698420524 | $841,216 | $841,216 | $1,068.21 | | |
| SCH205BOND | School 205-401 BOND | 0.9396497583 | $841,216 | $841,216 | $790.45 | | |
| ST | State School | 1.3035497053 | $841,216 | $841,216 | $1,096.57 | | |
| ST2 | State School Part 2 | 0.8169543533 | $841,216 | $841,216 | $687.24 | | |
| | Total Tax Rate: | 7.3209764117 | | | | | |
| | | | | Taxes w/Current Exemptions: | $6,158.53 | | |
| | | | | Taxes w/o Exemptions: | $6,158.53 | | |
Improvement / Building
| Improvement #1: | RESIDENTIAL | State Code: | Y | 1957.1 sqft | Value: | $541,216 |
| Bathrooms: | 2.5 | Bedrooms: | 3 | | Ceiling: | DRYWALL PAINTED | Cooling: | HEAT PUMP/CONV/V | | Exterior Wall/Cover: | CEMENT FIBER | Floor Covering: | HARDWOOD 100% | | Floor Structure: | WOOD W/SUBFLOOR | Foundation: | CONCRETE | | Interior Finish: | DRYWALL PAINT | Plumbing Fixture Cnt: | 12 | | Roof Slope: | 6" IN 12" | Roof Structure/Cover: | CJ ASPHALT |
|
| | Type | Description | Class CD | Sub Class CD | Year Built | Area |
| | BAS | BASE/MAIN FLOOR | 4 | 0 | 2024 | 1957.1 |
| | AGR | ATTACHED GARAGE | 4 | 0 | 2024 | 764.9 |
| | OWC | OPEN WOOD PORCH W/STEPS/ROOF/C | 4 | 0 | 2024 | 222.6 |
| | OWC | OPEN WOOD PORCH W/STEPS/ROOF/C | 4 | 0 | 2024 | 81.9 |
Sketch
Property Image
Land
| 1 | HS | HOMESITE | 1.0000 | 43560.00 | 0.00 | 0.00 | 1.00 | $290,000 | $0 |
| 2 | 17 | AC (01.01-02.00) | 0.0009 | 39.20 | 0.00 | 0.00 | 1.00 | $10,000 | $0 |
Roll Value History
| 2026 | N/A | N/A | N/A | N/A | N/A |
| 2025 | $541,216 | $300,000 | $0 | $841,216 | $841,216 |
| 2024 | $10,000 | $120,000 | $0 | $130,000 | $130,000 |
Deed and Sales History
| 1 | 11/27/2024 | WD | Warranty Deed | TITAN FRAMING LLC | NIETFELD, SAM DAVID | | | $922,000.00 | 61963 | 4579941 |
Payout Agreement
| No payout information available.. |