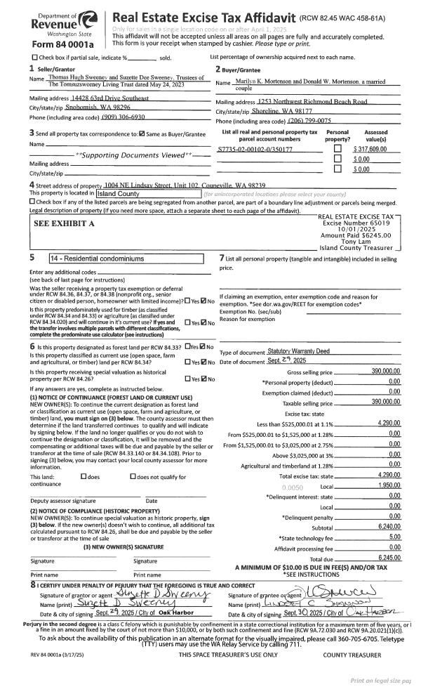
Property
Account |
| Property ID: | 814416 | Abbreviated Legal Description: | RIDGE VIEW ESTATES,s Lot 005,s Blk 00;s |
| Geographic ID: | S8580-00-00005-0 | Agent Code: | |
| Type: | Real | | |
| Tax Area: | 512 - APPRAISER-Stan/Cam Schl Dist, improved, greater than 1 acre | Land Use Code | 11 |
| Open Space: | N | DFL | N |
| Historic Property: | N | Remodel Property: | N |
| Multi-Family Redevelopment: | N | | |
| Township: | 32 | Section: | 35 |
| Range: | R2 |
Location |
| Address: | 161 N CAMANO RIDGE RD CAMANO ISLAND, WA 98282 | Mapsco: | |
| Neighborhood: | North Camano | Map ID: | 576 |
| Neighborhood CD: | 06-C |
Owner |
| Name: | TITAN FRAMING LLC | Owner ID: | 294771 |
| Mailing Address: | 8600 CEDARHOME DR STE A6 STANWOOD, WA 98292 | % Ownership: | 100.0000000000% |
| | | Exemptions: | |
Taxes and Assessment Details
Property Tax Information as of
10/23/2025
Click on "Statement Details" to expand or collapse a tax statement.
* Please enter a valid date ** Please enter a valid date *
Statement Details |
| 2025 | 54236 | ST - State School | $127.24 | $127.22 | $0.00 | $0.00 | $254.46 | $0.00 |
| 2025 | 54236 | Island County - Island County General Fund | $22.25 | $22.25 | $0.00 | $0.00 | $44.50 | $0.00 |
| 2025 | 54236 | ISLANDCORD - Island County Roads | $27.51 | $27.51 | $0.00 | $0.00 | $55.02 | $0.00 |
| 2025 | 54236 | SCH205_401 - School 205-401 Stanwood-Camano | $132.57 | $132.57 | $0.00 | $0.00 | $265.14 | $0.00 |
| 2025 | 54236 | FIRE1 - Fire & Rescue Dist #1 Camano | $22.07 | $22.06 | $0.00 | $0.00 | $44.13 | $0.00 |
| 2025 | 54236 | LIB - Library Sno-Isle Regional | $18.92 | $18.92 | $0.00 | $0.00 | $37.84 | $0.00 |
| 2025 | 54236 | CF - Island County Conservation Futures | $1.90 | $1.89 | $0.00 | $0.00 | $3.79 | $0.00 |
| 2025 | 54236 | Camano - Camano Island Conservation District | $2.60 | $2.60 | $0.00 | $0.00 | $5.20 | $0.00 |
| 2025 | 54236 | FP - Forest Protection | $8.50 | $8.50 | $0.00 | $0.00 | $17.00 | $0.00 |
| 2025 | 54236 | LCFFSA - Landowner Contingency Forest Fire Suppression | $3.00 | $3.00 | $0.00 | $0.00 | $6.00 | $0.00 |
| 2025 | 54236 | FP ADMIN - Fire patrol | $0.25 | $0.25 | $0.00 | $0.00 | $0.50 | $0.00 |
| 2025 | 54236 | TOTAL: | $366.81 | $366.77 | $0.00 | $0.00 | $733.58 | $0.00 |
|
| 2025 | 54236 | $366.81 | $366.77 | $0.00 | $0.00 | $733.58 | $0.00 |
Values
| (+) Improvement Homesite Value: | + | $0 | |
| (+) Improvement Non-Homesite Value: | + | $589,333 | |
| (+) Land Homesite Value: | + | $0 | |
| (+) Land Non-Homesite Value: | + | $300,000 | |
| (+) Curr Use (HS): | + | $0 | $0 |
| (+) Curr Use (NHS): | + | $0 | $0 |
| | | -------------------------- | |
| (=) Market Value: | = | $889,333 | |
| (–) Productivity Loss: | – | $0 | |
| | | -------------------------- | |
| (=) Subtotal: | = | $889,333 | |
| (+) Senior Appraised Value: | + | $0 | |
| (+) Non-Senior Appraised Value: | + | $889,333 | |
| | | -------------------------- | |
| (=) Total Appraised Value: | = | $889,333 | |
| (–) Senior Exemption Loss: | – | $0 | |
| (–) Exemption Loss: | – | $0 | |
| | | -------------------------- | |
| (=) Taxable Value: | = | $889,333 | |
Taxing Jurisdiction
| Owner: | TITAN FRAMING LLC | | |
| % Ownership: | 100.0000000000% | | |
| Total Value: | $889,333 | | |
| Tax Area: | 512 - APPRAISER-Stan/Cam Schl Dist, improved, greater than 1 acre |
| CF | Conservation Futures | 0.0316035091 | $889,333 | $889,333 | $28.11 | | |
| EMS1 | Fire & Rescue Dist #1 Camano GEN (EMS) | 0.3677864386 | $889,333 | $889,333 | $327.08 | | |
| FIRE1 | Fire & Rescue Dist #1 Camano GEN | 1.2502910536 | $889,333 | $889,333 | $1,111.93 | | |
| FIRE1BOND | Fire & Rescue Dist #1 Camano BOND | 0.1570001679 | $889,333 | $889,333 | $139.63 | | |
| CE | County Current Expense | 0.3708482477 | $889,333 | $889,333 | $329.81 | | |
| CR | County Roads | 0.4584763726 | $889,333 | $889,333 | $407.74 | | |
| LCIB | Library Sno-Isle BOND (Camano Island) | 0.0396325772 | $889,333 | $889,333 | $35.25 | | |
| LIB | Library Sno-Isle GEN | 0.3153421757 | $889,333 | $889,333 | $280.44 | | |
| SCH205_401 | School 205-401 Enrichment | 1.2698420524 | $889,333 | $889,333 | $1,129.31 | | |
| SCH205BOND | School 205-401 BOND | 0.9396497583 | $889,333 | $889,333 | $835.66 | | |
| ST | State School | 1.3035497053 | $889,333 | $889,333 | $1,159.29 | | |
| ST2 | State School Part 2 | 0.8169543533 | $889,333 | $889,333 | $726.54 | | |
| | Total Tax Rate: | 7.3209764117 | | | | | |
| | | | | Taxes w/Current Exemptions: | $6,510.79 | | |
| | | | | Taxes w/o Exemptions: | $6,510.79 | | |
Improvement / Building
| Improvement #1: | RESIDENTIAL | State Code: | Y | 2283.5 sqft | Value: | $589,333 |
| Bathrooms: | 2.5 | Bedrooms: | 3 | | Ceiling: | DRYWALL PAINTED | Cooling: | HEAT PUMP/CONV/V | | Exterior Wall/Cover: | CEMENT FIBER | Floor Covering: | HARDWOOD 100% | | Floor Structure: | WOOD W/SUBFLOOR | Foundation: | CONCRETE | | Interior Finish: | DRYWALL PAINT | Plumbing Fixture Cnt: | 12 | | Roof Slope: | 6" IN 12" | Roof Structure/Cover: | CJ ASPHALT |
|
| | Type | Description | Class CD | Sub Class CD | Year Built | Area |
| | BAS | BASE/MAIN FLOOR | 4 | 0 | 2024 | 2283.5 |
| | AGR | ATTACHED GARAGE | 4 | 0 | 2024 | 790.1 |
| | OWC | OPEN WOOD PORCH W/STEPS/ROOF/C | 4 | 0 | 2024 | 104.0 |
| | OWC | OPEN WOOD PORCH W/STEPS/ROOF/C | 4 | 0 | 2024 | 201.7 |
Sketch
Property Image
Land
| 1 | HS | HOMESITE | 1.0000 | 43560.00 | 0.00 | 0.00 | 1.00 | $290,000 | $0 |
| 2 | 99 | OTHER UNDEVELOPED LAND PLATS/SUBDIVISION | 0.0010 | 43.56 | 0.00 | 0.00 | 1.00 | $10,000 | $0 |
Roll Value History
| 2026 | N/A | N/A | N/A | N/A | N/A |
| 2025 | $589,333 | $300,000 | $0 | $889,333 | $889,333 |
| 2024 | $0 | $120,000 | $0 | $120,000 | $120,000 |
Deed and Sales History
Payout Agreement
| No payout information available.. |